RSS
Государственный архив Российской Федерации. Обнинск
Фотография © Юлия Тарабарина, Архи.ру

Филиал Государственного архива Российской Федерации в Обнинске

информация:

Владимир Плоткин
ТПО «Резерв»

авторский коллектив

Руководитель авторского коллектива – В. Плоткин; С. Гусарев, А. Пономарев, Р. Князев, Е. Шорникова, Е. Солонкина

партнеры, заказчики, смежники

Заказчик – ГАРХ РФ

другие названия проекта
ГАРФ
Государственный архив Российской Федерации. Обнинск
Фотография © Юлия Тарабарина, Архи.ру

Архи.ру об этом объекте:

21.01.2026

Юлия Тарабарина. Баланс асимметричных пар

Здание Госархива РФ, спроектированное и реализованное Владимиром Плоткиным и архитекторами ТПО «Резерв» в Обнинске – простое и сложное одновременно. Отчего заслуживает внимательного разбора. Оно еще раз показывает нам, насколько пластичен, актуален для современности и свеж в новых ракурсах авторского взгляда набор идей модернистской архитектуры. Исследуем паттерны суперграфики, композиционный баланс и логику. Считаем «капитанские мостики». Дочитайте до конца и узнаете, сколько мостиков и какое пространство там лучшее.

ГАРФ это архив документов, в основном связанных с государственным управлением. Его образовали в 1992 году путем объединения архива октябрьской революции на Бережковской набережной и Центрального госархива РСФСР на Большой Пироговской. Так получилос...   читать дальше
Государственный архив Российской Федерации. Обнинск
Фотография © Юлия Тарабарина, Архи.ру

описание:

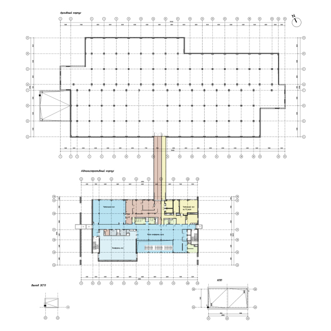
Архивный комплекс формируется двумя основными объемами – Архивным корпусом (корпус № 2), в котором размещаются помещения хранилищ архива, включая помещения ЦХОДа, и Административным корпусом (корпус № 1), в котором размещаются помещения общего доступа и администрация. Оба корпуса связаны в уровне второго этажа технологическим переходом. 10-ти этажный (включая верхний технический этаж) Архивный корпус, значительно более крупный относительно Административного корпуса, располагается в глубине участка параллельно Университетской улице и служит своеобразным «фоном» для 3-х этажного Административного корпуса, расположенного ближе к улице.

Перед Административным корпусом формируется небольшая площадь, на которую ориентирован главный вход комплекса.
Государственный архив Российской Федерации. Обнинск
Фотография © Юлия Тарабарина, Архи.ру
Государственный архив Российской Федерации. Обнинск
Фотография © Юлия Тарабарина, Архи.ру
Государственный архив Российской Федерации. Обнинск
Фотография © Юлия Тарабарина, Архи.ру
Государственный архив Российской Федерации. Обнинск
Фотография © Юлия Тарабарина, Архи.ру
Государственный архив Российской Федерации. Обнинск
Фотография © Юлия Тарабарина, Архи.ру
Государственный архив Российской Федерации. Обнинск
Фотография © Юлия Тарабарина, Архи.ру
Государственный архив Российской Федерации. Обнинск
Фотография © Юлия Тарабарина, Архи.ру
Государственный архив Российской Федерации. Обнинск
Фотография © Юлия Тарабарина, Архи.ру
Государственный архив Российской Федерации. Обнинск
Фотография © Юлия Тарабарина, Архи.ру
Государственный архив Российской Федерации. Обнинск
Фотография © Юлия Тарабарина, Архи.ру
«Арка» малого общественного корпуса. ГАРФ. Обнинск
Фотография © Юлия Тарабарина, Архи.ру
Государственный архив Российской Федерации. Обнинск
Фотография © Юлия Тарабарина, Архи.ру
Государственный архив Российской Федерации. Обнинск
Фотография © Юлия Тарабарина, Архи.ру
Государственный архив Российской Федерации. Обнинск
Фотография © Юлия Тарабарина, Архи.ру
Государственный архив Российской Федерации. Обнинск
Фотография © Юлия Тарабарина, Архи.ру
Государственный архив Российской Федерации. Обнинск
Фотография © Юлия Тарабарина, Архи.ру
Государственный архив Российской Федерации. Обнинск
Фотография © Юлия Тарабарина, Архи.ру
Государственный архив Российской Федерации. Обнинск
Фотография © Юлия Тарабарина, Архи.ру
Государственный архив Российской Федерации. Обнинск
Фотография © Юлия Тарабарина, Архи.ру
Государственный архив Российской Федерации. Обнинск
Фотография © Юлия Тарабарина, Архи.ру
Государственный архив Российской Федерации. Обнинск
Фотография © Юлия Тарабарина, Архи.ру
Государственный архив Российской Федерации. Обнинск
Фотография © Юлия Тарабарина, Архи.ру
Государственный архив Российской Федерации. Обнинск
Фотография © Юлия Тарабарина, Архи.ру
Государственный архив Российской Федерации. Обнинск
Фотография © Юлия Тарабарина, Архи.ру
Государственный архив Российской Федерации. Обнинск
Фотография © Юлия Тарабарина, Архи.ру
Взгляд из конференц-зала в окно на северо-запад. ГАРФ. Обнинск
Фотография © Юлия Тарабарина, Архи.ру
Взгляд из конференц-зала в окно на юго-восток. ГАРФ. Обнинск
Фотография © Юлия Тарабарина, Архи.ру
Государственный архив Российской Федерации. Обнинск
Фотография © Юлия Тарабарина, Архи.ру
Фотография © Юлия Тарабарина, Архи.ру
Фотография © Юлия Тарабарина, Архи.ру
Под навесным переходом. ГАРФ. Обнинск
Фотография © Юлия Тарабарина, Архи.ру
Государственный архив Российской Федерации. Обнинск
Фотография © ТПО «Резерв»
Государственный архив Российской Федерации. Обнинск
Фотография © ТПО «Резерв»
Государственный архив Российской Федерации. Обнинск
Фотография © ТПО «Резерв»
Государственный архив Российской Федерации. Обнинск
Фотография © Юлия Тарабарина, Архи.ру
Государственный архив Российской Федерации. Обнинск
Фотография © Юлия Тарабарина, Архи.ру
Государственный архив Российской Федерации. Обнинск
Фотография © Юлия Тарабарина, Архи.ру
Государственный архив Российской Федерации. Обнинск
Фотография © Юлия Тарабарина, Архи.ру
Государственный архив Российской Федерации. Обнинск
Фотография © Юлия Тарабарина, Архи.ру
Государственный архив Российской Федерации. Обнинск
Фотография © Юлия Тарабарина, Архи.ру
Государственный архив Российской Федерации. Обнинск
Фотография © Юлия Тарабарина, Архи.ру
Государственный архив Российской Федерации. Обнинск
Фотография © Юлия Тарабарина, Архи.ру
Государственный архив Российской Федерации. Обнинск
Фотография © Юлия Тарабарина, Архи.ру
Государственный архив Российской Федерации. Обнинск
Фотография © Юлия Тарабарина, Архи.ру
Балкон читального зала. ГАРФ. Обнинск
Фотография © Юлия Тарабарина, Архи.ру
Стена переговорной, вид из коридора. ГАРФ. Обнинск
Фотография © Юлия Тарабарина, Архи.ру
Переговорная. ГАРФ. Обнинск
Фотография © Юлия Тарабарина, Архи.ру
Кабинет директора. Слева витраж с видом на главную лестницу. ГАРФ. Обнинск
Фотография © Юлия Тарабарина, Архи.ру
Кабинет, соседний с директорским. Ориентирован вдоль стеклянного фасада, стекло «в пол». ГАРФ. Обнинск
Фотография © Юлия Тарабарина, Архи.ру
Государственный архив Российской Федерации. Обнинск
Фотография © Юлия Тарабарина, Архи.ру
Государственный архив Российской Федерации. Обнинск
Фотография © Юлия Тарабарина, Архи.ру
Государственный архив Российской Федерации. Обнинск
Фотография © Юлия Тарабарина, Архи.ру
Государственный архив Российской Федерации. Обнинск
Фотография © Юлия Тарабарина, Архи.ру
Государственный архив Российской Федерации. Обнинск
Фотография © Юлия Тарабарина, Архи.ру
Государственный архив Российской Федерации. Обнинск
Фотография © Юлия Тарабарина, Архи.ру
Государственный архив Российской Федерации. Обнинск
Фотография © Юлия Тарабарина, Архи.ру
Государственный архив Российской Федерации. Обнинск
Фотография © Юлия Тарабарина, Архи.ру
Государственный архив Российской Федерации. Обнинск
Фотография © Юлия Тарабарина, Архи.ру
Вид из фойе конференц-зала на фасадный витраж. ГАРФ. Обнинск
Фотография © Юлия Тарабарина, Архи.ру
Государственный архив Российской Федерации. Обнинск
Фотография © Юлия Тарабарина, Архи.ру
Государственный архив Российской Федерации. Обнинск
Фотография © Юлия Тарабарина, Архи.ру
Государственный архив Российской Федерации. Обнинск
Фотография © Юлия Тарабарина, Архи.ру
Стеклянная стена читального зала. ГАРФ. Обнинск
Фотография © Юлия Тарабарина, Архи.ру
Государственный архив Российской Федерации. Обнинск
Фотография © Юлия Тарабарина, Архи.ру
Государственный архив Российской Федерации. Обнинск
Фотография © Юлия Тарабарина, Архи.ру
Вид навесного перехода изнутри; слева дорожка для роботов. Государственный архив Российской Федерации. Обнинск
Фотография © Юлия Тарабарина, Архи.ру
Государственный архив Российской Федерации. Обнинск
Фотография © Юлия Тарабарина, Архи.ру
Государственный архив Российской Федерации. Обнинск
Фотография © Юлия Тарабарина, Архи.ру
Государственный архив Российской Федерации. Обнинск
Фотография © Юлия Тарабарина, Архи.ру
Государственный архив Российской Федерации. Обнинск
Фотография © Юлия Тарабарина, Архи.ру
Ситуационный план. ГАРФ. Обнинск
© ТПО «Резерв»
Фасад. Государственный архив Российской Федерации. Обнинск
© ТПО «Резерв»
План 2 этажа. Государственный архив Российской Федерации. Обнинск
© ТПО «Резерв»
План 1 этажа. Государственный архив Российской Федерации. Обнинск
© ТПО «Резерв»
Фасад. Государственный архив Российской Федерации. Обнинск
© ТПО «Резерв»
Проект, 2020. Государственный архив Российской Федерации. Обнинск
© ТПО «Резерв»

Архитекторы – партнеры Архи.ру:

  • Ростислав Цайзер
  • Сергей Никешкин
  • Сергей Переслегин
  • Никита Явейн
  • Наталия Шилова
  • Ерлан Бекмухамедов
  • Юлия Тряскина
  • Павел Андреев
  • Александр Самарин
  • Георгий Трофимов
  • Сергей Чобан
  • Михаил Давыдов
  • Григориос Гавалидис
  • Сергей Кузнецов
  • Андрей Асадов
  • Евгений Зеленов
  • Мария Ахременкова
  • Анастасия Абашева
  • Юлия Солдатенкова
  • Илья Машков
  • Александр Котенков
  • Вера Бутко
  • Екатерина Кузнецова
  • Всеволод Медведев
  • Алексей Орлов
  • Дмитрий Сухов
  • Михаил Канунников
  • Наталья Сидорова
  • Степан Липгарт
  • Владимир Плоткин
  • Олег Шапиро
  • Владислав Андреев
  • Евгений Подгорнов
  • Дмитрий Буш
  • Василий Крапивин
  • Олег Мединский
  • Евгений Новосадюк
  • Татьяна Зульхарнеева
  • Николай Переслегин
  • Александр Скокан
  • Александр Асадов
  • Дмитрий Остроумов
  • Зураб Басария
  • Андрей Гнездилов
  • Константин Ходнев
  • Сергей Скуратов
  • Валерий Каняшин
  • Сергей Труханов
  • Антон Яр-Скрябин
  • Николай Кикава
  • Юлий Борисов
  • Энди Сноу
  • Игорь Членов
  • Елена Пучкова
  • Антон Надточий
  • Борис Воскобойников
  • Иван Кожин
  • Юлиана Княжевская
  • Александра Кузьмина
  • Виталий Лутц
  • Григорий Мустафин
  • Раис Баишев
  • Андрей Михайлов
  • Даниил Лоренц
  • Игорь Шварцман
  • Дмитрий Ликин
  • Станислав Белых
  • Марина Егорова
  • Полина Воеводина
  • Андрей Романов
  • Тимур Абдуллаев
  • Екатерина Абдуллаева
  • Маргарита Авдышева
  • Левон Айрапетов
  • Александр Аношкин
  • Алексей Афоничкин
  • Владислав Бек-Булатов
  • Антон Белов
  • Татьяна Бузулукова
  • Петр Васильев
  • Данило Вукосавлевич
  • Алина Георгиевская
  • Павел Гордеев
  • Илья Гринберг
  • Никита Демидов
  • Никита Дергунов
  • Наталья Жилкина
  • Алексей Зародов
  • Екатерина Зырина
  • Алексей Ильин
  • Дарья Ильина
  • Олег Карлсон
  • Алексей Кибкало
  • Денис Кувшинников
  • Анна Куликова
  • Алексей Курков
  • Данил Куров
  • Мария Кутай
  • Евгений Кутай
  • Иван Кычкин
  • Антон Ладыгин
  • Дмитрий Лапин
  • Илья Левянт
  • Катерина Левянт
  • Борис Левянт
  • Валерий Лукомский
  • Антон Лукомский
  • Екатерина Ляпунова
  • Иса Магомедов
  • Сергей Марков
  • Елена Мерцалова
  • Николай Миловидов
  • Станислав Михаловский
  • Сергей Мичурин
  • Олеся Могилевская
  • Филипп Никандров
  • Мария Николаева
  • Дмитрий Овчаров
  • Сергей Пергаев
  • Виктор Перов
  • Алексей Полищук
  • Роман Пономарёв
  • Валерия Преображенская
  • Виктория Раубо
  • Василий Рыбаков
  • Николай Рыбаков
  • Мария Салех
  • Александр Стариков
  • Илья Уткин
  • Елисей Чакан
  • Бориша Чорович
  • Олег Шурыгин
  • Дмитрий Шурыгин

Проект из каталога (случайный выбор)

Торгово-развлекательный центр в городе Московский
Владимир Лабутин, Игорь Шварцман,
Торгово-развлекательный центр в городе Московский

Постройки и проекты (новые записи):

  • Гостиница в Чите
  • ЖК Квартал 64
  • Деловое пространство «ПЛЭЙН»
  • Конкурсный проект ФИЦ / ТПО «Резерв»
  • Porta
  • Детский сад на 200 мест в Жилино-1
  • Архитектурная концепция кластера Ломоносов-2
  • Клубный дом в 1-м Казачьем переулке
  • Частный дом в Ленинградской области

Новости российской архитектуры:

Сплав мировых культур
13.05.2026

Сплав мировых культур

Александр Салов, Татьяна Осецкая
КиноГолограмма
12.05.2026

КиноГолограмма

Николай Переслегин, Сергей Переслегин, Георгий Трофимов
Форма как метод: ТПО «Резерв»
12.05.2026

Форма как метод: ТПО «Резерв»

Владимир Плоткин
Консервация как комментарий
12.05.2026

Консервация как комментарий

Наринэ Тютчева