Дом «Террариум»
Фото © Rungkit Charoenwat
Впрочем, авторы проекта признают, что речь идет о природе «в витрине», поэтому даже назвали дом «Террариумом». Они сохранили деревья на участке, заключив их в остекленные цилиндры, завершающиеся проемами в кровле. Так зажатое другими домами жилище обеспечено солнечным светом, который при этом смягчается, проходя сквозь листву. Старые и новые деревья также защищают жизнь хозяев от посторонних взглядов, что особенно важно в лишенном опор, почти полностью проницаемом интерьере: основной несущей конструкцией служит выполненный из стали и древесины тахиана (Hopea odorata) каркас остекления.
Дом «Террариум»
Фото © Rungkit Charoenwat
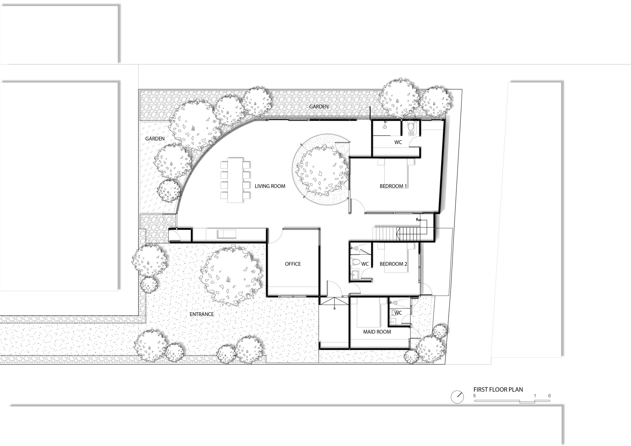
Проход к дому (архитекторы сравнивают его с черенком ложкообразного участка) решен как облицованный природным камнем коридор с деревянным потолком, который создает ощущение таинственности. Отсюда гость попадает в центральный двор, служащий главным жилым пространством. Антресольный этаж – приватный, здесь размещены коллекция произведений искусства и главная спальня.
Дом «Террариум»
Фото © Rungkit Charoenwat
Заказчик дома – владелец строительной фирмы, и поэтому большое внимание уделено качеству ремесленной, ручной работы. В доме использовано семь сортов древесины – в зависимости от задач, при этом они все тонированы под кипарисовик туполистный.
Дом «Террариум»
Фото © Rungkit Charoenwat
Дом «Террариум»
Фото © Rungkit Charoenwat
Дом «Террариум»
Фото © Rungkit Charoenwat
Дом «Террариум»
Фото © Rungkit Charoenwat
Дом «Террариум»
Фото © Rungkit Charoenwat
Дом «Террариум»
Фото © Rungkit Charoenwat
Дом «Террариум»
Фото © Rungkit Charoenwat
Дом «Террариум»
Фото © Rungkit Charoenwat
Дом «Террариум»
Фото © Rungkit Charoenwat
