Административное здание WoodHub
Фото © Rasmus Hjortshøj
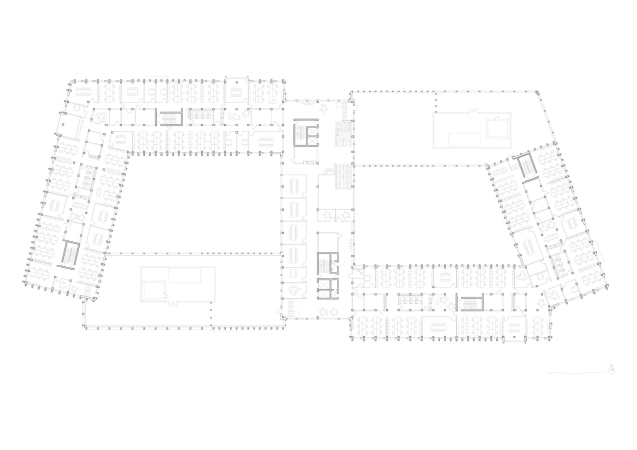
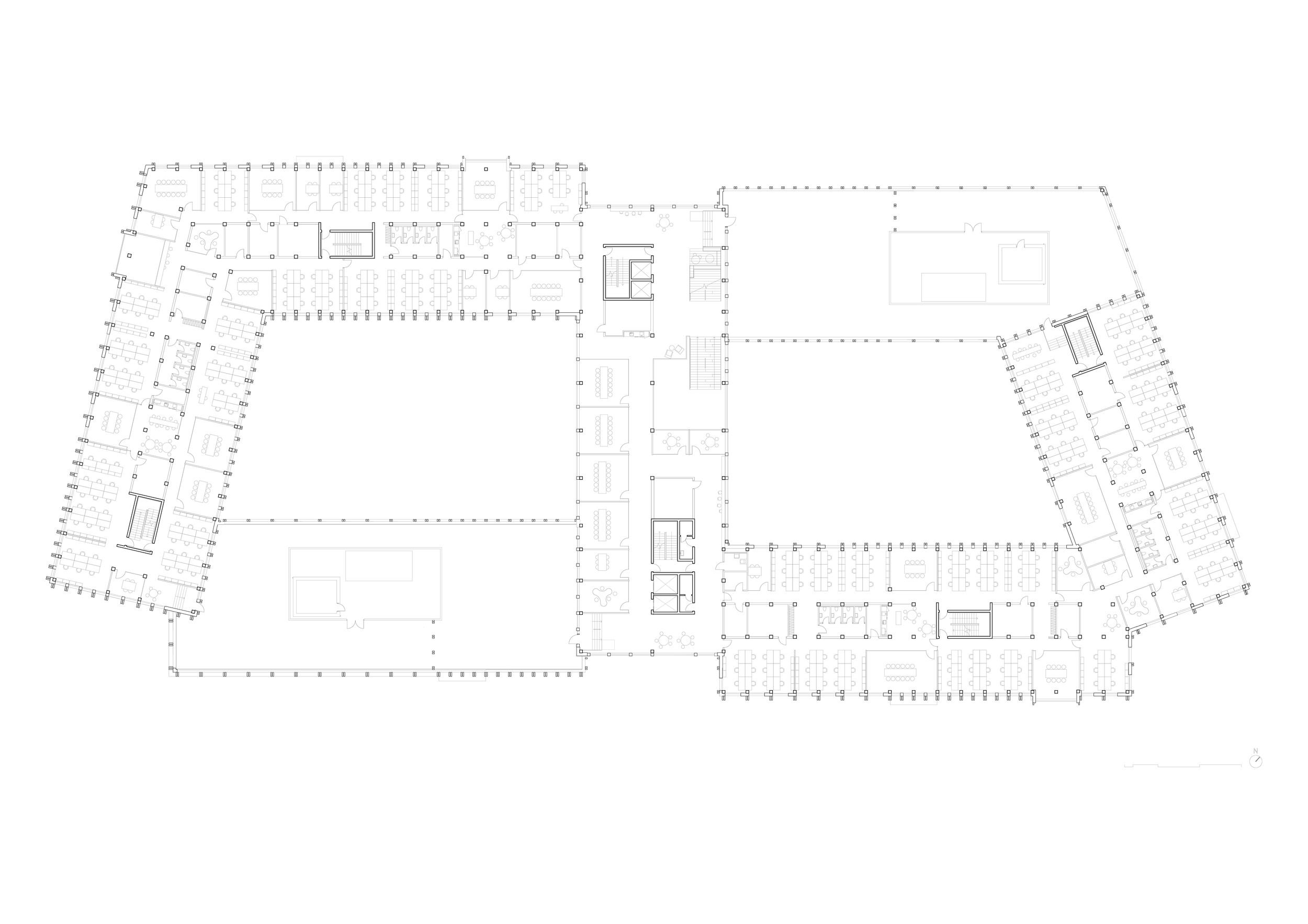
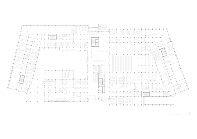
Пока же в здании с площадью наземных уровней 31 тыс. м2 разместились 1600 служащих нескольких госучреждений. Их кабинеты расположены в двух С-образных крыльях высотой от трех до шести этажей, обращенных на запад и восток, а по центру помещен 7-этажный корпус с переговорными. Первый этаж занят, помимо прочего, конференц-залом, столовой и центром приема граждан. Понижающаяся по мере удаления от центральной части высота WoodHub помогает согласовать здание с окружением, хотя среда вокруг достаточно нейтральна: это прилегающая к небольшой гавани Оденсе территория современной застройки.
Административное здание WoodHub
Фото © Rasmus Hjortshøj
Архитекторы подчеркивают, что выведенная в интерьер деревянная конструкция создает комфортную атмосферу за счет запаха, теплоты, тактильной фактуры дерева. Использование древесины не только позволило «замуровать» захваченный деревьями при их жизнедеятельности CO2 (который иначе, при естественной гибели растений, выделяется обратно в атмосферу), но и сократить углеродный след постройки на 5400 тонн по сравнению с обычным офисным зданием (это показатель за весь прогнозируемый срок службы в 50 лет).
Административное здание WoodHub
Фото © Rasmus Hjortshøj
Фасады выполнены из вторично использованного алюминия, не требующего особого ухода. Ниши затеняют оконные проемы (их размер в каждом случае определен в зависимости от ориентации постройки), что позволило обойтись без механических жалюзи.
Административное здание WoodHub
Фото © Rasmus Hjortshøj
Административное здание WoodHub
Фото © Rasmus Hjortshøj
Административное здание WoodHub
Фото © Rasmus Hjortshøj
