Казалось бы, все просто: контраст и подобие. Одно крыло черное, другое белое; оба достаточно большие, вытянутые к 3-й Фрунзенской улице, ступенчатые, и перекликаются – как будто переглядываются – между собой, рифмуя ступеньки и выступы. Оба соблюдают дизайн-код «Садовых кварталов», предложенный Сергеем Скуратовым, и в то же время оба – авторские высказывания, так и было задумано в 2007 году. Так что дело не только в контрасте и подобии: в каждой теме есть и более тонкие различия, наюнсы. Трактованы они в силу авторских убеждений в меру строго и сдержанно, без броской скульптурности, на балансе, что работает на цельность в рамках комплекса. Поди разберись. Но можно и понять, и разглядеть нюансы сходств и различий.
Сам по себе квартал почти что замкнутый. Его двор, как все дворы «Садовых кварталов», и углубленный, и многоуровневый, что во 2 квартале усилено перепадом высот – именно здесь московский ландшафт плавно поднимается «в гору». Поэтому со стороны 3-й Фрунзенской на внешнем контуре «кварталов» образовалось небольшое общественное пространство – в дополнение к впечатляющей городской площади с прудом в их центре. Мне уже довелось определить это, отчасти внешнее, пространство как городской балкон.
Правда, похоже на балкон. Даже два балкона.
Если выйти под мостиком в створе между четвертым и вторым кварталом и повернуть на углу черного дома направо, мы попадаем на бульвар с каменным мощением справа и довольно пышной, в том числе луговой, растительностью слева.
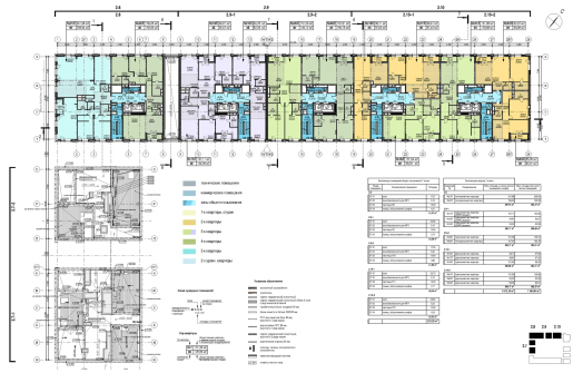
Вид на малые корпуса со стороны 3-й Фрунзенской. ЖК Садовые кварталы II квартал, корпуса 2,7-2,10
Фотография © Даниил Анненков / предоставлена АБ «Остоженка»
Мощение – пешеходная улица, и с нее можно свернуть, слегка спустившись, вправо: тут в разрывах между малоэтажными корпусами существуют две площадки со стеклянным ограждением и видом во двор 2 квартала, который от этого становится чуть менее закрытым от горожан. Одна площадка между черным и белым домом, другая между корпусами белого. В первой магазин, во второй кафе, там можно еще и посидеть, там не то чтобы закрытый, но тихий и укромный закуток с видом на двор с высоты. Ни дать ни взять балкон, оригинальное пространственное решение из породы разноуровневых, которые были фирменным приемом, чуть ли не credo «Садовых» с момента появления их проекта в информационном поле.
Дому «Остоженки» отведено две трети «городского балкона», поскольку его маловысотная часть заходит к югу вдвое дальше.
Сам дом – выше и объемнее соседа, в нем не три ступеньки, а две. Больший объем, стартуя от соседства с 17-этажным кирпичным домом Сергея Скуратова, тянется 14-этажным на две трети длины, объединяя 3 секции, после чего уступает только 2 этажа, до двенадцати, чтобы после поворота «уполовиниться» до шести этажей в двух объемах по 3-й Фрунзенской.
Зато уступов и вырезов здесь больше, особенно в нижней части: большая, 5-этажной высоты, арка, один из любимых приемов «Остоженки», плюс сквозное «окно» в теле здания – там, где примыкает один из мостиков двора.
Если посмотреть на паттерн фасада, то он, отнюдь не следуя мерному шагу пяти секций, составляющих протяженный объем, превращается в пазл наподобие «тетриса»: как будто бы здесь состыкованы два объема – один отчасти зеркалирующий ступени дома «Резерва», но асимметрично и в обратном направлении. Сетка его фасадов заметно более материальна, поскольку использует откосы, расширяя простенки в каждом окне. Другой объем положен на него, как будто, сверху – сетка его простенков, наоборот, тонкая, объединяет окна по два по вертикали и, кроме того, «растворяется» к югу, поскольку камень градиентно-постепенно заменяют вставки черного металла. До какой-то степени – отражение более жесткого и размеренного черного корпуса, но не как в зеркале, а как в воде – не точно, даже не отражение, пересказ. Этакий диалог – не диалог.
На внешнем фасаде тема повторена и, глядя на него, понимаем, что в формировании ступенчатости внутри двора принимают участие три рамки над витражами лобби.
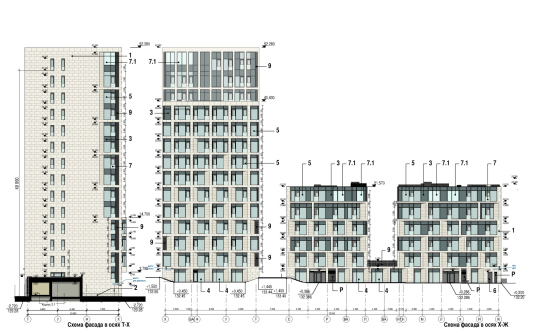
ЖК Садовые кварталы II квартал, корпуса 2,7-2,10
Фотография © Даниил Анненков / предоставлена АБ «Остоженка»
Впрочем здесь на фасадах довольно-таки много подвижности. К примеру, на торце протяженного корпуса сетка в верхней части плавно теряет откосы – две темы, объемная и тонкокостная – ненавязчиво срастаются.
А если мы посмотрим на малые корпуса, там каменной «материи» еще меньше. Со стороны двора их фасады превращаются в прямо-таки мондриановский рисунок, асимметричные «пятнашки». Снаружи были объемные, с откосами, внутри – двумерные, рисуночные. Это красиво, легко и хорошо рифмуется с темным корпусом «Резерва», тяготеющим к плоскостности.
Всего-то пара приемов: каменный скос, ступенька, черная металлическая вставка, – но вариаций «мелодии» много, с усилением то ритма, то объема, то плоскости и линии. Мне кажется, такое разнообразие стало возможным потому, что на фасадах дома, в отличие от соседнего, применен, в сущности, только один материал – стекло, стемалит и черный металл как фоновые участники не в счет – здесь «рулит» известняк, белый камень.
Что важно, поскольку основа дизайн-кода «Садовых кварталов»: кирпич и белый камень.
Но если так посмотреть, то кирпича в «кварталах» больше. А тут – только камень. В этом корпус «Остоженки» вторит двум домам Сергея Скуратова, фланкирующим здание Романа Клейна по улице Усачева. Их срезанные по косой фасады образуют по сторонам Клейна гигантский «портал», чему в меньшем масштабе вторят откосы из шершавого камня при гладкой внешней поверхности. Подобные откосы, в сопровождении каменных «ступенек», акцентирующих линии сетки, есть и в каменных домах Скуратова в составе 2 квартала, со стороны пруда.
«Остоженка» берет и ступеньки, и откосы, но разделяет их: первое для тонкой сетки, второе для более плотной.
Два типа сетки – вертикальная и горизонтальная, тонкая и объемная – тоже откликаются на особенности двух соседей. Тонкая вертикальная использует характерный для «кварталов» и домов Сергея Скуратова градиент постепенного «растворения» массы (а иногда и цвета), широтная откликается на шахматный ритм дома Плоткина.
Дом «Остоженки» объединяет и примиряет то и другое с помощью как материала, так и композиции. Как будто говорит: мы можем жить вместе... И правда: конечно, можем – нет никакого радикального противоречия между вертикальным и горизонтальным построением, когда они рядом – даже веселее.
Но интересно наблюдать, как чутко этот корпус реагирует на все особенности окружения, сохраняя – во многом благодаря материалу – цельность высказывания.
Тут хочется вернуться к упомянутому выше «мондриановскому рисунку» на внутренней стороне малых объемов – поскольку, если посмотреть на дом «Остоженки» в целом, в нем наблюдается развитие: от северо-восточного полюса, где он соседствует с кирпичным домом Скуратова, там сетка строгая, вертикальная – к южным домам, где она максимально «растягивается», как это бывает в трикотажном плетении, но более геометрично. И, наконец, во дворе уплощается, превращаясь в «абстрактную картину».
ЖК Садовые кварталы II квартал, корпуса 2,7-2,10
Фотография © Даниил Анненков / предоставлена АБ «Остоженка»
И – вырезы, они тут важны, не только разделяют дом на части «для проветривания», но и образуют оси, как минимум – две поперечные, через двор, вверху и внизу. Их форма вторит откосам окон: к примеру, верхние перемычки «арок» расширяются раструбами в сторону двора.
В этих фасадах много движения, их хочется рассматривать, сравнивать части, задавать себе вопрос – почему так? Отвечать на него, идти дальше... Целый рассказ тут из фасадной сетки.
Двухъярусные квартиры в доме «Остоженки» собраны в верхней части всех корпусов, в том числе малых, шестиэтажных. Во всех них есть камины, а в малых корпусах камины предусмотрены в каждой квартире на всех этажах. У двухъярусных квартир имеются также и террасы: в малых объемах они смотрят на пешеходный бульвар 3-й Фрунзенской улицы, а в квартирах, сгруппированных вдоль внутреннего контура протяженного корпуса – в сторону двора.
Надо заметить, что в доме «Остоженки» террасы снаружи полностью замаскированы: скорее это патио, открытые к небу и закрытые со всех четырех сторон, в том числе и с внешней – окном. Без предварительного знания догадаться о сложном устройстве верхней части дома невозможно. При том что именно она, а не фасад, по признанию архитекторов, стала «настоящим тетрисом». Как видим, он успешно составился.
Интерьеры лобби, а в «Садовых кварталах» авторы всех домов делали проекты своих лобби – высоких, двусветных – сами, в данном случае, как и фасады, балансируют на грани перекличек с соседями и собственного высказывания.
Во-первых, в них появляются золотистые треугольники – мотив, который хочется назвать прямо-таки символом нашего времени. Тем не менее их не используют для создания гибкой формы, ограничиваясь фоном стены. Зато среди треугольников есть как гладкие, так и рельефные – что кажется перекличкой с решением фасадов, где известняк шершавый (шлифованный) в основной плоскости, и гладкий (полированный) в откосах. Кстати сказать, полированные откосы благодаря такому приему – темнее, и на них видны срезы доисторических раковин.
Проект лобби. ЖК Садовые кварталы II квартал, корпуса 2,7-2,10
© АБ «Остоженка»
«Основной идеей интерьеров входных групп было – связать все вестибюли «золотой лентой», – говорит Ксения Бердникова, главный архитектор проекта.
Действительно, входные группы – просторные рамки со стеклянной стеной, их пространство, особенно вечером, светится теплым золотистым светом. Камень с фасадов заходит внутрь, черные элементы перекликаются с черными вставками снаружи; хотя в интерьере их роль активнее, нежели фоновая.
Первый эскиз интерьеров входных групп, 2016 год.
ЖК Садовые кварталы II квартал, корпуса 2,7-2,10
ЖК Садовые кварталы II квартал, корпуса 2,7-2,10
© АБ «Остоженка»
Самый яркий элемент лобби в доме «Остоженки» – черная винтовая лестница. Вечный, практически не устаревающий прием эффектной организации пространства.
Таким образом оба авторских дома, один «Резерва», другой «Остоженки», завершают длительную – 18-летнюю! – эпопею строительства знакового московского комплекса «в самой середине» элитных Хамовников. Комплекс этот стал ядром, своего рода «стержнем», смысловым и пластическим, и в истории московского жилого строительства последних десятилетий, и в пространстве города. Этакий он «гвоздь программы». А два авторских дома, каждый по-своему, завершают его. Переговариваясь между собой, но не забывая и о собственном характере, индивидуальности высказывания.
«Остоженский» дом в получившемся разговоре – более диалогичен.



