Art House residential complex
Copyright: © Sergey Skuratov ARCHITECTS
Speaking of art, it appeared here presented by Gary Tatintsian Gallery, designed in 2013 by Sergey Tchoban; the entrance is from the river side, down the stairs, into the space separated by the “archaeological” slope, which Sergey Skuratov deliberately set up here, interpreting his newly-designed project as an “ancient monument”. Then the Art House became the springboard for a massive urbanist project named “Artkvartal” (“Art Quarter”): in order to promote the idea, in 2014 they opened on the top floor of Art House – temporarily, twice in two months – the club called Door 19. In 2015, on the neighboring land site, further to the north and higher up the Nikolovorobinsky Alley – again, temporarily – opened yet another club, EMA, which got its name from the former Soviet factory of “electric medical apparatuses”. After the club was closed, in the northern part of EMA started the construction of the first stage of the housing complex NV/9, which basically stands for “Nikolovorobinsky, 9”, which was developed by State Development in collaboration with another development company, INSIGMA. Today, the construction is all but completed, and the scaffolding has been removed. The authors of the project are Irene Rimashevskaya and the architectural company “Arkhkvartal”. The buildings stand on a slope with a height drop of about 8 meters; on the alley side, the building tactfully hangs over the two-story brick façade – a fantasy inspired by the “quilling mill” built here in 1877.
High-end housing complex NV/9 ARTKVARTAL. The reconstruction project in the Bolshoy Nikolovorobinsky Alley. The building is converted into a housing complex.
Copyright: © Sergey Skuratov ARCHITECTS
The Nikolovorobinsky project by Sergey Skuratov is the second stage of NV/9, built by INSIGMA. Its land site is the part of that same factory – it stretches along the Tessinsky Alley and stops at a crossroads that essentially is the center of the neighborhood that borders on the Serebryanicheskaya Embankment. It is also situated the closest to Art House, a building with a reputation, as well as an integral and meaningful image. Therefore, Sergey Skuratov, according to his own words, interpreted his new project designed for the Tessinsky Alley rather as a background for Art House.
Yet another difficulty is that the land site is full of buildings constructed at different times. In the second half of the XIX century, still before the EMA factory was built, this territory included the quilling mill. The project provides for preserving the street facades of two of the mill’s buildings, even though they do not have a protected status: the facade of the 2nd office building on the Nikolovorobinsky Alley (1883, architect Vasily Barkov), and three bottom floors of the most conspicuous building standing at the crossroads (1895, architect Sergey Kalugin, later on the coauthor of Boris Freidenberg in the building of the Petrovsky Passage). Its corners were originally built as romantic towers, whose battlements, however, avoided the fate of being lost in later buildups.
Facade of the building on the Tessinsky Alley, 1890
Copyright: the Central Archive of Scientific and Technical Documentation of Moscow, the Yauza Part
The eastern unit on the Tessinsky Alley chiefly refers to the 1960’s, just like the constructions in the yard do. Last time around, they were reconstructed in 2008-2012 for the recent owner, one of the divisions of the Rosset state corporation; all of the later-built constructions will be torn down.
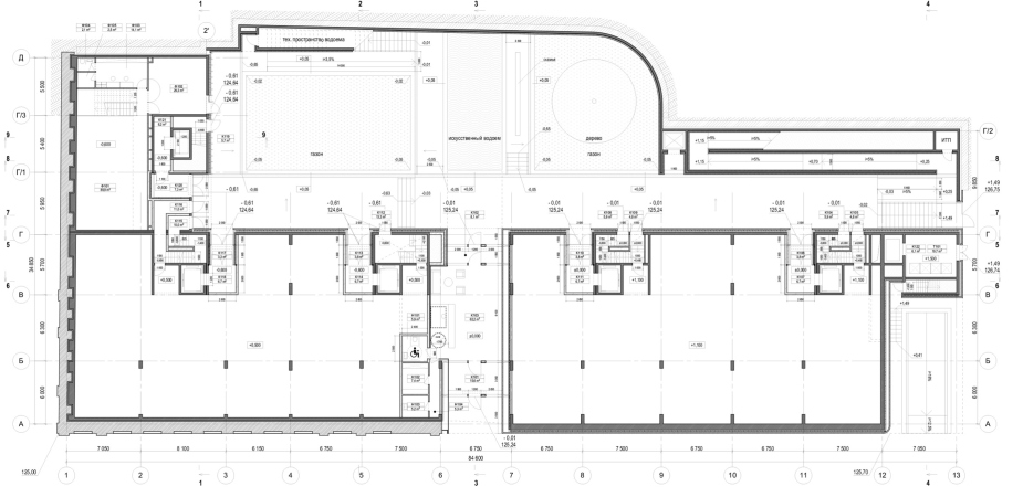
The two buildings on the Tessinsky alley will give way to a single volume of about the same scale, while the deconstruction of the inner structures will help clear the yard space. Its gently sloping surface will be leveled up to the elevation of the sidewalk of the Tessinsky Alley, providing a barrier-free access to the yard at the joint of the new and old facades through a “lobby” arch.
In the yard, we are welcomed by a small manmade water reservoir – a memory of the Serebryanichesky Ponds. Right of the “pond”, there is a large wide-branching tree, one of the signature techniques of Sergey Skuratov’s. There is also a lawn on the left. The pedestrian trail running between the residential buildings connects entrances and sections.
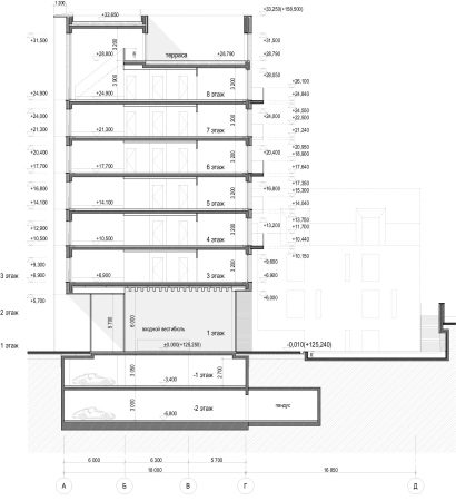
Due to the fact that the height difference between the land sites of the first and second stages is about 5 meters, the south border of the yard is preserved by a retainer wall with staircases and ramps. Such prominent and conspicuous terraces, generally a common feature for the Vorontsovo Pole, are not devoid of a spatial intrigue: the yard ends up being totally isolated and completely private.
The reconstruction project in the Bolshoy Nikolovorobinsky Alley. The building is converted into a housing complex.
Copyright: © Sergey Skuratov ARCHITECTS
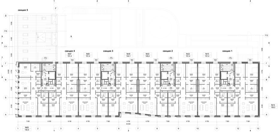
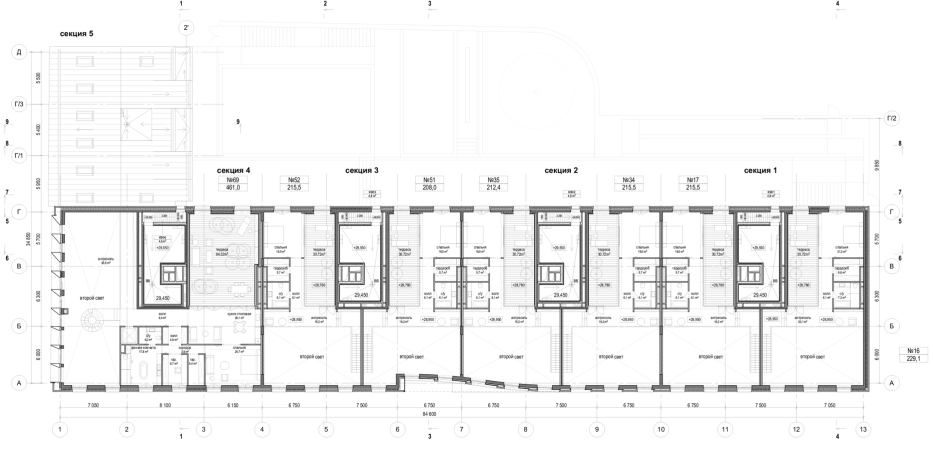
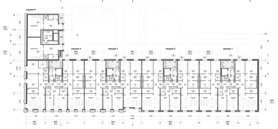
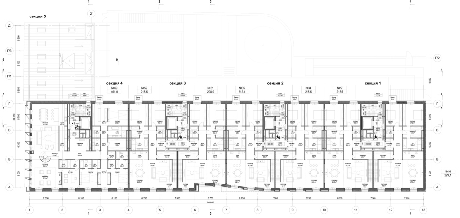
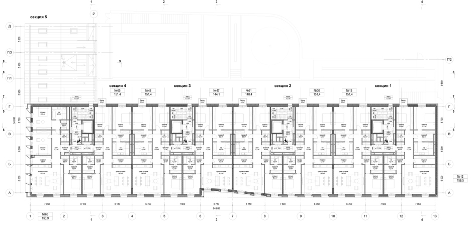
The construction of the house itself is also quite sophisticated. There are four housing sections standing along the Tessinsky Alley. There is 1.5 meter of technical space between the apartments of the bottom floors and the underground parking garage, which makes it possible to raise the floors above the sidewalk and muffle the car noise coming from the garage. The apartments have from one to four bedrooms, the living rooms look out the sunny south facade on the Tessinsky Alley, the bedrooms – to the northern yard side. The small apartments only look south.
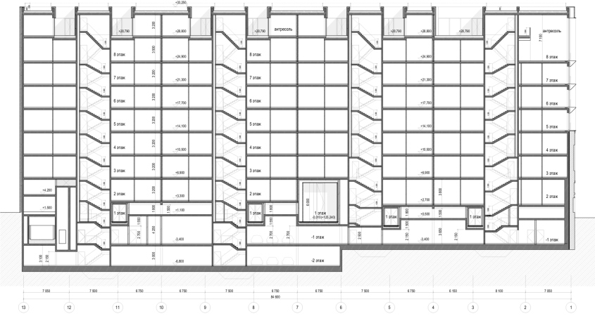
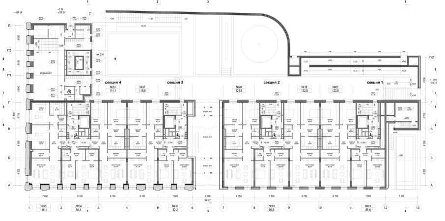
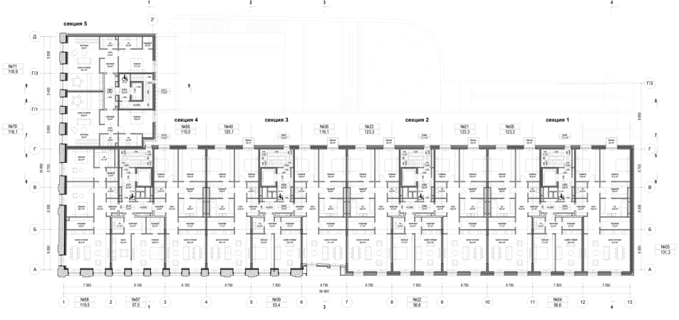
The penthouses on the top floors, the seventh and eighth, 7.1 meter tall, are defined by the architects as “apartments with attics” that occupy no more than a third of each of the apartments. These double-level apartments provide for a possibility to install a fireplace and have a patio on the roof of the house: the terraces are surrounded by walls from all sides, which make them akin to the little yards of Italian apartments. The most luxurious apartment of all is situated at the west end of the building – it has four bedrooms and a double patio. The double-level apartments also occupy one and a half of the top floors on the Nikolovorobinsky Alley; its two bottom floors are occupied by a fitness center.
The plastique of the buildings is based on a combination of three materials: brick, new and old, and bronze.
The preserved historical facades, cleared from the stucco, will yield the dark-red “factory” brick of classic proportions. The plinth-shaped brick forms a pattern of thin stripes of the “palatine” Roman kind, bringing up associations with the Patrician palace (and here we are remembering the “pond” in the yard, which is quite fit to play the role of the impluvium; for a “premium-class” house, the analogy is quite appropriate).
The reconstruction project in the Bolshoy Nikolovorobinsky Alley. The building is converted into a housing complex.
Copyright: © Sergey Skuratov ARCHITECTS
The brick, which varies its shades from brownish gray to almost black, is meant to set up a dialogue with Art House, which will be particularly noticeable when one goes down the Nikolovorobinsky Alley or approaches the house from the Tessinsky Alley, where NV/9 demonstrates its laconic surfaces, completely covered in brick. The same design of dark brick is applied to the retaining walls in the yard.
The reconstruction project in the Bolshoy Nikolovorobinsky Alley. The building is converted into a housing complex.
Copyright: © Sergey Skuratov ARCHITECTS
The south facade on the Tessinsky Alley presents a rather sophisticated picture, full of nuances. In its lower section, the new volume gets a horizontal risalit that continues the line of the preserved house, designed by Sergey Kalugin. In the point where the old and the new facades meet, as well as above the niche of the main entrance, the wall makes a smooth inward bend, forming a “fold” in the vein of the architectural curtains by Giulio Romano, thus accentuating the entrance. Meanwhile, the risalit stays stubbornly and firmly in its place; it is marked with an Indentation pattern of prominent brick strokes. A similar stroking pattern forms graphic shadows of the pilasters in the second (also new) tier of the facade of the western side – not on the whole facade but only where the piers between the windows coincide with the ones that are in the old facade. Due to the fact that the rhythm of the upper floor is slightly broader, they do not always coincide. The curving plastique and the brick strokes look at their absolutely best in the midday light that accentuates any ledges most vividly, particularly on a sunny day.
The reconstruction project in the Bolshoy Nikolovorobinsky Alley. The building is converted into a housing complex.
Copyright: © Sergey Skuratov ARCHITECTS
As we can see, the south facade is telling an interesting story, painting a picture of a city that grows upwards in several layers. Together with the laconic “fortress” wall of Art House, standing across the Alley, the resulting effect is akin to that of Tallinn or even Istanbul – where the newly-made structures meet the old ramparts. And, although this place never in fact had proper fortress walls – it had baths, gardens, and ponds – this does not really matter: first, something new had to appear, and, second, this effect is unobtrusive, this is not a pseudo-gothic castle, which are, sadly, quite abundant in Moscow, and not a stylization – rather, this is a story that can give the place a new aura and taste, developing the theme of imaginary history, proposed by Skuratov in Art House.
The reconstruction project in the Bolshoy Nikolovorobinsky Alley. The building is converted into a housing complex.
Copyright: © Sergey Skuratov ARCHITECTS
The third material is the copper and zinc alloy, the polished architectural bronze. It gives a shiny golden hue, and, if we compared the plinth-shaped brick with the ruins of the palatine palaces, bronze can remind us about the patrician mirror. This association is a fleeting one, though.
The reconstruction project in the Bolshoy Nikolovorobinsky Alley. The building is converted into a housing complex.
Copyright: © Sergey Skuratov ARCHITECTS
A bronze grille is framing the windows of the buildup of the west facade; bronze is also extensively used in the west facade of the minor building overlooking the yard, as well as in its roof.
The reconstruction project in the Bolshoy Nikolovorobinsky Alley. The building is converted into a housing complex.
Copyright: © Sergey Skuratov ARCHITECTS
The reconstruction project in the Bolshoy Nikolovorobinsky Alley. The building is converted into a housing complex.
Copyright: © Sergey Skuratov ARCHITECTS
The meaning of this golden hue can be understood in a whole number of ways: from echoing the golden domes of the Serebryaniki Trinity Church to the premium “golden” status of the expensive high-end building.
However, probably, the real reason for bronze appearing in the Sergey Skuratov project is because of the sun. Let’s just imagine for one brief moment how the golden facade of the minor building will reflect the rising sun, casting reflections into the yard and filling it with light. And then – how the chamfers of the west facade will catch the reflections of the setting sun in the west. Even now, if we are to look in the evening at the crossroads from the west side, the windows of the Sadko business center, the former building of the Institute of Nitrogen Industry, a 16-story slab, built in 1976, will show us a promo version, a teaser of the effect that the windows and window frames of the new house will produce at sunsets. During that moment, one wants to remember not only about the bronze Roman mirror but also about the bronze window frames of the 1970’s, also echoed by the newly-designed house.
The frames are not identical – they are equipped with chamfers: all of them are situated on one side, gazing southwest. They catch the glints of the summer sunsets, and, in addition, their width gradually increases from left to right, as the possibility to catch the sun rays decreases. The bronze stripes before the entrance are fitted into the “fold” of the facade in a similar “gradient” fashion.
The reconstruction project in the Bolshoy Nikolovorobinsky Alley. The building is converted into a housing complex.
Copyright: © Sergey Skuratov ARCHITECTS
The reconstruction project in the Bolshoy Nikolovorobinsky Alley. The building is converted into a housing complex.
Copyright: © Sergey Skuratov ARCHITECTS
The bronze also covers the joint of the chamfer before the lobby: it has a chance to catch the morning sunlight and “ricochet” it to the curve on the opposite side, or, the other way around, serve as a mirror in the evening. As we can see, the whole house is “fine-tuned” to the sun – it catches it with all the zeal of a resident of cloudy Moscow, where every sunbeam is worth its weight in gold.
The brick also supports the reflections theme: the risalit from the side of the red historical facade gets a stretching gradient of terra cotta insets – the overall “plinth” mass occasionally bursts out with a golden glitter.
The reconstruction project in the Bolshoy Nikolovorobinsky Alley. The building is converted into a housing complex.
Copyright: © Sergey Skuratov ARCHITECTS
In a word, just like on an Ars Nova picture, there are plenty of subtleties here, and none of them is excessive. This house is much “warmer” than Art House; it is more “Moscow”, which is more motivated by the inclusions of the preserved facades and the obliging neighbors – two bold statements must not contradict each other, and Sergey Skuratov was completely right speaking about the background function of the new house. It has a different purpose: the project catches the “quilted blanket” effect inherent to this place – and the house, engaged in a peer-to-peer dialogue with its neighbors, imbibes the effect of this compound city with its rich history – and we are grateful for that.
The reconstruction project in the Bolshoy Nikolovorobinsky Alley. The building is converted into a housing complex.
Copyright: © Sergey Skuratov ARCHITECTS
The reconstruction project in the Bolshoy Nikolovorobinsky Alley. The building is converted into a housing complex.
Copyright: © Sergey Skuratov ARCHITECTS
