Another key initiative from Sirius and its founding organization, the Talent and Success Foundation, is the Presidential Lyceum, established in 2019 as an advanced, multidisciplinary school offering continuous education for children aged 3 to 17. The current lyceum operates in a 2020 building located east of the Olympic stadiums, on the edge of a low-rise residential district behind the Sochi Park Hotel. In 2023, a new residential building was added to the campus, designed in a style aligned with earlier Sochi architectural preferences.
At the opening ceremony, it was announced that a new lyceum campus would be built, based on a design by ATRIUM Architects. The new site lies 2.5 km west of the Olympic stadiums, near the laboratory complex. This part of the Imeretian Lowlands leans more toward Adler in character. Unlike the bustling core of Sirius – concentrated along the shortest line between the train station and the sea – this area behind the stadiums is quiet and tranquil, though still somewhat empty for now. Nearby seaside apartment hotels are mostly mid- or even low-rise buildings with natural wood façades. Also close by (just 20 minutes on foot or 10 by scooter) is a dendrological park of southern trees. It’s a spacious and green location.
What’s more, the lyceum campus is being built right on the edge of an ornithological reserve established in 2010 to protect the ecosystems of the Imeretian Lowlands ahead of the Olympic construction. The reserve is structured around four large lakes that stretch in a chain across the entire federal territory, parallel to the sea.
In other words, the students will have a chance to study birds as well.
Sirius educational complex. The master plan
Copyright: © ATRIUM
And the architecture they’re getting is as cutting-edge as it gets. It hardly needs repeating that ATRIUM is widely recognized as an expert in educational architecture – the project clearly reflects their skills and signature techniques.
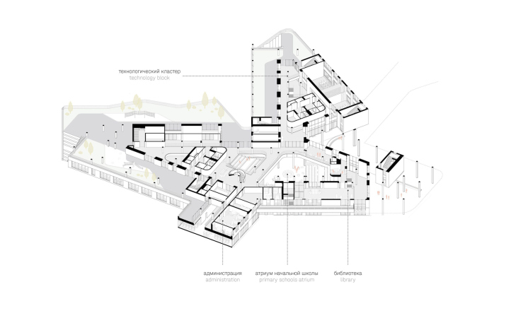
First and foremost, let’s look at the “puzzle” of the functional layout.
Sirius educational complex. The functional zoning
Copyright: © ATRIUM
Since the site is long and situated in a natural setting, and since the lyceum program includes everything ranging from a kindergarten – with a swimming pool! – in the western part of the site, to a high school in the eastern section, as well as a congress center (available for external conferences), cafeterias, gyms, and various themed clusters for the main phase of school education, all these facilities needed to be, on the one hand, compactly arranged and, on the other, spaced out wherever necessary.
In other words: to connect and to separate at the same time.
That’s why the architects treated the lyceum complex not as a single, solid block – which might have been suitable in a denser urban context – but as a “town” in a park. Rumor has it, the idea of a lyceum as a “city” came from the students themselves, who were surveyed before design began.
There are boulevards, alleys, walkways, and passages here – including heated connections between all buildings and blocks, creating what’s called a “winter axis” for comfortable movement during colder months. This solution echoes those used in 18th-19th century estates and also in research institutes of the modernist era. In the central part of the site, these warm passages descend to ground level, while at the edges, they are elevated on long, slender legs, which frees up the space underneath for walking paths through the park and adds visual intrigue to the landscape. Supporting this same goal – enhancing spatial variety and movement options – are stairs, amphitheaters, bridges, and rooftop terraces.
And yet, when looking at the campus as a whole, the first thing you notice is how various beams seem to radiate outward at different angles – like a centipede making its way along the lake, with a bit of a spring in its step. The resulting effect is picturesque, dynamic, and full of endlessly shifting perspectives.
It’s important to note, however, that these angles and visual rhythms are not dictated solely by a desire for sculptural variety and aesthetic impression – they’re also the result of careful calculations related to sunlight exposure and wind loads. We’re used to hearing about solar studies, but wind is something architects mention less frequently – yet in Sochi, the evening breeze can be strong, especially during the colder seasons. The fact that this was considered is a major strength of the project. Additionally, the campus design includes sun protection, rooftop solar panels, and green terraces, which – given Sochi’s climate could also help prevent overheating.
So, the complex is conceived as a living organism, in line with ATRIUM’s architectural philosophy – a synthesis of parametric analysis and expressive, sculptural form.
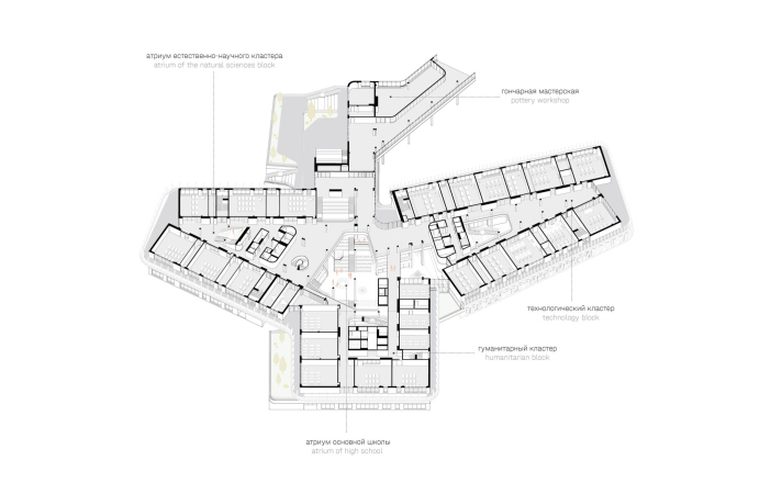
Still, its picturesque character doesn’t equate to randomness. Look more closely at our “centipede”, and you’ll notice not only the “spine” of warm passages but also a rhythmic alternation of patterns: three-pronged star shapes for the school buildings, and more rectilinear “assemblages” of volumes in the kindergarten block and the shared facilities complex, which includes gyms, dining halls, and a conference hall.
Sirius educational complex
Copyright: © ATRIUM
This alternation expresses the function of each block outwardly – “from the inside out”, just as the founding fathers of modern architecture prescribed. The school buildings are wrapped in a spacious white mesh screen, like a “second skin”. In some areas, balconies are suspended between the mesh and the classroom walls, creating shade; the screen and potted trees placed on these balconies (in theory) should provide protection from direct sunlight. In other parts, viewed from different angles, the balconies disappear and the screen connects to the façade via vertical fins – yet the outer mesh remains consistently porous throughout.
Sirius educational complex
Copyright: © ATRIUM
The kindergarten, too, features a mesh screen – echoing the silhouette of the mountains and sloping upward – but it’s denser and more vertically oriented.
Sirius educational complex
Copyright: © ATRIUM
The façades of the dining halls and connecting volumes throughout the complex are clad in thin wooden slats, emphasizing their grounded nature and connection to the natural surroundings. One might see a resemblance here to terraced mountains – or a visual link to the aforementioned seaside apartment hotels, where, pleasantly enough, natural wood is also used on the façades.
And finally, the congress center is conceived as a crystal carved from a limestone-like material, with large diagonal facets. At the same time, it slightly resembles a detachable space module – a shuttle that has landed among the mountains.
Sirius educational complex
Copyright: © ATRIUM
Plenty of associations suggest themselves. For instance, the kindergarten and school blocks resemble mountains growing from the ground – smaller and more protective for the youngest children, like cocoons, which open up as students grow older.
Sirius educational complex
Copyright: © ATRIUM
All the blocks are interconnected by terraces and passageways that spread across the site like natural roots. And finally, the 800-seat conference hall is the “launch capsule”, where students will present their projects and meet professionals.
It’s hard to miss the metaphor of gradual, grounded growth.
The interior organization mirrors these external design choices. Each block has its own multilevel atrium. All of this follows contemporary principles of educational space design: open yet zoned, multi-functional, tall and unified in the center, tapering into balconies and passages along the edges. These interiors are generously lit by natural light – even though no glass roofing is planned – and combine wood, live plants, and color coding for each block. The same logic applies throughout, from the small scale of the kindergarten to the larger scale of the middle and high school wings.
And then there are the staircases – white spiral “shells”.
In short, it’s no surprise that ATRIUM is behind the design of this centipede-like school complex – one of the country’s flagship educational institutions on the shores of a protected lake. Once again, their approach feels at once familiar and refreshingly new.
One more note: the campus includes a large number of spaces that can function independently as public amenities. These include hobby rooms, the congress center, the gymnasium, and even the kindergarten swimming pool. All of them are designed to welcome external visitors. For Imeretinka, which is still developing and doesn’t quite feel like a city yet, this is arguably a vital feature.

