The House of Music, however, is a separate project in its own right, located not in Sochi but much farther north, in Valdai. In addition, it is not a school in the strict sense of the word, but rather a music cluster. Whereas the music school in Sochi is designed for continuous full-cycle education from grade 1 through grade 10, with 300 students and a 300-seat hall, here the focus is on Sirius’s favored format of short-term intensives. The campus will host just 29 students, but the main concert hall, at its maximum transformation, can accommodate up to 436 listeners, with an additional chamber hall for 172. Thus, beyond its educational role, it also functions as a concert, festival, touring, and conference venue – more a philharmonic hall than a school.
Thus, it comes as no surprise that the commission went to Vladimir Plotkin and TPO Reserve, authors of both the Zaryadye Concert Hall in Moscow and the Yakutsk Philharmonic.
House of Music, project, 2025
Copyright: © Reserve
The site lies in the northern part of the town, on the shore of a lake in a place aptly called Zatishye (“Quiet Haven”), by a shallow bay with a – as yet untamed – beach on its cape. Most of the existing trees on the site have been preserved, which largely determined the building’s droplet-shaped form.
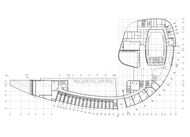
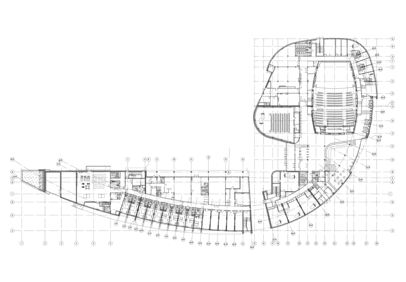
At the same time, the plan is equally dictated by the functions of its two main volumes. Along the lake, at the 50-meter waterfront protection setback, are grouped the large hall, the smaller chamber hall, a café, and dressing rooms. These occupy a curving volume, close to a compact, slightly asymmetrical trapezoid. Further to the south, separated by a double-height atrium-foyer, lies a cluster of rehearsal spaces. The dormitory building for students and teachers is connected to the main block by a climate-controlled overhead passage, which will be freely accessible almost at all times, except during really important high-profile concerts, when the passage doors will be closed. The residential complex also includes a gym, a cafeteria, and a co-working space.
The outline of the plan itself resembles a bass clef – or, for those less versed in music, a large comma.
The spatial and volumetric solutions. House of Music, project, 2025
Copyright: © Reserve
The site also includes plans for a two-story guesthouse with four apartments and an open-air summer stage – both oval in shape. The guesthouse is placed within the inner courtyard, while the stage faces the lake.
Another musical motif complements the “bass clef” of the main volume: the harp. Diagonal lamellae, stretched like strings across the glass façade of the atrium foyer, are designed to be lit along their edges, while the smoothly rising volume of the main stage, clad on the exterior with wood-like panels, evokes the soundboard of a string instrument.
At night, with the illumination on, the building reveals itself not as a single mass, but as an assembly of countless lines and points running in all possible directions.
Here, “strings” are everywhere. The lamellae “strung” across the façade are echoed by glowing lines inside the atrium – some straight, some curved – hovering in space on semi-transparent panels. The entire atrium seems governed by these lines; they are not simply decoration, but rather a visualization of the main directions and intersections of movement.
And yet, the question remains: are they strings – or streams of sound? The subtle relief of the light wall panels suggests yet another association: beams of light. Pure “rayonism”, these panels are! But then again, one might also compare them to a musical score folded like an accordion – or maybe to a stage curtain.
The entrance to the foyer in the evening light from the west side. House of Music, project, 2025
Copyright: © Reserve
Artificial light mingles with daylight, though never fully merging. This deliberate contrast reminds us: a ray of natural light is always straight, while artificial light can bend – like the flow of music.
In any case, light plays a central role. The atrium is visually permeable, translucent, opening eastward toward the lake like a horn. To add even more ambient light, the architects designed the part of the atrium roof on its wide, arched eastern side as being also transparent – made of heated glass so that snow won’t pile up in winter. Notably, the glass ceiling is neither flat nor sloping outward (which might have made the façade resemble a greenhouse); instead, the strip of glazing tilts inward, so as not to interfere with the perception of the curved stained-glass façade with its “strings”. The eastern glass wall has neither base nor cornice; the plan is for the interior floor and the exterior paving to meet at one level, so that the glass with its lamellae will read as a membrane – an almost weightless threshold between “inside” and “outside”.
The summer stage. House of Music, project, 2025
Copyright: © Reserve
The amphitheater, serving both as an extension of the foyer and as a shared space for students and faculty – and occasionally as a venue for chamber concerts – will be drenched in natural light, including the glowing “backlight” of the evening sun, while opening toward views of the lake.
The amphitheater in the atrium from the east side. House of Music, project, 2025
Copyright: © Reserve
The amphitheater’s stepped seating is to be finished in wood, while the outer walls of the halls are clad in wood-effect panels. The double-height volume is supported by round columns – possibly left in exposed concrete if realized as intended. Linking the two levels of the atrium, there is a stair that coils around one of the columns: a sculptural accent in its own right, curving toward the lake with a smooth white “flank”. At the landing, incidentally, excellent vistas are expected to open up.
The atrium is inscribed into the site’s natural height difference, dropping about three meters along the west-east axis – as if leading us inevitably toward the water.
Framing the “string” lamellae of the eastern façade – and in fact, wherever possible – the façade breaks down into “keys” of angled piers. If the “strings” stretched across the glass of the foyer radiate mostly from a single point, the piers are all tilted in one direction, at a precise angle of 7 degrees both on the outer façade and at the entrance from the inner courtyard.
House of Music, project, 2025
Copyright: © Reserve
Elsewhere, the rows of piers are paired with latticework – for instance, in the pergola of the triangular second-floor terrace adjoining the dressing rooms, designed as a retreat for performers or, who knows, perhaps even as a setting for informal meetings.
Transparency and latticing – this is one of the two recurring motifs here. It is echoed in the “pergola” canopies, in the trellised terrace of the dormitory block.
In this same lineage one might even mention a decidedly Corbusian gesture: the gallery beneath the terrace, raised on a platform above ground. The spacing of the round supports is quite broad, and the gallery ceiling is pierced by four oval skylights. An attractive solution, vividly evoking association with the Palace of Young Pioneers on Moscow’s Lenin Hills.
House of Music, project, 2025
Copyright: © Reserve
The second theme is its opposite – it is all about sculptural curves. In their description, the architects emphasize the fluidity of every line. Ovals dominate here far more than angles. The oval skylights echo the plan of the summer stage, of the landscaped flowerbeds, and of the guesthouse. In the latter, however, the lower oval is elongated lengthwise, the upper one crosswise – together forming a shape reminiscent of a rotating mechanism.
But it is not only about ovals alone! For what seems to be the first time in Vladimir Plotkin’s portfolio, we see a wealth of asymmetric, non-linear forms. The western façade of the concert block – the very face that greets visitors upon entering the complex – has been transformed into an undulating, asymmetrical ribbon. To the left, there is a small auxiliary entrance, while to the right the main entrance is recessed deep into the body of the building. The right-hand pylon recedes, the left one projects forward. Linking them is a canopy with a curved edge but a perfectly flat underside, clad in glossy black metal and patterned with a tight orthogonal grid of small point lights – a prelude to the luminous lines within.
House of Music, project, 2025
Copyright: © Reserve
On the largest pylon, the name “House of Music” will appear, encircled by abstract musical notes – not simply illuminated, but rendered in a double-layer façade of glass-fiber concrete, where the relief of the inner layer is lit indirectly, with reflected light.
House of Music, project, 2025
Copyright: © Reserve
The projection, the recessed entry, and the “arch” beneath the covered walkway together shape the central zone into a kind of pocket square – an intuitively obvious heart of the entire complex.
House of Music, project, 2025
Copyright: © Reserve
Here, as one quickly notices, two “plasticity paradigms” meet: the airy gallery on slender columns, the double span of the covered bridge that both links the buildings and opens outward, and the pliant “wave” of the volumes – antagonistic neighbors, come to think of it. These two “plasticity paradigms” can be read as the opposition between “classical” modernism and today’s favored nonlinearity. Or, if you prefer, between Le Corbusier’s pre-war rigor and the sculptural freedom of his chapel at Ronchamp.
The key point is that two approaches are brought together here, set in contrast yet without real conflict: one could be called arithmetic, the other algebraic; or, in other words, one grid-based, the other sculptural. One might imagine them colliding at the entrance, and as you move through the atrium they produce something new – not a fusion exactly, but a kind of harmonization of antagonism. A cross-hatching of light, an effect of motion, of something unfinished and ongoing, like music itself… As if being a part of its art (and the foyer is indeed a part of it, belonging to the concert halls and all) changes everything; leading the visitor out of the dense, knotted, multi-directional square before the entrance, and along the lines of the light fixtures, further on toward the luminous surface of the lake. Clearly, there is a well thought-out staging of emotions here, carefully directed at the visitor. The spatial experience unfolding along the main axis is meant to shift noticeably: first we move along a light colonnade, then enter a “cave sanctuary”, and eventually, reborn through music, emerge toward the lake.
Moreover, the atrium – sunken at the western entrance – opens eastward in a broad arc, as if it were not part of the building at all, but an autonomous volume embedded within it, composed of another substance entirely: glass, light, space, and structure. It is as if a gust of Boreas pressed one side inward while stretching the other outward.
And yet, on closer inspection, this intricate “scenography” is strung upon a firm and lucid logic of axial planning.
The site, with its small promontory, belongs for the most part to the mainland, but because the tree-free plot is elongated, a principal west-east axis is formed – this is also the line that leads inward from the access road. The axis does not quite follow a parallel… If we produce a protractor, we will find that this axis deviates by 7 degrees and is equal to what? Exactly! The angle of the piers on the building’s façade.
At the head of this axis lie the entry and parking area; along its line, a segmental “slice” of the hotel and rehearsal spaces is cut. Onto it, finally, the foyer is strung – its exit leading to a straight boulevard that runs down toward the beach.
The location plan. House of Music, project, 2025
Copyright: © Reserve
Thus, all the hotel rooms face south, receiving maximum possible sunlight.
Looking further, we see that the exterior, southeastern arc of the façade is essentially bicentric. By plotting both circles, we discover that the smaller, eastern arc belongs to a tight circle that also encloses the guest-apartment building. If we link this circle to the “tail” of the sports hall, we arrive at the outline of nothing less than a bass clef – or a comma.
By locating the center of the smaller circle, we discover three things. First, the centers of the small and large circles that define the façade arc lie on the same straight line. Second, the center of the large circle is situated closer to the north, exactly at the water’s edge of the lake. And finally, the axes converge on the center of the small circle: the axis forming the open passage between the concert hall and the hotel; and the axes that define the beginning and end of the atrium’s luminous ceiling. If we draw a line from the southern edge of this glass ceiling through the same center point, it arrives at the center of the oval guest-apartment building. And if, again through this center, we draw a line from the summer stage, it reaches the point where the arc of the hotel wing intersects with the main axis. One more thing: if we extend a line from the intersection of the hotel corridor’s outer arc with the main axis, it leads us to the northern edge of the stage’s oval.
Whew! That seems to cover it all. Though in fact, there is more: between the center of the small circle, the two main axes, and the western boundary of the concert hall, a perfect square is formed. It is divided according to the Golden Section by the western line of the rectangle that outlines the main part of the building, passing through the western corner of the second-level open terrace and through the plane of the right-hand entrance pylon. It is likely that more such lines could be traced here within the same overall logic – for example, not two but three, or even five arcs and thus circles with their centers, which is clearly echoed in the façades. These relationships are not immediately legible in three dimensions, yet they “carry” the entire compositional logic of both the principal buildings and the whole site.
Which means, of course, that none of these solutions are accidental – contrary to what might seem at first glance. Considering just the axes, arcs, and patterns already uncovered, it is clear that the forms here are not the product of automatic sketching in the spirit of “that’s how I see it”, but the result of geometrically – and indeed functionally! – grounded design.
The most rigorously justified element is the arc – decisively bicentric – of the hotel corridor, which continues into the covered bridge and then on into the rehearsal block corridor. This line, the internal axis of the residential and teaching wing, arrives at the node where it connects with the concert hall portion. Here are the doors allowing temporary separation of the residential wing, as well as the “grand” staircase. From this point also begins the bridge of the second level, wider than the corridor itself, spanning the foyer atrium and leading to the balcony level of the concert hall.
Inside, both concert halls recall the Zaryadye Hall, though on a smaller scale. They are designed for natural acoustics – for which the developers consulted Anatoly Livshits, PhD, one of Russia’s leading experts. The acoustic panels are to be finished with natural wood veneer.
Summing up: the House of Music is a full-scale concert and educational complex, technically meticulous and, in architectural terms, conceived as a kind of “catharsis”. This is a catharsis rooted in the transformative power of music itself, and architecturally it begins with a sharp contrast: on the one hand, the linear, grid-like language of structure, and on the other, the sculptural, volumetric fluidity of contemporary form-making. The tension between the two is not left unresolved; it moves toward a kind of apotheosis, where the architecture opens up toward space, toward transparency, toward lightness – an effect metaphorically tied to the strings of a harp.
All of this is composed and held together by the immanent logic of axial alignments. For visitors, the carefully staged sequence of emotional impressions will likely feel more immediate. Yet, at first glance – say, on the renderings – the whole thing seems complex, perhaps even overly complex. The building pulls you along; it unfolds, its facades tilt, lines flow only to be crossed by a transverse “bow stroke”. It is, in a sense, like jazz: a smaller sibling of Zaryadye, but livelier, and distinctly less predictable. There is so much to examine and admire here – so many ideas, allusions, contrasts, and transitions – that one cannot help but recall the term “deconstruction”, with its early-2000s experiments. Today, the architectural fashion leans toward more concise, distilled, less “crafted” forms – built not on a one-two-three-four rhythm, but on a simpler one-two. Something closer to the form of the guest-apartment house here, which looks like the winding key of this whole “music box”.
What I find more puzzling is the “language” of the green roof covering the sharp-angled service block by the sports hall – the first thing visitors see upon arrival. Why is it shaped that way? Or, for that matter: why is there no pier, no direct access to the water?
House of Music, project, 2025
Copyright: © Reserve
And yet, the project has one essential, positive quality that makes it truly compelling. It draws you in – something you’ve no doubt sensed from this very text. Step by step, it reveals new details, each more intriguing than the last. It unfolds the way the building itself is meant to unfold, for its users and visitors.
There are projects out there that you can glance at and immediately “get the picture”. This one is definitely different.
