К проектированию школьных зданий Quantum, которых в стране планируется открыть довольно много, как минимум по две Астане и Алматы и одну в Шымкенте, – пригласили архитекторов ATRIUM как увлеченных и вдумчивых специалистов по работе с современными проектами школ.
Частная школа QUANTUM
Фотография © Евгений Ткаченко / предоставлена Проектно-творческая мастерская «Атриум»
Частная школа QUANTUM
Фотография © Евгений Ткаченко / предоставлена Проектно-творческая мастерская «Атриум»
На днях ATRUIM презентуют книгу, написанную на примерах из их собственной практики проектирования школьных зданий вкупе с оценками экспертов и другими образцами, своего рода компендиум по вопросам работы с образовательными учреждениями, благо опыта у архитекторов много, больше 20 лет, начиная со школы-интерната в Кожухово.
Школа Quantum в Астане – самое новое из зданий, спроектированных ATRIUM, строительство которого завершено. Поэтому мы решили рассказать о ней именно сейчас. А книгу – всем рекомендуем.
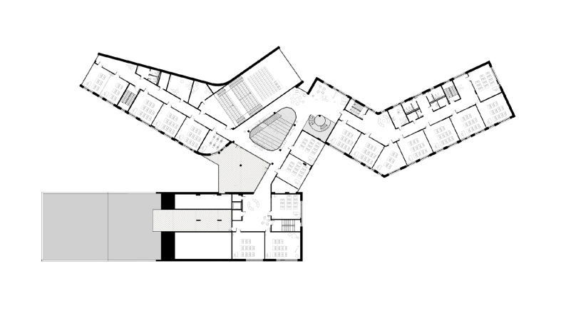
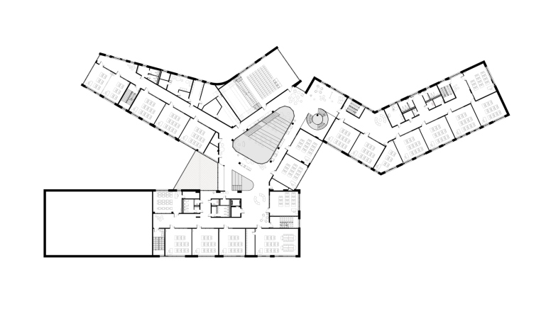
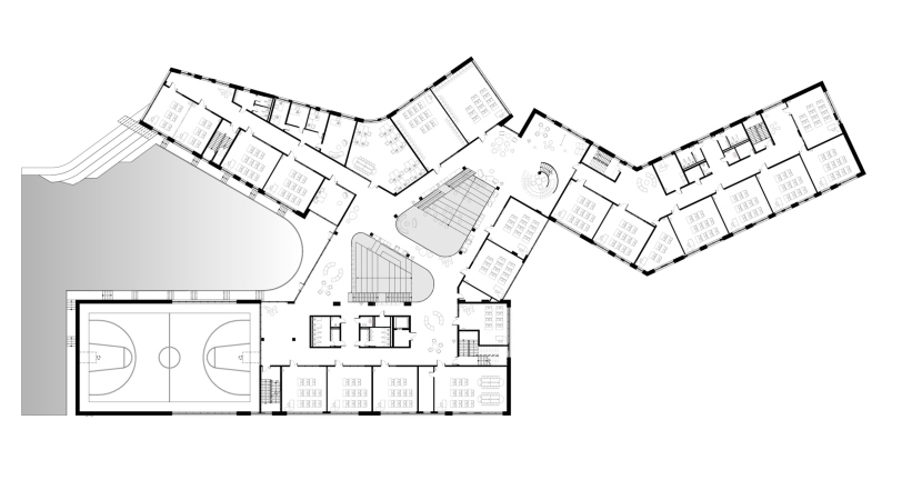
На данный момент мы успели поработать над концепциями трех зданий в рамках сети частных школ Quantum STEM. Школы в Алма-Ате и Шымкенте пока находятся в стадии проектирования, здание в Астане – построено, причем в удивительно краткие сроки, от сдачи концепции до завершения стройки и начала работы школы в сентябре 2021 года прошло всего 9 месяцев, это очень мало. Все три проекта разные, они ни в коем случае не типовые, это индивидуальная архитектура; пожалуй, их объединяет общий подход – в каждом случае объемы с разной функцией выглядят по-разному, но «срастаются» через общественное пространство атриума, которое становится основой для передвижения, общения, «перетекания» пространств и делает более сложным, а следовательно, интересным их восприятие.
Задача, которая была поставлена перед нами в случае школы в Астане – нельзя сказать, чтобы какая-то исключительная, но нам она очень близка и интересна – «просто» спроектировать школу исходя из требований современного образования: с пространством, которое предполагает разведение потоков, в частности, средней и старшей школы (дети здесь учатся с 6 класса) – и одновременно дает возможности для общения, многофункционального использования и создает разнообразные пути движения. К примеру, в данном случае можно выйти на уровень земли и с первого, и со второго этажа, и в то же время геопластика создает – на совершенно гладком и ровном рельефе города Астаны – двор, защищенный от ветра и холм, с которого открываются виды на окрестности. Другая особенность – в Астане у нас не один, а два амфитеатра в общем атриумном пространстве, такое решение не то чтобы часто встречается.
Большую симпатию у нас вызвало также пожелание сделать здание современным, удобным и актуальным, без каких-либо специфических отсылок к национальной культуре.
Задача, которая была поставлена перед нами в случае школы в Астане – нельзя сказать, чтобы какая-то исключительная, но нам она очень близка и интересна – «просто» спроектировать школу исходя из требований современного образования: с пространством, которое предполагает разведение потоков, в частности, средней и старшей школы (дети здесь учатся с 6 класса) – и одновременно дает возможности для общения, многофункционального использования и создает разнообразные пути движения. К примеру, в данном случае можно выйти на уровень земли и с первого, и со второго этажа, и в то же время геопластика создает – на совершенно гладком и ровном рельефе города Астаны – двор, защищенный от ветра и холм, с которого открываются виды на окрестности. Другая особенность – в Астане у нас не один, а два амфитеатра в общем атриумном пространстве, такое решение не то чтобы часто встречается.
Большую симпатию у нас вызвало также пожелание сделать здание современным, удобным и актуальным, без каких-либо специфических отсылок к национальной культуре.
Итак, здание построено очень быстро, за 9 месяцев. Архитекторы ATRIUM разработали концепцию и консультировали казахскую компанию, которая работала над рабочей документацией – приглядывали за проектом. Только интерьеры реализованы без непосредственного надзора, хотя все основные идеи в них также воплощены. В целом авторы довольны реализацией, хотя не скрывают своего удивления ее мега-скоростью.
Школа расположена в центре Астаны, рядом с центральными, регулярно спланированными парками новой столицы. До «Ханского шатра» Нормана Фостера – 800 метров к востоку. Рядом, через улицу – жилой комплекс, город в этой части растет и развивается.
Частная школа QUANTUM
Фотография © Евгений Ткаченко / предоставлена Проектно-творческая мастерская «Атриум»
Здание состоит из трех корпусов: спортивный вытянут вдоль южной границы участка, его протяженный объем, облицованный панелями цвета теплого желтого дерева, приподнимает кровлю к обоим торцам, так что в ракурсе получается похоже на качели; эффект поддержан остеклением, которое нарастает с востока и запада.
Частная школа QUANTUM
Фотография © Евгений Ткаченко / предоставлена Проектно-творческая мастерская «Атриум»
Частная школа QUANTUM
Фотография © Евгений Ткаченко / предоставлена Проектно-творческая мастерская «Атриум»
Два учебных корпуса: западный для средней и старшей школы, восточный для начальных классов, тоже изогнуты в виде «птичек-галочек», каждый с широким «размахом крыльев», – но уже в плане, что хорошо видно при взгляде с коптера.
Частная школа QUANTUM
Фотография © Евгений Ткаченко / предоставлена Проектно-творческая мастерская «Атриум»
Все три корпуса объединены атриумом, и, вспоминаем слова Антона Надточего, атриум тут не просто большой, а и не простой. В нем два амфитеатра, они расходятся вверх и в стороны от центрального пространства, в уровне 2 этажа между ними навесной мостик-переход. Но в верхней части амфитеатры развиваются по-разному. Один – побольше, третий и четвертый этажи окружают его галереями.
Второй амфитеатр меньше, в потолке 3 этажа над ним – треугольник с батутом. Все запасные меры безопасности, конечно, предусмотрены, включая двойные сетки, а опыт подпрыгивания на батуте, наверное, незабываемый.
В том же пространстве атриума существует еще и винтовая лестница – как уточняют архитекторы, по амфитеатрам можно подняться на 2 этаж, а по винтовой лестнице выше, на третий и четвертый.
Закрытый актовый зал в здании тоже, конечно же, присутствует, он выстроен параллельно большему из открытых амфитеатров в верхних этажах западного корпуса. Главный вход в него сверху, с галереи общественного пространства.
Словом, в центре возникает пространственный узел – иначе как-то даже и не скажешь. Снаружи он выражен в ступенчатом повышении скошенных в плане стеклянных фасадов: в пазухе между корпусами возникает этакий стеклянный зиккурат. На каждой кровле терраса, на них тоже можно выйти летом. Над большим амфитеатром группируется стайка из пяти зенитных фонарей и, кроме того, весь атриум хорошо освещен через стеклянные стены.
Частная школа QUANTUM
© Проектно-творческая мастерская «Атриум»
Так центральный пространственный узел «прорастает» вовне: входить и выходить можно на разных уровнях, многоуровневость внутреннего пространства получает развитие в ближайших к зданию формах ландшафта. На холм, как мы помним, можно выйти со второго этажа, войдя на первом и поднявшись внутри по лестнице одного из амфитеатров: так возникает пространственное «кольцо», связывающее внутреннее и внешнее пространство.
Но в окруженной степями Астане еще и довольно ветрено. Поэтому холм полезен не только для красоты и разнообразия, он еще и защищает входную площадь от воздушных потоков. Уличные амфитеатры устроены на склоне холма и изнутри, и снаружи.
Частная школа QUANTUM
Фотография © Евгений Ткаченко / предоставлена Проектно-творческая мастерская «Атриум»
Распределение функций. Частная школа QUANTUM
© Проектно-творческая мастерская «Атриум»
Любопытно, что ландшафт: и контуры холма, и мощение, подчинены рисунку круглящихся линий, они смягчают углы треугольников и трапеций, напоминая рисунок мощения в ЖК «Символ». Похожим образом круглятся и контуры галерей в атриумном пространстве – так появляется еще одна, теперь уже образная, перекличка между ландшафтом снаружи и общественным пространством внутри.
Между тем очертания собственно корпусов – асимметричные, но скорее угловатые, построены на сочетании плоскостей, не на изгибах. Впрочем, построение, с одной стороны, почти симметричное, основанные на удвоении плана-«птицы», снаружи напоминает «многолучевую звезду», которая считается одним из самых удачных вариантов композиции современного школьного здания, поскольку дает максимум светового контура для естественного освещения классов – здание, определенно, использует достоинства этого подхода.
Снаружи корпуса заметно отличаются друг от друга, это полезно и для ориентации учеников в пространстве, но контраст не обострен, а скорее сосредоточен на поиске «разных лиц», одновременно похожих и не похожих. Корпус, расположенный по центру, отличается коричневато-бордовым тоном, чуть большей гибкостью – угол «перелома» формы в плане скруглен только у него – и даже двускатной кровлей.
Ее северный скат облицован тем же материалом, что и фасад, торец актового зала обрамлен контурной пятиугольной рамой, характерным приемом современной архитектуры в те моменты, когда она готова вспомнить о традиции. Кажется даже, что этот единственный в комплексе «момент двускатности» салютует сохранившимся к северу на пустыре дачным домикам; они, вероятно, скоро исчезнут, а «тень» в виде контура на торце школьного здания – останется.
Форма западного корпуса – наиболее «говорящая», она сообщает комплексу толику уюта и говорящей формы, но делает это деликатно, не переходя границ нюанса. Композиция, однако, заметно оживляется, в ней появляется некая интрига.
Другие корпуса светлее и облицованы – один, спортивный, тонкими вертикальными панелями «под дерево», второй, восточный, светлым кирпичом. Их плоские, но скошенные кровли вторят друг другу.
Частная школа QUANTUM
Фотография © Евгений Ткаченко / предоставлена Проектно-творческая мастерская «Атриум»
Важную роль играют консоли, здесь их несколько, и можно только удивленно радоваться тому, что при очень малом сроке строительства все эти тонкости формы были реализованы. Без них, конечно, было бы совсем не то. А форма, в общем-то, важна для школы, если относиться к ней как к месту развития человека.
Не менее существенным оказалось пожелание заказчика сделать здание школы «просто современным», без дополнительных требований. В наше время, если посмотреть широко, современным может быть и глобализм, и антиглобализм, выраженный в поиске признаков идентичности, почти неизбежно сводимых к орнаментике, «шатру» и «домику». Такой поиск увлекателен, но в то же время он способен замутнять процесс. В то же время образование на трех языках, да еще и сетевое, способствует широкому взгляду на мир. Так что, надо думать, путь выбран правильно.
Для поисков пространственной структуры и архитектурного образа новой школы он тоже, надо думать, продуктивен. Вообще говоря, уже лет 10, если не больше, идут разговоры о том, каким образом современное, «правильное» школьное здание может помочь росту личности. Восходят эти разговоры, вероятно, к послевоенным, 1950-х годов. Способно ли здание формировать человека, менять его в лучшую сторону, помогать развиваться каждым своим поворотом, консолью, переходом, окном? Что-то в этом уравнении, конечно, зависит не только от здания, но и от человека и от других обстоятельств его жизни, и внутренних, и внешкольных. И между тем Вера Бутко и Антон Надточий верят в целительную роль архитектуры, как кажется, вполне искренне, и занимаются проектами школ с полной самоотдачей.
Книгу про школы – обещали скоро показать.




