Школа на 1300 учеников. Расположение в Новоселье
© ATRIUM
Неудивительно еще и потому, что ATRIUM давно и увлеченно, после того как на старте их карьеры прогремел интернат Кожухово, занимаются типологией школьных зданий – не просто красивых, что само собой разумеется, но еще и полезных, ориентированных на новейшие методики образования с уважением к личности, ценности общения и уединения, развития человека через все, что его окружает, и прочие светлые ценности. Как известно, год назад ATRIUM издали книгу об образовательных пространствах, обобщив и собственный опыт, которого немало, по проектированию школ и в России, и в Казахстане, и знания экспертов.
Школа на 1300 учеников
© ATRIUM
Так вот, школа. Ответственная задача с массой ограничений по СНИПам и в то же время площадка для осмысленных экспериментов, поскольку здание должно быть и привлекательным, и живым, и развивающим, в том числе через объемно-пространственные и пластические решения. Классы должны быть хорошо инсолированы – еще с начала XX века, если не раньше, известно, что думается лучше при свете; внутреннее пространство желательно объединять вокруг многофункционального атриума – вот это относительно новое веяние, хотя если подумать, лет 50 ему уже есть. Школа должна быть легко проходима и просматриваема, желательно насквозь, с минимумом закутков, и так далее.
Вообще говоря, сейчас в прогрессивном школостроительстве заметны образные тенденции, которые то ли спорят, то ли чередуются между собой: одни предпочитают школу-параллелепипед, в объем которого вдумчиво и оптимально «упаковывают» все пространства, большие и маленькие, экономя теплый контур или все разворачивают под прямым углом, получая с плане букву Н, П, Е, – другие тяготеют к плану-цветку и «морской звезде, где каждая «нога» увеличивает световой фронт. Одни экспериментируют с яркими цветами от конструктивистских до кислотных, видя в них жизнерадостную палитру детства – другие предпочитают и пропагандируют естественнные и сдержанные, не отвлекающие и не навязчивые, оттенки и материалы, кирпич, бетон и дерево.
В ЖК New Питер уже построена одна школа, в северной части, она так и называется «Новосельская школа». Здание сдано в 2020 году и действует, и там выбор сделан, в духе жилой застройки района, в пользу прямоугольного – П- или даже Е-образного плана и кирпичных фасадов.
А вот архитекторы ATRUIM же не выбирают одно из двух направлений – они миксуют, и довольно смело.
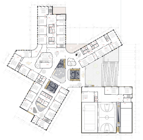
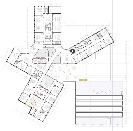
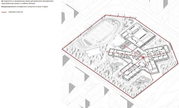
ЖК New Питер – большой, и если его первая, построенная 4 года назад, школа рассчитана на 550–650 человек, то новый проект ATRUIM в три раза крупнее – 1300 мест. Так что здание четырехэтажное, и поэтому, надо думать, звездообразный план, сходящийся к атриуму в центре, был оптимален. Тем более что в портфолио авторов лучевидная планировка встречается чаще.
Все крылья встречаются в центре, через атриум, и классы получают свой солнечный фронт.
Школа на 1300 учеников. Этапы формообразования. Формирование фронта классов
© ATRIUM
Но один – спортивный – широкий прямоугольный, что удобно для организации спортзала, бассейна и раздевалок. Он тоже примыкает к атриуму, отрезком одной стороны, и него можно войти изнутри, но его конфигурация совершенно другая, чему немало способствуют шедовые фонари: внутрь они дают много света сверху, а на фасаде – бонусом – возникает крупно-зубчатый силуэт, напоминающий и о конструктивизме, и о промышленной архитектуре XIX века, словом, остраняющий и освежающий впечатление.
Школа на 1300 учеников
© ATRIUM
Школа на 1300 учеников
© ATRIUM
Это смелое и самое привлекательное здесь образное решение.
Кроме того, «шедовый корпус» совершенно желтый. ATRIUM любит этот солнечный цвет, причем лучше даже, чтобы желтый, а не золотой, – даже их книга об образовательных пространствах желтая, хочется предположить, что желтый для них цвет просвещения. Ну и его позитивный эмоциональный заряд более чем очевиден.
Но в грех детского разноцветья авторы не впадают и – тоже миксуют: фасады основной учебной части покрывают черным кирпичом со вставками рельефной бразильской кладки и блеском, особенно заметным на фирменных атриумовских скруглениях в пазухах крыльев.
Школа на 1300 учеников
© ATRIUM
То есть он и цветной, и кирпичный – а кирпич это и отклик на дизайн-код New Питера, и уют традиционной архитектуры. Последний тут, определенно, играет свою скрипку, будучи поддержан скатными кровлями с продольным коньком и характерным срезом на каждом торце – образ города с историческим бэкграундом налицо, но, как водится в школьных зданиях, несколько сценографичный: как будто домики из книжки про серебряные коньки срослись между собой, но несколько наоборот – стоят кольцом не вокруг площади, а площадь у них внутри, за их спинами.
Впрочем нет, нет, «пряничность» лишь намечена, трактована в современном ключе – только абрисом традиционного контура, да и оттенена парадоксальными скосами шедов; так что отнюдь не довлеет, а только вносит разнообразие.
Конечно, солнечный желтый не мог остаться привилегией спортивного корпуса – он прорастает в остальные крылья и внутрь, и наружу, и в виде тонких вставок, время от времени отчеркивающих окна, и в виде решетки желтых откосов, нижней поверхности консолей, колонн. Такое ощущение, что, будучи привит зданию спортивным корпусом, желтый цвет находит себе место внутри и выплескивается наружу из черной «кожи», откликаясь на лучевидность построения плана. Этакое в кирпичном городе проросло солнышко.
Школа на 1300 учеников
© ATRIUM
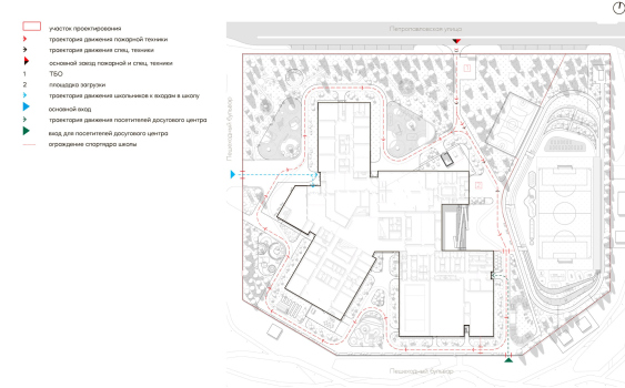
Другая тема – парк. Участок просторный, равный по площади двум большим кварталам. Упомянутый выше бульвар, начавшись около уже построенной школы на севере, продолжается вдоль всех кварталов к югу и проходит, к том числе, вдоль западной и южной границы школы.
Ее территорию авторы трактуют как часть парка жилого комплекса, планируют деревья, которые показаны тут по-питерски – редкие сосны, и действительно ландшафт вокруг школы, во всяком случае в проекте, начинает напоминать какой-то санаторий в районе Ладожского озера. Это позитивный момент, т.к. образ школы, хорошо бы, чтобы не слишком строжил людей. Все же мы не в XIX веке. А протяженные объемы среди деревьев настраивают на довольно спокойный лад и напоминают скорее о каникулах на даче.
Они не просто так светятся в сумерках – согласно планам, часть помещений школы во внеучебное время можно будет использовать жителям окрестных домов. В частности, для этого – а также для разведения потоков средней и младшей школ – в каждом крыле предусмотрен отдельный вход.
Планировка тяготеет к центральному атриуму, где сходятся стыкуются все объемы и где сходятся три амфитеатра. Все их ступени спускаются к центру, над ними широкие скругленные прорези многосветных пространств, освещенных выводками круглых зенитных фонарей, которых здесь довольно много.
Особенность школы New Питера – в ней не будет актового зала его роль берет на себя атриум, приспособленный к гибким трансформациям: его можно раскрыть, но при необходимости отделить и изолировать один из амфитеатров.
Еще одна вещь интересна в построении этой школы: она совмещает, на самом деле не две пластические темы: звезду и пристыкованный к ней прямоугольник, а три, поскольку в центр вторгается воображаемый клин, который формирует в этот живописной композиции главную планировочную ось.
Широкая часть клина начинается между спортивным корпусом и северо-восточной «ногой» учебных классов. Их створ расширяется наружу и сужается ко входу, известным приемом усиливая перспективу. В нем расположен открытый амфитеатр-лестница, который ведет на террасу на кровле первого этажа, оттуда можно войти сразу в атриум на второй этаж. На кровле атриума, усыпанного кругами зенитных фонарей, тоже планируется открытая терраса, на уровне третьего этажа: северная часть атриумного пространства соседствует с ней.
Планировочный клин же, начавшись с уличного амфитеатра, встречается со сложным пространством трех слитных атриумов, делает поворот чуть к северу – так возникает один из малых учебных лучей, западный, с фасадом из треугольных эркеров: стеклянная половина на юг, непрозрачная на север.
Все вместе это дало план не то чтобы простой, но внутренне логичный.
В интерьерах продолжена та же тема «микса»: тут и открытый бетон, брутальный и естественный, и позитивное желто-зеленое разноцветье, примиренные белым фоном стен и потолков. Прекрасно можно не отдавать предпочтение чему-то одному.
Тут есть лазательные стенки, слуховые трубы между этажами, батуты и библиотека, совмещенная с коворкингом. Осталось построить.





