Первое место в конкурсе «Арена Парка» занял проект датского бюро Juul | Frost Arkitekter, о котором мы уже рассказывали: он похож на гибрид живописно-асимметричного средневекового города и города-сада с подчеркнуто обильным озеленением, с травой даже на кровлях.
Проект бюро Сергея Скуратова, занявший второе место, также отличается значительной проработанностью вопросов благоустройства общественных пространств, но он сосредоточен на других задачах. Авторы подошли к работе с концепцией как к возможности провести эксперимент с типологией жилых домов: отказались от преобладания секционного дома, общепринятого в российском проектировании на протяжении последних 20 лет, – в пользу микса галерейных и коридорных домов с башнями в составе квартальной застройки.
Концепция жилой застройки территории вблизи стадиона Арена в Самаре / конкурсный проект / 2020
© Сергей Скуратов architects
Результатом стали кварталы, где в северной части, со стороны дорог, а также игровых и спортивных площадок, в основном размещены галереи – пространства передвижения, а не жизни, для которых шум и плохая инсоляция не столь критичны, как для спален или гостиных.
Как следствие мы видим очень нетипичную планировку: толщина объемов, обрамляющих квартал, неравномерная, поскольку он то галерейный – состоит из одного ряда квартир, то коридорный – квартиры группируются вокруг коридора, объем становится толще. Причем сам внутренний проход не прерывается: галерея переходит в коридор и наоборот, встречается с лифтовыми холлами, закольцовывается, обеспечивает переход к соседнему примыкающему блоку, а иногда делает зигзаг, отступая в глубину, освобождая место для угловых квартир. Причем эти угловые квартиры, в основном размера больше среднего, подчас даже выступают на своем углу вперед, вовсе не стремясь сохранить целостность контура, а напротив, улавливая свет и панорамы.
Над «толстыми» коридорными объемами в точках лестнично-лифтовых узлов вырастают пять башен-доминант высотой по 22 этажа, в них размещено 25% жилья. Остальные 75% приходятся на низкоэтажную застройку, от пяти до семи этажей.
Предложенная планировка, гибкая и связная, позволила сэкономить на лестнично-лифтовых узлах: их меньше, чем в обычном доме, разделенном на узкие изолированные секции.
Адаптивность решения подчеркнута асимметрией: одиннадцать кварталов разного размера соединяются, как атомы, в молекулы по два и по три объема, объединенные внутри галерями-коридорами. Композиция получается немного «броуновская» – заметно, что она «параметрически» реагирует на внутренние требования и внешние условия.
Квартирография ориентирована на актуальное для рынка преобладание небольших лотов: студий и однокомнатных квартир в общей сложности больше половины (в коридорной планировке таких вариантов больше всего). Но предложенная линейка включает весь диапазон вплоть до 4-комнатных жилищ – в башнях. В наборе фигурируют как традиционные, так и «европейские» планировки с кухнями-гостиными. Впрочем, по словам авторов, квартирография рассчитана гибко и может быть изменена – концепция предлагает именно подход, а не совершенно застывшее решение, чем и интересна.
Предложенная структура распределения квартир. Концепция жилой застройки территории вблизи стадиона Арена в Самаре / конкурсный проект / 2020
© Сергей Скуратов architects
Небольшая высота кварталов – заметим, что в южной части она понижается, а северу и к шоссе растет – позволила хорошо осветить внутренние дворы. Причем ради их лучшего озеленения авторы предложили освободить центральные части дворов от подземной парковки: один ярус паркинга тяготеет к контурам домов, а в центре каждого двора, таким образом, будет проще высадить деревья с хорошей корневой системой. Заметим, что степень открытости-закрытости фасадов во дворе очень заметным образом зависит от уровня освещенности: где солнце, там стекло, где тень – преобладают стены.
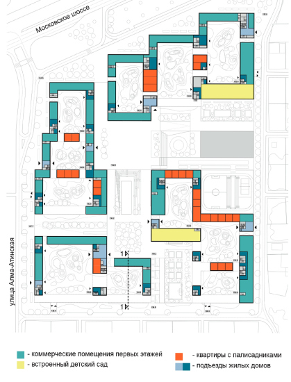
Именно здесь на первых этажах появляются квартиры с частными палисадниками. Дворы, согласно концепции, доступны только для жителей.
Но композицией домов, их экспериментальными планировками и дворами-садами дело не заканчивается. Сергей Скуратов трактует свой проект ЖК как мини-город, уделяя много внимания общественным пространствам внутри. Между кварталами образуются городские площади, причем территория каждой сопоставима с по размеру с внутриквартальным двором. Пространственный модуль оказывается общим для двора и площади, а функции и доступность разнятся – авторы даже рассматривают внутренние площади как «городские дворы» и включают их в общий подсчет – итого, с общественными пространствами, получается «16 дворов», 11 частных-закрытых, 5 общедоступных.
11 закрытых дворов. Концепция жилой застройки территории вблизи стадиона Арена в Самаре / конкурсный проект / 2020
© Сергей Скуратов architects
Общестенные пространства. Концепция жилой застройки территории вблизи стадиона Арена в Самаре / конкурсный проект / 2020
© Сергей Скуратов architects
Входы на территорию комплекса расположены с каждой из четырех сторон, практически по странам света, между кварталами, – открытые к окружению, но не то чтобы совсем «распахнутые». Причем проход со стороны шумного шоссе относительно узкий, защищает от шума. Площади группируются ближе к центру, три из них нанизаны на меридиональную ось: главная, «шумная» площадь, предназначенная для сборищ и мероприятий, вымощенная почти целиком, расположена ближе всего к шоссе; южнее к ней примыкает площадь пруда, с амфитеатром у воды, дальше, ближе к дачам, сквер – активность как будто «растворяется в природе» от шоссе к тихому поселку.
В восточной части комплекса между кварталами разместилась школа, рядом, в первых этажах жилых домов, два встроенных детских сада. Между центральной площадью и школой – открытая для всех игровая «детская площадь», тоже с амфитеатром (заметим, что оба амфитеатра встроены в рельеф, который здесь повышается, в общей сложности, на 5 метров в сторону шоссе, а в центре имеет перепад около 2 метров). К югу от школы – «спортивная площадь», пятая по счету. Так называемые коммерческие, они же арендные, первые этажи с кафе и магазинами сгруппированы как по внешнему контуру комплекса, так и со стороны внутренних площадей.
Весь объемно-пространственный и функциональный микс осмыслен как смешение известных морфотипов городской застройки: площади, двора, башни, – на которые Скуратов прямо ссылается, представляя свой проект как вариант города, отработанного веками. Иными словами, согласно этому конкурсному и экспериментальному проекту на окраине Самары, за полосой микрорайонной застройки, среди лесов, полей, дач и промзон мог бы возникнуть небольшой «городок» с вполне зрелой и разнообразной морфологией и иерархией пространств, компактный, структурно разнообразный и осмысленный.
Внешне он совершенно не подделывается под лесное окружение и не пытается представить себя частью естественного рельефа – напротив, все линии и объемы прямые, жесткие, очень рукотворные и даже отчасти брутальные, с этакой ноткой прома. До некоторой степени городок предстает «фортом» – в основном благодаря прямым контурам и замкнутости внешних стен. Которые, напомню, защищают от внешнего шума и отличаются от значительно более открытых, с большим количеством остекления, внутренних дворов. Дома-башни тоже работают на образ прочного и надежного городка, который не растекается по полю, а вполне способен «за себя постоять».
Издали комплекс в решении Сергея Скуратова оказывается похож на ренессансные загородные усадьбы где-нибудь в полях Ломбардии: собранные, регулярные объемы контрастируют с пасторальным окружением. Дворы и башни заставляют вспомнить даже какой-нибудь кастелло Сфорцеско – заметим, существенно, что возникающие аналогии крутятся не вокруг средневекового «естественного», а вокруг ренессансного города – в последнем много более сильна рациональная составляющая и крупнее форма. И потом, только для ренессансного палаццо свойствено сочетание большого зеленого двора и значительной башни, этим они отличаются и от скученного средневековья, когда такое появлялось только в монастырях, и от «доходников» XIX века, где и дворы, и башни «сжимаются» ради полезной жилплощади. В принципе эксперимент, проведенный в данном проекте, выходит за рамки чисто планировочного и предлагает какой-то отчасти новый, во всяком случае нюансированный, вариант квартальной застройки, не чуждый, скажем так, оттеночного сходства с рядом исторических прообразов.
Концепция жилой застройки территории вблизи стадиона Арена в Самаре / конкурсный проект / 2020
© Сергей Скуратов architects
Цвет фасадов – любимое Сергеем Скуратовым сочетание кирпично-красного и светлого, почти белого – тоже поддерживает тему как ренессансного форта, так и прома. Две угловые башни полностью красные, центральная белая, еще две – опять же любимый авторский прием – сочетают оба цвета, что должно обеспечить разнообразие ракурсов. То же и с кварталами: больше красных, чем белых, но во дворах фасады светлые. Школа белая.
Концепция жилой застройки территории вблизи стадиона Арена в Самаре / конкурсный проект / 2020
© Сергей Скуратов architects
Очень привлекательно выглядят раскрытия южных кварталов со стороны дачного поселка: круглые белые «ноги» в первых этажах и холмистая зеленая местность под ними – переход, устроенный, по принципу дома Наркомфина Моисея Гинзбурга, как «зеленая дорога» под домами, от двора к окружению.
Так что, заметим, помимо планировочного и типологического эксперимента в проекте присутствует значительная доля «привязки» к конкретным обстоятельствам, даже – контекстуальной «лепки» комплекса, откликающегося на особенности окружения: проявлен и перепад высот, и контраст между жесткостью, активностью среды у шоссе и природной расслабленностью на границе с СНТ.
Внутри комплекса также возникает образ на грани старого прома и ренессансного города, может быть постренессансного, в эмоциональном отношении сравнимого с послевоенным Миланом: башни, рациональные прямые, но разнообразные и фактурно, и по рисунку фасады. На городских площадях, как и снаружи – достаточно много стен, стекло отнюдь не преобладает, а само пространство плавно переходит от совершенно «городской», регулярной, полностью вымощенной главной площади к более «живым» и зеленым пруду и скверу. Это соседство, как и разнообразие фасадов, обеспечивает своего рода «градиент впечатлений», построенный всё на том же лейтмотиве перехода от городской активности к природной расслабленности, который породил и раскрытые к югу дворы.
Концепция жилой застройки территории вблизи стадиона Арена в Самаре / конкурсный проект / 2020
© Сергей Скуратов architects
Концепция жилой застройки территории вблизи стадиона Арена в Самаре / конкурсный проект / 2020
© Сергей Скуратов architects
Концепция жилой застройки территории вблизи стадиона Арена в Самаре / конкурсный проект / 2020
© Сергей Скуратов architects
На первый взгляд многое в этом проекте достаточно привычно, поскольку соответствует современным тенденциям: начиная от сочетания кварталов с «правильной» высотой 5-7 этажей с башнями-доминантами, прямо как из учебника по современной урбанистике, и заканчивая преобладанием небольших квартир при общем разнообразии лотов, дворами без машин, палисадниками, общественными пространствами, балансом природности и городской освоенности.
Но с другой стороны – всё очень необычно. Прежде всего – асимметрия и подчеркнутая вариативность квартальных «молекул», которые больше напоминают даже клетки под микроскопом: то слипаются, то расходятся, то наращивают, то истончают оболочку, реагируя как на свою внутреннюю логику, так и на внешние раздражители. Также необычен набор планировочных опций – ни для кого не секрет, что галерейные и коридорные дома в наше время не в чести. Может быть, зря? При условии преобладания галерей над коридорами и их хорошей (пусть и худшей, чем в гостиных, но все же) освещенности этот вариант мог бы оказаться привлекательным. Не знаю уж, сколько у него шансов поколебать сложившиеся шаблоны рынка: рынок вещь инерционная, его пока не выведут за пределы зоны комфорта, он будет эксплуатировать знакомые решения. Но на то проект и экспериментальный, хотя было бы интересно его реализовать – возможно, в Москве с ее трендом строить комплексы из трех башен по 200 м высотой это пока и не светит, но в Самаре-то можно было попробовать.


