Напомним, изюминка архитектурной концепции состоит в том, что протяженный фасад по красной линии Малой Ордынки разделен на три части, визуально решенные как три разных дома: стеклянный, кирпичный и каменный, но подчиненные одной высоте и общему ритму. Дом спроектирован в парадигме деликатной контекстуальной застройки, необходимой в историческом центре города, но методом современной архитектуры, без стилизации и историзма.
Жилой дом на Малой Ордынке / ADM architects
Фотография © Ярослав Лукьянченко / предоставлено ADM
Строго говоря, описание идеи на этом заканчивается. Все это позволило проекту достаточно гладко пройти советы и согласования; и даже – к счастью – реализован вариант со стеклянным фасадом в северном блоке, а не бежево-кирпичный, предложенный в какой-то момент в ответ на какое-то пожелание.
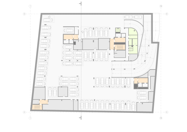
Дом стоит на двух ярусах подземной парковки, которая занимает все пятно участка, въезд – с Малой Ордынки. Жилая часть разделена на три секции, но они не вполне соответствуют делению уличного фасада, поскольку план дома Г-образный: в северной части объем заворачивает во двор, и третий лестнично-лифтовой узел расположен там. С южной стороны дом, напротив, отступает от соседнего офисного здания 1930-х годов постройки и нависает консолью 6-метровой высоты над проездом для спецтранспорта. От других машин двор закрыт.
Квартирография разнообразна, этот класс жилья может позволить себе большие площади квартир, до 170 м2; пентхаусы в верхнем этаже имеют собственные выходы на эксплуатируемую кровлю, откуда открываются замечательные виды на Замоскворечье и Кремль.
Первые этажи отданы лобби и коммерчески-общественным функциям, как и принято сейчас, тем более в центре города. Будем надеяться, что вскоре там появятся интересные арендаторы. По внешней границе тротуара высажены клены с достаточно пышными сформированными кронами.
Словом, здесь соблюдены многие правила – присутствуют как необходимые элементы элитного жилья центре, так и отклик на требования к строительству в историческом городе, а также характерные приемы и подходы к нему, важное место среди которых занимает, конечно, облегчающее восприятие дробление линии застройки на отдельные дома: «первоначально планировалось две части, что соответствовало бы делению уличного фронта на секции, но затем мы пришли к более гармоничной трехсоставной композиции», – рассказывает глава ADM architects Андрей Романов.
Жилой дом на Малой Ордынке / ADM architects
Фотография © Ярослав Лукьянченко / предоставлено ADM
Другой характерный современный прием – консоль, нависающая над проездом и одновременно слегка вынесенная вперед. Она заключает в себе некоторую степень инженерной смелости, способной удивить прохожего: угловой фрагмент дома непринужденно «выехал» из общей массы наружу и «повис». С одной стороны, консоль перекликается с традиционными эркерами, но – в XIX веке и в начале XX архитекторы такого себе позволить не могли, это скорее прием из арсенала конструктивистов и в то же время его принадлежность XXI веку достаточно очевидна.
Консоль «останавливает» движение фасадного строя, ставит в нем этакую запятую, не позволяя воспринимать дом как только лишь часть красной линии разновременных доходников. Небольшой, деликатный, но заметный акцент отвечает, кроме того, Иверскому переулку, который выходит на Малую Ордынку напротив эркера.
Жилой дом на Малой Ордынке
Фотография © Ярослав Лукьянченко / предоставлено ADM
Но ценность дома всё же, наверное, не исчерпывается ни тем, ни другим: ни современностью, ни необходимой контекстуальностью. Сложность задачи и успешность результата, надо думать, заключены в найденном балансе между сдержанной встроенностью в состав города и обилием эмоций: деталей, фактуры, работы с масштабом и рисунком, пластических сюжетов, заключенных, буквально-таки «упакованных» в его архитектуре. Именно они делают его интересным для рассматривания и причиной для того, чтобы остановить взгляд.
Только разглядывая реальный получившийся дом, можно почувствовать, каков эффект от сочетания разных поверхностей. К примеру, почувствовать контраст прохладного кирпича и теплого дерева в раструбе перспективного входа.
Жилой дом на Малой Ордынке
Фотография © Ярослав Лукьянченко / предоставлено ADM
Или остроту стыковки двух популярных в наши дни материалов, камня и кирпича, позволяющую ощутить «домашнюю» мягкость одного и металлизированную жесткость другого – они действительно выглядят как два очень разных дома и могли бы, в принципе, быть таковыми. Хотя некоторые линии, особенно горизонтальные, отчетливо состыкованы, и поиск сходств-отличий может превратиться в довольно увлекательное занятие.
Жилой дом на Малой Ордынке / ADM architects
Фотография © Ярослав Лукьянченко / предоставлено ADM
Металлизированный блеск окалины в кирпиче центрального фасада придает поверхности, особенно на солнце, интенсивное мерцание в переходах от оранжево-терракотового к серебристо-фиолетовому, синеватому, что напоминает о врубелевских майоликах: они тоже переливаются радужной пленкой. Но в данном случае живописный блеск не растекается, он помещен в рамки строгой системы, как будто бы скрещен с чем-то текстильным. Тем более что использован не кирпич, а ригельная плитка, и в фактурных частях углы не топорщатся, а больше напоминают ленты рельефного плетения, которые в свою очередь поднимаются по фасаду крупным меандром – так и хочется сказать: вот она, метафора городской ткани, как будто спроецирована на кирпичный фасад.
Жилой дом на Малой Ордынке
Фотография © Ярослав Лукьянченко / предоставлено ADM
Жилой дом на Малой Ордынке. ADM
Фотография © Ярослав Лукьянченко / предоставлено ADM
Блеск поверхности кирпича перекликается с темным, но тоже поблескивающим металлом балконных ограждений. Его рисунок – авторский, и по отношению к проекту он изменился, стал менее растительным и более абстрактным: решетка состоит как будто из металлических контуров пляжных камушков, слипшихся в кружево, очень живое, с эффектом «шевеления» поверхности, тоже, хотя и достаточно отдаленно, чтобы не быть цитатой, напоминающее о модерне, но со стороны графики.
Жилой дом на Малой Ордынке
Фотография © Ярослав Лукьянченко / предоставлено ADM
Жилой дом на Малой Ордынке
Фотография © Ярослав Лукьянченко / предоставлено ADM
Жилой дом на Малой Ордынке
Фотография © Ярослав Лукьянченко / предоставлено ADM
Общую холодноватую тональность центральной части поддерживает и блеск оконного стекла, который, с другой стороны, воспринимается как «полномочный посол» соседнего, северного, стеклянного фасада. Здесь панорамные окна помещены в контур серой металлической рамы с глубокими выносами. Между их горизонтальными «направляющими» помещены похожие на полупрозрачные шторы фигуры моллированного стекла. Строго говоря, они не просто похожи, но и выполняют роль штор, прикрывая от посторонних взглядов пространства спален. Кроме того, гнутое стекло прикрывает и оконные рамы, а там, где его нет, использованы большие стекла без стыков, что очень эффектно: издали кажется, что полосы этажей затянуты совершенно цельным стеклом, перед которым кто-то собрал в группы стеклянные складки, как костяшки на счетах.
Жилой дом на Малой Ордынке / ADM architects
Фотография © Ярослав Лукьянченко / предоставлено ADM
Жилой дом на Малой Ордынке / ADM architects
Фотография © Ярослав Лукьянченко / предоставлено ADM
Складки гнутого стекла – безусловно, один из самых ярких и привлекательных элементов проекта. Они кажутся драгоценным хрустальным занавесом. Пластичная и светопроницаемая «холодная нитка» притягивает взгляды и в то же время улавливает солнечные лучи, транслируя блики в пространство улицы.
Жилой дом на Малой Ордынке / ADM architects
Фотография © Ярослав Лукьянченко / предоставлено ADM architects
Нельзя сказать, что в Москве еще не бывало декоративной «холодной нитки» или гнутого стекла, – случалось и то, и другое, всякий раз привлекая внимание. Но в именно таком сочетании, где моллированное стекло принимает на себя роль скульптуры, ширмы-декорации – не было, поэтому воспринимается неожиданно свежо. Недвусмысленно указывает на современность дома, даже заставляет любоваться этим качеством современности, техничности хрустального фасада. Но не превращается в декларацию модного решения, не «кричит», удерживается на грани, что важно.
Третий фасад, как мы уже помним, каменно-деревянный, по ощущениям самый теплый, недаром он расположен в южной части и кроме того заворачивает во двор и развивается там, где уместно его более камерное и уютное решение. Известняк, самый традиционный, если не сказать классический материал элитного строительства последних двадцати лет в Москве, покрыт горизонтальной штриховкой тонких желобков, которая придает его поверхности необходимый, но очень легкий, почти тюлевый рельеф, ненавязчивую долю свето-тени и, главное, законченность. Множество деревянных «рам» по внутреннему контуру окон делают фасад визуально двухслойным, подразделяя проемы на пять видов (если считать эркер, то шесть), и формируя сложную, но подчиненную системе игру.
Здесь появляются балконы: небольшого выноса на улице и более внушительные во дворе, они размыкают и оживляют стены, акцентируют тишину вокруг – потому что ведь только в спокойном городе можно выйти на балкон не по необходимости, а для удовольствия.
В целом дом не просто разделен по фасаду на три части – между ними возникает взаимодействие и иерархия, основанная, как мне кажется, на движении с севера на юг, от льдистого стекла к слиянию терракоты и металла, а затем к палевому камню и желто-оранжевому дереву: последовательность фасадов ведет нас от красивого, но несколько прохладного футуризма к уютной «солнечной» версии дома, которая полностью раскрывается во дворе.
Двор – отдельная история, «пятый фасад», пространство которого работает, однако, настолько активно, что начинаешь задумываться скорее о «пятом измерении» – настолько его небольшая площадка, 30 х 40 м, насыщена сменами впечатлений. Наподобие большой шахматной доски из «Алисы в Зазеркалье», хотя и не так строго, двор расчерчен на прямоугольники: два газона, три окруженных боскетами из туи «кабинета для тихой беседы», там установлены деревянные кресла и столы.
Жилой дом на Малой Ордынке
Фотография © Ярослав Лукьянченко / предоставлено ADM
Самая интересная часть в центре – повышенный, как будто выдвинутый вверх из земли или, наоборот, обрезанный по краям до прямоугольника, газон с холмами геопластики. У него есть технический смысл: двор, как мы помним, расположен на кровле подземной парковки, и для размещения достаточного количества грунта для взрослого дерева уместен небольшой холм, дающий «запас». Но получилось еще и пластически интересно: то ли двор получил объемную инкрустацию холмистой местностью, то ли здесь в гранитных берегах застыл некий «ковер».
Жилой дом на Малой Ордынке
Фотография © Ярослав Лукьянченко / предоставлено ADM
Жилой дом на Малой Ордынке
Фотография © Ярослав Лукьянченко / предоставлено ADM
Картину дополняют еще два приподнятых газона со встроенными скамейками и, самое главное – сухой фонтан из клеток: в одних мраморная галька, в других каменные «круги на воде», похожие на шашки.
И наконец, небольшая, но сложносочиненная детская площадка, спроектированная бюро «Дружба» и сочетающая горки, пещеры, стенку для скалолазания и доску для рисования, прислонена к восточной стене двора.
Жилой дом на Малой Ордынке
Фотография © Ярослав Лукьянченко / предоставлено ADM
Заблудиться в таком дворе, конечно, нельзя, но элементы паркового лабиринта здесь есть. Несмотря на малые размеры, его невозможно оценить одним взглядом стоя на уровне земли. При взгляде с разных позиций он воспринимается иначе, разыгрывает несколько сценариев, и детских, и взрослых – это многосоставное пространство, срежиссированное таким образом, что его сложность не превращается в тесноту. Оно ощущается как очень дорогое, как и фасады дома, не только из-за вложенных материалов, но и из-за количества приложенных сил и палитре вызываемых эмоций – при всей их умеренности и ненавязчивости.
Возможно, в этом и состоит одна из важных особенностей дома: в нем создан новый образ роскоши: роскоши хорошо освоенного, отделанного, дорогого городского пространства. Отчасти она достается и всем прохожим на улице – бесплатно, как фасад, мимо которого можно идти. Дом отвечает известному рассуждению о том, что «элитное» строительство в центре города это как правило очень дорогая история. Но увы не всегда результат выглядит как ценная шкатулка – не кричащая, а уверенно и спокойно демонстрирующая свою ценность: продуманностью и исполнением элементов и целого, уместностью их появления и – тем самым, уже упомянутым балансом, который здесь, надо думать, найден. Что делает дом удачным примером строительства в центре, хорошим образцом нового «доходного дома», отвечающего длинному списку требований современности.




