Клубный дом «Чистые Пруды» / Потаповский пер., 5с4, в процессе реконструкции: виды на окрестности, главный акцент к северу – Меншикова башня
Фотография: Юлия Тарабарина, Архи.ру
Дом в Потаповском – именно таков. Он встроен в середину квартала между Чистопрудным бульваром и переулком, причем к переулку обращен главный вход и парадный фасад, поскольку именно с этой стороны имеется проход в створе между двумя зданиями по красной линии. Здание построено по проекту архитектора (и барона) Отто фон Дессина как доходный дом страхового общества «Якорь». Из-за расположения во дворе, а отчасти из-за времени проектирования и строительства: 1913–1915 годы не располагали к пышному декоративизму, – три основных фасада достаточно сдержанны. Фон Дессин покрыл, однако, три фасада тонким рустом и придал дому легкий романтический флер на грани неоклассики, историзма и модерна. Чему немало поспособствовали четвертинки башен, встроенных в углы между основным объемом и крыльями-ризалитами.
Клубный дом «Чистые Пруды»
© Sminex
В советское время здание перестроили, возможно, даже несколько раз, приспособили под жилье, затем под офисы: первоначальная внутренняя структура совершенно не сохранилась, в интерьерах перед началом реконструкции преобладал гипсокартон и пластик.
Итак, дом в Потаповском – ценный градообразующий объект. Компания Sminex, следуя рекомендациям Департамента культурного наследия Москвы, отказалась от проекта с большим объемом фасадного остекления и от современной стилистики, сделав ставку на максимально возможное сохранение как архитектурных форм здания 1915 года, так и подлинных кирпичных стен.
Над проектом работал Илья Уткин, автор, известный своим интересом к классическому формообразованию и уважительным отношением к подлинности исторических построек. Пожалуй, он – один из тех архитекторов, кто способен обеспечить «венецианский», то есть основанный на максимальной деликатности и внимании к деталям, подход к реконструкции.
«Район Чистых прудов сформировался в начале XX века, когда он застраивался доходными домами; тогда в них жили чиновники и небогатые дворяне, средний класс своего времени. Они и определяли характер среды, формировали, если можно так сказать, Чистые пруды. В Москве есть целый ряд подобных районов, но они различаются нюансами. На Бронной, к примеру, было похоже, но не совсем так. Сейчас, конечно, все эти районы меняются, это происходит достаточно давно, где-то процесс обновления идет более, где-то менее интенсивно.
Мы любим архитектуру прошлого. И считаем важным, в тех случаях, когда это возможно, способствовать сохранению исторического «лица» и для отдельных зданий, и для городской ткани – особенно там, где она имеет цельный характер. И, когда получаем такой шанс, делаем для этого все, что в наших силах.
В данном случае компания Sminex попросила нас разработать проект максимально деликатной реконструкции здания в Потаповском переулке – с сохранением внешних кирпичных стен и логики фасадного убранства. Дом – качественный, по-своему красивый, в целом он – органичная часть застройки, элемент, характерный для своего времени. У него толстые кирпичные стены, порядка 80 см; первоначальная штукатурка на фасадах в свое время была достаточно качественной, но со временем была в значительной степени испорчена и в то же время пластика фасадов была достаточно простой, лаконичной – на грани модерна и неоклассики, неглубокий руст, тяги, окна с арочными завершениями…
Словом, нельзя сказать, что на фасадах сохранялись какие-то исключительные элементы. В то же время когда мы начали исследовать и обмерять дом, мы обнаружили в этой простоте какое-то невероятное множество разнообразных особенностей и нюансов. Фасады были наполнены тонкой пластикой – не броской, но по-своему интересной. Мы увидели в этом ценность и решили сохранить. Все обмерили и планируем воспроизвести».
Мы любим архитектуру прошлого. И считаем важным, в тех случаях, когда это возможно, способствовать сохранению исторического «лица» и для отдельных зданий, и для городской ткани – особенно там, где она имеет цельный характер. И, когда получаем такой шанс, делаем для этого все, что в наших силах.
В данном случае компания Sminex попросила нас разработать проект максимально деликатной реконструкции здания в Потаповском переулке – с сохранением внешних кирпичных стен и логики фасадного убранства. Дом – качественный, по-своему красивый, в целом он – органичная часть застройки, элемент, характерный для своего времени. У него толстые кирпичные стены, порядка 80 см; первоначальная штукатурка на фасадах в свое время была достаточно качественной, но со временем была в значительной степени испорчена и в то же время пластика фасадов была достаточно простой, лаконичной – на грани модерна и неоклассики, неглубокий руст, тяги, окна с арочными завершениями…
Словом, нельзя сказать, что на фасадах сохранялись какие-то исключительные элементы. В то же время когда мы начали исследовать и обмерять дом, мы обнаружили в этой простоте какое-то невероятное множество разнообразных особенностей и нюансов. Фасады были наполнены тонкой пластикой – не броской, но по-своему интересной. Мы увидели в этом ценность и решили сохранить. Все обмерили и планируем воспроизвести».
Илья Уткин досконально изучил дом, буквально-таки «прополз» по строительным лесам с линейкой и собрал, благодаря такой своей исследовательской инициативе, подробный материал обо всех нюансах деталировки – что стало основой для чертежей фасадов, воспроизводящих исторический декор.
«Цокольный» ярус – декор двух нижних этажей – будет реализован вместо штукатурки в натуральном камне, но воспроизведет пластику фон Дессина. Выше те же фасады будут воспроизведены в новой штукатурке хорошего современного качества. Тыльный фасад, обращенный в сторону бульвара к таким же, второстепенным, фасадам застройки его красной линии, исторически был совершенно черновым: здесь архитекторы в общих чертах воспроизвели логику трех других фасадов. Со стороны Чистых прудов авторы сохраняют и характерный рисунок скатной вальмовой кровли, ее объем поможет скрыть инженерное оборудование.
План кровли. Клубный дом «Чистые Пруды»
© Sminex
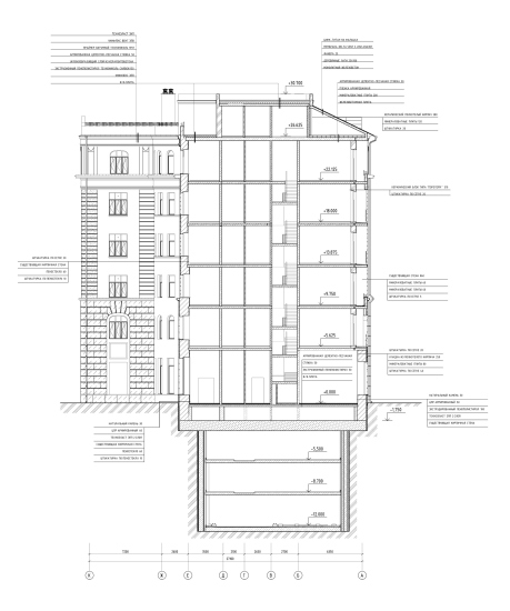
Под домом запланирован паркинг на 45 мест – решение, совершенно необходимое для современного клубного дома в центре города. Три подземных яруса несколько отступают от исторического контура вглубь – котлован будут углублять не под стенами, а с некоторым отступом, для безопасности. Паркинг автоматизированный, это почти стандарт для дорогих домов в городском центре. Для жителей, как и для водителей, предусмотрены комнаты ожидания автомобиля; жители выходят из зоны парковки прямо в лобби, не спускаясь под землю. Все лифты и машиноместа просторны (5.8 х 2.15 м), – выбор слотов будет происходить достаточно быстро и «вашу машину никто не поцарапает на парковке», – подчеркивают представители девелопера.
Новые внутренние этажи из железобетона планируется возводить по методу up&down, двигаясь одновременно вверх и вниз для экономии времени. Кирпичные стены, примерно 80-сантиметровой толщины сохраняют полностью: сейчас они «вывешены» и укреплены, – на конструкции пошло порядка 400 тонн металла.
Между тем новая функция здания – современный клубный дом, это дорогое и престижное жилье в центре Москвы. Дом, сохранив свои достоинства столетней давности, сейчас должен приобрести новое качество, стать современным, удобным и даже эффектным. От Ильи Уткина требовалось найти баланс между двумя полюсами – задача, признаем это, достаточно непростая, здесь-то и требуется мастерство тонкой работы с наследием в историческом городе.
И таких достоинств клубного дома, при сохранении исторического облика, в доме внедрено немало. Они работают на разных уровнях восприятия. Прежде всего современный клубный дом требует хорошего естественного освещения, видов на старый город, «французских» окон «в пол». Такие окна удалось расположить на бывшем тыльном фасаде, так как его историческое решение не представляло серьезной ценности. Распространив на него композиционные принципы главного фасада, архитекторы тщательно вписали увеличенные проемы в общий ритм – таким образом, что изнутри света получилось довольно много, но снаружи нет заметных витражей. Два лестнично-лифтовых узла расположили в «теле» здания, освободив максимум светового фронта для квартир.
Далее – планировки: здесь 34 квартиры и ни одна не повторяется, нет ни одного «типового» этажа, что дает хорошее разнообразие при выборе лотов для покупателей. В нижних этажах квартиры меньшей площади, выше они увеличиваются, на верхнем этаже – четыре пентхауса с просторными террасами на кровле. С них будут открываться отличные виды на Чистопрудный бульвар, район Маросейки–Мясницкой, даже на Кремль и Сити.
Таким образом, с архитектурной точки зрения дом можно понять как пример почти образцового баланса между сохранением и внедрением современных удобств – «решений для комфорта жителей», как это принято теперь говорить. Пример достаточно деликатной адаптации здания более чем столетней давности к реальности Москвы 2020-х.
С точки зрения девелопмента, продаж, и шире – типологии современной недвижимости, – дом в Потаповском также отмечен новшествами. Как правило – подчеркивают представители Sminex, – клубные дома Москвы не имеют ни двора, ни дополнительных функций, только лобби с ресепшном, что объясняется стесненными условиями участков, на которых развивается данная типология современного жилья. В случае «Чистых прудов» условия тоже ограничены, но девелопер использовал все имеющиеся в его распоряжении особенности участка.
Он расположен внутри квартала, а значит, вокруг, как уже говорилось, будет не просто тихо, а очень тихо. Кроме того, вокруг дома, как это обычно бывает в московских дворах, образуется некий «воздух» – благодаря расстояниям между ним и соседними зданиями. На прилегающей территории, чья площадь – 1300 м2, – достаточно велика по меркам клубного дома, планируется ландшафтное благоустройство в виде небольшого, но пышного сада вокруг дома; его позиционируют как «двор-сад» (авторы проекта: специалисты Sminex и ALD).
Во-вторых, московские дворы как правило заполнены небольшими постройками и пристройками. В данном случае в нескольких таких малогабаритных строениях – часть из них появилась чуть раньше, а часть одновременно с домом, – разместятся общественная гостиная для жителей с камином (по стандарту FRIEND’S LAB), детские развивающие пространства (по стандарту KID’S LAB), фитнес-зал (по стандарту FIT LAB), а также велосипедно-колясочная.
В новом строительстве эти функции, позволяющие жителям воспользоваться сервисами на территории дома, обычно располагают в стилобате; в данном же случае основой для развития стала многосоставная структура исторической дворовой застройки. Проект реконструкции павильонов был выполнен бюро APRELarchitects совместно со Sminex.
«Представительскую» функцию берет на себя лобби первого этажа: еще одно общественное пространство с высотой потолков 4.7 метра (авторы дизайна общественных пространств: специалисты Sminex и Woodstone). «Мы возвращаем в городскую ткань исторические павильоны и наполняем их новыми функциями. Инвестируем в благоустройство и инфраструктуру «Чистых Прудов», чтобы жителям не приходилось выбирать между приватностью и комфортом. Для клубного дома всего на 34 квартиры продуман небывалый дополнительный сервис. Здесь есть все для здорового образа жизни, развития детей, отдыха, прогулок и общения», – говорит директор по продажам Sminex Иван Обухов.
Клубный дом «Чистые Пруды». Главный фасад
© Sminex
Усилия, как по сохранению здания, так и по развитию, формированию нового, более сложного варианта московского клубного дома с предельно разнообразной квартирографией и развитыми общественными пространствами, судя по всему, приносят «рыночные» результаты: предложение вызывает интерес у покупателей квартир. С момента старта продаж в январе 2022 года продана примерно четверть квартир.


