Конкурсы фестиваля WAF организованы достаточно интересно. Для участия необходимо подать платную заявку. Все номинированные проекты проходят предварительный отбор, и лучшие выходят в финал, который представляет собой личную презентацию авторов проекта перед жюри номинации. Все защиты проходят в течение трех фестивальных дней, и на это время площадка фестиваля похожа на настоящий архитектурный «Вавилон». В одном месте собираются сотни, если не тысячи ведущих архитекторов мира, на разных площадках одновременно проходят презентации и лекции. Здесь же организованы экспозиции с работами из шорт-листа и стенды партнеров фестиваля. По итогам трех дней определяются победители в номинациях и обладатели главных призов WAF: World Building of the Year, Future Project of the Year, World Interior of the Year и Landscape of the Year.
Интерьерный конкурс WAF Interiors проводится с 2008 года, с самого начала фестиваля WAF, и традиционно в нем участвуют лучшие интерьеры со всего мира. В этом, 2025 году в девяти номинациях представлено 59 объектов, построенных в течение последних двух лет. Так что можно сказать, что все, что было отобрано в шорт-лист WAF Interiors, представляет собой выборку наиболее актуальных тенденций в интерьерном дизайне наиболее характерных типологий.
World Architecture Festival
Проанализировать тенденции интерьерного дизайна и примерить на себя функции членов жюри номинаций WAF Interiors мы попробуем в серии обзоров проектов-финалистов конкурса в основных номинациях. И начнем с номинации «Общественные здания» (Public Buildings), в шорт-лист которой вошли восемь интерьеров.
AATMA MANTHAN MUSEUM
Проект: SANJAY PURI ARCHITECTS (Индия)
Заказчик: Tatpadam Upvan
Окончание строительства: 2024
Музей AATMA MANTHAN расположен в стилобатной части огромной статуи бога Шивы под названием Статуя Веры (Вишвас Сварупам), высотой 112 метров, открытой в 2022 году в Натдваре, штат Раджастхан, Индия.
Концепция музея посвящена самоанализу и пути объединения души (Атмана), разума (мана) и тела (танна). Каждому аспекту посвящены отдельные залы с оформлением и экспозициями, изображающими различные природные стихии. Посетитель, переходя из зала в зал, проходит через определенные эмоциональные и энергетические состояния посредством дизайнерских, аудиовизуальных и иммерсивных эффектов.
Co-op Live
Проект: Jump Studios – a Populous Company (Великобритания)
Заказчик: Oak View Group
Окончание строительства: 2024
Огромный комплекс Co-op Live представляет собой крытую арену, расположенную рядом со стадионом Etihad в Манчестере, на северо-западе Англии. Под одной крышей собраны 41 заведение: бары, клубные зоны, закусочные, рестораны и даже фуд-маркет.
Co-op Live отличает не только самая большая общая площадь среди аналогичных арен в мире, но и высокое качество интерьерного дизайна, в котором авторы постарались передать образ Манчестера со всеми его характерными чертами – музыкальным и промышленным наследием, современным драйвом и урбанистическим духом. В оформлении использованы сталь, бетон и гофрированные панели, отсылающие к промышленной истории региона, а также элементы дизайна, характерные для современной урбан-культуры – граффити, рекламные плакаты и неоновые вывески.
FRACTAL CHAPEL
Проект: INNOCAD Architecture (Австрия)
Заказчик: KAGes – Steiermärkische Krankenanstaltengesellschaft m.b.H.
Окончание строительства: 2024
Государственная больница города Грац в Австрии, как и многие другие больницы по всему миру, заботится о психологическом здоровье посетителей и пациентов. Для того чтобы им было где провести время в покое, была обустроена небольшая часовня площадью всего 35 кв. метров. Формально христианская, она фактически представляет собой не каноническое, а научно и художественно спроектированное пространство психологической реабилитации. Дизайн основан на современных исследованиях в области нейробиологии и экологической психологии. Для создания теплой атмосферы в интерьере сочетаются натуральные материалы, дневной свет и органические формы. Кроме того, в оформлении использованы фрактальные паттерны, созданные с помощью специальной компьютерной программы, эффективность которых в снижении стресса подтверждена экспериментально учеными NASA.
GREEN@COMMUNITY Recycling Stores
Проект: One Bite Design Studio Limited (Гонконг)
Заказчик: Environmental Protection Department, HKSAR Government
Окончание строительства: 2025
Юго-Восточная Азия вновь опережает весь мир и задает новые тренды – на этот раз в сборе и переработке отходов. Департамент охраны окружающей среды правительства Гонконга решил системно подойти к задаче популяризации и организации сбора отходов в городе и разработал программу создания специальных районных центров, где жители могут утилизировать свои отходы. Проект предусматривает создание 82 центров в 18 районах рядом с крупными жилыми комплексами. Для программы разработан дизайн-код оформления интерьеров центров с акцентом на минимализм, технологичность, эргономику и доступность. В интерьере активно используется белый цвет, олицетворяющий чистоту, и яркие позитивные цвета, символизирующие одну из девяти категорий перерабатываемых отходов. Узнаваемый стиль, автоматизация и понятная навигация делают пользование центрами простым и эффективным.
Klaipėda State Musical Theatre
Проект: MAMA Architects (Литва)
Заказчик: Klaipėdos valstybinis muzikinis teatras
Окончание строительства: 2024
Весной 2024 года в городе Клайпеда открылось новое здание Государственного музыкального театра – крупнейшего музыкального театра Литвы. Проект здания разработали компании Inžinerinė mintis и Studio GA, а дизайн интерьеров – MAMA Architects. В интерьере архитекторы постарались передать природную эстетику побережья Балтийского моря – песчаные дюны, испещренные рябью и складками от бесконечных ветров. В противовес традиционному пышному оформлению залов и фойе здесь царит минимализм и естественность. Колористика интерьера построена на коричневатых и охристых оттенках. В фойе преобладают пластичные формы, а в зале, для обеспечения идеальной акустики, используются панели ломаной конфигурации, покрытые вручную специальной штукатуркой. Интерьерные решения включают тщательную работу с декоративной подсветкой, акцентирующей богатые фактуры.
MOREPRK Skyline
Проект: AAN Architects (Китай)
Заказчик: MOREPRK
Окончание строительства: 2024
Скейт-парк может быть только на улице или внутри ангара? Вовсе нет. Его можно разместить внутри высотного комплекса посреди оживленного района города – и сделать так, чтобы он стал украшением всего здания. Скейт-парк MOREPRK расположен на третьем, четвертом и пятом этажах высотки в пригороде Шанхая. Огромный трехэтажный витраж открывает вид на раскинувшиеся внутри пандусы и чаши для катания. Изгибающиеся поверхности светло-серого цвета снаружи выглядят как песчаные дюны, по которым скейтеры с легкостью скользят, борясь и побеждая земную гравитацию. Благодаря расположению и дизайну MOREPRK – не только экстремальное место для скейтбордистов, но и новая городская достопримечательность – трехмерный театр, открытый городу.
Orange County Sanitation District Headquarters
Проект: HDR (США)
Заказчик: Orange County Sanitation District
Окончание строительства: 2024
Новая штаб-квартира управления очистных сооружений округа Оранж стала первым зданием в Южной Калифорнии, построенным из массива древесины с нулевым потреблением энергии. На месте бывшей промышленной зоны возведено внешне простое здание, состоящее из основного трехчастного объема и дополнительного блока конференц-зала. Все конструктивные и инженерные решения призваны продемонстрировать новейшие достижения в энергоэффективности и ресурсосбережении. В дизайне интерьера доминируют деревянные клееные конструкции потолка с ромбовидной структурой и металлическими V-образными опорами по периметру. Остальные дизайнерские решения лишь подчеркивают мощь и выразительность конструкции. Ничего искусственного, ничего сделанного ради эстетики – только функция и эффективность.
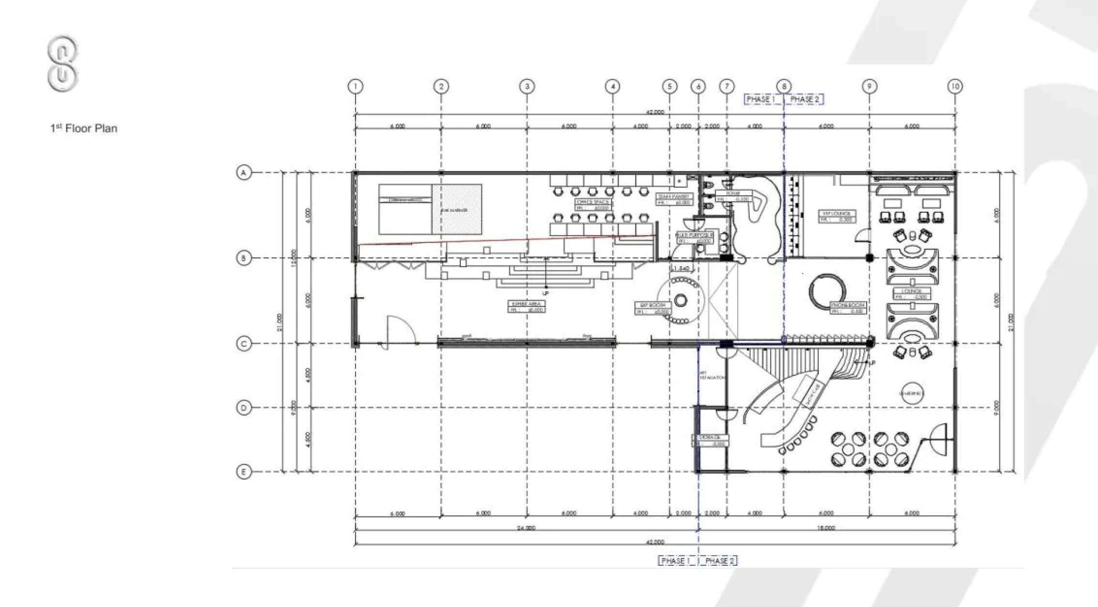
The Stone Experience Center
Проект: CNS Designworks (Индонезия)
Заказчик: MM Galleri – Теодор Чио (Theodore Tjioe)
Окончание строительства: 12 сентября 2024
Stone Experience Center – первый в мире выставочный зал, посвященный натуральному камню. Это смелая архитектурная концепция, переосмысливающая восприятие этого вечного материала. Расположенное в дизайнерском квартале Джакарты пространство площадью чуть менее 1000 кв. метров выполняет несколько функций: экспозиционного зала, шоурума и места для проведения различных мероприятий. Главный акцент в интерьере сделан на различные породы камня, которые используются не только для отделки пола и стен, но и потолка, а также для гигантских световых блоков и арт-объектов. Многообразие текстур, цветов и способов обработки натурального камня гарантирует ему непреходящую популярность у архитекторов и дизайнеров всего мира – даже в наше время бурного развития искусственных материалов.
Как можно выбрать победителя из этих восьми не только очень классных, но и мягко говоря непохожих интерьеров – загадка, которую предстоит разгадать членам жюри номинации Public Buildings. Тем не менее, трудно отказать себе в удовольствии и выбрать своего фаворита. Я ставлю на FRACTAL CHAPEL. А вы?

