Описание предоставлено архитекторами
В 2025 году Юрьевец отметит свое 800-летие, в связи с чем было принято решение об открытии в городе арт-резиденции. Для ее размещения выбрали деревянный лабаз, сохранившийся на территории усадьбы Семёна Катюшина, где располагается дом-музей архитекторов Весниных. Лабаз является ценным объектом деревянного зодчества хозяйственного назначения, в настоящее время не используется и находится в хорошей степени сохранности.
В 2023 году Центр территориального развития обратился к бюро APRELarchitetcs с предложением разработать архитектурную концепцию реставрации и приспособления объекта под общественное пространство арт-резиденции.
Концепция реставрации и приспособления ОКН Муниципального значения «Усадьба С.В. Катюшина вт.пол XIX в. «Лабаз» под общественное пространство арт-резиденции
Архивное фото дома Весниных и купеческого лабаза 1977 г.
Концепция реставрации и приспособления ОКН Муниципального значения «Усадьба С.В. Катюшина вт.пол XIX в. «Лабаз» под общественное пространство арт-резиденции. Фото интерьера Лабаза до проекта реставрации
Фотография предоставлена APRELarchitects
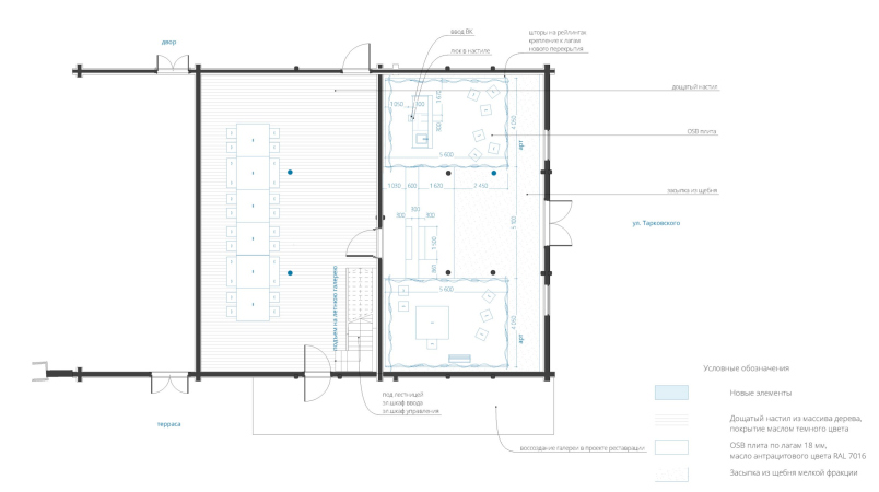
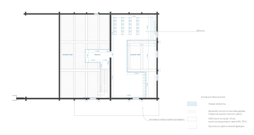
Идеология проекта основана на лаконичной и функциональной интеграции нововведений в существующее пространство лабаза. Важной задачей является сохранение изначального облика объекта культурного наследия и его приспособление для современного использования. В связи с этим новые интерьерные решения минимально затрагивают существующие объемы: интервенция оставляет видимыми конструкции и стены объекта, оставаясь фоном для исторических элементов. Для наилучшей интеграции разработанных решений предлагается монохромная цветовая палитра.
Концепция реставрации и приспособления ОКН Муниципального значения «Усадьба С.В. Катюшина вт.пол XIX в. «Лабаз» под общественное пространство арт-резиденции. Визуализация 2 этапа благоустройства
© APRELarchitects
Предложенная архитектурная концепция основана на интерпретации конструктивистского наследия братьев Весниных. В ее основу легли общие черты, среди которых можно выделить простоту и лаконичность, утилитарность и проявление конструкции. Минималистичная и геометричная форма объектов и мебели заключают в себе одновременно дух утилитарной простоты и эстетику конструктивизма. Вся конструкция представляет собой визуально единый объект, переходящий с первого уровня на второй в виде настилов, балконов и ограждений.
Концепция реставрации и приспособления ОКН Муниципального значения «Усадьба С.В. Катюшина вт.пол XIX в. «Лабаз» под общественное пространство арт-резиденции. Аксонометрия предметов мебели индивидуального изготовления.
© APRELarchitects
Работа с объектом велась по двум основным направлениям: концепция интерьера в рамках архитектурного задания на выполнение проекта реставрации и приспособления объекта культурного наследия, а также благоустройство территории.
Концепция реставрации и приспособления ОКН Муниципального значения «Усадьба С.В. Катюшина вт.пол XIX в. «Лабаз» под общественное пространство арт-резиденции. Визуализация 1 этапа благоустройства
© APRELarchitects
