Здание B-One компании Berlin Hyp
Фото © Franz Brück
Датские авторы проекта считают, что привнесли в Берлин «северный» подход к архитектуре офисных зданий, основанный на экологичности, гибкости устройства рабочих мест и благоденствии сотрудников. Учитывая близость даже не одного, а сразу двух посольств Дании (если считать бывшее, ныне ставшее дизайн-отелем Das Stue), а также других северных стран, можно увидеть в этом пример «мягкой дипломатии». Однако «импортированную» принципы похожи как на то, что делают немецкие архитекторы в самой Германии, так и на прогрессивную общемировую практику.
Здание B-One компании Berlin Hyp
Фото © Franz Brück
На самом деле, проект с его облицованными известняком фасадами выглядит вполне берлинским, пусть решетка его окон и не совпадает с типичной для «критической реконструкции», детища бывшего главного архитектора Ханса Штимана (1941–2025).
Здание B-One компании Berlin Hyp
Фото © Franz Brück
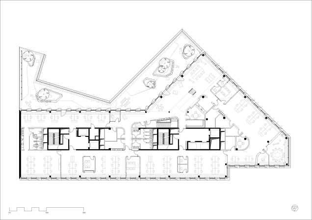
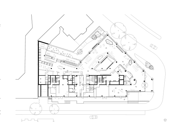
К каналу здание обращено торцом с панорамным остеклением: здесь высота постройки максимальна (45 м), а далее снижается ступенями, доходя в итоге до габаритов исторической виллы – соседствующего с банком сооружения по Будапештер-штрассе. На самый верх помещены конференц-залы с террасой, озелененные террасы отмечают и каждую ступень. Между виллой и Berlin Hyp устроен двор, куда выходят окна кафетерия.
Здание B-One компании Berlin Hyp
Фото © Franz Brück
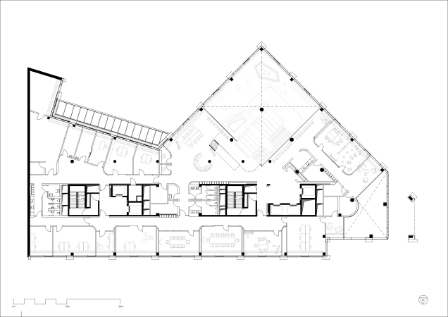
На 11 этажах расположены 500 рабочих мест для сотрудников ипотечного банка Berlin Hyp и его родительского учреждения – Банка земли Баден-Вюртемберг (LBBW). На первом этаже главную роль играет «ратуша» – пространство для собраний, приемов или встреч с клиентами; широкая лестница служит одновременно зрительскими рядами; также на уровне улицы открыта галерея для художественных выставок. Вверх идет серия двухсветных пространств для общения и совместной работы сотрудников.
C. F. Møller стремились сделать проект максимально «устойчивым»: он потребляет на 50 % меньше ресурсов, чем стоявшее на этом месте прежде здание. В облицованные камнем фасады интегрированы солнечные батареи и затеняющие элементы, а озеленение кровли, террас и двора позволяет удерживать всю попадающую туда дождевую воду, снижая нагрузку на водосточную сеть. Отопление помещений обеспечивают тепловые насосы, охлаждение – встроеная в бетонные перекрытия система. В больших помещениях типа «ратуши» и столовой устроена централизованная вентиляция, а в офисах и других меньших пространствах сотрудники могут решать сами: включить вентиляцию или просто открыть окно.
Здание B-One компании Berlin Hyp
Фото © Franz Brück
Здание B-One компании Berlin Hyp
Фото © Franz Brück
Здание B-One компании Berlin Hyp
Фото © Franz Brück
Здание B-One компании Berlin Hyp
Фото © Franz Brück
Здание B-One компании Berlin Hyp
Фото © Franz Brück
Здание B-One компании Berlin Hyp
Фото © Franz Brück
Здание B-One компании Berlin Hyp
Фото © Franz Brück
Здание B-One компании Berlin Hyp
© C.F. Møller Architects
