Студенческое общежитие Делфтского технологического университета Suitе 9
Фотография © Sebastian van Damme / предоставлена Studioninedots
Студенческое общежитие Делфтского технологического университета Suitе 9
Фотография © Sebastian van Damme / предоставлена Studioninedots
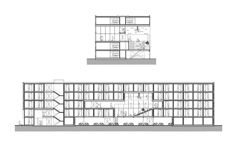
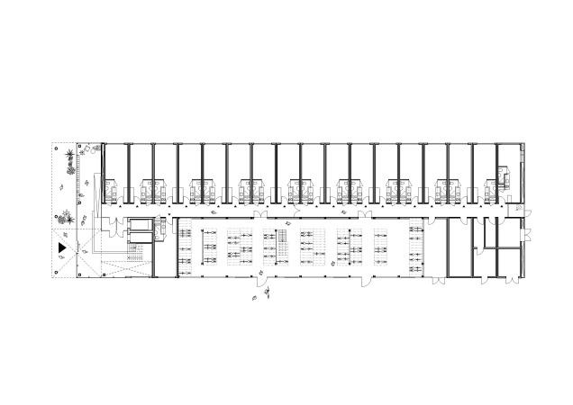
Амстердамское бюро Studioninedots спроектировало узкое здание со стандартным планом: коридор между двумя рядами небольших жилых ячеек. Общежитие удалось возвести всего за 26 недель, использовав типологию сборных домов из заранее подготовленных модулей, разработанную компанией Daiwa House Modular и опробованную как в частном домостроении, так и в других типах социального и доступного жилья.
Студенческое общежитие Делфтского технологического университета Suitе 9
Фотография © Sebastian van Damme / предоставлена Studioninedots
Студенческое общежитие Делфтского технологического университета Suitе 9
Фотография © Sebastian van Damme / предоставлена Studioninedots
Студенческое общежитие Делфтского технологического университета Suitе 9
Фотография © Sebastian van Damme / предоставлена Studioninedots
Студенческое общежитие Делфтского технологического университета Suitе 9
Фотография © Sebastian van Damme / предоставлена Studioninedots
Фасады нового здания покрыты тонкими экологически безопасными панелями, выполненными из стеклофибробетона графитового цвета в сочетании с матово-черными оконными рамами. Фрагменты перфорации разбивают плоскость, намекая на функцию скрытых за ними помещений и создавая игру света, особенно заметную в темное время.
Студенческое общежитие Делфтского технологического университета Suitе 9
Фотография © Sebastian van Damme / предоставлена Studioninedots
Студенческое общежитие Делфтского технологического университета Suitе 9
Фотография © Sebastian van Damme / предоставлена Studioninedots
Но жесткая планировка и общий сдержанный, даже грубоватый вид оказываются всего лишь первым впечатлением, транслируемым вовне. Внутри регулярный план некоторых этажей разрывает сложно устроенное «сердце» всего проекта, которым стал многоуровневый остекленный атриум с многочисленными мягкими зонами и открытыми террасами – главное место встреч и общения. Для его отделки подобрали твердую и долговечную древесину сукупиры (Sucupira Amarela) из Бразилии, которую отличает активная фактура и эффектный темно-коричневый оттенок.
Студенческое общежитие Делфтского технологического университета Suitе 9
Фотография © Sebastian van Damme / предоставлена Studioninedots
Кроме этого, в здании предусмотрены: парковка для велосипедов, общая гостиная с кухней и большим столом, отдельный ТВ-салон, коммунальная прачечная и, конечно, уютные уголки для самостоятельных занятий. Жилые и общественные зоны так или иначе оказываются связаны с «сердцем», чтобы стимулировать активную коммуникацию. Зеленая крыша (использован традиционный для таких целей очиток) также несет солнечные батареи.
За счет всего этого архитекторы и инженеры попробовали придать сборному строительству большую визуальную сложность, нащупав баланс между повторяющимися компонентами и мотивами визуальной игры. Таким образом, по их мнению, такие дома могут приобрести дополнительную ценность, а сам модульный метод – стать чем-то большим, чем просто средством ускорить строительство и значительно сэкономить средства.
Студенческое общежитие Делфтского технологического университета Suitе 9
© Studioninedots
Студенческое общежитие Делфтского технологического университета Suitе 9
© Studioninedots
