И даже если на первый взгляд кажется, что эстетика превалирует, можете быть уверены, что за внешней эффектностью кроется огромная работа команды, в которую, кроме архитекторов, дизайнеров, конструкторов и инженеров, входили социологи, психологи и маркетологи. Участие специалистов может быть опосредованным – в виде рекомендаций, методических разработок, консультаций, статей и книг, в которых суммируются годы исследований по поиску наиболее эффективных методов создания тех или иных пространств.
Особенно этот комплексный подход, объединяющий дизайн и сопутствующие науки, актуален для образовательных пространств. И в каждом случае, в каждом интерьере, особенно в тех примерах, которые прошли через весьма строгий экспертный отбор на конкурсе WAF Interiors, важно увидеть, какие именно методы и факторы легли в основу дизайнерского решения, как архитекторы и дизайнеры их учли и как они работают на практике.
Можно предположить, что именно эти аспекты, а не эффектность картинки, будут оцениваться членами жюри на защитах во время фестиваля WAF, для которого, как показала его более чем семнадцатилетняя история, характерен ответственный подход к анализу всех конкурсных проектов. К сожалению, у нас нет возможности услышать авторские презентации и задать все возникающие вопросы, но мы можем попробовать заглянуть чуть глубже и скорректировать свою оценочную шкалу, поставив пользу выше красоты.
BS Klim Op Zandbergen
Проект: Rosan Bosch Studio (Дания)
Заказчик: не публичная информация
Окончание строительства: 2024
Обучение через игру, движение и вдохновение – ключевые понятия для концепции BS Klim Op Zandbergen, новой государственной начальной школы в Зандбергене, Бельгия. Школа ставит перед собой задачу в первую очередь развивать у детей и подростков креативные и социальные навыки, а также критическое мышление. Поэтому в интерьере школы основное внимание уделено созданию вдохновляющих пространств для активных игр, коммуникации и самостоятельных занятий учеников. Интерьер школы воспринимается как своего рода «третий учитель». Для разных возрастных групп предусмотрены разные по оформлению и оснащению пространства, в каждом из которых есть спокойные зоны для концентрации, комнаты для групповых занятий и помещения с гибкой функцией. Общий приоритет – естественный свет и естественный воздухообмен.
Deloitte University Asia Pacific China
Проект: aoe (Китай)
Заказчик: Deloitte Business Skill Training (Beijing) Co., Ltd
Окончание строительства: 2024
Отделение в Пекине – одно из семи международных кампусов Deloitte University, учебных центров, созданных и развиваемых корпорацией Deloitte. Центры знакомят новых сотрудников и клиентов с принципами работы и корпоративной культурой Deloitte. Для всех кампусов действуют общие стандарты и подходы к организации и оформлению пространств с фокусом на экологию, устойчивое развитие и передовые технологии. Кроме того, в этический код корпорации входит интерес и уважение к локальной идентичности и контексту. Поэтому интерьеры каждого кампуса отличаются друг от друга.
В пекинском центре используются элементы китайской культуры, благодаря которым создается оригинальный микс традиций и футуризма. Примером может служить огромная сфера в вестибюле, напоминающая традиционный китайский фонарь. Сфера сделана из двухслойной полупрозрачной пленки ETFE. Под ней устроен амфитеатр, где студенты могут заниматься и общаться.
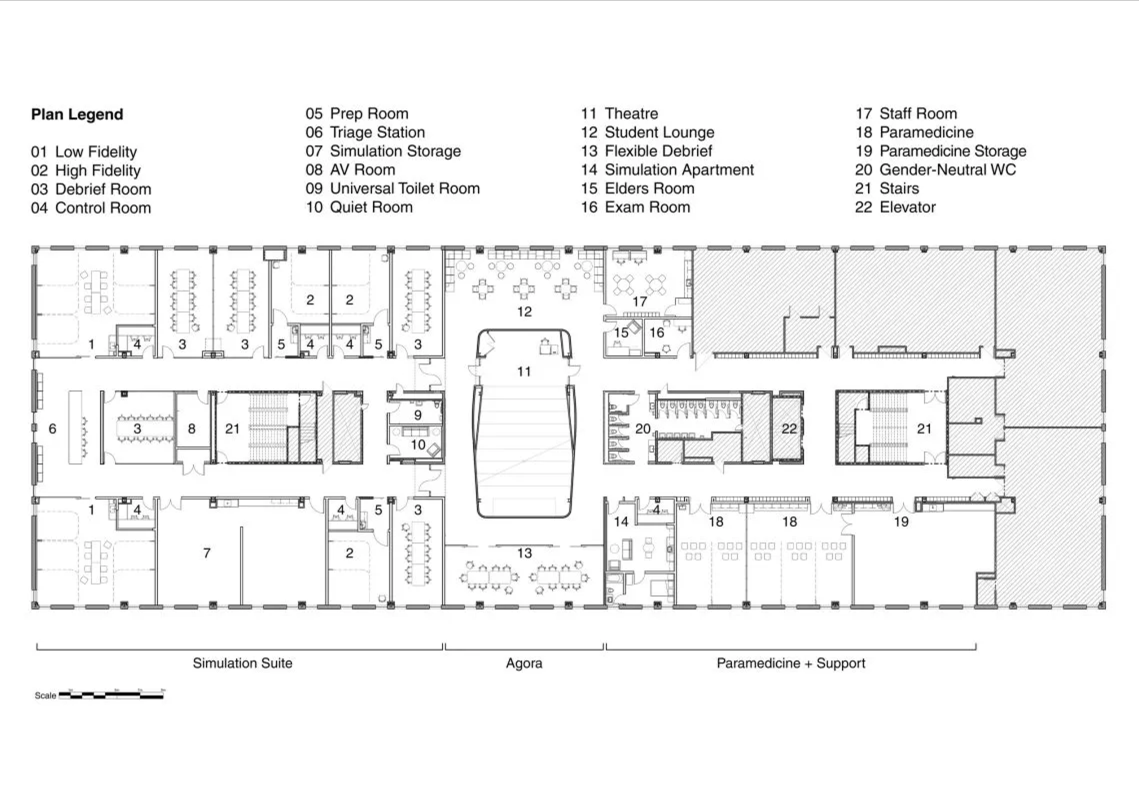
Interdisciplinary Health and Community Services Simulation Centre
Проект: Stantec (Канада)
Заказчик: Red River College Polytechnic
Окончание строительства: 2024
В междисциплинарном образовательном центре при Политехническом колледже Ред-Ривер в городе Виннипег (Канада) студенты изучают сестринское дело, смежные медицинские специальности и парамедицину с акцентом на практические навыки за счет специального оборудования, обеспечивающего реалистичную симуляцию взаимодействия с пациентами.
В центре создана среда, способствующая концентрации внимания и взаимодействию между студентами и преподавателями во время занятий для лучшего усвоения навыков. По периметру этажа расположены учебные и вспомогательные помещения, а центр этажа занимает так называемая «агора» – большое свободное пространство для самостоятельных занятий, в центре которого выделен конференц-зал.
Симуляции – стрессовый метод обучения, и для того чтобы снизить эмоциональное напряжение у студентов, в интерьере преобладает белый цвет. Для маркировки симуляционных кабинетов используются порталы бирюзового цвета, остальные помещения имеют черные порталы.
В центре также преподаются традиционные для коренных народов Канады практики целительства. Уважение к ним подчеркнуто изображениями местных лечебных растений на стенах учебных классов и коридоров.
Pure Semicircles
Проект: KTX archiLAB (Япония)
Заказчик: Seigakusha Co., Ltd.
Окончание строительства: 2025
Pure Semicircles – это центр для дополнительной подготовки учащихся младших и старших классов школы к экзаменам. Процесс обучения проходит на компьютерах и ноутбуках, поэтому помещения центра не похожи на обычные классы с рядами столов и доской, на которой учитель пишет задания. Под центр выделено компактное помещение в обычном офисном здании в центре города Осака.
В задачу архитекторов входило максимально эффективно использовать имеющуюся площадь, создав как можно больше мест для занятий при сохранении требований к индивидуальному комфорту. С точки зрения оформления интерьеров приоритетом была спокойная атмосфера, способствующая концентрации внимания. Общий минималистичный подход слегка смягчают деревянные жалюзи на окнах и живые растения, включенные в интерьер с двоякой целью: с одной стороны – сделать пространство более уютным, с другой – служить ширмой между рядами столов для занятий. Потолок в холле и комнатах для занятий отделан рифленой нержавеющей сталью, что визуально увеличивает высоту помещений. Этой же цели служит зеркальная стена в холле, создающая иллюзию большого круглого в плане зала.
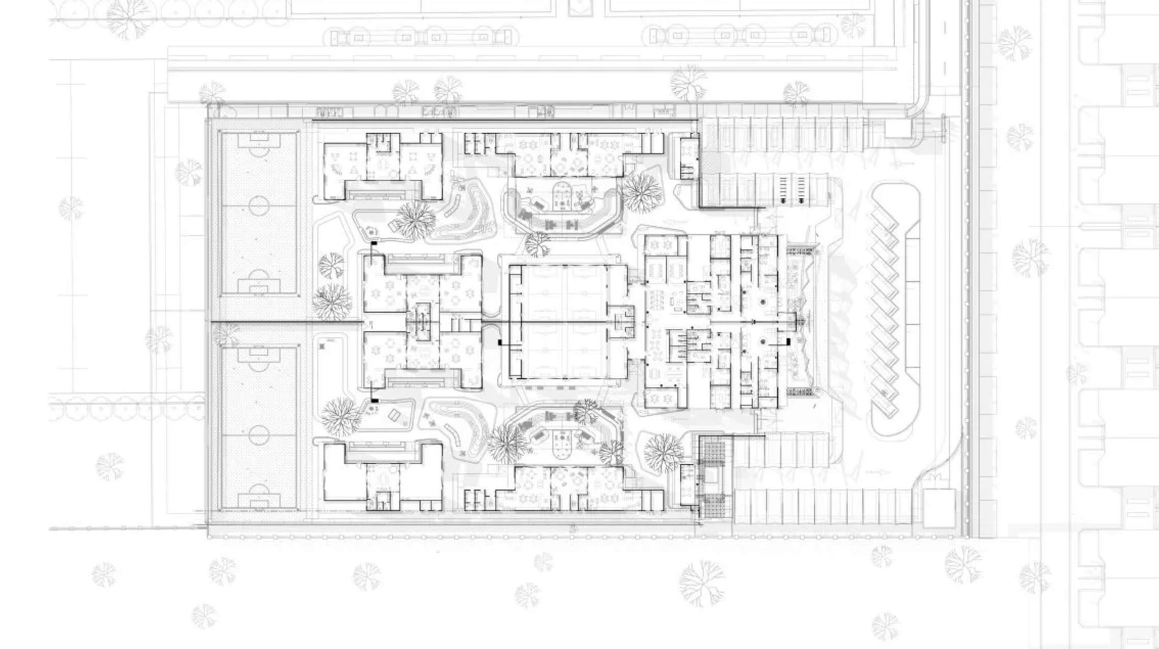
Rashid & Latifa School
Проект: Kidzink Office of Design and Architecture (ОАЭ)
Заказчик: Rashid & Latifa School
Окончание строительства: 2024
В этом проекте много необычного, но начать стоит с того, что этот масштабный кампус был построен всего за семь месяцев из модульных конструкций как временное решение, пока идет разработка концепции и проекта развития школы. То, что школа находится в Дубае, может отчасти объяснить столь радикальный подход к понятию «временный».
В школе два отделения – для девочек и для мальчиков, но оба решены на основе одинаковых подходов и планировочной структуры, что хорошо видно на плане кампуса. Прямоугольный участок разделен на три части: парковку, блок из нескольких учебных зданий и блок с двумя футбольными полями.
Вместо скучных классов для занятий созданы пространства, сочетающие домашний уют и учебное оборудование. В каждом предусмотрены места для общих и индивидуальных занятий. Рядом с каждым классом есть внутренний дворик для отдыха и игр.
В интерьер деликатно введены этнические мотивы и орнаменты. Мягкие зеленые и серо-охристые цвета напоминают палитру пустыни, а мебель, соответствующая детским размерам, и тактильно продуманный выбор материалов снижают когнитивную перегрузку и способствуют сенсорной регуляции.

