Оказалось, авторы – известные мастера, в том числе, экспозиционного дизайна: Сергей Падалко и бюро «Витрувий и сыновья». Мы попросили у авторов графику, так же как и пояснения к проекту, и с радостью их публикуем.
Собственно, стенды Петербурга на Зодчестве и раньше были заметными, но в этом можно увидеть прямо-таки метафору города: колонны, стилобат, фриз-карниз, взлетающие чайки и «вода» посередине. Кессоны. Буквы – как дома в строю «красной линии». Классичность в кубе или какой-то еще степени. Металл, серый как крейсер Аврора. Шпилей только нет, но может быть, так и надо? ЮТ
Ниже авторское описание и графика проекта. Буквы ё убрали, да простит нас императрица Елизавета.
Концепция павильона демонстрирует и отражает деятельность Комитета по градостроительству и архитектуре по формированию и реализации градостроительной политики Санкт-Петербурга, направленной на реальное взаимодействие архитектуры и общества – доступность информации и коммуникации, социальную открытость.
Объемно-планировочное решение:
Учитывая островное месторасположение павильона в общей экспозиции Международного фестиваля «Зодчество», а также зоны главного входа на площадку выставочного комплекса «Гостиный двор» и основные посетительские маршруты – предлагается организация кругового обхода вокруг павильона с возможностью попадания внутрь со всех сторон.
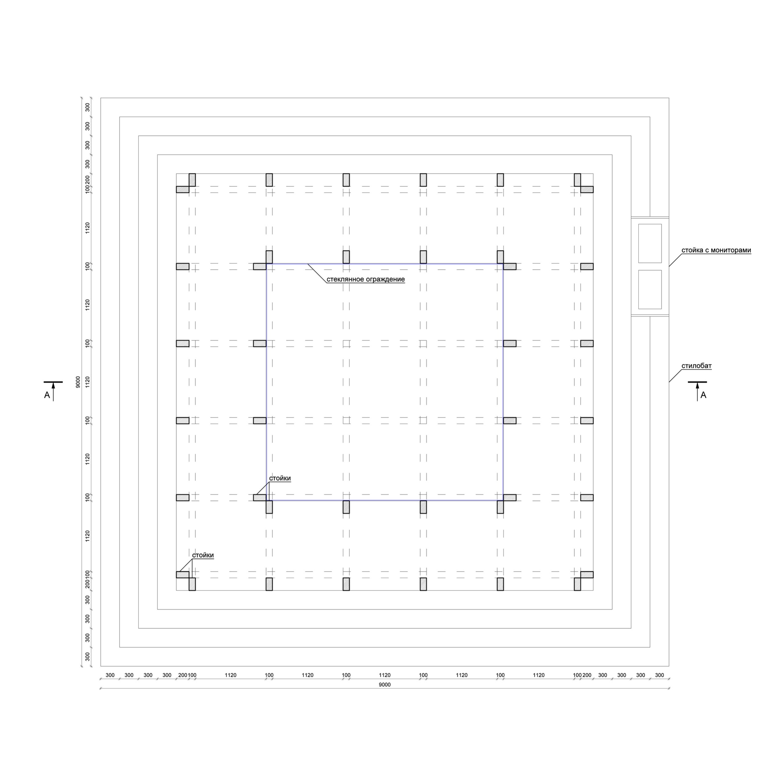
Объем павильона, квадратный в плане, установлен на ступенчатый стилобат и решен в виде открытого гипостильного зала с обходными галереями вокруг имплювия – углубленного и встроенного в пол экрана, на котором демонстрируется фильм, рассказывающий об истории возникновения и развития города Санкт-Петербурга на основе картографических материалов, позволяя проследить историю градостроительства Санкт-Петербурга на протяжении трехсот лет – от момента создания до наших дней. Просмотр фильма сопровождается специально созданной звуковой дорожкой. Архитрав выполнен в виде объемной надписи «САНКТ-ПЕТЕРБУРГ». Надпись повторяется четыре раза на каждом из фасадов павильона.
Венчает композицию стая хромированных чаек, установленных и покачивающихся на тонких стальных стержнях, как бы «парящих» над кровлей павильона.
Авторы:
Архитектурная мастерская «Витрувий и сыновья» – Сергей Падалко, Игорь Мусанов, Олег Косенко, Маргарита Никитина, Елизавета Лаврищева.
***
Как же жаль, что все это так быстро разбирают, – сказал вчера вечером нижегородский архитектор Станислав Горшунов на выходе из Гостиного Двора.

