О проекте ЖК «Новокрасково» мы уже рассказывали: он состоит из четырех крупных кварталов на Егорьевском шоссе в 15 километрах от МКАД к востоку от Люберец. Место дачное, здесь рядом небезызвестная Малаховка, но поселок сейчас застраивается многоэтажками – и работа архитекторов «Остоженки» стала здесь первым примером авторской архитектуры. Знаменито же Красково своими карьерами: они, один из результатов работы Кореневского завода стройматериалов (основанного в 1930 году, как и Малаховка), затоплены и превращены в озера.
Жилой комплекс занял территорию бывшей военной части между шоссе, улицей Чехова и Новокрасковским карьером: купаться в нем вроде бы опасно, но небольшой пляж на противоположном берегу все же есть. До недавнего времени это место выглядело заброшенным: скособоченные деревья за знакомым до боли бетонным забором ПО-2.
Теперь же оно стало совершенно городским – перед терракотово-кирпичными фасадами на перекрестке дорог благодаря небольшому скосу-повороту углового корпуса, образовалась Y-образная площадь: благодаря пространственной паузе пересечение дорог стало более осмысленным. Даже зелень вокруг как будто «подтянулась» и стала выглядеть почти парковой. Только лаконичный объем офиса продаж, салютующий с площади проезжающим автомобилям, говорит нам, что так было не всегда. Офис согласно проекту должна заменить скульптура с часами – ясное указание на городское значение площади.
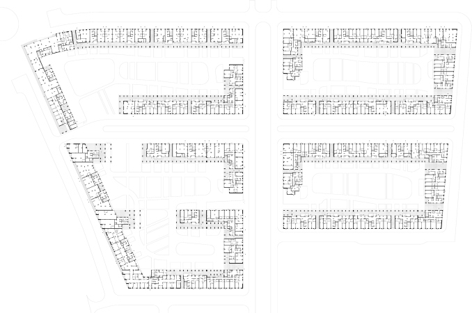
Сейчас построено два квартала из четырех – первая и вторая очереди, дома с первого по четвертый.
Но они, с одной стороны, объемнее двух других, строительство которых начинается севернее на берегу пруда, – а с другой стороны, наиболее репрезентативны. Именно эти кварталы представляют комплекс городу, и надо сказать, уже сейчас, как минимум для проезжающих машин, он выглядит завершенным и состоявшимся объектом.
Изгиб фасада перед площадью, пусть небольшой в масштабе всего комплекса, оказывается важным приемом: «росчерк пера», очень деликатный и сдержанный, обнаруживает в объемах и пластику изгиба, и, с некоторых ракурсов – остроту углового «носа», который берет на себя роль главного фасада всего комплекса. Поэтому высокий первый этаж полностью остеклен и углублен – объемный вырез достаточен для того, чтобы почувствовать эффект нависания массы дома над прозрачным первым этажом.
Кафе, магазинам и общественным пространствам отданы все первые этажи внешнего контура; в одной из секций расположилась детская поликлиника, которая уже востребована жителями окрестностей. Но решены первые этажи по-разному: тема модернистской ленты где-то продолжается, где-то сходит на нет, теряя в высоте. Вдоль Егорьевского шоссе ленту первых этажей перебивают три группы пилонов, захватывающих по два этажа вверх – «портики» в основании объемов-башен.
Устройство нижних этажей со стороны дворов еще интереснее: здесь образовано множество галерей, то на одноэтажных, то на двухэтажных по высоте опорах. Они позволяют трактовать закрытые для машин дворы как внутренние мини-площади. Опоры в основном белые, стены галерей за ними подчинены цветовому коду: оранжево-красные, кадмиево-желтые – цвета приписаны к корпусам и появляются также в ведущих во дворы «арках», лифтовых холлах с колясочными, коридорах этажей. Цвет отбрасывает рефлексы и придает глубинам галерей интригу. Этот эффект архитекторы активно использовали в комплексе «Акварели», расположенном сравнительно недалеко, в Балашихе, и завершенном на шесть лет раньше. С ним же, как впрочем и со многими другими домами «Остоженки», перекликается сложная структура объемов, сочетающая «балки» с «башнями» и изобилующая вырезами, которые оказываются одновременной вынужденной мерой, результатом поисков оптимальной инсоляции, – но и артистичным приемом, обогащающим пластику и силуэт. Родственной с «Акварелями» кажется и любовь к белому цвету – легко отражающему цвет и солнечный цвет. В данном случае архитекторы остановились на белой штукатурке, как из соображений экономии, так и образности.
Впрочем при перечисленных сходствах комплексы очень разные. Для «Новокрасково» много сильнее тема дома-крепости, этакого силуэтного абриса итальянского кастелло – чему много способствуют кирпичные снаружи фасады и возвышения башен, особенно тех трех, вдоль шоссе, в основании которых возникают пилоны «портиков». Хотя дальше контурного намека дело не заходит: не менее важен образ «города вообще», некой сложной, разновысотной и разнотоновой структуры. Белый цвет в основном принадлежит дворам, но появляется и на внешних фасадах, кирпич «заходит» внутрь, напоминая головоломку из сложно соединенных между собой разноцветных и разнофактурных частей или снежный айсберг, протаивающий внутри коричневой «корки».
Скульптурный образ продиктован не в последнюю очередь требованиями инсоляции, – поясняют авторы проекта, – но усилен «выпуском белых штукатурных фрагментов во внешний периметр и наоборот – кирпичных во дворы», – для того, чтобы избежать длинных фасадов равной высоты по периметру комплекса.
«Оба эти материала природные, «теплые», безусловно «жилые», – объясняют архитекторы, – и на уровне ощущений, при явном внешнем отличии, воспринимаются как однородные и хорошо дополняют друг друга. В русле этого решения, продиктованного, не в последнюю очередь, экономическими соображениями, был сделан выбор цвета кирпича и штукатурки и разобраны фасадные плоскости».
Но этим дело не ограничивается: разные материи фасадов в зависимости от местоположения получают разный ритм чередования вертикальных и горизонтальных окон. На кирпичных фасадах он строго шахматный, причем узкие окна образуют пары, похожие на глаза над широко открытым ртом горизонтального окна. Во дворах ряды окон становятся подвижнее и складываются в прерывистые ленты. На белых торцах возникают строгие диагональные композиции небольших проемов, отдаленно напоминающие сетку фасадов дома Мельникова. Строго диагональный ритм выдерживают и ящики для кондиционеров – на внешних фасадах они окрашены в тон стен и сливаются как с кирпичным, так и с белым цветом. Внутри дворов ящики служат элементом цветового кодирования. Они окрашены в заводских условиях, а выбранный металл с круглыми отверстиями помогает «балкончикам» нести положенную декоративную нагрузку. В сочетании с цветными откосами и чистой белизной стены всё выглядит свежо и очень чисто. Лоджии же, на внешних фасадах замаскированные «под стену», во дворах становятся стеклянными эркерами, получают легкий поворот и свою долю цвета.
Конечно же, сложный силуэт комплекса определен балансом необходимых согласно ТЗ площадей, требуемой инсоляции, высотных ограничений и градостроительной логики. Поэтому угловой корпус, обращенный к перекрестку и площади, – семиэтажный. Он служит переходным звеном к окружающей застройке, состоящей из домов по два-три этажа за деревьями, – и обеспечивает комфортный городской масштаб. Дальше в обе стороны объемы нарастают до максимальных 17 этажей. Надо сказать, что на другой стороне улицы Чехова (она же Кореневское шоссе) на территории НИИ Строительства бюро Вячеслава Богачкина проектировало жилой комплекс той же высоты, так что в процессе проектирования архитекторы «Остоженки» отликались не только на существующую застройку, но и на этот соседний проект; впрочем, будет ли он построен, пока неизвестно.
Один из важных сюжетов проекта – система зеленых пространств, пронизывающих весь микрорайон. Ряды новых, пока еще небольших, деревьев отделяют комплекс от шоссе и улицы, и окружают его по контуру. Внутри запланировано крестообразное пересечение двух бульваров. Они, в одной стороны, служат внутренними автомобильными артериями, с другой – соединяются пешеходными связями с закрытыми для машин благоустроенными дворами и с берегом карьера. Школа и надземные многоуровневые парковки на данный момент под вопросом, так как их строительство планируется на насыпных грунтах, а местные жители протестуют против засыпки части карьера. Возведение детского сада, расположенного ближе к жилым корпусам, между тем, началось.
Несмотря на достаточно сложную композицию объемов архитекторам удалось избежать острых углов в планировочных решениях и получить необходимую квартирографию – от небольших студий до просторных трехкомнатных квартир. Практически за всеми криволинейными поверхностями расположены лоджии, позволяющие решить проблему правильности форм собственно комнат, некоторые квартиры первого-второго-третьего этажей укрупнены, для того чтобы получить необходимое количество света. Выше архитекторы унифицировали планировки, учитывая эконом-класс проекта. Коридоры местами достаточно длинные, объединяют по 7-8 небольших квартир, что необходимо для экономной компоновки.
Архитекторы «Остоженки» уже давно выработали свои методы творческой и продуктивной работы с крупными жилыми комплексами: они неизменно получаются – да, большими, но узнаваемыми, авторскими и интересными. На стадии концепции рассматривался вариант башенной застройки микрорайона, однако результатом стали периметральные кварталы с живописным силуэтом, сформированным ритмично расположенными башнеобразными объемами. Комплекс стал одним из логически выверенных вариантов воплощения идеи, которую АБ «Остоженка» продвигало много лет – пожалуй, с самого основания бюро, – и которая так актуальна в наше время. Фактически, этот новый микрорайон – сам небольшой город, задающий активно растущему сейчас поселку, ранее дачно-промышленному, новые стандарты пространственной организации.




