Aleksandrovsky Sad housing complex. The location plan
Copyright: © Т+Т Architects
The complex is being built on a 2-hectare land site of a slightly zigzagged contour, yet of convenient broad proportions. It is situated in the middle of the city block, with a withdrawal from the outside streets, only stepping on the red line on the Stepana Razina Street, where the two entrances to the territory of the future housing complex will be situated. Although the place is essentially surrounded by the historical city, it has a rather mottled character, with lots of lacunae and later additions: for example, the Stepana Razina Street is dominated by the characteristic Soviet buildings, while the Chapaeva Street (ex Arkhiereiskaya, this “revolutionary” name having been given to it in the 1920) is essentially a congregation of the nineteenth century eclectics and partially classicism. The most interesting of these buildings is situated on the side that is opposite from the housing complex – it is the palace of the Oshurkov Brothers Estate, a house with luxurious Corinthian columns.
Aleksandrovsky Sad housing complex
Copyright: © T+T architects
Aleksandrovsky Sad housing complex
Copyright: © T+T architects
On the Chapaeva Street, there are three less imposing buildings, yet they are still monuments of architecture: two more Oshurkov houses, one of them the “older” one, i.e. preceding the palace across from it, and the brick house of merchant Afonin on the corner, behind which stands the corner-shaped Au Room business center, quite a decent example of modern architecture. On the Dekabristov Street, there is yet another two-story house that can be traced back to classicism; we can also see a wooden eclectic house standing next to it.
All of these historical buildings have a protected status and their respective protected zones; in addition, the architects themselves consider them to be of historical and architectural value, just as the entire Arkhiereiskaya Street, not trying to contradict it in any way, and emphasizing the project’s loyalty to the monuments. From its eastern side, the complex looks more in a neutral key, while its west facade, conversely, broadcasts the “discrete charm” of the reserved classic to the sloppy “former Soviet” context, which, essentially, is the solution of the first task that the architects set for themselves: to “merge” or “saturate” the existing environment in a conflict-free way, “glue” it together, forming a steady nucleus with a reserved and tactful classic architecture.
Aleksandrovsky Sad housing complex
Copyright: © T+T architects
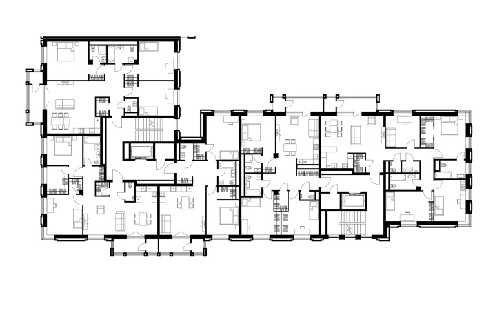
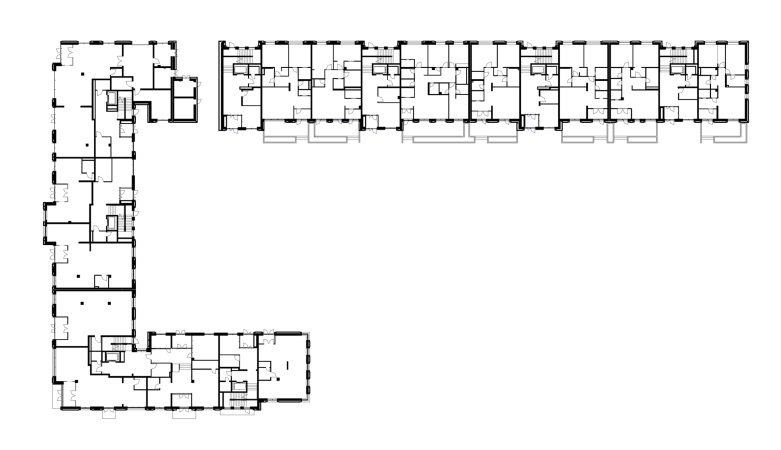
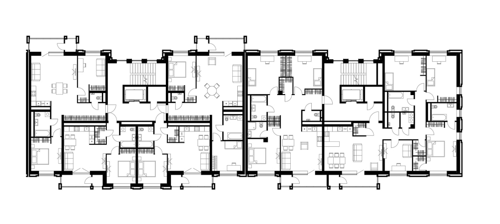
The three sectional buildings, corresponding to the three stages of construction, are all U-shaped on the plan, yet each one of different proportions. Unit 1, whose facade overlooks the Stepana Razina Street, has asymmetric “legs” that project far into the depth of the site, ending in a 4-story section of a reduced height in the area ruled by the Afonin house. Otherwise, the height of the sections varies from 7 to 9 floors. The “legs” projected by the two other units are shorter, and they are all positioned on the land site as a spacious jigsaw puzzle: the use the space efficiently, without leaving unnecessary voids, yet they do leave enough space for the yards, connected with each other, formed by the frames of the U-shaped buildings. This way, the space ends up dissected into zones, yet coherent, although not overly parceled. The one-level underground parking garage occupies the entire blueprint underneath all of the yards, the peculiar detail being that underneath the houses, there are storage places, and underneath the yard of Unit 1, there is yet another mini parking level.
Plan of the -1st level. Aleksandrovsky Sad housing complex
Copyright: © T+T architects
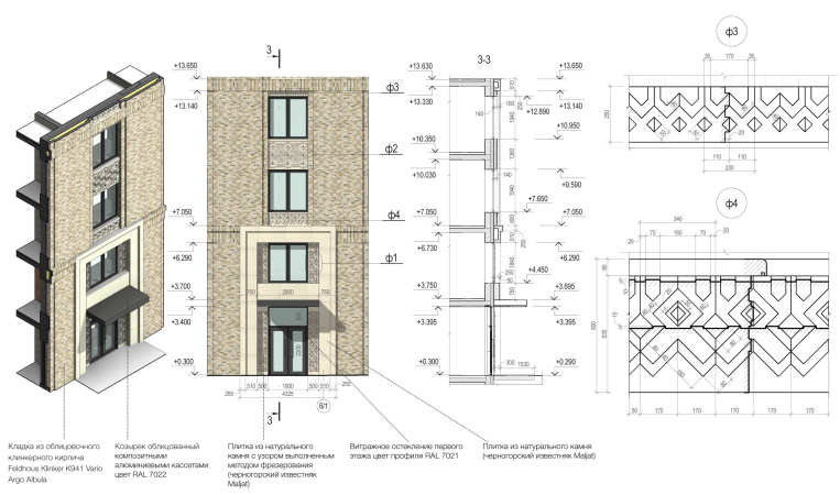
The plastique and the texture of the facades combines the technique that is characteristic of tenement houses of the eclectic period – which is more than contextual in this environment – with the techniques of Bauhaus and the “working settlements” of the 1920’s, as well as modern ones. Lots of bay windows unite the stanza balconies of the apartment: slightly more reserved on the outside facades, they afford more glass surfaces, yet in either case their image can be traced back to the XIX century. The sticking-up volumes of the staircase and elevator halls, as well as slight, one-floor high, height differences, ensure the terraced look of the complex’s silhouette, preventing monotony. The “avant-garde” corner windows not only provide the apartments with extra light, but also refer us image-wise to the XX century.
Aleksandrovsky Garden housing complex
Copyright: © T+T architects
The facades follow the principles of the classic three parts, developed in the 1930’s by Art Deco architects: the two lower floors are united by horizontal rock-face stripes of light-colored textured brick; the same kind of brick, only now without stripes, is responsible for the main “body” of the building. The two upper floors are coated with lighter stone that is dissected by thin “graphic” grooves. However, the brick bay windows, getting one tier higher, emphasize the mutual penetration of the textures, allowing the architects to avoid the excessive rigidity of the tripartite structure.
Renovation of a former industrial territory into the loft block Studio #8
Copyright: © T+T architects
But then again, the dialogue between stone and brick surfaces is to be seen everywhere around here: the facades are interpreted as multilayered ones; the ledgy brick verticals are underlined by stone horizontals – a popular technique that makes it possible to accentuate the thickness and the plastique of the wall, and, as the authors of the project justly note, resembling weaving or wickerwork.
Aleksandrovsky Sad housing complex
Copyright: © T+T architects
The stone horizontals are covered with carved ornaments that can be traced back to both folk Ural embroidery tradition and Ekaterinburg’s carved wooden frameworks around window openings. If we are to consider the fact that one of the inspiration sources for the carved wooden frameworks during the eclectic period was embroidery, it all comes back to one and the same prototype. This, however, is a minor consideration; what is more important is the fact that the authors are emphasizing the local identity of the house and its being at one with the history of the city, at the same time saturating the facades with ornaments and thus following one of the popular trends of modern architecture.
Aleksandrovsky Garden housing complex
Copyright: © T+T architects
If we really pay attention to the end result, we will see that the layered character of the facades refers us to the early French classicism, the ornaments to the wooden eclectic; the bay windows remind about the tenement houses, while the pale-beige tone of the stone and brick, just as the thin horizontal strokes, are slightly resonant with Osman Paris architecture – a similarity that the future buyers will probably warm up to.
The range of apartments is quite diverse, and is not prone to being dominated by studios, as is sometimes the case: this business class house consists chiefly of two and three room apartments, with an occasional four and five-room one. The apartments on the top floors have double-height living rooms in them; the apartments on the first floor got high ceilings, some of them also getting exists to the yard and little private gardens of their own. The premises for the commercial infrastructure premises are grouped alongside the Stepana Razina Street, where the complex “steps” on the red line; this location will also feature a mini promenade with cafe table going alongside the wing of Unit 1 – a peaceful yet still belonging to the city part of the complex.
An important task was also to turn the yards into as much as a landscaped park. The architects came up with two sets of trails: the main stone-paved ones, connecting important points, and secondary, like punctured lines in the grass, separated by hills and benches installed into the slopes. The landscape design appears not only in the yards but also in front of the facades turned inside the city block; every strip of land is used for the creation of this park. In the project, this yard is filled with functions as much as with greenery: sports fields and playgrounds for kids of different ages, gazebos, and a pergola with a swing.
The main paved trails also function as the driveways for emergency vehicles; otherwise, the yards are car-free, for the sole exception of a few overland parking places on the Stepana Razina Street. We will note here that the very idea of such “park” yard, just as the U-shaped plan of all the unite and some bias towards classicism, particularly visible on the facades, can also be understood as homage to the old town, for example, a reminiscence about the park in the Oshurkovs estate on the bank of Iset. The combination of textured facades and abundant landscaping of the yards, probably, does an adequate job of conveying the coziness of the old town, so characteristically Russian, combining the charm of the facades and the greenery.
As we can see, this housing complex corresponds to most of the modern principles of comfortable urban housing, and is respectful to the monuments of architecture, keeping a tactful distance and settling for a modest background role. It is also characterized by detailed elaboration of many of its aspects: proportions, apartment layouts, building and decoration materials, landscaping, and the lighting – all of this becomes the basis for the high quality of execution, which not necessarily must be something that immediately meets the eye. At the same time, a fair amount of respectable conservatism in this particular case does not at all mean direct borrowing from the classics or the fractured decoration pattern of the neighboring eclectic houses – the new complex is not contradicting, it is just being different.
