Усадьба в Антоновке
                Фотография © Роман Леонидов, Софья Леонидова, Владимир Грамадских
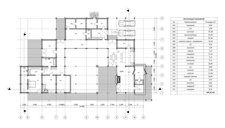
        Деревянная усадьба в Антоновке предназначена для отдыха в выходные дни, поэтому она относительно небольшая (324 м2) и представляет собой набор необходимых помещений: гостиная, столовая-кухня, спальня родителей, две детских, гостевая и баня. Дом расположен на участке покоем, хотя форма его в плане несколько сложнее, чем буква «П». Здание по большей своей части одноэтажное, лишь в самых важных помещениях, гостиной и хозяйской спальне, оно взлетает односкатным козырьком и образует в интерьерах второй свет. Третий, более низкий, скат накрывает баню.
Усадьба в Антоновке
                Фотография © Роман Леонидов, Софья Леонидова, Владимир Грамадских
        Владелец дома просил архитектора спроектировать пространство, которое напоминало бы ему о времени, проведенном на Бали. Поэтому центром композиции стал патио, окруженный стеклянной галереей со стороны дома и открытый одной стороной в сад с большими деревьями, которые удалось сохранить при строительстве. Именно эта, садово-парковая, часть дома и является его парадным фасадом, а вход и въезд осуществляются сбоку, с правой стороны, если стоять лицом к парадному фасаду. Въездной фасад решен тоже весьма интересно, но об этом чуть позже.
Роман Леонидов применил для усадьбы в Антоновке любимую им технологию фахверка. Причем деревянный каркас дома намеренно проявлен и подчеркнут. Всегда жаль, когда выразительный каркас начинают закрывать заполнением. Для дома в Антоновке архитектор придумал, как этот «костяк» сделать зримым. Во-первых, здесь очень много остекленных поверхностей. Стеклянная галерея вокруг патио, стеклянные двустворчатые двери спальни и детских, стеклянные стены гостиной и кухни-столовой.
Почти все, что смотрит в сад и в патио, – прозрачное. Соответственно, деревянные конструкции обнажены. Есть лишь небольшие кирпичные вставки – ребра жесткости и одновременно ширмы – там, где это необходимо. Из такого же темного облицовочного кирпича выложена каминная труба.
Усадьба в Антоновке
                Фотография © Роман Леонидов, Софья Леонидова, Владимир Грамадских
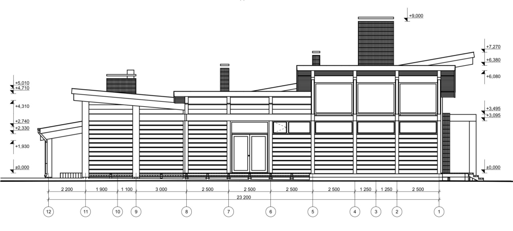
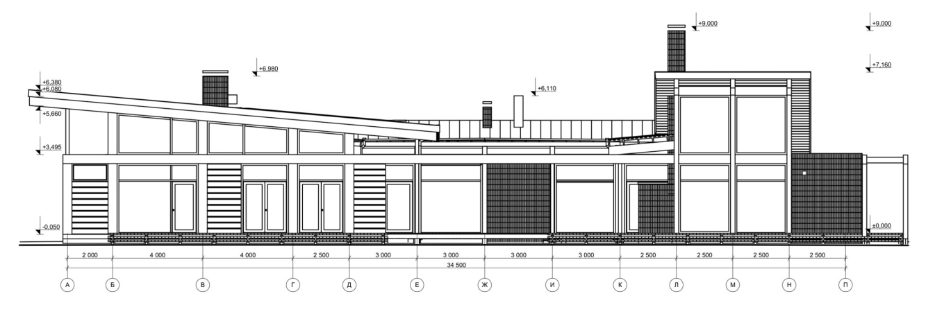
        Помимо этого, очень интересным приемом архитектор как бы отрывает скат крыши от первого, деревянного, яруса и поднимает его вверх, как трамплин, над вторым стеклянным ярусом. Вообще, Роман Леонидов любит эту авангардную форму взлетающей крыши, пришедшую к нам из ХХ века, нечто подобное есть и в других его постройках, например в доме Cool House. Особенно выразительно данный прием применен на въездном фасаде. Перед нами сплошная деревянная диагональ кровли, – плоскость, которая начинается невысоко от земли и постепенно набирает высоту. В правой части она служит навесом для автомобилей, в левой она минует обобщенный деревянный портик над главным входом и взмывает ввысь над стеклянным вторым ярусом.
Усадьба в Антоновке
                Фотография © Роман Леонидов, Софья Леонидова, Владимир Грамадских
        По словам Романа Леонидова, основным является вход в дом из-под навеса, вход же с портиком – элемент статуса; портик отдаленно напоминает о классике, хотя вместо колонн здесь пять асимметрично поставленных деревянных опор, с нетипичным для классики четным количеством осей. И расположен портик не по центру, однако вход, также смещенный от центра, портик акцентирует расширенным интерколумнием.
Усадьба в Антоновке
                Фотография © Роман Леонидов, Софья Леонидова, Владимир Грамадских
        Похожим образом решен блок хозяйской спальни. Кровля также «отрывается» от закрытого деревянного первого яруса и стремится вверх. Только это движение направлено не параллельно общественному корпусу, а перпендикулярно и в сторону, что придает композиции дополнительную динамику. Кровля бани также направлена вверх и повернута перпендикулярно относительно хозяйского блока. Таким образом, образуются три «трамплина» в объемной композиции дома, направленные в три из четырех сторон света.
Усадьба в Антоновке
                Фотография © Роман Леонидов, Софья Леонидова, Владимир Грамадских
        Деревянные конструкции кровли эффектно просвечивают сквозь стекло, особенно в вечернее время, когда дом сияет всеми огнями.
Эффект обнаженной конструкции присутствует и в патио. Это пространство также «расчерчено» деревянными балками и стальными опорами, отчего оно воспринимается более сложным и структурированным и визуально кажется больше. Особенно подчеркнута сплошная горизонталь, балка, тянущаяся через весь парадный фронт на границе с садом. К тому же это не просто конструкции, а частично – перголы, которые традиционно создают тень, прохладу, уют и смогут быть со временем увиты виноградом. (Еще одна пергола дополняет портик на въездном фасаде). Патио состоит из нескольких частей: подиум, отделяющий его от сада, частично крытая терраса, граничащая с гостиной, и зеленая лужайка с мощеной дорожкой в центре.
Патио немного напоминает сцену со сложными декорациями, тем более что в него и на подиум выходят двери абсолютно всех комнат. Это было сделано для того, чтобы все члены семьи могли уединиться, не привлекая к себе внимания, – комнаты полностью автономны, у них есть и дублирующие двери внутрь дома. Пространство патио с перголами действительно становится центром жизни дома; видное отовсюду – из сада и из интерьера – оно притягивает к себе. Деревянная архитектура под открытым небом настраивает на отдых. А встроенность патио в общую фахверковую конструкцию рождает новый художественный прием, который можно применять и в других произведениях.

 
                         
            
            
        
 
                            
 
                             
                                         
                                         
                                         
                                         
                                         
                                         
                             
                             
                             
                             
                                         
                                         
                                         
                                         
                                         
                                        
 
                     
                                                                        
                                                                     
                                                                        
                                                                     
                                                                        
                                                                     
                                                                        
                                                                     
                                                                        
                                                                     
                                                                        
                                                                     
                                                                        
                                                                     
                                                                        
                                                                     
                                                                        
                                                                     
                                                                        
                                                                     
                                                                        
                                                                     
                                                                        
                                                                     
                                                                        
                                                                     
                                                                        
                                                                     
                                                                        
                                                                     
                                                                        
                                                                     
                                                                        
                                                                     
                                                                        
                                                                     
                                                                        
                                                                     
                                                                        
                                                                     
                                                                        
                                                                     
                                                                        
                                                                     
                                                                        
                                                                     
                                                                        
                                                                     
                                                                        
                                                                     
                                                                        
                                                                     
                                                                        
                                                                     
                                                                        
                                                                     
                                                                        
                                                                     
                                                                        
                                                                     
                                                                        
                                                                     
                                                                        
                                                                     
                                                                        
                                                                     
                                                                        
                                                                     
                                                                        
                                                                     
                                                                        
                                                                     
                                                                        
                                                                     
                                                                        
                                                                     
                                                                        
                                                                     
                                                                        
                                                                     
                                                                        
                                                                     
                                                                        
                                                                     
                                                                        
                                                                     
                                                                        
                                                                     
                                                                        
                                                                     
                                                                        
                                                                     
                                                                        
                                                                     
                                                                        
                                                                     
                                                                        
                                                                     
                                                                        
                                                                     
                                                                        
                                                                     
                                                                        
                                                                     
                                                                        
                                                                     
                                                                        
                                                                     
                                                                        
                                                                     
                                                                        
                                                                     
                                                                        
                                                                     
                                                                        
                                                                     
                                                                        
                                                                     
                                                                        
                                                                     
                                                                        
                                                                     
                                                                        
                                                                     
                                                                        
                                                                     
                                                                        
                                                                     
                                                                        
                                                                     
                                                                        
                                                                     
                                                                        
                                                                     
                                                                        
                                                                     
                                                                        
                                                                     
                                                                        
                                                                     
                                                                        
                                                                     
                                                                        
                                                                     
                                                                        
                                                                     
                                                                        
                                                                     
                                                                        
                                                                     
                                                                        
                                                                     
                                                                        
                                                                     
                                                                        
                                                                     
                                                                        
                                                                     
                                                                        
                                                                     
                                                                        
                                                                     
                                                                        
                                                                     
                                                                        
                                                                     
                                                                        
                                                                     
                                                                        
                                                                     
                                                                        
                                                                     
                                                                        
                                                                     
                                                                        
                                                                     
                                                                        
                                                                     
                                                                        
                                                                     
                                                                        
                                                                     
                                                                        
                                                                     
                                                                        
                                                                     
                                                                        
                                                                     
                                                                        
                                                                     
                                                                        
                                                                     
                                                                        
                                                                     
                                                                        
                                                                     
                                                                        
                                                                     
                                                                        
                                                                     
                                                                        
                                                                     
                                                                        
                                                                     
                                        