Архитекторы бюро Романа Леонидова спроектировали особняк в эстетике авангардных принципов прозрачности, подвижности и подвешенности. Главный прием, который держит композицию, – двойная консоль, парящая над землей. Ее весомость и материальность подчеркнуты облицовкой белым камнем. Это две мощных горизонтали, обнимающие второй этаж, соединенные между собой вертикалью. Левитация всячески подчеркнута. Второй этаж объёмнее первого. Тяжелые консоли нависают над первым этажом, который утоплен вглубь и имеет почти сплошное остекление. И получается, что длинные консоли опираются на стеклянный угол! Психологически это воспринимается так, будто консоли имеют одну белую опору в центре. Эффект почти спортивный – это трудно-выполнимый кульбит: подобный драматический эффект можно наблюдать, скажем, в вилле Колхаса в Бордо. То есть у особняка есть «мускулы», если он может такие консоли держать на весу.
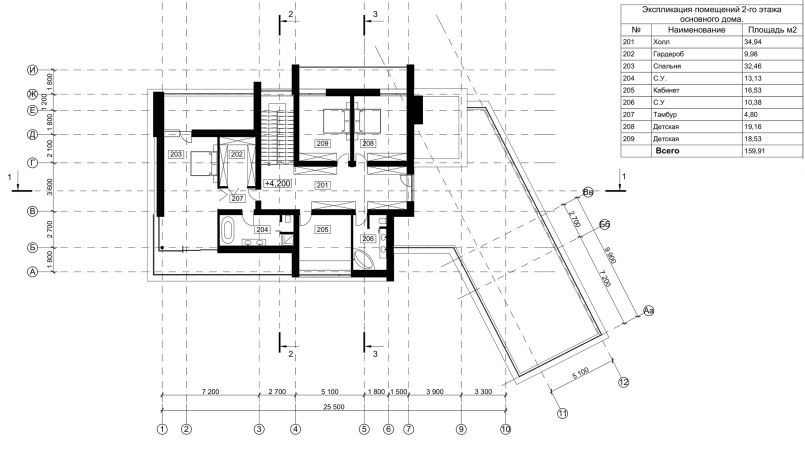
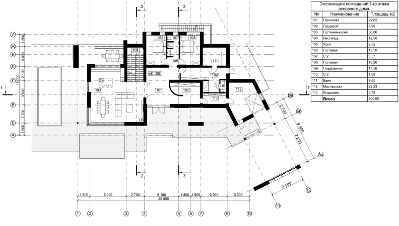
Чтобы освободить больше места для будущего сада, дом сдвинут к границе с соседями, а гараж развернут под углом к основному корпусу, в целом план дома следует геометрии участка. Общественные пространства и гостевые комнаты размещены на первом этаже, приватные и детские – на втором, спортивные и технические помещения – в цокольном.
На крыше гаража расположена большая открытая терраса с круговой панорамой. Вообще в особняке много террас и балконов – открытых и укромных, с навесом и без. К примеру в дальней части дома прячется зона для барбекю, а прикрывающая ее кирпичная стена служит каминной трубой и необходимой в этом месте вертикалью.
Прозрачность дома, хотя и не абсолютная, но значительная, совпадает с парадными помещениями. На первом этаже упоминавшийся уже стеклянный угол соответствует гостиной-столовой, которая и внутри выглядит так же эффектно, как и снаружи.
Особняк Данилова
© Архитектурное бюро Романа Леонидова
На втором этаже такой же авангардный стеклянный угол у хозяйской спальни. К спальне примыкает с одной стороны крытая терраса со стеклянным ограждением, выходящая на парадный фасад, а с противоположной стороны спальня заканчивается просторной лоджией. Так прозрачность и открытость сохраняются даже в приватных комнатах.
Динамичность достигается сопоставлением разных плоскостей, облицованных разными материалами, которые выстроены в уравновешенную композицию. Теплых тонов лиственница в любую погоду кажется освещенной солнцем. Дереву противопоставлена кирпичная фактура и белый камень, который, как уже говорилось, выделяет главные конструктивные и композиционные горизонтальные элементы. Разные по цвету и глубине прямоугольники складываются в супрематическую композицию или в объемный контррельеф. На каждом фасаде – своя композиция. Дом становится символом современности и открытого нрава.


