Вилла «Грейс» построена на территории одного из старых дачных поселков Подмосковья, среди «корабельных» сосен, создающих ощущение настоящего леса. Сами авторы предпочитают называть виллу усадьбой – это все же комплекс построек, вписанных в ландшафт и предлагающих своим жителям определенный образ жизни, отличный от дачного или городского. В первую очередь, он подразумевает больший контакт с природой и сменой сезонов, определенную автономность и свободу всех членов семьи, но в то же время – и более тесную их «совместность». И, естественно, – комфорт на всех уровнях бытовой и деловой жизни.
Площадь участка на первый взгляд достаточно большая – около 50 соток. В самых первых подходах предполагалось строить новый дом на «пятне» старого, однако быстро стало понятно, что этого объема будет недостаточно для всех тех сценариев, которые владельцы хотели бы воплощать в жизнь. Например, сейчас в доме есть отдельная профессиональная кухня, полностью выполненная из нержавеющей стали, поскольку хозяин умеет и ловить рыбу, и разделывать ее, и готовить. В габаритах дома сыграл свою роль и авторский подход Романа Леонидова – архитектор стремится не к компактности, а к широте и определенному размаху, которые дают чувство изобильности и достаточности.
Поэтому финальный объем всех построек занял примерно половину участка. В процессе строительства, когда очертания пространства становились все более ясными, заказчик вносил некоторые поправки. Например, с южной стороны появилась остекленная терраса, а отдельно стоящий банный комплекс заменили на детскую площадку, перенеся его функции в подвальное помещение.
Линия застройки тяготеет к юго-западной границе участка, следуя ее изгибу. Панорамные окна общих комнат и спален при такой компоновке оказываются ориентированы на сохранившийся участок соснового бора. Но и пространство «заднего двора» между забором и более плоским фасадом остается насыщенным и функциональным. Из-за линейности дом раскрывается постепенно. При входе на участок находится блок хозяйственных построек: гараж, парковка под навесом, флигель для проживания персонала и хранения малой техники. Композиционно эти объемы фланкируют двор, делая его более защищенным и уютным.
Далее – главный дом. Можно сказать, что он состоит из четырех отдельных, но связанных друг с другом вилл. У всех этих объемов скатная кровля с разным уровнем наклона и довольно выраженная пластика. Каждый функциональный блок легко опознается снаружи. С южной стороны дом более плоский, а с «парадной» – прирастает террасами, балконами, верандами, что обеспечивает ему активную пластику.
Сочетание разных по высоте и конфигурации объемов – уже самодостаточный и сильный прием, поэтому архитекторы отказались от какого-либо декора и постарались убрать любой визуальный «шум»: водостоки, например, встроенные. На стенах используется только штукатурка и известняк, ребристая фактура которого помогает выделить тот ли иной объем. Также ввели небольшое количество дерева: контрастная белому пергола делает абрис здания легко читаемым.
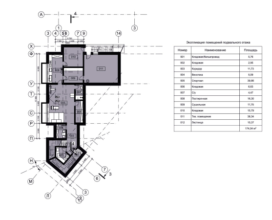
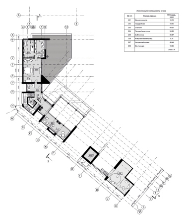
Самая первая «вилла» – родительская. На первом этаже располагается кабинет и гостевая комната, на втором – мастер-спальня с выходом на большую террасу и другими радостями жизни: большой гардеробной и ванной комнатой с окном. Подвальный уровень помимо вспомогательных и инженерных помещений включает винотеку, спортивный зал и спа-зону с сауной и хаммамом.
В том месте, где дом изгибается, авторы располагают «шарнир» – связующее звено, которое обеспечивает связь между этажами, приватными и общественными помещениями. Под винтовой лестницей умещается кладовая.
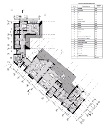
Вторая вилла – двусветная гостиная с выходом на веранду. Небольшую часть второго уровня занимает мини-кухня и галерея, которая соединяет мастер-спальню с библиотекой – довольно изолированным и тихим помещением в стороне от общих маршрутов. Третья вилла – кухня-столовая с выходом на остекленную веранду. В силуэте это самый низкий блок, здесь нет второго этажа или второго света.
И, наконец, в наиболее удаленной от дороги и въезда части располагается четвертая вилла – двухуровневая детская. На первом этаже – две спальни и игровая комната, на втором антресольном уровне – спортивно-игровое пространство с сеткой-гамаком, подвешенной над лестницей. Детский блок имеет отдельный вход с улицы.
Одна из главных задач, которую Роман Леонидов решал в этом и многих других своих проектах, – сделать границу между внутренними и внешними пространствами менее ощутимой. Для этого во многих помещениях окна сделаны не только панорамными, берущими в раму лучшие виды, но они также выходят на две стороны – так достигается проницаемость, ощущение воздуха, чувство перемены света, а взгляд все время встречает небо или верхушки сосен. В оформлении интерьеров дизайнеры Ольга Буденная и Светлана Фианцева стремились, чтобы этот фокус внимания не смещался на отделку.
Задача ландшафта – соединить постройку с природным окружением. С парадной стороны дом обрамляют пышные кусты гортензий и альпийские композиции, а с южной воспроизведена близкая к лесной экосистема, напоминающая заросли черники и брусники. П-образная арка, которая играет роль малой архитектурной формы, изначально была частью остекленной перголы, которую не стали возводить. В процессе строительства хотели убрать и арку, но в конце концов элемент так «врос» в пейзаж и удачно собрал различные зоны, что его решили оставить.
При «армейской дисциплине» строительной группы возведение дома потребовало пять лет. Как и всегда, мастерская сопроводила проект подробным освещением всех этапов: можно ознакомиться с обзором от Романа Леонидова, послушать детальный рассказ об инженерных узлах, а отдельный выпуск посвящен интерьерным решениям.



