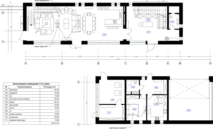
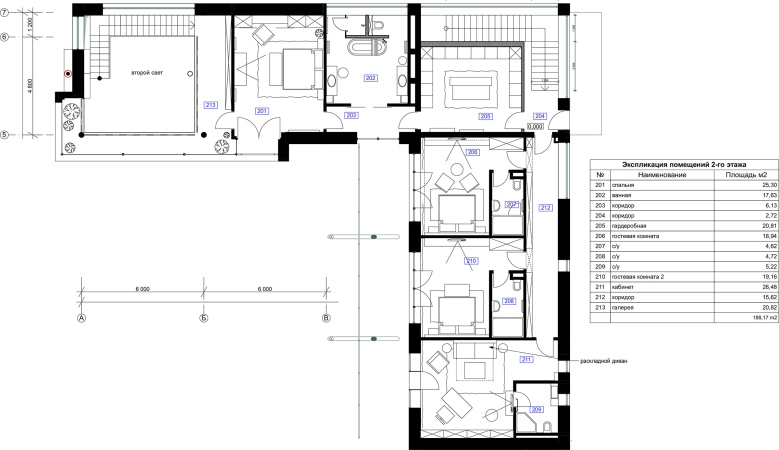
Два параллельных параллелепипеда, двухэтажный побольше и одноярусный поменьше, соединены перекладиной обитаемого моста. В двухэтажном корпусе расположена общественная зона: гостиная, столовая, кухня внизу и хозяйская спальня вверху. В одноэтажном – гараж и хозблок. Внутри «моста» – гостевые и кабинет. Въезд осуществляется со стороны дороги прямо под «мост»-перемычку. Там же расположен главный вход в высокий корпус.
Ориентация дома дает чувство защиты и простора одновременно. Отношение дома к улице недвусмысленное: уличный фасад, условно говоря, крепостной – с узкими горизонтальными и вертикальными окнами, которые свет снаружи пропускают, но расположены высоко, сквозь них ничего не видно с улицы.
Усадьба Завидное. Фотография
© Софья Леонидова
Садовые фасады, наоборот, прозрачные: сплошные стеклянные стены в двухэтажной гостиной и окна от пола до потолка в детских. Надо сказать, что детскими они были десять лет назад, но теперь дети выросли, и это гостевые комнаты.
Роман Леонидов: «Мы начали проектировать дом 5 лет назад. Заказчик – топ-менеджер строительной корпорации, тогда ему было примерно сорок пять. Сейчас бы я для этого же заказчика на этом же месте сделал другой проект, более простой, пожалуй. Заказчик хотел современный стиль».
Архитектор предложил вариант модернизма с чертами хайтека. В целом решение дома со светлой каменной облицовкой верхнего яруса и цветным камнем нижнего спокойное и элегантное, но Роман Леонидов решил обострить пластику с помощью крыши с огромным козырьком, который больше пристал какому-нибудь общественному хайтековому зданию спортивной функции вроде горнолыжной трубы красногорского Снежкома. Этот активный элемент, крыша-козырек, облицованная алюминием, накрывает главный корпус, образуя со стороны сада огромный вынос, опирающийся на стальную раму. Под ним на уровне первого этажа, на открытом воздухе, но под монументальным навесом, поместилась зона барбекю. Ее границы – подпорные стенки садовых террас, защищают от ветра и в то же время углубляют пространство.
Усадьба Завидное. Фотография
© Софья Леонидова
Крыша-козырек живет отдельно от основного параллелепипеда, она зрительно оторвана от него рядом ленточных окон и как бы парит в воздухе. С другого конца параллелепипеда, обращенного к улице, вынос козырька тоже есть, но поменьше. Высокое пространство под козырьком придает дому масштаб выставочного павильона.
Второй активный выставочный мотив – это мост на V-образных опорах. Они тоже повышают хайтековый градус архитектуры. Внутри моста очень правильно и романтично расположены гостевые, бывшие детские, комнаты. Вдоль них можно пройти не только по внутреннему коридору, но и бегать друг к другу в гости по галерее под деревянной перголой. По галереям также удобно спуститься к открытой террасе на крыше невысокого гаража.
Усадьба Завидное. Фотография
© Софья Леонидова
Интерьер главного корпуса построен на сочетании белых стен и теплого дерева. Прихожая, кухня, столовая и гостиная с камином объединены в одно пространство. Причем после череды одноэтажных зон высокая двусветная гостиная со стеклянными витражами в двух ярусах, стеклянной галереей и зрелищной лестницей создает драматический эффект. Камин, похожий на маятник – безусловный центр композиции.
Усадьба Завидное. Фотография
© Софья Леонидова
Стена, граничащая с внешним пространством, с зоной барбекю, облицована шершавым природным камнем в той части, где проходят печные трубы, напоминая об облицовке фасада, устанавливая связь интерьера с внешним миром.
Из гостиной через стеклянные двери можно выйти в зону барбекю и в сад, к дополнительным парковочным местам, образовавшимся под мостом. В целом интерьер общественной зоны с его простором и архитектурной многодельностью, галерейным освещением, открытой лестницей, белыми стенами, произведениями искусства, стеклянными ограждениями верхнего яруса напоминает торжественное пространство художественной галереи.


