The land site on the Moskovskaya street next to the Moskovskaya metro station, however, is quite different. It is part of the spacious territory of the former Bearing plant GPZ-4, intended to be turned into a residential area, i.e. an example of post-industrial redevelopment and transforming industrial estate into an urban fabric. The former plant is surrounded by the 1970’s construction, and is situated, speaking in general terms, at the border between the historical center and the Soviet part of Samara; a kilometer and a half in a straight line in the direction of the Volga, there is yet another large plant – the Maslennikov Factory, and its “wholesale kitchen and restaurant” building has been recently renovated to host a branch of the Tretyakov gallery.
The outlines of the territory of the former Bearing plan form a triangle because the Moscow Highway makes a 45° turn in the direction of the river. The entrance to the city from the side of Moscow and from the Kurumoch airport is hailed by the sharp nose of the triangle – by all the parameters, it looks like it lends itself for an entrance highlight, such as a tower or propylaea. All the more so because the left half of the “propylaea” at the fork is already there – this is the shopping and office center “Vertical” that features a 27-story tower, which is currently considered to be the city’s second highest.
The roundabout before the territory of the Bearing Plant, view in the direction of the city center, left of the Vertical mall
Samara – Yandex Maps
Judging by the views commanded by Vertical, the residents’ apartments will also command sweeping views: the Volga with its islands and backwaters, as well as the hills of the “Samarskaya Luka” national park on the opposite bank, and the Zhiguli Mountains in the distance.
Hence, it comes as no surprise that the maximum allowed height of construction here is 125m.
In 2020, a Samara-based developer held a competition for the concept of a high-rise multifunctional complex that will be built in the most advantageous of locations – in the triangular “nose” part of the territory of the former plan, a site with an area of 1.04 hectares. From the very start, the height was set at a maximum. The competition was won by Moscow-based T+T architects led by Sergey Trukhanov. Currently, the architects are working on the detailed concept.
The client set the task of offering interesting architectural solutions both at the competition and during the subsequent revision. We had to design, if not an iconic building, then at least a noticeable landmark, modern and matching the business class of the project.
I should note that the customer supported our original idea with “swivel” cantilevered structures, an emphasis on the plastique of the side-end facades, despite the fact that its implementation, of course, would be fraught with certain challenges, although they cannot be called prohibitively complex.… In particular, the “swivel” places yielded particularly spacious apartments; had it been without the swivels, we could have cut out smaller apartment, but the architectural solution turned out to be more important – we, as the authors of the project, of course, are very happy with this approach.
I should note that the customer supported our original idea with “swivel” cantilevered structures, an emphasis on the plastique of the side-end facades, despite the fact that its implementation, of course, would be fraught with certain challenges, although they cannot be called prohibitively complex.… In particular, the “swivel” places yielded particularly spacious apartments; had it been without the swivels, we could have cut out smaller apartment, but the architectural solution turned out to be more important – we, as the authors of the project, of course, are very happy with this approach.
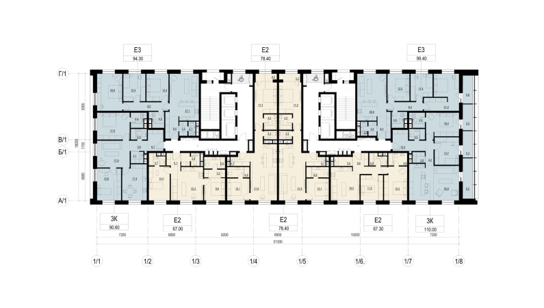
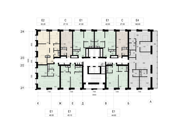
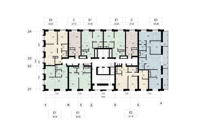
In spite of the fact that theoretically the architects could propose two towers of equal height, they discarded this approach as excessive, and ultimately, after the detailed concept was finished, the housing complex was composed of two different buildings. The buildings stand at an angle to one another, opening up towards the Volga and converging to the road junction. The volumes follow the directions of the main highways that form the site: the 22-story 2-section Building B on the left, from the side of the Vertical mall, stretches parallel to the Moscow Highway, and the 34-story 125m tower of Building A is turned to stand parallel to the Lunacharskogo Street.
The architectural concept of the multifunctional housing complex. The master plan
Copyright: © Т+Т Architects
The main side-end facades are designed like a giant Jenga, and are composed of cantilevers, turned one after another: the high-rises look, as if they are “put together” in front of our eyes of several parallelepipeds. The side end of the minor house is designed in a more reserved way – it is divided into three equal parts six stories high each, while the cantilevered volumes of the main tower are rapidly growing: 3-6-21, emphasizing the slenderness of the high-rise silhouette.
The architectural concept of the multifunctional housing complex
Copyright: © Т+Т Architects
An important part in forming the “main façade” of the complex is played by the turns of the cantilevers, mentioned by Sergey Trukhanov. They do not just break at an angle – the outer surface bends smoothly, like a “gooseneck”, despite the fact that the “heads” seem to be examining the views of the crossroads and “exchange glances”. This adds some intrigue and dynamics and helps to fully explore the potential of the two volumes as a meaningful accent in the city space. At the same time, the above mentioned turns of the blocks add to the diversity of the views commanded by the apartments.
The buildings also differ from each other in their color, materials, decoration techniques, and even some stylistic preferences. The architects plan to clad the smaller volume in semi-opaque ceramic panels; the side-end cantilevers are encircled with “television” frameworks. The taller tower, more energetic by many parameters, is biased towards black: dark tinted glass, dark metal, and slender vertical faceting on the sidewalls.
The warm hue of the light-colored ceramics looks like plaster – the main “body” material of “classic” architecture. The material part is further strengthened by broad contour lines at the corners; on the farther sidewall, the verticals of the piers get grooves that look like flutes, which in a nuanced way echo Art-Deco architecture, consistently popular with developers.
The black tower, on the other hand, is closer to hi-tech due to its color, abundance of metal, and even the graphic horizontal “strokes” on the inner façade. All these allusions, however, are given merely as a hint: the houses are just as different as they are similar, just like “kin” towers should be within a single complex. For example, the main side ends are dominated by glass: combined with stemalite, it forms striking glass surfaces adorned by a fine relief grid.
The two buildings spring from a three-story stylobate with retail – stores, restaurants, a kindergarten, as well as playgrounds and public functions on all the three levels. On the plan, the stylobate is formed by two arcs – the elegant curve of its outer façade forms a plaza with a little park on the triangular “nose” in front of it. All of these spaces are open to the city people.
The plaza and the promenade running along the shop windows are continued by an amphitheater in a tell “arch” – a two-story rectangular opening with a slight perspective narrowing, cut along the stylobate’s symmetry axis. The arch is red–gold because of the reddish metal of the facing cassettes. Its upper opening faces west and, presumably, the red metal will catch and enhance the sunset light, making the evening time in the amphitheater space cozy and pleasant thanks to the opportunity to sit on the steps in the warm rays of the setting sun.
Residents will be able to climb the stairs inside the arch to their fenced yard on the roof of the stylobate; here, at the top, the boundary of the urban and private space of the complex will pass. The greenery of the yard, figuratively speaking, “descends” to the steps of the amphitheater: there will be both bushes and trees in there.
As for the yard on the roof of the stylobate, which covers an underground parking garage (2 levels underground, and one “behind the back” of the retail on the zero level), it is planned that it will be very green, very well lit, and landscaped abundantly enough – we will note here that the T+T portfolio includes quite a lot of projects of landscaping large housing complexes (including Moscow ones),and this expertise will surely be used.
The selection of apartments, as we usually say in such cases, is as diverse as the business class of the complex implies. The high-rise building A has more three-room apartments with an odd inclusion of a four-room one – not counting the living rooms; the 22-story building B is more biased to two- and single-room apartments; there are also studios, but they are not numerous.
Curiously, this housing complex on the Moscow Highway in Samara is one of the first cases when T+T Architects actively used VR technologies as a design tool and a way to shortcut the distance between the architect and the developer. The VR model allowed the team to assess the scale, work on improving the composition, proportions, and even ergonomics. The client, on the other hand, got an opportunity to see the project through the eyes of the architects – and NOT as a “glamorous” presentation, but in a state of a real working process – Sergey Trukhanov emphasizes. The experience turned out to be positive, and allowed the team to save up their nerve cells and time; the architects are planning to continue to work with VR technologies.
Examples of VR videos made in the process of working on the project:
In the future, the company plans to continue working with the Samara-based company “APK Ritm”, which handles the Project and Working Documents stages; however, T+T Architects do author supervision at all stages of construction.
Thus, the complex, which together with the existing “Vertical” forms a high-rise “gate” of the entrance to the central part of the city, fits in with many metropolitan trends of recent years. Starting from the prestigious height –it is known that apartments are bought better and are more expensive in skyscrapers – and ending with the public spaces that the architects are planning to provide. Despite the fact that the Moskovskaya station area is still not deprived of public functions and retail, there are parks, clinics, and cafes with shops around – those additions that the stylobate part of the residential complex is designed to give the city seem useful. The complex is not just integrated into the existing system of public spaces, but develops it, offering a better organized and “advanced” version of the “urban scene”, designed both to intensify life, create some kind of active “hub” and simply give people yet another chance to admire the city, experiencing its space in a new capacity.
