Aleksey Gastev was a revolutionary, trade union activist, ideologist of the Proletkult, and also a poet and, most importantly, one of the founders of the Soviet movement of “Scientific Organization of Labor”, and the “Central Institute of Labor”. He was also the author of the “social engineering” program, “applied sociology of labor” and the theory of lean production. The essence of the first was to accurately and economically organize the joint work of man and machine, which is clearly inspired by Henry Ford’s conveyor, although Gastev gained experience working as a mechanic in France; the second – to the collection of primary information directly on the production: what is wrong? Why does the worker work slow? – and so on. The third one is still used to hold the Lean Production Leaders Cup.
Aleksey Gastev died in Kommunarka in 1939.
This is what an optimal hammer swing looks like according to Aleksey Gastev. Cyclogram of chiseling with a chisel. Alexei Gastev in the pedagogical laboratory of the Central Institute of Labor. From the book: Labor Attitudes, Moscow, CIT, 1924
Copyright: © Lyzlov Architectural Studio
He was born in Suzdal, and Suzdal was also the place where he was exiled in the Tsarist time. This is why one of Suzdal’s streets bears his name.
Dmitry Razumov is an entrepreneur, CEO of ONEXIM Group and at various times a member of the boards of directors of several companies, from Nornickel to Megafon. He is also a philanthropist and founder of the MIRA Center in Suzdal, which includes a library, a recording studio, and an exhibition hall.
Dmitry Razumov decided to build a museum of Alexei Gastev in Suzdal, on Gastev Street, 1.
Since the beginning of 2021, the project has been curated by Nikolay Lyzlov. He proposed a very characteristic project, according to the author’s description, “in the spirit of the Avant-garde and Gastev’s views, with the preservation of traditional forms and materials of Suzdal”.
It is hard to imagine a place more inappropriate for the notion of “avant-garde” than the ancient town of Suzdal, which, after happily avoiding the construction of the railroad, turned into a vivid example of a bourgeois “semi-village” town, exceptionally sleepy and drowned in vegetable gardens, which now constitute its tourist charm. There is not a single monument of constructivism in Suzdal. On the other hand, avant-garde artists sometimes did develop in such an environment, and, dare I say it, often in opposition to its reverie charm.
Location plan. Gastev Museum, Suzdal
Copyright: © Lyzlov Architectural Studio
In a word, Suzdal is Suzdal. The site is situated at a distance from the main Lenin street running from one end of town to the other, next to the gate of Alexander Cathedral, which, according to legend, was founded by Alexander Nevsky himself, but was actually built on the money of the Czaress Natalia Naryshkina, the mother of Peter the Great; she gave the money right before her death, and the architecture of the cathedral is provincial, like everything in Suzdal of the late XVII – early XVIII century.
Insertion into the panorama of the square in front of the gate of the Alexander Monastery. The Gastev Museum is on the left.
Copyright: © Lyzlov Architectural Studio
To the right of the site, there is the monastery, and to the left, there is the Spartak stadium, which makes the site one of the characteristic local underdeveloped places. Further away, there is a small meadow and a slope descending to the Kamenka River: a small museum, designed for 50 people with staff, will stand in the open space above the river.
But – the devil is in the details – we should note that despite the spaciousness of the surrounding area, the placement of the building is far from accidental: a gas pipeline runs through the site, and it is only possible to build on the southern side, between the pipeline and the boundary of the stadium.
On the 3D render – which the authors, definitely intentionally, immersed in the most cloudy Suzdal day, probably to avoid any misleading tourist gloss – one can see that the volume of the museum is rather miniature and is lost in the vastness. The Medny Dvor hotel on the right and even the monastery on the left look noticeably larger, and they are the first things that meet the eye. And the Gastev Museum, also because it faces the main viewpoints with its sidewalls, looks exceptionally modest – like lean production.
3D insertion into the panorama of the left bank of the Kamenka River. The Gastev Museum is in the center between the trees.
Copyright: © Lyzlov Architectural Studio
The features of the building, as the architects say, inherit the mixed construction technique adopted in Suzdal’s tourist facilities construction, both in the past and now: a brick story in white cladding at the bottom and a wooden story clad with planks at the top. The boards are arranged horizontally, that is, as they originally always were, and not vertically, as is now fashionable – but according to the project, there are no plans to paint them, they are supposed to age naturally, maybe to a “dark or almost-black color”.
Facade in axes 9-1. Gastev Museum, Suzdal
Copyright: © Lyzlov Architectural Studio
This beautiful idea is not entirely accurate. When it comes to black, the boards are already starting to rot, which is undesirable – but dark gray, on the contrary, is quite possible. In combination with boiled linseed oil, dark brown, rich tinted flecks may appear – everything will look pretty much as drawn.
This is not the main inaccuracy, however. The neighboring house is depicted by the architects on their renderings as gray, as the museum of wooden architecture; in fact, however, it is painted saturnine red, like many of the houses in the city.
The silvery-gray color of naturally aging wood can be found either in old two-story apartment buildings with warped staircase extensions that have not been repaired for a long time, or in brand-new, modern buildings that are oriented both to the Museum of Wooden Architecture and to those very houses that have not been repaired, but even more to global trends.
And yet, it’s still beautiful. What we see is a very delicate reinterpretation of a local, albeit universal, building tradition.
To no lesser extent, the project fits into the context of Nikolay Lyzlov’s own architectural research, and fits perfectly into the row between, for example, the recent office on Verkhnaya Krasnoselskaya, which was awarded the “Golden Section” diploma in 2021, and the 15-year-old project for an equestrian complex in Pirogovo. The similarities with the first one are: traditional technology without a vent facade, bricks in cladding, a wooden cornice, and the fenestration proportions. The similarities with the second one are even more numerous: the combination of wood, which the architect at some point planned to make black (sic!), extended proportions, a pediment, and even a “temple”, though to the same extent a “manege”, portico. And now let us look at the version of the Gastev Museum building the way it looked back in the spring of 2023: the river was faced by a portico with a large outreach, resting on several supports, and protecting the terrace from the rain.
The model of the original material. Gastev Museum
Copyright: © Lyzlov Architectural Studio
Now the portico is gone, but there is an open terrace on the river side for events, with an area of 72 m2. The portico was replaced by a vertical stained glass window, its left border is located exactly in the center, and the stained glass window is shifted from off axis, saluting the right-hand part of the stained glass window in the ridge of the roof, providing light to the atrium of the museum.
Facade in axes A-G and G-A. Gastev Museum, Suzdal
Copyright: © Lyzlov Architectural Studio
The second main facade – and I am reminding you that it’s the sidewalls that play the first fiddle here – facing Gastev Street, is also laconic and looks even more like a village house, with a window only at the top, which illuminates the “Heritage” exhibition, while the corner recess in the first tier is responsible for the entrance highlight: it faces the city center, where visitors are more likely to come from, with a simple glass door and a very simple inscription saying “Gastev”. Like I said, the ideologist of sociology of labor was amazingly modest.
Facade in axes 1-9. Gastev Museum, Suzdal
Copyright: © Lyzlov Architectural Studio
Despite the loss of the portico, the interior of the museum retains a few traces of the “temple” approach – it is built as a three-nave basilica on wooden pillars, with a narrow and elevated central “nave” of the vertical atrium, illuminated both by an oblong skylight of the roof ridge and a vertical window facing the river. This “lighting plane” cuts the museum into two halves.
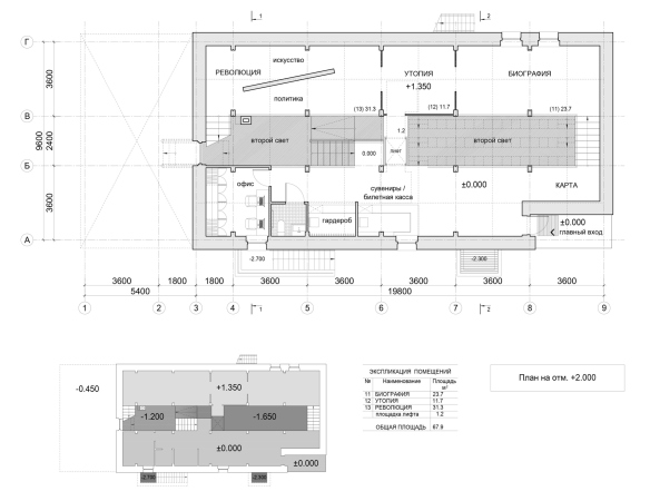
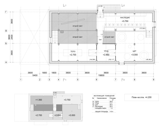
But this light is not a laser, it cannot cut things. Moreover, the atrium is crossed by a staircase, and in the middle there is an elevator shaft – but then again, it is transparent. At the same time, the surrounding space becomes increasingly complex. We see a spatial axis, a thin axis of symmetrical construction, through which parts of the museum begin, as if playing, “jump” first in one direction, then in another. All the more so because the architects planned to include “cells” of avant-garde colors on the sides, like the rectangular spots in Mondrian’s paintings.
Gastev Museum, Suzdal
Copyright: © Lyzlov Architectural Studio
On the sides, the space is two and three-tiered in different parts, the floors to the south and north, left and right, are not at the same level, only meeting at about 2/3 of the height. This type of “packing” the internal volumes is reminiscent of the approaches of the House of Narkomfin: it also strives for optimization and the best possible folding, like a three-dimensional puzzle. One can definitely see parallels in this: in this case, we are seeing a “lean” organization of space, just as we saw a “lean” organization of labor....
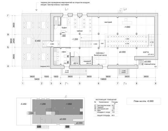
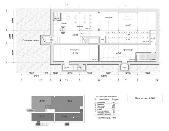
The volumes of the technical rooms, the boiler room and the storage room, located in the southern part, are deepened, and are lightened up by areaways. The whole floor is deepened by approximately 1.5 meters relative to the zero mark, and on the first floor the public space of the tea room is located 45 cm higher than the space of the lecture hall.
Cross-section views. Gastev Museum, Suzdal
Copyright: © Lyzlov Architectural Studio
Gastev Museum, Suzdal
Copyright: © Lyzlov Architectural Studio
Here we would like to draw your attention to one more thing. The wooden columns of the inner frame are very good, and you don’t even have to speak of a temple here – the museum typology rather pushes us towards a temple – it can be any industrial building, from a barn to a hangar, which is closer to Gastev’s story: let us imagine a former, once optimally organized conveyor belt turned into a museum. The only trouble is that we can’t think of any Russian examples of such spaces, but there are several French ones. But then again, we can recall that Gastev learned his locksmith skills, or perhaps his habit of industrial discipline, in France. The circle is closed.
Gastev Museum, Suzdal
Copyright: © Lyzlov Architectural Studio
