Hotel in Krasnoselsky district
Copyright: © GAFA Architects
The land site is curbed by the Gavrikova Street and the Rusakovskaya Flyover of the Third Transport Ring; currently, it is occupied by an “Automatic Telephone Station” built in 1968, which will be demolished altogether. On the yard side, there is the housing complex “Shater”, designed in an eclectic style, characteristic of the 2010s; the place is flanked by the slabs of the late-Soviet houses. Behind one of the slabs, there is a park with the temple of St. Alexius the Man of God, while the hotel windows will command the perfect view of the Alekseevsky Monastery, situated on the other side of the Third Transport Ring. The proximity to the monastery determined the height restrictions: 10 floors, 35 meters.
This GAFA project is not the first one in this area. In 2018, the Architectural Council of Moscow considered the proposal of a hotel of the Japanese chain Toyoko Inn, but the land site, along with the permissive documentation, was sold to another developer, who conducted a closed-door competition, ultimately won by GAFA.
Hotel in Krasnoselsky district. Location plan
Copyright: © GAFA Architects
The construction blueprint almost completely coincides with the Toyoko Inn version – and, according to the architects, this combination makes perfect sense under the existing parameters of the site and the required economic performance indicators. But then again, there are a few subtle differences. One of the sections of the hotel is still set on the telephone station building, which helps maintain the street front and the memory of the place. The next section, which goes into the depth of the block, became wider and has a more prominent “bend”, which helped to get more beautiful views from the windows.
Hotel in Krasnoselsky district. Landscaping
Copyright: © GAFA Architects
The main entrance is situated in the corner part of the building on the monastery side. It is marked not just by a lobby group but first of all by a terraced “cutaway” in the last floors, noticeable even from a distance to the pedestrians and motorists alike. The sculptural quality, enhanced by the wavy volumes and brass yellow, becomes the trademark feature of the building, turning it into a real landmark. The “climax” corner part is further accentuated by recessions that run the entire height of the building and have another function as well: they neatly conceal the air conditioning systems.
Hotel in Krasnoselsky district
Copyright: © GAFA Architects
The volume that is “extruded” from the corner part is compensated at the sidewall, which is to be seen by the flow of traffic and people going in the opposite direction. This part of the building looks just as striking thanks to the “living” texture of composite panels of a bronze tint, making up a picturesque cubist composition and casting dramatic shadows. The blind sidewall is interpreted as an art object – it articulates the typology of the hotel in the row of the neighboring buildings.
We try to approach our every building as a sculpture and an element of a general monumental work called “The City”. To enrich the perception of the street, we, on the one hand, made a rhythmic “cutaway”, and to balance the composition we increased this volume on the other side, but in a freer, even a little natural manner. On both sides of the building, the solutions are interesting and self-sufficient.
Hotel in Krasnoselsky district
Copyright: © GAFA Architects
Having created two bright highlights, the architects left the facade grid relatively neutral: the smooth rhythm of the windows is emphasized by beveled recessions with a wood effect; a slight enlargement of the volume can only be traced on the two top floors. The facade is clad in Klinker tiles of several hues.
The dynamic character of our architecture reflects the character of the rich and exciting life of a modern human being. This is a project for active business people with a flexible lifestyle, for whom, in addition to renting accommodation, it is important to have a comfortable coworking space for remote work, to have a morning yoga practice, go up to the bar in the evening or spend time in a quiet garden.
Hotel in Krasnoselsky district
Copyright: © GAFA Architects
The yard opens up southward; the architects decided to turn it into an “island of peace” for the hotel guests. Making this idea a reality was far from easy – the yard is situated in the center of a dense and bustling megalopolis; much of the area, small as it is, is “eaten up” by fire lanes and insolation, and the thickness of fertile soil is limited by the stylobate. However, the architects did organize such a space: one can have supper here on the restaurant terrace, work on a laptop at specially equipped tables, or just enjoy a cup of coffee, admiring trees and flowerbeds. The architects deliberately organized it in such a way that the landscape is involved in a slight confrontation with the architecture: the sculptural shapes, brass volumes, austere rhythm of the windows, and brick dominate in space, while the landscape is tactful and streamlined, as if woven from a different matter.
Victoria Barkalova, the landscape architect of GAFA
The landscape lighting, a rich palette of fragrant and textured plants, the predominance of pearl-white color, streamlined lines… our techniques are aimed at replenishing the strength of the hotel guests guests after a busy day in the city, and helping them slow down. The White Garden on Krasnoselskaya is an opportunity to stay in the context of nature and the city, to hear silence and create it.
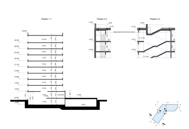
The hotel has 215 rooms in it, including doubles, with an area ranging from 20 to 50 square meters; all of the rooms are equipped with kitchen niches. The hotel rooms are placed from the 2nd to the 10th floor, in groups on either side of the corridor. Besides the hotel lobby, the first floor includes facilities that work not just for the hotel guests but for the city people as well – a restaurant, a drugstore, and an educational center. The top floor may host either a coworking space or a yoga studio: the windows overlook the green yard, visually expanding the space.
GAFA’s architectural solutions create all the prerequisites for maintaining the habitual environment: staying in this hotel, you can not just have enough sleep and have an excellent dinner but also work efficiently, do sports, organize a business meeting or learn something new in the educational center. At the same time, the habitual actions take place in a new charismatic setting, thus making the habitual experiences feel new – something that we as humans go on trips for.
Hotel in Krasnoselsky district
Copyright: © GAFA Architects / Provided by the press service of Moskomarkhitektura
Hotel in Krasnoselsky district
Copyright: © GAFA Architects / Provided by the press service of Moskomarkhitektura
