“HOMECITY” housing complex
Copyright: © Sergey Kiselev and partners
The site plan was changed, even if ever so slightly, the offices still prevalent. As a result, the territory is divided into 4 development stages: the first, Alpha, is an operating building; the second, Bravo, is also an office one, it is being designed directly behind Alpha by Sergey Kiselev and Partners, then goes “Charlie” site, also an office one, yet lacking a project now and for the time being used as a parking lot, and the line is completed by the one-of-a-kind “Delta” (aka “Homecity”) housing complex for about 2000 residents and 1513 apartments. It is expected that people working in the offices will be able to afford business class apartments here, and live in peace and quiet right next to their workplaces, which, as is popularly known, is one of the central ideas of the postindustrial city, in which functions are mixed, and distances are shortened.
“HOMECITY” housing complex. Location plan
Copyright: © Sergey Kiselev and partners
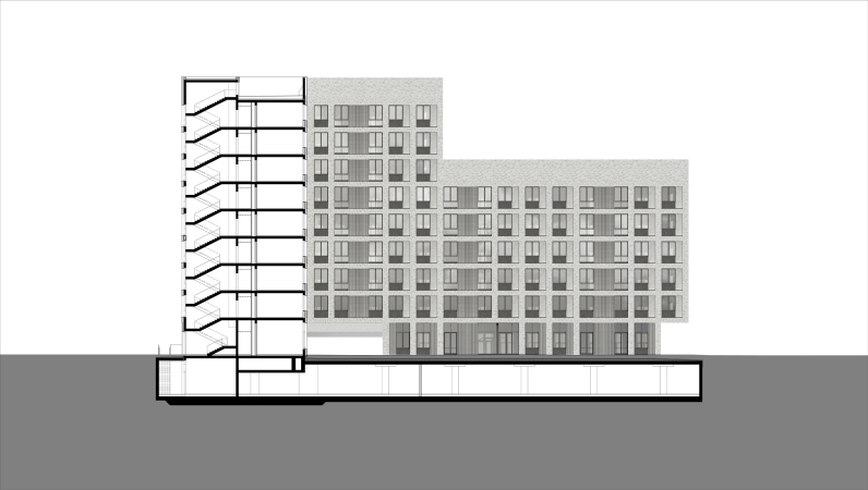
The housing complex consists of five U-shaped blocks, five sections in each, with a single-level underground parking garage underneath the entire construction blueprint and underneath the yard as well. The blocks are placed alongside a pedestrian promenade that serves as the axis of this territory, the yards of the blocks being open to one another and forming, together with the promenade, the public space of the complex. The height of the buildings descends in steps towards the promenade: 9 stories on the outside, 6 on the inside. It looks like the ideal that was announced in 2017 in the pilot projects of Moscow renovation, yet never was implemented.
“HOMECITY” housing complex
Copyright: © Sergey Kiselev and partners
More: in addition to the height restrictions having to do with the proximity of the Vnukovo Airport, the city development plan for land presupposed a comparatively small amount of housing square meters, and the developer did not want to violate the restrictions. Thus, the architects were facing the task of not exceeding the volume – which resulted in a multitude of arches in the bottom floors, making the space transparent on the pedestrian level. Such transparency is yet another signature technique of theirs, in the spirit of postindustrial urbanism, because it makes life easier, and enriches the facets of its perception. The arches are situated in places with poor insolation, unfit for making apartments in them.
“HOMECITY” housing complex. Master plan
Copyright: © Sergey Kiselev and partners
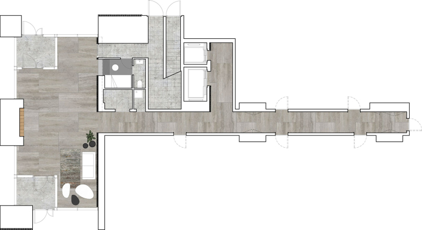
Also, in the first floors, and partially even on the underground level, the architects designed public and commercial facilities, which ensure the urban “multi-functionality” of the complex: cafes, shops, various services, a drugstore, a bank office, a fitness center, and so on. The list is rather long, but it may change as the complex develops. The height of the underground floors is 4.5 meters. To light the premises in the underground tier, the architects designed areaways, long and wide, running along the rear facades of buildings 1 and 2. The areaways are crossed by pedestrian bridges leading up to the first floor. This way, the technical solution not only makes the complex truly multifunctional but also ensures diversity of perception of this highly developed urban space that will be gradually forming here.
“HOMECITY” housing complex. Plan of the -1st floor. The areaways are seen on the plans of Buildings 1 and 2
Copyright: © Sergey Kiselev and partners
“HOMECITY” housing complex. Plan of the 1st floor
Copyright: © Sergey Kiselev and partners
This way, the number of apartments in the bottom floors is significantly smaller, but what apartments are there got cute little gardens and street entrances of their own – another popular modern technique that Sergey Kiselev and Partners already tested in the premium class award-winning “Literator” (“Man of Letters”) housing complex, situated in Moscow’s most prestigious area of Khamovniki. Sitting on the terrace, one will be able to watch their children play through a green hedge.
The volumes of the buildings look pretty similar, and are designed in a very laconic way: the regular grid of windows with differences marked by the color of the fiber cement slab inserts that make the piers look narrower, visually widening the windows. The recessions provided for air conditioning units are decorated by striped grates. No balconies are present here. On top, the facades get the “attic” strip that unobtrusively decorated the mechanical floor – its ledges are invisible from the ground.
“HOMECITY” housing complex
Copyright: © Sergey Kiselev and partners
The outer facades – the ones that face outwards and the ones, with which the buildings face each other – are designed like dark “skin” from Klinker tiles, almost black, of a graphite hue with light scorch marks. The piers between the windows are not just made narrower – in most of the cases they have equal width and height, forming a smooth thin grid. The direction of their lines is highlighted by the tile pattern, vertical or horizontal, which turns the piers into a semblance of pleat work – Aleksey Medvedev likens this technique to half-timber technology because it helps to highlight the structure of the facade: the pattern manifests it in a very reserved way, like different knitting patterns in a monochrome sweater.
“HOMECITY” housing complex
Copyright: © Sergey Kiselev and partners
“HOMECITY” housing complex
Copyright: © Sergey Kiselev and partners
The houses face the promenade not only with their 6-story blocks but also with their cantilevered structures that hang above the roads forming canopies decorated with tiles, including from the downside.
“HOMECITY” housing complex
Copyright: © Sergey Kiselev and partners
The project of the housing complex, from the architectural concept to construction supervision, is done by Sergey Kiselev and Partners – this is sure how it is meant to be, but nowadays, regretfully, this is rarely the case, so let’s note the occasion.
The task of landscaping the inner promenade and the yards, at a joint solution by Sergey Kiselev and Partners and the developer, was done by a guest company MLA+, with which the architects has already collaborated, and now they again did a lot of joint work. This is yet another example of cooperation giving way to tough competition. An interesting fact: originally, the Dutch architects proposed a “changing of the seasons” concepts: shifting of impressions in different parts of the complex, but the client insisted on uniformity, the main theme ultimately being asymmetric spots, lush maple trees, and hosts of cereal plants. Using white pebbles on playgrounds was also the client’s idea.
“HOMECITY” housing complex
Copyright: © Sergey Kiselev and partners
The range of apartments is rather balanced and chiefly consists of single and two-room floor plans, the former accounting for more than a half, the latter for more than a third. However, there are also three and four-room apartments.
One of the main advantages of the complex is high-quality decoration of public spaces, laconic and dominated by vertical “grates” of light-colored wood.
A junior school for 350 students and a kindergarten for 150 children are situated at the west end of the territory; these will be publicly funded, and the architects had to get a lot of approvals from the Department of Education, tightly packing all of the solutions within the state regulations and a rather constrained area. This is why the building plans are rectangular and not circular or sprawling, like with the most advanced schools of today. Meanwhile, the architects were able to squeeze all the necessary functions into the school building, the school library on the top floor being lit by a skylight.
The facades of the school building, just as the facades of the kindergarten, combine fiber cement of a light, almost white, hue and inserts the color of ochre for the school and three warm hues – red, yellow, and orange – for the kindergarten. These highlights echo the inserts on the facades of the residential buildings.
The school – a “temple of knowledge”, however small in this case – is marked by a recessed balcony with a portico of four slender columns, white against the black backdrop of the inner wall. The lightweight portico with a thin bridge above instead of an attic is reminiscent of Le Corbusier experiments, and about the seventies with their laconically minimalist attitude towards classical motifs.
The place is 1.5 kilometers away from the Moscow Ring Road, but it is just a 10 or 15 minutes’ walk away from the recently opened Rumyantsevo metro station. The surrounding scenery is more than diverse: 17-story houses in the distance, and a village of the “dacha” type on the other side with stone fences; there is the Govorovsky Forest on the other side, which is a continuation of the Troparevsky Park beyond the Moscow border – one will be easily able to go for a walk in the forest because it steps up right to the eastern border of the complex. From the south side, as we remember, office buildings are situated. In spite of its diversity, the surrounding scenery is pretty balanced: a forest, a business park, and a dacha settlement. The highway is about 900 meters away, and here it is a lot quieter than, for example, on some Moscow’s busy thoroughfare. Homecity stands here like in the eye of the storm – a quiet haven that faces its own internal promenade, an element of the regular and comfortable city, which was formed here due to circumstances, and by the grace of the developers and the architects – in a comparatively unexpected place, at the beginning of the Kiev Highway.
