The studio of Zurab Tsereteli
Copyright: Photograph: Archi.ru, 2019
In the stead of the current land plot, there used to be a wooden annex of an unassuming building; when the architects started working on the project, its foundation was everything that was left of it. However, the very theme of wood became for the architects of Mezonproekt the starting point in the search of the image. They eventually settled on the soft modernist version that presents a delicate contrast to the surrounding architectural context.
The studio of Zurab Tsereteli
Copyright: Photograph: Archi.ru, 2019
As for the personality of Zurab Tsereteli, considering his creative work, one could expect a more conservative image and style of his own studio. In this particular case, however, according to the partner of Mezonproekt, Ilia Mashkov, an agreement was reached about nonintervention in the architects’ affairs. The client did not influence the choice of the style and light-heartedly approved the visible appearance of the building. The construction, however, took five long years for various reasons.
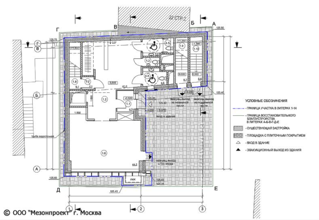
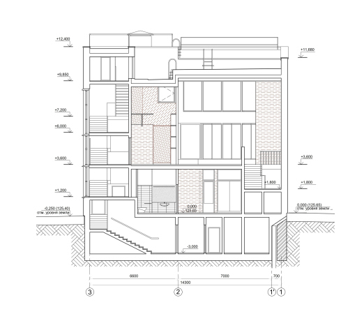
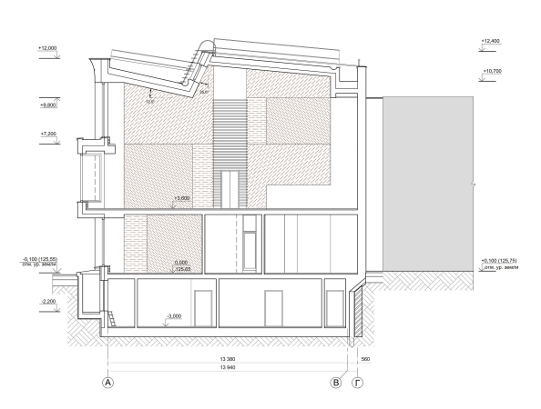
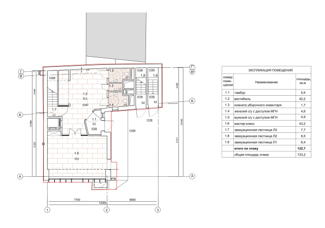
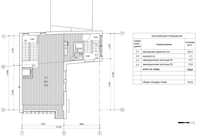
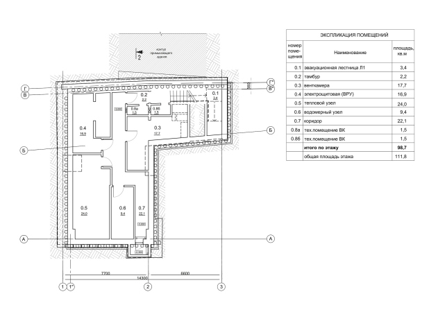
On the plan, the mansion looks like the letter “L”, its volume essentially consisting of two parallelepipeds, large and small. One of them hosts the double-height architectural studio occupying the entire space of the second and third floors. The capacious hall is lit through the enormous stained glass, as well as through the skylight up above. The first floor underneath it hosts a master class hall for 25 people (since the master of the house is the President of the Russian Academy of Fine Arts, the function of this building is not only creative work but education as well). The rest of the building contains a lobby, an elevator, a staircase, and restrooms. The smaller parallelepiped is also occupied by the emergency staircase.
The studio of Zurab Tsereteli
Copyright: Photograph: Archi.ru, 2019
The entire main facade is essentially a stained glass with a sash pattern that is ostentatiously volumetric. The main entrance is made in the corner part between the two volumes. This made it possible to vacate some space for the studio, and turn it towards the stained glass window. An extra entrance is situated to the right of the main facade underneath the marquee. In order to set off this element, the architects added a bay window protruding from the facade on the level of the second floor. The other volume with the emergency staircase also looks into the yard with a stained glass window.
The studio of Zurab Tsereteli
Copyright: Photograph: Archi.ru, 2019
An art studio hosted in an individual building is, of course, an unusual typology. Strange though it might be, Melnikov’s house in the Krivoarbatsky Alley comes to mind. Both buildings are situated in the yard, both present a prominent contrast with the surrounding buildings, both consist of two vertical volumes glued to one another, both sport a stained glass window on the front part, the second and third floors occupied by a studio – these two buildings have a lot in common, even though the architects did not mean anything of the kind. Generally speaking, it often happens that an architect’s (an artist’s) house looks nothing like his work: Melnikov’s house does not look like the rest of Melnikov’s creative work, Shekhtel’s house on the Sadovaya does not look like the rest of Shekhtel’s work, and, following suit, Zurab Tsereteli’s studio looks nothing like Zurab Tsereteli. And all of these buildings are like small treasure chests with a secret, contrastive to their surroundings. Probably, the main thing that is different about this local typology is large windows and double-height spaces.
The studio of Zurab Tsereteli
Copyright: Photograph: Archi.ru, 2019
The three-story stained glass window of Tsereteli’s studio with a prominent vertical pattern looks like the deck of a musical instrument or a church organ, the wooden decoration of the walls adding to the likeness. The stained glass window represents some floor-based structure with different frequency of conditional “windows”, and even a hint at some generalized cornice – an Art Deco feature, which, however, is crossed here with wooden modernism. The windows of the side facades are distributed over the wall surface in an asymmetric way, some of them reaching the corners, which is definitely a sign of avant-garde architecture, even though these corners are on the inner sides.
The decoration panels that imitate wood, dark and light-colored, could have been simply wooden, because the construction rules and regulations do allow low-rise wooden buildings. In the center of the city, however, these are still few and far between, or, rather, their usage is limited to temporary park pavilions and art clusters. Wooden architecture in the city is a branch that is very promising from the environmental standpoint, and it will be sure to develop. But then again, you cannot but recognize that the wood imitating panels are easier to maintain, and they are sturdier, all this considering the fact that they do look like the real thing.
