Contrary to our expectations, the building’s function is more technical than representative: the building will host management offices, a café, changing rooms and rooms for sanitation, which the farm’s employees must rigorously undergo before their shift.
Roman Leonidov, «Studio of Roman Leonidov»
At the initial stage, we had to understand the technology and conditions of functioning of the spaces. Although we were given a precise list of the required spaces, we had to organize them optimally and build connections between them. We also had to strike a balance between simplicity and expressiveness.
I would define my idea in this nutshell: lightness, transparency, “milkiness”. Hence the combination of warm white with glass, with a certain percentage of mirroring on the outside, and milky glass behind it. “Milkiness” can also be emphasized with backlighting. In this case, electrochromic glass would have been the perfect solution, but it is prohibitively expensive. We will choose the material – as a rule, we choose from many samples, and we often choose it right at the construction site.
I would define my idea in this nutshell: lightness, transparency, “milkiness”. Hence the combination of warm white with glass, with a certain percentage of mirroring on the outside, and milky glass behind it. “Milkiness” can also be emphasized with backlighting. In this case, electrochromic glass would have been the perfect solution, but it is prohibitively expensive. We will choose the material – as a rule, we choose from many samples, and we often choose it right at the construction site.
The building is indeed small and simple, which is quite normal and even required for industrial architecture in such a setting. It consists of two main volumes, with the upper one strongly shifted to the right when viewed from the entrance, so that it forms a rather prominent cantilever on one side and a spacious terrace on the other, which the occupants of the second-floor offices can access.
Moloko Group office building
Copyright: © Roman Leonidov
The facades. Moloko Group office building
Copyright: © Roman Leonidov
The upper floor is entirely glass, and its facades are not very economical, as they suggest structural glass with a percentage of mirroring and a “milky” tint – possibly, emphasized by backlighting. It should be visually dissolved, reflecting the sky, and in the evening it should rather symbolize the proverbial “milk rivers” from Russian fairy tales. However, if we look at the cover of the project displaying the image of the building with an imaginary cow, we can even see a rhyme between the spots on the hide of breeding cattle and the reflection of random clouds in the glass.
Moloko Group office building
Copyright: © Roman Leonidov
Thus, the whole building becomes in its own way a “cow”, only generalized to the point of complete abstraction. If you look really hard, you can see a head and a tail, but there is no naturalism.
And then there is – this is probably the cow’s leg, no less! – the beveled slab of the entrance. It forms half of the socket and then continues reflected in the glass, bearing the logo; its white color, on which, moreover, the MOLOKO logo is placed, leaves no doubt about the company’s profile. It will definitely have to echo the slightly “milky-white” glass of the building’s upper volume.
Moloko Group office building
Copyright: © Roman Leonidov
The reflection emphasizes the perspective, as if inviting you to come in. Needless to say, this is a well-tried, simple and almost sure-fire modernist technique. It is not surprising that it accentuates the entrance here – both the propylaea and the signboard – while the whiteness itself correlates not only with the color of the product, but also with the cleanliness that production requires.
In addition, it’s also a white spot – almost like the side of a cow.
The lower tier is long and dark; while the architect plans to choose high-quality glass for the top, he wants to cover the plate in front of the entrance with plaster: “High-quality plaster, mind! You can’t imagine how high-quality and durable plaster is available on the market nowadays” – then dark-gray striped fiber concrete is appropriate here, which, if we continue with the analogies already given here in abundance, may remind us of a cow hide. The natural roughness of the hide or earth also distinguishes it from the white and shiny conventional “milk” above, emphasizing the difference between the materials.
Moloko Group office building
Copyright: © Roman Leonidov
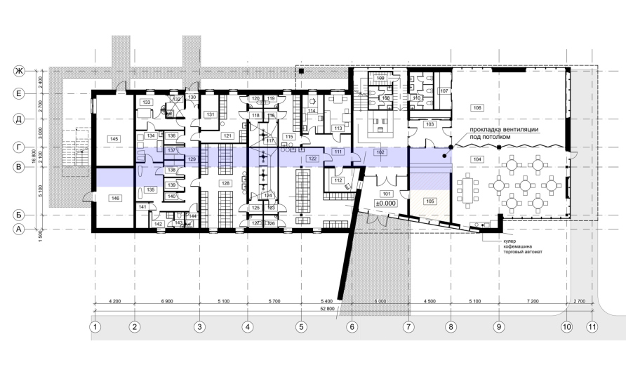
If we look at the building’s plan, we will see once again that the main accent – the one that’s at the entrance – is also made quite simple, with a single stroke: not just the white wall on the left is beveled, but also the glass of the entrance group; between them, there is a right angle, as if the entrance was taken and turned at a slight angle. However, this is exactly what allowed the architect to achieve a straight line of the perspective reflection, so successfully extending the white propylaea. Without this turn, it would probably not look as artistic.
On the first floor to the right of the entrance, there is a cafe and its continuation, a small conference room separated by a mobile curtain, and to the left are the staff changing rooms. The second floor hosts the administration offices.
