However, there is little left that reminds of the cozy spirit of wooden dacha houses here with their narrow streets and lush vegetation: thorough preparations for the 1000th anniversary of Kazan and the program of liquidation of dilapidated housing erased all the features of Sukonnaya Sloboda’s individuality. The vacated territories were occupied by a motley assemblage: a modern IT-cluster, a crude-imitation St. Petersburg Street, a palace-like puppet theater “Ekiyat”, a residential complex Barcelona designed by Jose Acebillo and other outlandish combinations.
The housing complex on Kalinina Street. Panoramic view from the west
Copyright: © Liphart Architects
The site where Stepan Liphart worked overlooks Tikhomirov Street. Now it is a four-lane highway, as it continues the Universiade Avenue, but ten years ago it was a dirt road. The neighborhood is filled with a variety of buildings: the Suleiman Palace hotel, a hangar-type shopping mall, the 18th century Osokin house, and a house built in Khrushchev times. However, the architects took the building from the neighboring Volkova Street – a red-brick lyceum of the early XX century, which was originally the city’s elementary school for girls – as a “point of reference”, a kind of tuning fork for adjusting the proportions.
Opposite, across Tikhomirov Street, the upland part begins, built up with high-end housing. Actually on the site the relief difference is small – towards Peterburgskaya Street there is a decrease of about one meter. The height limit is 20 meters.
The housing complex on Kalinina Street. Panoramic view from the east
Copyright: © Liphart Architects
The housing complex on Kalinina Street. Development drawing
Copyright: © Liphart Architects
Yard, Tree, Street Light
Taking advantage of the size and orientation of the plot, the architects positioned the houses in such a way as to follow the red lines of Tikhomirov Street and complete the contour of the block: two “brackets” hold the corners, leaving space in the center for a third, approaching the street transversely from the end. In this way, a similar scale with the surroundings is achieved and two courtyards are formed. The first, on the side of Volkova Street, remains at the natural level of the urban surface; in it the author preserves a few existing trees. The second courtyard, the southern one, is elevated on a stylobate; from the street side, it is accessed by a wide staircase with cascading landscaping and a ramp, both under a lattice glass canopy resembling the wing of a dragonfly. A glass dome of a skylight is designed to illuminate the space inside the stylobate.
The housing complex on Kalinina Street. Panoramic view from the southwest
Copyright: © Liphart Architects
The housing complex on Kalinina Street. View towards the east courtyard from the stairs and ramp
Copyright: © Liphart Architects
The housing complex on Kalinina Street. Master plan
Copyright: © Liphart Architects
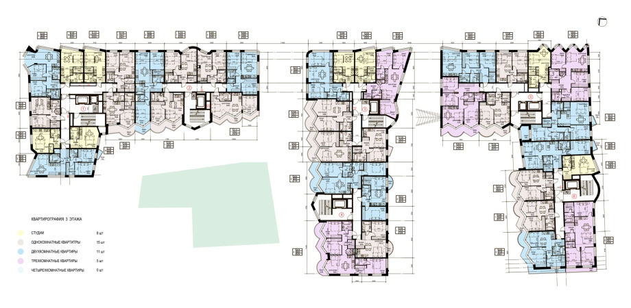
Inside under the dome, according to the original version of the project, there was to be a food court and retail – a covered public square surrounded by stores. In the end, the food court was replaced by a parking lot, which, of course, is a pity. Meanwhile, the rental spaces for cafes and stores in the project occupy, along with the entrance lobbies, all the first floors. Three wide perspective sockets of the entrances, attracting attention and inviting to enter inside, increase the sidewalk by micro-areas – and fold into an elegant line, reminiscent simultaneously of the Ghibelline teeth of the Kazan Kremlin and arabesque-floral ornament of cranes with smooth rounded entrances and slightly pointed petals. The cylindrical volume of one of the three entrances is also woven into the pattern. All of this is a curious feature, as it is not often that one sees beautiful plan graphics in modern residential architecture, which will certainly be reflected in the plastique of the facades at the pedestrian level.
The housing complex on Kalinina Street. Plan of the 1 floor
Copyright: © Liphart Architects
But then again, both of the things that I mentioned, even if they were intended in the plan, were integrated in a very unobtrusive manner, not to say encoded. There are no direct analogies here. What is more important is the fact that this fold-like feature of the first floor becomes one of the main techniques for designing the facades on the whole, due to which they turn into a semblance of a theater curtain, stretched in the middle and folded on the sides. Isn’t it because there is a theater nearby? And the golden edges of the bottom are so reminiscent of a fringe.... Even the balconies on the side facades and on the sides of the stairs to the courtyard, with their alternating plastique, sometimes triangular, and sometimes rounded, look like theater boxes.
The housing complex on Kalinina Street. General view from Tikhomirova Street, northeast side
Copyright: © Liphart Architects
But then again, like I already said, these analogies are very tacitly manifested, but the resulting shape of the building is characterized by obvious diversity and reserved flexibility, as well as sturdy inner logic.
Кара һәм ак (Black and White)
We will remind you that there are three buildings in total, and from the street side they are separated by a contrasting color. Initially, it was planned that the southern two would be black and the northern one white, then black was replaced by a contextual shade of dark chocolate, preserving the texture of the continuous, corduroy-like (curtain again!) thin relief ribs, echoed by the “ciliated” cornice above the glass ribbon of the upper floor.
The housing complex on Kalinina Street. View of the western building from the northeastern side, from Tikhomirova Street
Copyright: © Liphart Architects
Dark brown, indeed, “falls” into the color of the neighboring buildings, although in the whole volume looks somewhat nobler.
The housing complex on Kalinina Street. View of the project site from the south-eastern side from the intersection of Tikhomirova and Tufan Minullin Streets
Copyright: © Liphart Architects
The courtyard facades are both similar and dissimilar to the street facades. They are entirely of light golden wood color, although the striped texture is preserved, as well as the format of lattice balconies of different shapes. But there are much more balconies, hollows and protrusions, and some of the facades are folded into an “bellows” pattern of triangular bay windows. One can imagine that if this is the “underside” of the curtain, it has gathered in folds much tighter. Or is it not the underside at all, but an auditorium with a view of the city?
The housing complex on Kalinina Street. View of the east courtyard on the stylobate
Copyright: © Liphart Architects
The very shade of moderately light wood seems to be justified both by the internal character of the courtyard as such, and by the memory of the wooden Kazan that once existed here. The theme is further supported by the preserved trees and the wooden lattice of the dome. It is fresh and unexpected. However, wood is becoming more and more popular in the city and is beginning to be associated with elite housing: for example, the facades of the most expensive house at the moment are finished with larch. Nevertheless, it is worth emphasizing that the architects see the courtyard facade in metal: it is supposed to use painted aluminum or aluminum composite with the texture of artificial craquelure.
Waves and Ledges
The houses are low-rise, 4 residential floors, one, the first, public – this is one of the advantages of the height restriction; their scale is very comfortable and moderate. On a relatively small scale, the active plastique is well read: the houses are “molded”, their sculpture is varied, and the corners are sometimes rounded and sometimes sharp.
Since the author of the project, Stepan Liphart, is known for his adherence to the interpretation of Art Deco of varying degrees of classicism, the very authorship provokes a search for analogies from the thirties of the last century, and something indeed can be found: for example, the gravitation of wide windows towards the horizontal, or the three-part structure of the volume with a recessed plinth and attic, but a bold cornice.
The housing complex on Kalinina Street. Architectural and artistic illumination
Copyright: © Liphart Architects
Other typically “Stepan Liphart-esque” features that you can see here are the architect’s commitment to bay windows, “folded” facades, and the aforementioned meaningfulness of the plan’s graphics – if in the first floor you can see the fluidity of arabesques, in the residential floors on the courtyard side, round and triangular balconies alternate very rhythmically.
The housing complex on Kalinina Street. Plan of the 2 floor
Copyright: © Liphart Architects
Still another thing that comes from the 1930s are the relief Art Deco stone patterns of the first floor, whose texture at first glance resembles acoustic panels, but upon closer examination turns out to be a deconstruction of cannelure, where sharp grooves and triangular contours neighbor with arcs. The golden color of the natural stone seems to date back to the pastel-golden backgrounds of Gustav Klimt.
The housing complex on Kalinina Street. View of the fragment of the eastern facade and the entrance to the underground parking lot
Copyright: © Liphart Architects
However, this “corrugation” of the bay window “piano keys” can remind one, for example, of the brutalist Taganka Theater in Moscow.
The housing complex on Kalinina Street. View from Tikhomirov Street of the fragment of the northern facade, stairs and ramp to the eastern courtyard
Copyright: © Liphart Architects
Another interesting thing is that it is almost impossible to find any direct quotations here or even immersion in a certain style that is popular in modern high-end residential developments, which Stepan Ligpart sometimes so willingly and skillfully immerses himself in. The house feels very modern thanks to a high degree of generalization, as well as energetic work with form and color. The complexity of the form is exactly at the level of modern searches on this “medium” scale.
The solid vertical-striped surface is smoothed out as if it had been smoothed out by human hands; it is assembled by verticals, then by ruffles, then by undulations – then suddenly a breakdown, an asymmetrical protrusion, appears in this predictable rhythm. This is a new interpretation of the theme of the “working town” with elements of non-linearity – or at least the architect’s unpredictability – which, however, has gone far in the direction of expensive textures and shades, as well as layouts: rooms with several windows, a view on two sides, and a dining area in the bay window. From the balconies and terraces of the upper floors will be visible Lake Kaban and the central part of the city. Entrances to the building are pass-through; all staircases are lit by natural light.
In short, if there is an echo of the search for the aesthetics of the thirties here, it is very indirect, actualized. One can also sense a response to the “Bulgar” context: in the golden “braid” of the slopes, in the “ingots” of the first floor, in the “swarthiness” of the cladding, and in the terraces that are ready to receive the generous sunlight.
