New Piter is a large residential area located just outside St. Petersburg’s Ring Road (technically, outside of the city), not far away from Strelna. At the same time, this is a comparatively rare, by the standards of suburban St. Petersburg, example of an all-rounded approach to land development: the “lots” of the houses are introduced here concurrently to the infrastructure and various public projects. Approximately in the middle, the area is crossed by the pedestrian White Nights “park” boulevard; it runs between the school and kindergarten, and, like some kind of central string, it holds greenery, artificial hills, a stadium, and playgrounds strung upon it. The boulevard was also designed by Oleg Manov.
Larger public infrastructure projects have been moved closer to the Krasnoselskoe Highway: this ensures better transport accessibility, while the residential buildings stand rather far away from the highway (about 80 meters), and are protected from the noise, all the more so because the string of public and commercial buildings is separated from the residential blocks by yet another linear park: a wavy pedestrian trail that allows pedestrians to cruise around New Piter, bypassing the highway.
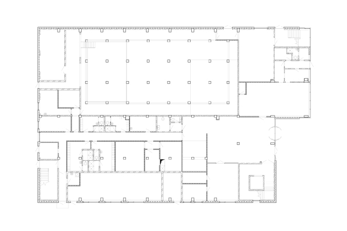
The health and fitness center in New Piter housing complex: location
                Copyright: © FUTURA-ARCHITECTS
        The fitness center received the key site at the crossing of Krasnoselskoe Highway and Nevskaya Street. This point can be considered to be the main driving/pedestrian entrance to the area.
New Piter has been in construction for a few years already, and the original concept underwent a few changes. Specifically, the standard projects were replaced by “lots”, whose image solution was proposed by different architectural companies, which is definitely a plus.
Other changes can be interpreted in the key of adapting to the ever-changing reality. Originally, it was planned that between the business center (situated on the northwest corner of the complex, at the driving entrance from the Ring Road) and the fitness center (situated two hundred meters south), there would be more vacant space. For this reason, Futura Architects designed them as an ensemble of two noticeable volumes marking the presence of the complex in the city and welcoming the cars coming from the Krasnoselskoe Highway – like a “gate” or a “facade” of the new part of the city. At the first stage of design, both volumes had brick facades – just like the rest of the complex – but they sported an integral energetic shape, literally “shooting” north in the direction of the Ring Road and the Gulf of Finland. An important part in the composition was played by the business center with a powerful sidewall chamfer and a 12-meter cantilever.
The business center in Novoselye, in the northwest corner of New Piter housing complex
                Copyright: © FUTURA-ARCHITECTS
        The health and fitness center, situated, as we remember, further south, before the crossing of the highway and Nevskaya Street, echoed the chamfer of the north cantilever and developed the related plastique of the large and dynamic form, but showed a slightly greater interest to diagonal and jagged lines.
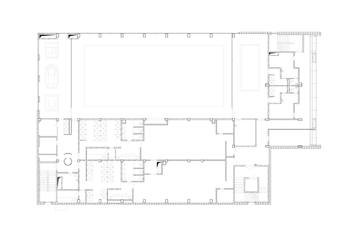
The health and fitness center in New Piter housing complex
                Copyright: © FUTURA-ARCHITECTS
        Later on, it was decided to build two multilevel parking garages between the business center and the fitness center, and the town planning “rest” became blurred – but we must realize that the residents have to park their cars somewhere, so this decision is after all motivated. The “southward dash” also became a little less obvious: the parking garages were designed by a different company, and they are essentially static crystalline parallelepipeds, even though we must give them credit for their beautiful glitter.
The brick surface of the walls of the fitness center was also something that the architects had to sacrifice: the COVID pandemic got in the way, supply chains were disrupted, the budget was cut, and the walls became stucco. For economic reasons, the architects also sacrificed the deep jambs of the stained glass windows – they were partially replaced by thin metallic lamellae that trace the lines of the stained glass windows, the plastique is formed solely by cantilevers.
Nevertheless, after all the changes the building preserved the main thing about it, the purity of lines, and the whiteness of the facades made it even more noticeable, accentuating both the function and the town planning meaning of the sports complex against the background of the residential blocks. The bright pure color, the sloping lines, and the inclined lines and place do attract attention.
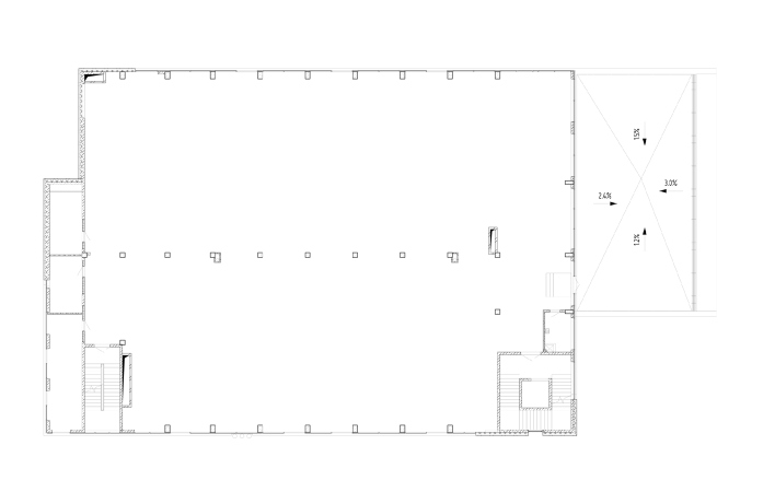
The health and fitness center in New Piter housing complex
                Copyright: © FUTURA-ARCHITECTS
        The volumes and contrastive glazing planes, which protrude from the building, mark the functional blocks. The central part of the building is occupied by the swimming pool, its grand-scale stained glass window turned in the direction of the Krasnoselskoe Highway. Closer to the end of the building, the stained glass window narrows down to a band, which makes a zigzag on the sidewall and ascends from the second floor to the third – to continue above the main entrance. This “band” marks the location of the spa zone and multifunctional gyms.
The health and fitness center in New Piter housing complex
                Copyright: © FUTURA-ARCHITECTS
        The inclined “monitor” of the cantilever turned in the direction of the gulf – as well as yet another smaller cantilever on the opposite side – both include training facilities and management offices. The entire fourth floor is occupied by gyms. This place also has an exit to the cantilever’s roof, where in good weather training sessions can be organized, or maybe just recreation: you cannot really see the Gulf of Finland from here but the roof does command sweeping views.
Since the building is not sunken in the ground, the basin, together with all the technical rooms and communications, occupies almost the entire ground floor.
It must be said that engineering communications always present a serious challenge for a building that aims at brilliant purity of dynamic forms. In this particular instance, the architects were able to hide as much of the ventilation system as possible on the roof, neatly arranging the “fifth facade”, keeping in mind that it would be visible from the higher floors of the buildings that surround the fitness center. Against this background, the cooling grids on white facades can be ignored – such inclusions are to be seen on many buildings, and our eyes are used to ignoring them. All the rest, even the pipes from the yard side, are agreed upon and inscribed into the general concept. As for the interiors, the utility lines remain literally exposed, or even exhibited, covered by glass and backlit.
The architects also provided on the facade a recession for the logo of the future operator – in the most noticeable point, from the side of the Krasnoselskoe Highway.
Thus, the health and fitness center, designed by Futura Architects, righteously occupies the key location at the entrance to this large residential complex at the outskirts of St. Petersburg. The building of the fitness center supports not just the multifunctional nature of the new area but also ensures architectural diversity. The brick city blocks, although not exactly “stylized”, bear a rather traditional look, just as the orthogonal plan. However, this light-colored and dynamic inclusion livens up the regular array of the houses with bold fresh spots. Not to mention the fact that the contrast of shape also emphasizes the difference of function, saving the building from “drowning” in the context of the new housing complex. In this sense, the plaster surface of the walls, a measure that initially appeared out of necessity, turned out to be the best solution – the plaster made it possible to make the facades seamless, and the color bright white.
One more thing: the building of the center also responds to a concrete object in the north part of the White Nights Boulevard – a sculptural bench, or, rather, a sign that the same architect, Oleg Manov, designed five or more years ago for this complex. Mind, you cannot see one object standing next to the other – they are about half a kilometer apart – but, come to think of it, both objects, big and small, charge the whole territory with some neo-modernist cheerfulness. And they also reveal the trademark style of Futura Architects just as vividly.

 
                                                                         
            
         
                                             
                            
 
                             
                             
                                         
                                         
                             
                             
                                         
                                         
                                         
                                         
                                         
                                         
                                         
                                         
                                     
                                                                        
                                                                     
                                                                        
                                                                     
                                                                        
                                                                     
                                                                        
                                                                     
                                                                        
                                                                     
                                                                        
                                                                     
                                                                        
                                                                     
                                                                        
                                                                     
                                                                        
                                                                     
                                                                        
                                                                     
                                                                        
                                                                     
                                                                        
                                                                     
                                                                        
                                                                     
                                                                        
                                                                     
                                                                        
                                                                     
                                                                        
                                                                     
                                                                        
                                                                     
                                                                        
                                                                     
                                                                        
                                                                     
                                                                        
                                                                     
                                                                        
                                                                     
                                                                        
                                                                     
                                                                        
                                                                     
                                                                        
                                                                     
                                                                        
                                                                     
                                                                        
                                                                     
                                                                        
                                                                     
                                                                        
                                                                     
                                                                        
                                                                    