As for the land lying immediately beyond Danilovsky Fort, the city has long since been making numerous attempts to involve it this bustling flow of events: competitions were organized, architects changed, and height parameters were adjusted – until the land was bought out by SAMOLET GROUP, who invited ADM to design the project. Incidentally, this company is already quite familiar with the territory because its leaders, Andrey Romanov and Ekaterina Kuznetsova took an active part in creating Danilovsky Fort in 2005-2006, when they still worked for Sergey Skuratov.
The apartment complex Novodanilovskaya 8
Copyright: © ADM
The land site of Novodanilovskaya 8 is an elongated one with jagged edges; on one side, the jagged line of its edge is formed, skirting the already-complete buildings of the business centers, and on the other it is formed by the natural outline of a rather tall hill. The architects are placing the complex in the widest part of the site that exactly coincides with the axis of the Danilovsky Fort, the rest of the territory being landscaped.
The apartment complex Novodanilovskaya 8
Copyright: © ADM
Three towers of equal height stand in a compact fashion to form a semblance of a square, and support the vertical rhythm set by the DM Tower business center. When viewed from some angles, this composition could create an illusion that the towers “grow” from the Fort like the teeth of a crown, but the contrastive color of the coating and the simple grid of the facade create an effect of an “air perspective”, which makes it possible to separate these two volumes and articulate the second line of construction.
The apartment complex Novodanilovskaya 8
Copyright: © ADM
Shape-wise, the towers are simple parallelepipeds with a regular grid, but the two flanking ones have an embellishment to them: the side ends, overlooking the river, are vertically designed as steps; in addition, the length of the building increases slightly with each next floor, which creates micro-cantilevers, and, when viewed from a more distant range, a slight “twisting” effect. This technique is a trademark one with this architectural company: to some degree, it is present, for example, in such housing complexes as Discovery, Hide, or AFI Park Vorontsovsky. In this particular location, the “fan-like” facades echo both the architecture of DM Tower business center (whose plan looks like an elm leaf with small “teeth” at the edges) and with the optical illusions of Danilov Plaza.
The apartment complex Novodanilovskaya 8
Copyright: © ADM
The coating of the towers also connects them to the context. Since the red brick could create an impression of “excessiveness”, as well as be misleading about the function of the building, the architects opted for white clinker tiles with colored inserts and bronze dusting, reminiscent of the now popular terrazzo material, or even a porcelain palette, on which the colors of neighboring buildings have been applied but not yet mixed. The coating tiles were custom-designed and produced specifically for ADM Architects. Besides the color and the steps, the facade is also formed by openwork cases of the air conditioning units. The large windows, the perforated metal, and the “lace” feel created by the multicolored tiles, make the 90-meter towers look textured and cozy – a nuance that lets you tell the facades of the residential buildings from office ones on the subconscious level.
The apartment complex Novodanilovskaya 8
Copyright: © ADM
Considering the specifics of the place – the proximity to the embankment and the abundance of business centers – the architects tried to make the territory of the complex as transparent as possible. The yards, strung on the common axis west-east, are naturally divided into three parts: the public park is situated east of the towers, the private yard on the roof of the stylobate is in the center between them, and the playgrounds are situated in western part, closer to DM Tower.
The pedestrian path, which leads from the embankment into the depth of the block, starting off with an “arch” in the stylobate of Danilovsky Fort, continues eastward, alongside the stylobate. It forms an inner street, where the front of the stylobate is reserved for commercial leasing: there will be stores on this street. The inside volume of the stylobate is occupied by a car park.
The masterplan. The apartment complex Novodanilovskaya 8
Copyright: © ADM
The east park – narrow and elongated – serves as the exit to Danilovskaya Manufaktura. About a quarter of its length is occupied broad stairs with traversal benches / flower beds with lush cereal vegetation; this is not quite a “step-ramp” and not quite an amphitheater, but this is clearly more than just a staircase – rather, it is some hybrid space designed not just to get up the stylobate’s roof and get down from it, but also for people’s socialization and meditation. The little park – both the stairs and its upper part – will be open to all city people, but, first of all, for the office workers from the nearest offices.
The “children’s” part of the yard in its western part, just like the little park, is an elongated trapeze on the roof of the stylobate between the office tower and the slope of the hill. This place is accessed by a narrow staircase, and the space feels quiet and secure.
The privacy of the central yard is further ensured by its very location on the stylobate’s roof between the houses. All the three yards are carefully zoned and divided into a multitude of small zones with flowerbeds, benches, and lawn patches. The whole picture looks a little bit reminiscent of cafe tables, designed for multiple guests, because it forms not just a string of impressions, but also cozy corners for various companies of people, making the space diverse and even visually “pushing” its borders. Another thing that is important is the top view: the fine fracturing of the spaces forms a semblance of decorative mosaic, whose visual effect is akin to the effect created by the palace parterre of the French classicism, where the geometric pattern of the plan and the regular alternation of paths, areas, flowers and bushes were also popular.
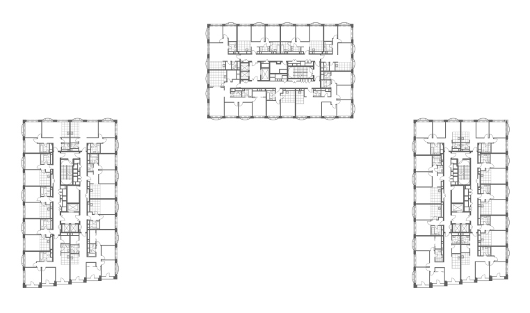
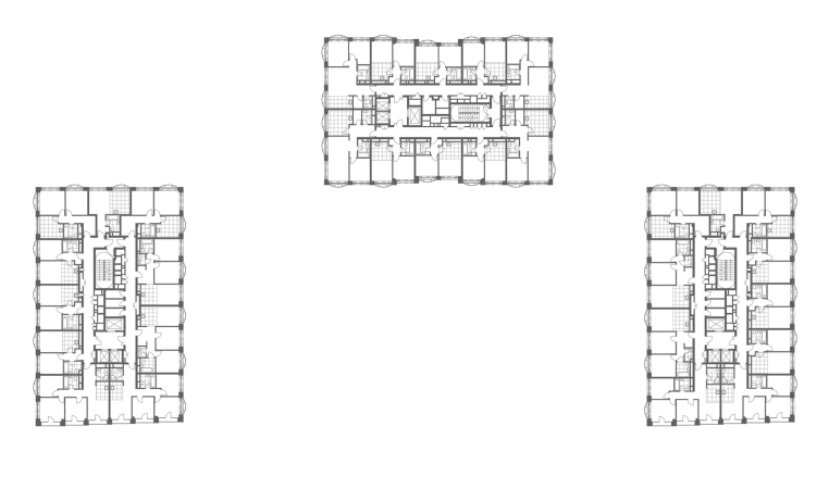
The towers are designed in the classic skyscraper fashion: the staircase-and-elevator core is situated in the center, which ensures a lot of good layout and a lot of great views from the windows. The complex includes apartments ranging from 24 to 108 square meters with high ceilings and panoramic windows, penthouses, spacious lobbies of the entrance groups designed by HAAST, places for strollers, as well as storage rooms.
The apartment complex on the Novodanilovskaya Embankment creates a curious precedent for building residential towers directly downtown, which is quite appropriate both for Moscow with its business energy, and for the modern generation in general, flexible and mobile. For many years, the city has been talking about ways to overcome pendulum migrations and create multifunctional districts, but as a rule, it is necessary either to introduce housing into offices, or, especially in the last 10 years, on the contrary, to endow housing with office inclusions. In this case, however, multifunctional development seems to be naturally arising on the territory of the former industrial estate – high-rise, energetic, and diverse. Of course, nobody can guarantee that people living in the new apartment complex will necessarily land jobs in the nearby business centers, but you cannot entirely rule out such a possibility.
As for the architecture of its residential towers – ostentatiously reserved, regular, and with a tiny hint at the agility of the form – appears to be a reaction to much bolder statements from three totally different neighbors: a sculptural, a plastique, and a relief-and-graphic one. The towers look like a company of well-mannered basketball players who found themselves on a subway during the rush hour – they carefully turn around, trying not to step on anybody’s toes, but they cannot vanish out of sight altogether. They will be seen from afar as the tallest buildings amidst dense surroundings, and interesting to examine from a close range. When viewed from a midrange, however, these houses are quite content with a “background” part, limiting themselves to a reserved grid – and one must say that this alternation of perception levels reveals some extra value of the architects’ effort, which is sometimes an absolute must for large-scale construction in a busy context, whose energy is on a par with that of New York.
