The architectural concept of the Novy Vzglyad school
Copyright: © Vostok+Martela
In the recent years, one of the common decencies of Russian architectural circles became to never speak ill of the competition winners. If the developer arbitrarily hands a project over to another architect, this situation can be, however reluctantly, discussed – but if there has been a competition, everybody keeps their mouth shut, and alternative opinions are only voiced out of public view. In our opinion, however, this particular case is in many respects special, and must be discussed.
At the same time, a lot of our readers who are interested in architecture of modern Moscow are sure to remember that the school building used to be the highlight of the entire Garden Quarters complex – the housing project that Sergey Skuratov designed in the stead of Kauchuk factory. Winning the competition in 2006, Skuratov in 2007 developed a master plan and a design code for this area, inviting a few reputed Moscow architects to further work on the project: Yuri Grigoryan, Vladimir Plotkin, Andrey Savin, Alexander Skokan, Sergey Tchoban, and others, distributing the buildings among himself and his colleagues. This was one of the first cases for Moscow when different “hands” were combined based on a common design code – a strategy that was later on implemented by Yuri Grigoryan in ZILART, by Sergey Tchoban in “Micro-city in a Forest”, as well as in a whole number of other projects; essentially, such approach became one of the main strategies of designing large housing complexes in Moscow of the 2010’s.
One must admit, however, that the key features of Garden Quarters were originally proposed by Sergey Skuratov. Specifically, according to the architect’s design, the bottom part of the complex consists of two levels, which not only provides a division between private yards and a public city space around the pond in the middle, but also creates a spatial intrigue that connects parts of the complex with overpasses, further supported by frequent cantilevered structures: the buildings sometimes grow from the ground and sometimes hang over your head, all of which, along with the diversity of design solutions, makes the texture of Garden Quarters anything but trivial.
The concept for building a residential area in Moscow′s district of Khamovniki
Copyright: © Sergey Skuratov ARCHITECTS
The role of the imagery climax was given to the school building – back in 2007, it looked like a slender white bar with a cantilevered structure standing out 21 meters, and emphasized the proportions of the buildings, chiefly vertical, with its horizontal volume, hovering above the pond. One should hardly mention the fact that many of the principles proposed in Garden Quarters, which seem to be the hot trends of today, were then pioneered by the architects involved in the design process.
The concept for building a residential area in Moscow′s district of Khamovniki
Copyright: © Sergey Skuratov ARCHITECTS
The concept for building a residential area in Moscow′s Khamovniki area, 2006
Copyright: © Sergey Skuratov ARCHITECTS
Since then, the country has been through a string of financial crises, the project developer has changed, and the construction of the office center has been cancelled – the school remained the project’s only public building and main accent. Its land plot shrank, and Sergey Skuratov revised the project, slightly reducing the stagger of the cantilever; the facades became copper. However, the significance of the school building for the ensemble and the idea of “road to school”, separated, for the sake of children’s safety, from the city space around the pond, did prevail.
The Novy Vzglyad school as part of Garden Quarters, version 2010
Copyright: © Sergey Skuratov ARCHITECTS
Curiously, no design code was written for the school – on the contrary, it was meant to be fundamentally different from its surroundings, thus, however counterintuitive this may sound, holding the whole composition together. For years, it was commonly accepted in the professional circles that it was authored by Sergey Skuratov: many of those who was interested knew very well about the project with a cantilevered structure above the pond. Then the competition happened quite unexpectedly. No less than ten invitations were sent out to reputed architects, but most of them – chiefly, those who already designed in Garden Quarters, and others as well – refrained from participating in favor of Sergey Skuratov. Meanwhile, the competition did take place, and now there are plans for building quite a different project in the middle of the complex. Sergey Skuratov took part in the competition but he did not win it.
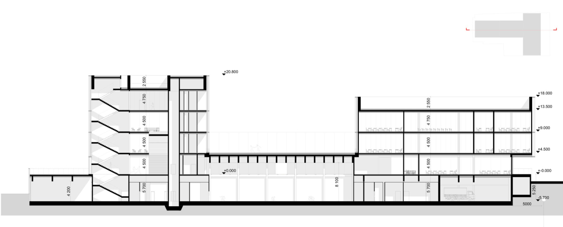
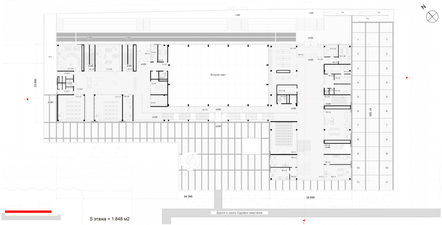
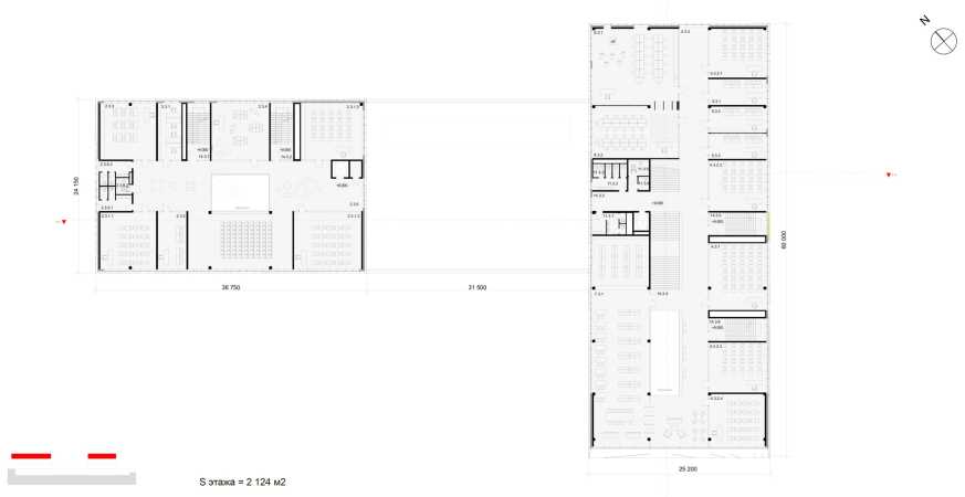
In the Skuratov project, worked out in much detail for the competition, the building looks like this:
View from the central zone of garden Quarters. The Novy Vzglyad school as part of Garden Quarters, 2020
Copyright: © Sergey Skuratov ARCHITECTS
Top view from the side of the central zone of Garden Quarters. The Novy Vzglyad school as part of Garden Quarters, 2020
Copyright: © Sergey Skuratov ARCHITECTS
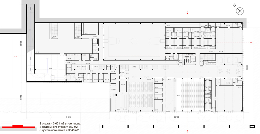
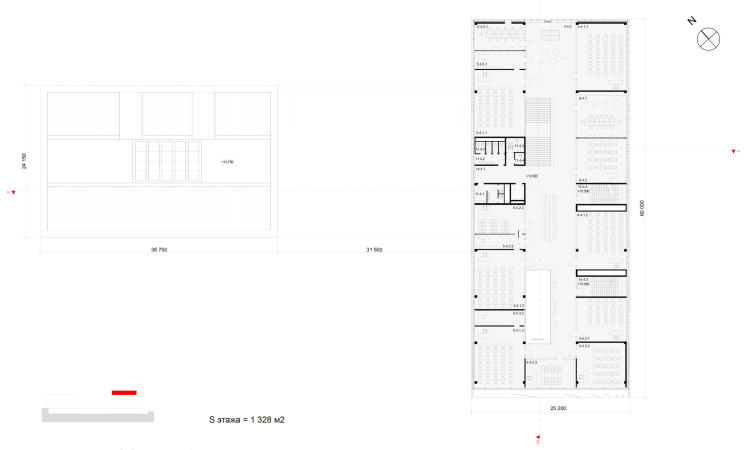
In the winning project by the consortium “Vostok”+Martela, the building looks like this:
Architectural concept of the Novy Vzglyad school
Copyright: © Vostok+Martela /provided by the press service of Moskomarkhitektura
Architectural concept of the Novy Vzglyad school
Copyright: © Vostok+Martela /provided by the press service of Moskomarkhitektura
The next day after the results of the competition were announced, Sergey Skuratov published his project on his company’s website, and on his Facebook page, adding the following comment:
https://www.facebook.com/sergey.skuratov.5/posts/3543563572374405 (for Readers of Russian)
***
Below, we are interviewing Sergey Skuratov about the competition and about the third version of the school building, developed on the basis of all the predecessor versions in the spring of 2020:
Archi.ru
How did you take what happened?
Sergey Skuratov:
It was a shock to me, I am still struggling to pull myself together, I could not see this in my worst nightmare.
Garden Quarters are robbed of their main highlight, the nucleus that held the whole composition together after the construction of the business center was cancelled. The project that is peddled as the winning one would have been appropriate in some rank-and-file sleeping-belt neighborhood, or maybe would have even made a positive difference to it, but in this case, the way I see it, it is a complete and utter disaster.
Presenting my project to the judging panel, I said: the 16 houses of Garden Quarters are a frame that has been waiting for its gem for 13 years. The school must embody the idea of architecture that’s totally up-to-date and even architecture of the future – light, transparent, and flying. This would have matched the ambitious of innovative education that this organization was supposedly going to develop, and the name of the “Novy Vzglyad” (“New Outlook”) foundation.
I think that we must be asking the right questions. The right question number one: is this the kind of centerpiece that the Garden Quarters need? And what kind of future do we see behind the victorious “Vostok”+Martela project? In my opinion, it does not look like innovative future; rather it looks like the bleak past: the heavy shape, the dull facades, and the yellow-pink bricks resonate with the neighboring five-story affairs. The project exceeds the overall area by some 2000 Sqm. And, to cap it all, my colleagues placed the entrance in the pit on the side of the pond, which I believe to be a totally erroneous solution.
Project of the Novy Vzglyad school
Copyright: © Sergey Skuratov ARCHITECTS
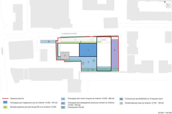
In our proposal, the main entrance was always located on the side of the 1st Shibaevsky Drive, i.e. from the city side, in order to make it convenient for children living outside Garden Quarters: we designed a parking lot there, and an entrance on the street level, leading directly to the second tier, which inside of the complex corresponds to the level of residential yards and overpasses.
We are proud of our “road to school” idea, which is basically a pedestrian bridge running at height of 5.7 meters and thus isolated from the city’s traffic areas. It connects the yards, the entrance groups of the residential buildings, and the school, offering the safest possible path – the child simply has no chance of ending up anywhere except either at school or at home. It was a point of honor for us to ensure the children’s safety by purely architectural means.
View along the road to svhool (the road to school is on the left). The Novy Vzglyad school as part of Garden Quarters, 2020
Copyright: © Sergey Skuratov ARCHITECTS
View from the central zone, from the first quarter. The Novy Vzglyad school as part of Garden Quarters, 2020
Copyright: © Sergey Skuratov ARCHITECTS
In the winning project, the child, in order to get to school, will not only have to go through the city space, but also descend a staircase into the pit for some obscure reason.
Is your competition project significantly different from its previous versions?
We made the project that we submitted for the competition still flashier, still brighter, and still lighter – we returned to the concept of white color and transparency, including the gradient from milky glass to transparent. The light-colored top contrasts with a Corten steel stylobate, which, in turn, ensures the links with the neighboring quarters, where Corten steel is also to be frequently seen on the pedestrian level. Sadly, we had to refrain from the idea of the large cantilevered structure looking in the direction of the pond, because during the recent years the land underneath it became officially occupied by the residential part of the complex. We changed almost all the technology, introducing new ideas and new developments. In fact, this is a whole new project.
We once again worked out every little detail, leaving nothing to chance. We introduced outside safety landings, multifunctional spaces inside, designed interiors with a large amount of natural light and views of the pond, with wooden ceilings, and comfortable communication between the classrooms.
In the atrium and in the lounge zones, the structure is devised in accordance with the modern approaches to designing school buildings and organizing classes.
The interior design that I saw in the winning project is baffling to me, to put it mildly. In addition, we only saw one picture; views from many vantage points were not shown at all.
Architectural concept of the Novy Vzglyad school
Copyright: © Vostok+Martela /provided by the press service of Moskomarkhitektura
We carefully thought out the proportions and the rhythm of the facades, the third quarter starting with simple rhythms, and the first ending in a complex one. And our school is exactly in the middle of this space. All the residential buildings in the central area overhang above the road to school at a 3.6 elevation, and the cantilevered structure of the school building also picks up this mark.
Another thing that we did was the “air perspective”: the main building has four floors in it, then there is a single story “pause” or “rest”, and then there is a three-story volume of the junior school, which stays in the visual shadow of the third quarter. Underneath all of the hovering volumes, there is a “trim”, a glass layer between the basement and the building, which creates an extra feeling of flying lightness. A lot of our techniques were thoroughly tested in our previous projects but I am positive that this third latest version would have come out still more interesting.
Did your project turn out to be too expensive?
Not at all! It allowed for using usual glass, steel or composite lamellas, and even Corten steel is not such an expensive material, come right down to it. I am not sure – perhaps, they were after some special economy. But then again, for such an ambitious educational project, with Moscow State University of Foreign Affairs involved as one of the investors, in such a high-profile area of Moscow as Garden Quarters, you would expect an appropriate level of financing, wouldn’t you?
Again, we attached to our competition project the cost estimate, really moderate – but during the discussion I serendipitously overheard the words that were definitely meant for me “You are too expensive an architect, Sergey Aleksandrovich!”
Was it a closed-door, invitation-only competition?
It was invitation-only, yet at the same time royalty-free. We were told that the winner would be awarded the contract for doing the design development phase.
Did all of the invited companies participate?
A lot of reputed architects were invited, including my colleagues who had already worked on Garden Quarters, plus ATRIUM, ASADOV Architects, Tsimailo and Lyashenko, and others. They all refused to participate because they knew that this was my project, and the school was its highlight, very important to me.
Were the project presentations of the open-door type?
Closed. I was only able to leaf through the architectural album; I did not see the technological part from Martela. As for the interior design, I also saw just one image.
***
This wraps it up for the interview with Sergey Skuratov. Let’s make an attempt to meditate on this story. It seems that for quite a while nobody has discussed the results of architectural competitions – people have been simply congratulating the winners. In this case, however, it is pretty obvious that the competition was for anything but a greenfield project, and the whole situation looks pretty strange, now being widely discussed on social networks, where opinions, as is always the case, split into two controversial sides: many people actively support Sergey Skuratov; others point to the fact the conditions and the developer’s requirements have changed; some also voiced an opinion that for a school building, it is the content that matters, and not the facade, and in this sense both projects are of approximately equal value.
So! The ethic side of the question is more or less clear, at least because of the fact that the majority of the invited companies turned down the offer – this sure must mean something – and because the participation was free but no open-door competition was announced. However, there are a few more things to consider: the status of the design code, the attitude towards money, and the competition practice in general.
As we remember, Garden Quarters were originally devised as a project by several authors, which for a few decades has been a standard practice used to avoid monotony through turning to the style of the traditional city. Diversity becomes more authentic if one project involves not one but several architectural companies. However, the traditional city can be different: the conditional medieval city is built chaotically, while the conditional classicism city is built by different authors, yet in accordance with the rules. Then, there is the higher form of architecture, an architectural ensemble; the word literally translates from French as “together”, but in reference to architecture this means that something was not just pieced together, but was assembled using a systematic approach. The ensemble is devised by the author as an orchestra conductor. Garden Quarters were designed as an ensemble, an orchestra, conducted by quite a specific conductor, Sergey Skuratov, who for a long time committed himself to managing this project, a superb one by the standards of Moscow compromises. For more than 13 years, this large, “stayer” complex has been developing like an ensemble indeed: an architectural project governed by one will and designed to have certain highlights.
In addition, the project had a design code, and a set of rules, which we, back in the day, following the author, compared to the “genetic code”, which in actuality wasn’t quite the case – to be more exact, it was a genetic code for the residential buildings designed by guest architects, but, in addition to it, the project also presupposed a “neural network”, some sort of a center, a “mind”, or a set of narratives with an inner hierarchical structure, which does not just come down to one “code”, just like the human brain does not consist of neurons alone. And, generally speaking, the very notion of design code works on a pretty down-to-earth level, while a higher degree of organization presupposes a project as a system of plastique and compositional links and mutual subjugations.
No design code was written for the school building because it was assumed that its project would be done by the general contractor, Sergey Skuratov Architects. So, what did it end up happening?
In the western corner of the territory, in the stead of the canceled business center, appeared a new 5th quarter, not resonating with the overall system either volume-, or plastique-, or composition-wise: it was not there on the original plan of the four quarters; unlike these four, it faces not the center but the Usacheva Street. Its massive volumes do not in any way match either the big picture or the ensemble with its preexisting rules and proportions; plastique-wise, it is a thing in itself. Currently, the 5th Quarter in the west corner of the complex is being designed by “Vostok”. A little earlier, the same architectural company built at the north corner of Garden Quarters on the Usacheva Street, a high-end residential complex Magnum, the black one with rounded corners.
Today, as a result of the recent competition, the same architects, “Vostok”, are proposing a volume that “makes a step” into the center of the complex and usurps the place of its main highlight. Paying lip service to the design code, specifically, using brick for facade decoration, yet still violating the ensemble by introducing a new compositional center with completely new features – its architecture is closed as opposed to open, it digs itself in instead of hovering, its rounded instead of sharp – true, all of these things were not written in the design code because all of these things refer not so much to the code as to the project or the plan, which lie at a slightly different layer of artistic thinking than the design code or even the genetic code – let’s call it the level of reason, or the composition level, for simplicity’s sake. Doesn’t it seem to you that such an influence has a lot in common with a virus’s RNA? Rebuilding a fragment of the code that disrupts the system’s operation, like its breathing? No? Let’s move on then.
Moving on, about the money! Various sources constantly thrust on us the notion that a creative mind must not be concerned about the money – what kind of a creator are you if you ask for money, money is an undignified and a lowdown thing. In actuality, however, this is a whopping lie, which allows people who, for all intents and purposes, are supposed to think about the money, to economize on the most valuable and long-term component of the product – its artistic value and quality of execution. This is in one case. In another case, as my own judgment, I will venture a guess that by doing all these things the developer is manipulatively suggesting that the architect work for free, if he is really interested in a great end result. A sure-thing pressure tool is in action: if you want something well done, do it yourself, but we are not going to pay you on general principle because, first, we want to save up, second, we are not really interested in some of the aesthetic features of the end result, and, third, we think that paying you, creative folks, is the wrong thing to do. These are all solely my personal guesses but I think you will agree that we are constantly hearing something like this here and there. And, in addition, here it is about a school, building a school is a noble thing to do, and, as a noble thing, it should not be too expensive (or, better yet, free of charge). Never mind the fact that the school is situated, without exaggeration, in the most prestigious area of Moscow, and is part of one of the richest and most prestigious universities. Frankly speaking, this reminds me of some parents who claim that the food and clothing for their children must be provided by the government. No, not because they are poor, I am not speaking about poverty here, but because – well, these are children!
About the school. Seriously, do we need to make it beautiful at all? Like Shrek said, “my stomach’s aching and my palms just got sweaty. Must be a high school.” What if the attractive appearance of the school building turns out to be a fake? Because what really matters is the environment inside, and a great environment could indeed be formed in a standard “Stalin” building, like, say, in School 179, or, on the other hand, you may have the newest and most beautiful building in the world but lock up all of its gardens and entrances to the roof and ruin the positive environment, regardless of the space that the architects designed. If the teacher is bad, the beautiful facade and the beautiful interior will be of no avail for the children. And here an objection kind of suggests itself – this is why the Martela project was chosen, because they have the experience of working with the programs of modern top-league schools. And, in addition, our people have grown accustomed to standard school buildings, or, to be more precise, have gotten used to adapt to some degree of simplification of visual environment, and the three types of brick on the facade will already be an architectural event in its own right. It turns out that we are speaking here not so much about the school as about the ensemble of Garden Quarters, which so far do remain the rare example, by Moscow standards, of high-quality architecture and neatly organized city space.
Speaking about the school – in the sense that do we want to propose, regardless of content, that we can only hope for, and which is temporarily out of the equation, a new image of a school building? Not the rank-and-file building in the middle of the neighborhood but something flashy, something that arrests one’s gaze? For all intents and purposes, the innovative schools of today are now looking to have such a bright image. Let’s recall the already-mentioned Letovo, Khoroshkola, Wunderpark, Primakov Gymnasium, to name but a few. Here, however, the difference is that the building also served as the highlight of the complex, and not some addition to the “soup du jour”, as often happens to be the case. In this sense, this is definitely a step backwards made instead of a step forward. Even though we do have to admit that the problem lies in the area of subtle matters. But it’s the subtle matters that we ultimately miss.
And, finally, the competition. As we know, the competition is by definition a procedure that’s healthy, democratic, progressive, and conducive to healthy rivalry. And, probably, it does not make much sense to lament the fact that the judging panel oftentimes, as was also the case in our instance (see the incomplete lineup here) consists of less than half of professional architects, the presentation and discussion taking place behind closed doors. From the formal standpoint, one could assume that the young architects surpassed the maestro, proposing something brighter and more progressive. From what we can see, however, it doesn’t look that way, and, as a consequence, the competition looks not so much as a contest of professionals as a procedure for legitimizing the solution, which has nothing to do with aesthetic choices. Which, generally, discredits the very idea of an architectural competition, leaving only an empty shell of formalities. Wouldn’t it have been easier for the client to just go ahead and make this unpopular decision without any extra histrionics? Or the legitimizing procedure is the next hot trend of today?
