Относительно недавно поработать с такого рода задачей довелось международному, но прочно укорененному в Москве бюро Blank Architects.
Екатерина Козак, Blank Architects
«Дом «Обыденский № 1» – прекрасный, очень интересный для Blank Architects опыт работы с исторической, или скажем так, «классической», стилистикой. Он расположен в тихом переулке, рядом с храмом, в окружении разновременных зданий: от классицизма и историзма до модерна. Кроме того, речь о «Золотой миле», районе Остоженки – одном из самых престижных в Москве. И речь о клубном доме – типологии дорогого элитного дома в центре города. Виды с террас пентхаусов – на храм Христа Спасителя. Пожеланием заказчика была архитектура классического направления; это же диктовало и окружение, и тот факт, что в рамках комплекса будет сохранено архитектурно-стилевое решение фасада начала XX века.
В результате мы создали дом в современной интерпретации исторической архитектуры с использованием дорогих природных материалов, украшенных множеством деталей. Благодаря этому «Обыденский № 1» находится в архитектурном диалоге с окружением, созвучен месту и производит впечатление, что находился здесь всегда. Каннелюры в простенках мы трактовали точно, как элемент классической архитектуры. Как и развитый раскрепованный карниз основного объема. Тут нам помог натуральный камень, а круглые элементы латунных ограждений и вставки зеленого индийского мрамора с уникальным меняющимся рисунком восходят к примеру соседних зданий эпохи модерна».
В результате мы создали дом в современной интерпретации исторической архитектуры с использованием дорогих природных материалов, украшенных множеством деталей. Благодаря этому «Обыденский № 1» находится в архитектурном диалоге с окружением, созвучен месту и производит впечатление, что находился здесь всегда. Каннелюры в простенках мы трактовали точно, как элемент классической архитектуры. Как и развитый раскрепованный карниз основного объема. Тут нам помог натуральный камень, а круглые элементы латунных ограждений и вставки зеленого индийского мрамора с уникальным меняющимся рисунком восходят к примеру соседних зданий эпохи модерна».
Итак, речь о самом центре города, участок прямо граничит с церковью Ильи Обыденного, построенной в камне в конце XVII века. Выходя из главного лобби, жители будут видеть ее и слышать колокольный звон, – говорят архитекторы. Это самое начало Остоженки, напротив, через 2-й Обыденский переулок – дом, реконструированный 20 лет назад по проекту бюро «Остоженка», в самом разгаре того процесса ревитализации района, который и превратил его в «Золотую милю». И новый дом, определенно, развивает здешние традиции. Тем более что место ему досталось не просто на Остоженке, а рядом с бульварным кольцом, в самом начале бывшего дворянского, а теперь престижного района Москвы.
Новый клубный дом, спроектированный Blank Architects для девелопера Sminex-Интеко, находится на участке к югу от церкви; он был застроен, в основном, флигелями и гаражами, в том числе советского времени. Но северо-восточную границу замыкает доходный дом 1905 года. Он не имеет охранного статуса, но решение фасада начала XX века в проекте планируется сохранить. Это не первый случай в практике Sminex: на Чистых прудах, где проектом занимался Илья Уткин, «вывесили» целиком весь контур стен дома 1915 года.
Клубный дом «Обыденский № 1». Схема ситуационного плана
© Blank Architects
Разные виды практики сохранения фрагмента старого здания в составе нового за последние 30 лет получили широкое распространение. Архитекторы такую ситуацию осмысляют по-разному, но нередко фрагмент каким-то образом влияет на все здание. Так получилось и здесь. Дом стал заметно многосоставным, он реагирует на все: и на вкрапление внутри себя, и на историческое окружение. И, конечно, а это безусловно главное, на предпочтения целевой аудитории клубных домов.
Участок клубного дома «Обыденский № 1», вид сверху, с юго-востока. На первом плане дом, фасадную стену которого сохраняют, на втором плане слева – дом, реконструированный АБ «Остоженка» в 2003 году
© Blank Architects
А аудитория предпочитает респектабельность и натуральные, читай дорогие, материалы. В данном случае архитекторы выбрали надежный путь: вот уже лет пятнадцать как в «клубном» секторе устоялась стилистика, тяготеющая к ар-деко и одновременно, особенно в последние годы, – популярен пластинчатый рельеф фасада, ступенчатые слоистые контуры филенок, из которых он, в конечном счете, и состоит.
Этот подход, успешный в тридцатые годы XX века, помогает удержаться на грани между полной стилизацией исторических прообразов и современной архитектурой. К тому же он отлично сочетается с натуральным известняком и хорош в «косом свете» солнечного дня, когда особенно ощутима графичность и крупных, и мелких полос.
Дом с восточной стороны, с сохраняемым фасадом 1905 года. Клубный дом «Обыденский № 1»
© Blank Architects, Проектное бюро «Крупный План» / предоставлено Sminex
Для большей части фасадов планируется использовать светлобежевый известняк. Но есть еще сатинированная и патинированная латунь: она используется в ограждениях всех балконов, чей рисунок похож на ряд музыкальных камертонов, чередующихся с кругами, заимствованными у орнаментики модерна. Латунные вставки арок в «триумфальной» композиции входной лоджии усиливают необходимый клубному дому эффект драгоценности.
А довершает искомый эффект прием, деликатно обогащающий визуальные качества фасада – вставки из темно-зеленого мрамора в контурах оконных проемов. Они тоже профилированы подобием каннелюр, горизонтальных, но более тонких, выпуклых, и, главное – высоту их рельефа планируется плавно менять. Пожалуй, эта деталь, легко доступная для рассматривания, а может быть даже тактильного взаимодействия – самый надежный способ наглядно показать драгоценность дома.
Входная группа. Клубный дом «Обыденский № 1»
© Blank Architects, Проектное бюро «Крупный План» / предоставлено Sminex
Здесь можно вспомнить и зеленый мрамор византийских церквей – рядом с русско-византийским храмом Христа Спасителя это, пожалуй, будет кстати. Но авторы говорят, что вдохновлялись майоликой и глазурованной плиткой модерна, и им можно верить. В конце концов, на углу соседнего квартала дом Перцовой, а там отличные майолики. Но что удивительно – кажется, что зеленый мрамор – материал подороже, чем сто лет назад майолика. Что вновь возвращает нас к драгоценности – качеству, для современного клубного дома на Остоженке неизбежному.
Надо сказать, что материал кровли «исторической» части дома – а ее собираются покрыть патинированной медью – вторит зеленым вставкам; или они ей? По словам архитекторов, колорит стал откликом на цвет кровли церкви Ильи Обыденного. И вновь: цвет похож, но материал более дорогой. В то же время он не может не напомнить Copper House Сергея Скуратова, одну из тех знаковых построек, с которых начиналась «Золотая миля».
А у других объемов вообще нет скатных кровель, они все отданы террасам для квартир верхних этажей.
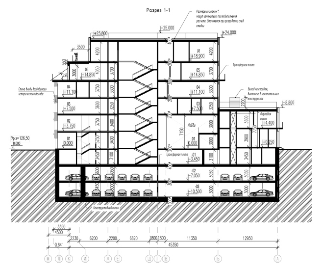
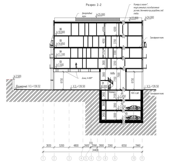
Но рассмотрим структуру дома. Здесь совмещено несколько типологий городской застройки. Дом состоит из трех частей. К линии 2-го Обыденского переулка выходят три двухэтажные городские виллы. Каждая имеет вход с улицы, они окружены деревянными настилами патио. Слоистость фасадов получает поддержку в объеме: каждая вилла делает «шаг» чуточку выше, и карнизы накладываются друг на друга. На кровле – террасы с видом на переулок, храм Христа Спасителя и Кремль.
Городские виллы в историческом центре – вещь роскошная. Нельзя сказать, что они часто встречаются, но тут будет уместно еще раз вспомнить, что – мы находимся на Остоженке. И первая, как кажется, вилла рубежа XX–XXI веков в центре города появилась именно здесь: Юрий Григорян встроил ее во двор Дома в Молочном переулке еще в начале 2000-х годов. Так что «Обыденский № 1» прямо развивает традиции места.
С противоположной северо-восточной стороны – корпус, в котором сохранено архитектурное решение доходного дома 1905 года. Два его нижних этажа – «ситихаусы», своего рода виллы, встроенные в объем дома. Выше есть другие квартиры, со своими достоинствами, в частности, дровяными каминами и террасами на кровле. Средняя часть дома – самая высокая, шесть этажей. Здесь пентхаусам на самых верхних этажах будут принадлежать террасы.
Клубный дом «Обыденский № 1»
© Blank Architects, Проектное бюро «Крупный План» / предоставлено Sminex
Самое интересное решение средней части – двусветное лобби с винтовой лестницей и балконом второго яруса.
Интерьер лобби. Клубный дом «Обыденский № 1»
Дизайн интерьера © АБ Олега Клодта / рендеры © Sminex
Вход в него предваряет камерный всесезонный двор-сад; он отчасти «затекает» под дом. Такое решение архитекторы называют крытым двориком. Аналогии решению можно найти как в доходных домах XIX века, так и в их прообразах, ренессансных дворцах, где входная арка иногда превращалась в гипостильный зал с колоннами, а иногда просто была достаточно широкой и протяженной, чтобы служить промежуточным пространством между «внутри и снаружи». Решение определенно дворцовое и вкупе с латунными арками еще раз недвусмысленно подчеркивает статус «Обыденского № 1».
Внутри – цветы и деревья в кадках, диваны, защищенные от дождя, треугольные светильники подчеркивают направление подсвеченных арок, похожих на своды Монье.
Клубный дом «Обыденский № 1». Схема генплана
© Blank Architects
Пространство дворика перед входом. Вид в сторону внешнего двора. Клубный дом «Обыденский № 1»
Ландшафтный дизайн ALD Landscapes / рендеры © Sminex
Между тем авторы сделали все возможное для того, чтобы лобби было прозрачным, проницаемым для взгляда с одной и другой стороны – это уже не столько дворцовый, сколько модернистский прием.
Хотя, как и винтовая лестница, он может иметь глубокие корни.
Дизайном интерьеров занималось бюро Олега Клодта.
Пространство дворика перед входом. Вид в сторону лобби. Клубный дом «Обыденский № 1»
Ландшафтный дизайн ALD Landscapes / рендеры © Sminex
***
Итак, перед нами клубный дом «Золотой мили», продолжающий традиции последних десятилетий и расположенный в очень выгодном месте: в 150 метрах от храма Христа Спасителя, поблизости от дома Перцовой, пешеходного моста в сторону ГЭС-2 и многих других достопримечательностей.Он многосоставен как функционально – чего стоит хотя бы идея городских вилл с бассейнами в подвальном ярусе, – так и объемно, и декоративно. Здесь в разных ракурсах рассматривают запрос на дорогую архитектуру: через натуральный материал, каннелюры, латунные элементы, дровяные камины, наконец. Для по-настоящему камерного клубного дома – 16 квартир, 4 пентхауса, 3 ситихауса и 3 виллы – в нем размещена богатая и всесторонне развитая инфраструктура, предназначенная только для жителей дома: фитнес-зал, детские развивающие пространства, лобби для встреч и общения с соседями.
Но мне больше всего нравится глубокая входная лоджия-дворик со стороны церкви: в любую погоду здесь можно будет слушать – в центре города! – тишину. Это ли не новая роскошь городского центра.
