Примечательно, что как для руководителя авторского коллектива, главного архитектора Москвы Сергея Кузнецова, так и для авторов архитектурного решения – Сергея Чобана и Игоря Членова, Толмачево это первый реализованный проект аэропорта, хотя в портфолио СПИЧ авиа-терминалы фигурировали и раньше. Тем интереснее результат. Но попробую изложить по порядку.
Терминал С аэропорта Толмачево в Новосибирске
Фотография © Дмитрий Чебаненко / предоставлена СПИЧ
Нынешний терминал должен стать началом реконструкции международного аэропорта в Новосибирске, он своего рода первая ласточка. В дальнейшем планируется перестроить все существующие корпуса. Пока реконструкция не завершена, новый терминал С работает для внутрироссийских авиалиний, соседний с востока терминал Б продолжает функционировать как международный.
Терминал С разместился на новой площадке, «шагнул» вперед на площадь перед существующим комплексом аэропорта, взял на себя роль парадного фасада всего Толмачево.
Есть такие проекты, которые принято представлять цифрами; обычно они очень заметные, с ноткой «мега-», и аэропорт Толмачево, определенно, такой. Высота колонн – порядка 30 метров, диаметр их ствола – 5 м, диаметр стеклянных куполов – 32 м. Высота фермы потолка 1.5 м. Вынос козырька 11 метров.
Специфика архитектурного решения, как известно, имеет отношение к масштабу и размерам, но не всегда прямое. В данном случае – светящиеся колонны-зонтики высотой с 9-этажный дом, безусловно, производят впечатление.
И когда светятся изнутри через витраж – гигантскую витрину, намеренно лишенную дополнительной подсветки, – как некие энергетические стержни.
Терминал С аэропорта Толмачево
Фотография © Дмитрий Чебаненко / предоставлена СПИЧ
И когда подсветка погашена, а колонны «купаются» в дневном свете, в изобилии пропускаемым стеклянными стенами с трех сторон и куполами сверху.
Колонны удивительны: и свет, и масштаб, и «полосатая» структура, и расположение в пространстве – вроде бы занимают его целиком, но совсем не загромождают. Они и часть здания, и в то же время экспонат – это для них соорудили стеклянный чехол с ажурной, намеренно тонкой, вантовой конструкцией, – ради того, чтобы их показать. Что кажется вполне оправданным.
Терминал С аэропорта Толмачево
Фотография © Дмитрий Чебаненко / предоставлена СПИЧ
Терминал С аэропорта Толмачево
Фотография © Дмитрий Чебаненко / предоставлена СПИЧ
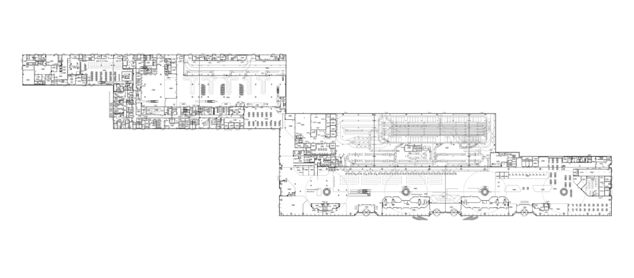
Другой вопрос связан с первым – это пропорции стеклянного «чехла». Длина стеклянного корпуса 300 м, ширина 60 м с козырьком и около 40 м без него. То есть пропорции плана внутри – практически 1 х 7.5, парадный объем очень протяженный.
Здания аэропортовых терминалов, они бывают почти квадратные или, наоборот, длинные. Последнее объясняется тем, что протяженное здание позволяет «пристыковать» к нему большее количество самолетов. Если мы посмотрим на план петербургского Пулково, то увидим, что терминал Гримшо «квадратный», а терминал Пулково-1 Александра Жука – длинный, в нем даже не четыре, а пять куполов. Это важно, поскольку Сергей Чобан называет прообразом толмачевского терминала именно Пулково-1 и говорит о намеренных перекличках с архитектурой «классического» модернизма.
Сергей Чобан
Сейчас принято проектировать аэропорты с текучими нелинейными формами – это один из дорогостоящих, но в то же время достаточно простых, поскольку безотказных, способов добиться WOW-эффекта. Но Новосибирск – модернистский город, в значительной степени сложившийся после войны. Мы вспомнили об Академгородке; а также о самом первом терминале 1960-х, построенном в Толмачево по проекту Анатолия Воловика. И решили пойти по пути сдержанной архитектуры, регулярной и рациональной, апеллирующей к модернистским образцам. Хотя это не исключает и эффектного жеста, каким, на мой взгляд, стали наши колонны.
Для меня лично ключевым стал прообраз петербургского терминала Пулково-1 с его световыми фонарями-«стаканами». Там колонны поддерживают кровли в зенитах фонарей, а к ним уже подвешена кровля.
В нашем случае конструкция несколько иная: колонны берут на себя часть веса ферм потолка, делят нагрузку с опорами по внешнему контуру. Но они имеют конструктивный смысл и участвуют в распределении несущих сил внутри здания. Для нас это было важно.
Для меня лично ключевым стал прообраз петербургского терминала Пулково-1 с его световыми фонарями-«стаканами». Там колонны поддерживают кровли в зенитах фонарей, а к ним уже подвешена кровля.
В нашем случае конструкция несколько иная: колонны берут на себя часть веса ферм потолка, делят нагрузку с опорами по внешнему контуру. Но они имеют конструктивный смысл и участвуют в распределении несущих сил внутри здания. Для нас это было важно.
Приведенное объяснение сразу делает увлекательным исследование прообразов аэропорта.
Начнем с истории Толмачево. Первый аэропорт был спроектирован Новосибгражданпроектом в 1963 году как протяженное здание-«балка» с квадратным в плане входным объемом зала ожидания, витражом, рамкой-козырьком. Вот здесь можно увидеть и проект, и старые фотографии, а здесь самый информативный вид сверху. К 2015 здание Воловика сменил новый внутренний терминал, затем его соединили со стеклянными призмами соседнего международного, построенного восточнее в 1997 году. Получился очень протяженный и немного «виляющий» фасад, выдержанный в общей, несколько вычурной и не соответствующей качеству материалов, стилистике.
Помимо Пулково архитекторы СПИЧ приводят пример Дома ученых Академгородка (1966). Но формат расстекловки нового терминала можно сравнить и с другим зданием Анатолия Воловика в Новосибирске – научно-технической библиотекой РАН (благодарю Марину Игнатушко за подсказку).
В Толмачево, безусловно, остекление качественнее: структурное, Jumbo, 6 х 3 метра и с тонкими вертикальными ламелями. Но образы вертикальных рам с диагональным чередованием и одновременно – с откосами, очень даже перекликаются. Цитата опознана.
Терминал С аэропорта Толмачево
Фотография © Дмитрий Чебаненко / предоставлена СПИЧ
Еще интереснее получается с основным прообразом – Пулково-1. Ленинградский терминал 1973 года – протяженный параллелепипед со световыми «стаканами», которые поддержаны колоннами.
И вот, на недавнем «Архитектоне» в Петербурге, на выставке, посвященной ленинградскому модернизму, мне бросился в глаза нереализованный вариант проекта, где колонны Пулково-1, сейчас довольно сиротливо уходящими вверх, – были нарисованы грибовидными.
Проект пассажирского вокзала аэропорта «Пулково-Ленинград». Интерьер. Перспектива. Вариант. Архитекторы Вербицкий Ж.Н., Жук А.В., Вланин Г.М. 1967. СССР. Ленинград. ГМИ СПб
Переснято на выставке Архитектон 2023
Но интереснее другое – когда я спросила Сергея Чобана, не этот ли вариант стал источником вдохновения для Толмачево, он мне ответил, что не знал о нем, а картинку впервые увидел в отчетах о выставке. То есть синергия между проектом и его прообразом, на каком-то имманентном уровне – она даже сильнее, может быть, чем знал сам автор? Начали выстраивать переклички – и даже малоизвестные варианты как-то «подтянулись».
Впрочем если посмотреть на череду световых стаканов Пулково-1 и на пространство зала Толмачево в целом, так, прищурив глаз – то тоже получается похоже. «Стаканы», как будто, привели к некоторой ортогональной проекции и слили в одном параллелепипеде, но смысл остался: прозрачные стены, свет, опоры, зонтики.
Аэропорт Пулково-1. Вид на кровле во время строительства
citywalls.ru / загружено ИБН
Речь, конечно, не о повторении и не о цитировании, а о намеренном попадании в определенный контекст.
Грибовидные колонны популярны в архитектуре XX века, причем их использовали даже раньше модернизма: форма восходит к увлечению неоготикой, давшей миру веерный свод, где опоры плавно срастаются с потолком – и в то же время ее развитие опирается на эксперименты с технологией железобетона, начатые сто и больше лет назад. С тех пор грибовидные колонны, которые позволяют освободить пространство и придать потолку эффектную пластику, нет-нет да и встретятся где-нибудь. Чтобы не ходить далеко можно вспомнить другой проект Сергея Чобана – офисное здание EDGE в Берлине, где разноразмерные деревянные «грибы», причем тоже пластинчатые, поддерживают лестницы в пространстве атриума. Там, к слову, тоже играют большую роль одновременно и форма, и обилие дневного света, прямо как в Толмачево. Известны и аэропорты с подобными идеями, к примеру, во 2 терминале аэропорта Чатрапати в Мумбаи, построенном по проекту SOM в 2014 году, используются грибовидные колонны, но гибкие, сетчатые. Тут нет смысла говорить о заимствованиях, скорее мы имеем дело с набором способов организации большого пространства, распространенных и совершенствуемых в XX – XXI веке. СПИЧ в Толмачево предложили свою версию.
Между тем аллюзии не главное, они просто добавляют вкуса, нанизывая здание на ниточки местных и прочих смыслов.
А главное тут, помимо лаконизма – свет.
Искусственный свет колонн, пребывающих в пространстве скорее сродни какому-то явлению атомной физики, чья динамика связана не с движением, доступным глазу, а в внутренним напряжением полей, – не зря же рядом Академгородок.
Терминал С аэропорта Толмачево
Фотография © Дмитрий Чебаненко / предоставлена СПИЧ
И естественный свет. Большой витраж в здании современного терминала скорее норма, но тут он не с одной, а с трех сторон, да еще и колонны визуально «раскрывают» потолок, раздвигают его непрозрачную поверхность, открывая небо в куполах. Зонтики хочется сравнить с пальцами руки – только их много и они тонкие, симметричные.
Кроме того важно, что здание технологично. Поверхности куполов, составленные из треугольников разного формата, и тонкие ванты основных стен-витражей разрабатывала компания «Несущие системы», основанная в Новосибирске и известная тем, что уже в 2011 году она построила в нём первое в РФ здание с нелинейными стеклянными фасадами, – а также тем, что именно она строила «стеклянную кору» зала в Зарядье.
К другим технически пусть не запредельным, но ответственным решениям можно отнести козырек с большим выносом, ферму потолка, распределение нагрузки между основными колоннами-«деревьями» и дополнительными опорами, которые все же понадобились вдоль стеклянных фасадов. Но их не много, они высокие и тонкие, и не очень заметны.
Между тем «рекордов для книги Гиннеса» здесь нет – речь скорее о том, что все выполнено на хорошем уровне современного строительства: растяжки тонкие, швы металлической облицовки порталов и козырька – тоже тонкие, не бросаются в глаза, а сами стальные кассеты покрыты матирующим лаком, чтобы блестели не слишком, а в меру. Некий джентльменский набор качества, может быть, лоска, не сверхъестественного, а, скажем так, «столичного». Так и хочется сказать: как и полагается столице Сибири. Все же после завершения реконструкции Толмачево станет самым большим региональным аэропортом.
Терминал С аэропорта Толмачево
Фотография © Дмитрий Чебаненко / предоставлена СПИЧ
Если во входном зале преобладает белый цвет и свет – то внутри происходит инверсия. Пространство досмотра и получения багажа, как водится, несколько проще и черного в нем либо больше, либо полномочия с белым он делит примерно пополам.
Визуальные «мостики» с главным залом тоже выстроены: круглые тонкие фусты колонн напоминают об опорах по контуру, а «ромашки» из ламп в потолке недвусмысленно выглядят «младшими братьями» грибовидных колонн.
Однако самый интересный и информативный вид – снаружи, с площади. Он определяет место здания в комплексе.
Именно отсюда можно оценить сюжет целиком: светящиеся «деревья», этакие Тельперионы в кожухе из прозрачных и металлических плоскостей. Ретрофутуризм – насыщенный смыслами, но современный, WOW-лаконичный.
Это, на самом деле, вовсе не просто – сделать здание одновременно простым на раз-два, и захватывающе-увлекательным.
Терминал С аэропорта Толмачево
Фотография © Дмитрий Чебаненко / предоставлена СПИЧ
Постойте, но ведь это же портик.
Гигантский светящийся портик, заключенный в чехол. А может быть, стоя, общественная галерея. Он/она выходит вперед, образует репрезентативный фасад аэропорта, заявляет о его амбициях спокойно и уверенно, оформляет вход не без эллинистического пафоса, как будто говоря нам: я тут главный, я тут был, в каком-то смысле, всегда. Как библиотека Цельса – есть там библиотека или нет, а фасад прекрасен.
Так что же? Стремились к простоте модернизма, а пришли к ключевому элементу классической архитектуры?
Так, да не так. Во-первых, функционально входной зал аэропорта – общественное пространство для входящего, уже давно стал по смыслу местом репрезентации, призванным встретить и впечатлить любого, представить аэропорт во всей красе. У портика та же роль, и ряд колонн, в который, по сути дела, превращено здесь входное пространство, заявляет об этом с большим размахом. Мы определенно куда-то входим, готовые перенестись отсюда–туда, и пространство недвусмысленно говорит нам об этом. Пусть не все понимают, неважно; думаю, не все понимали смысл и библиотеки Цельса тоже.
Во-вторых, уже в 1970-е модернизм начал искать точки соприкосновения с историей культуры в самом широком смысле, причем основным условием поиска была неочевидность вероятной цитаты, ее перевод на уровень намека. В Толмачево мы, я думаю, наблюдаем вполне успешную попытку возвращения к тем же поискам – на новом витке технологий.
Что делает проект, действительно, хорошей работой с масштабом и со смыслом: поскольку при близком рассмотрении мы видим и ощущаем одно, выйдя наружу другое, но самое главное высказывание – почти идеальный образ большого аэропорта, «портик-портал» – считывается издали. Только тут и понимаешь, что речь о новом начале.







