Currently, VDNKh is hosting the “Rossiya” exhibition and forum. This exhibition opened in early November, will end in April, and it is just enormous. Several new large pavilions appeared on the territory of VDNKh, some of them being probably temporary; in addition, the exhibition also occupied a few of the existing pavilions, and a grand scale permanent facility, the ATOM pavilion, was built specifically for the purpose. The exhibition demonstrates the achievements of the national economy loudly and brightly, sometimes even in a fair-like fashion – which is very much in the spirit of VDNKh of the past years – but with an emphasis on new technologies and media. Everything is shining, sparkling and shimmering. There are a lot of visitors on the grounds – they come in groups and individually.
And you need to feed them all.
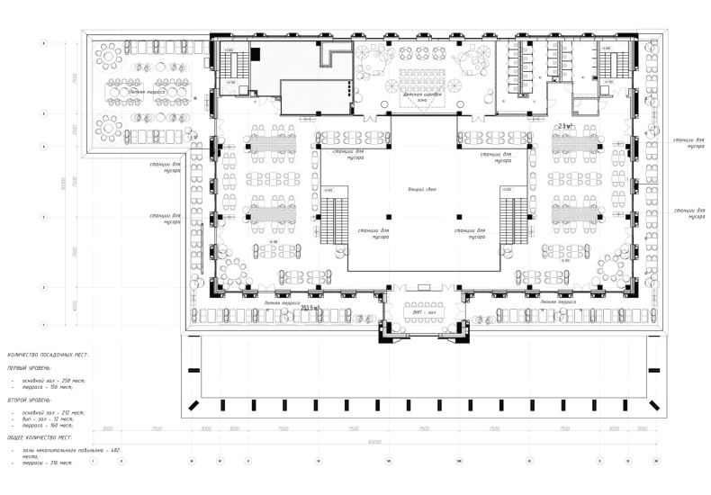
Commissioned by the Moscow government, KROST Group built a pavilion – a food court – for the opening of the exhibition. It is called “House of Russian Cuisine”, is located in the middle of the central avenue, and is designed to serve almost 800 visitors at a time (482 + 316 on the terrace). The pavilion was built and designed in record-breaking time – within 5 months from June to October, with all the stuffing, decor, and occupancy. Well, and one more figure – the authors of the project produced 300 sheets of working documentation within one month.
Perhaps, only KROST Group is capable of such a feat, having previously shown records of high-speed design and construction in Zaryadye Park, and also having realized Sergey Kuznetsov’s pipe house in Nikola-Lenivets with its complicated cantilever – quickly, in full, and meeting all the deadlines.
“Thanks to the development of the industrial and construction complex of Russia, today we have a unique opportunity to continue the traditions of the great architects of the USSR, complementing the architectural ensemble of such iconic places of our country as VDNKh – says Alexey Dobashin, General Director of KROST Group – it is a great professional honor to work on such projects. Our whole big team – builders who worked day and night at the construction site, factory workers who produced industrial products, and, of course, architects and designers – are eternally grateful for the trust placed in us”.
The “House of Russian Cuisine” was in fact designed by two architectural companies: A-Project.K, a subsidiary of KROST, was responsible for the building itself, while the interior was designed by DBA-GROUP architects led by Vladislav Andreev, who are confident professionals in the field of public interiors, including cafes and restaurants. In particular, this company worked for the chain “Chaikhana №1” owned by Vasilchuk Brothers, whose company Restart Vasilchuk Brothers was engaged in functional filling of the new food court on the central avenue.
DBA-GROUP also worked on the interior of the first “restomarket” at VDNKh, in the building designed by Arseniy Leonovich. “House of Russian Cuisine” is the next step on the way to the development of the gastronomic part of the exhibition. It is somewhat larger, two-tiered, and now it purposefully collects local cuisines from different parts of Russia, be it Tatarstan, Yakutia or, let’s say, Tula.
In some ways, it reminds us of the WORLD EXPO exhibitions – on a much smaller scale, of course, but nevertheless, national cuisines are often offered there too. In addition to the collection of local cuisines on the first floor, a stage is set up in the center, where presentations of different cultures and places are going on almost non-stop, usually to the accompaniment of national music, which feels pretty noisy, but at the same time quite interesting and fun.
One would expect that the design of such a gastronomic event, combining a meal with a cultural and educational program, would be like Topuridze/Konstantinovsky’s “Friendship of Peoples” fountain – with symbols of Russian cities or regions. But no – contrary to our expectations, the architects were asked to pay tribute to the modernist side of VDNKh. And the architects set themselves a goal of getting into the historical context of the neighboring buildings, all of which are cultural heritage sites.
We saw our task as twofold: first, we had to create a versatile space that would work regardless of the change of occupancy after the exhibition is over – or simply work as needed. Second, we wanted the interior not to be similar to other food courts, whose imagery and typology is very predictable. We wanted the pavilion to make a different impression, to be different, to feel that it belonged to VDNKh as a unique place in many respects. And finally, we did not want to compete with the masters of the old VDNKh pavilions. We tried to respond, but by no means “outshout” them – first of all, of course, the Uzbekistan pavilion located nearby.
Ultimately, including the results of all the changes that took place in the course of implementation for objective and subjective reasons, the result turned out to be quite interesting. The pavilion responds to the eclecticism of VDNKh as a whole, with ornaments and arches outside, cheerful grapes on the pylons that flank the avenue, and just as cheerful mosaics in the plafonds inside.
However, the deeper we delve into the interior, the more we feel the fulfillment of the very “order for modernism”, the imagery of Soviet cafes of the 1960s – exactly the way we know them from cult Soviet films of that era. One thing is strung on top of another, and they coexist in a friendly way.
Here I would like to start from the farthest corners of the second tier, where round tables for large companies are nestled, each surrounded by a rather impressive “winter garden” of mature tropical plants in tubs.
House of Russian Cuisine: interior the corner part
Copyright: Photograph: provided by A-Project.K
In the same style of the sixties, chairs designed by DBA-GROUP, rectangular columns with stepped and wavy textures (which prevail in the periphery of the space), and especially – the ceiling of the second tier, made of characteristic rectangular “tubs” with lamps in the center – very similar ones can be seen, for example, in the TASS building on Nikitsky Boulevard.
The top level is green and a bit quieter than the bottom level – you can stroll around looking down from the balcony, and the live plants and terrazzos used for the floors, tables and plant tubs somehow make the whole place look very fresh. Add to that the fact that from the second tier you can go out onto the terrace in the summer – it’s definitely nice there. And the effect of stylization of the sixties is quite tangible, as if we were in a feature film of those years – already a color one, but not yet very bright.
The idea is further picked up by another form – a rectangle with rounded corners, a kind of “TV set”, or, rather, a radio receiver: they are here in the form of relief on all the parapets and on the doors of the bathrooms – the latter, as it has been long and firmly accepted in HoReCa interiors, are drawn carefully and implemented quite diligently: white vertical tiles, rows of gray sinks, also reminiscent of terrazzos, and wooden doors with rhythmic rounded openings.
However, the interior designers emphasize that the abstract frieze above the counters on the first floor was conceived as the main unifying form: all of them are designed in the same key, and encircled by a bright ribbon of composition almost cubistic, quite in the spirit of the 1960s and 1970s. The basic form is echoed by the mosaics: the mosaics in the entrance group and on the wall of the second floor, designed in the same spirit; the theme is picked up by the neighboring reliefs and even the interior stained glass windows.
The same group of statements includes exposed two-marched staircases with wooden handrails and rhythmic spots of “space age” round lamps, as if marking the volumes with some kind of code. They work well in this space, balancing between the symmetry of the arrangement and the energy of turning the volumes, folded almost like origami from the frames of white walls.
House of Russian Cuisine: interior / project
Copyright: © DBA-GROUP
The central part is a different matter. It turns out to be suddenly very stylized. The first thing that meets the eye is two lotus-shaped columns – almost like in Luxor – the architects say they “borrowed” them in the interior of some of the Soviet health centers, but made thinner and slimmer, and then in the process of realization the upper bundle came together even tighter at the top.
Thus, the double-height high central part received a “two-column” space that also serves as the auditorium in front of the stage; at first, however, it seems that this space was invented specifically to accommodate the two columns. By the way, if one does not know about Luxor, one can see some giant ears of wheat in the columns – a generalized sign of fertility, reminiscent of the USSR coat of arms, quite in the spirit of this place.
What does it tell us? For one, it tells us that the architecture of Soviet-era health houses, just like the architecture of VDNKh, was quite labile and often deviated from the purity of forms in favor of a certain entertainment element, which is quite appropriate in a health house and restaurant. It also tells us that we are dealing with copying of the second order: the columns are borrowed from an already mastered context, and not directly from Egyptian architecture.
On the other hand, for the authors of the interior design, the main thing here was not the resemblance to Luxor – it seems like they let it pass them by and dismissed it as unimportant – but an attempt to make the columns slender and, as a consequence, consonant with the slender columns of the pergola of the neighboring Uzbekistan pavilion. If we look at the map, we can see that the two columns of the “House of Russian Cuisine” and the front pillars of Uzbekistan are lined up on the same axis. We cannot say that this is obvious when you are inside on the first floor, but being on the second floor, we can see the axis at least looking through the window or down into the atrium from the correct angle.
Pergola of the Uzbekistan pavilion
Copyright: Photograph © Julia Tarabarina, Archi.ru
We admit that this construct of ours is not without speculation. However, there is another thing that is more noticeable: the two “lotus-shaped” columns in the food court pavilion look as unexpectedly surprising as the pergola in front of the Uzbekistan pavilion. However, in both cases these are gestures that are not devoid of theatricality and are quite appropriate for the territory of VDNKh. Come to think of it, VDNKh was conceived as a “wow” place, a place designed to surprise as an intrinsic value; a place meant to mesmerize you. This place implies, and maybe even requires, a certain unmotivated gesture.
As a consequence, once stated, the architectural narratives may develop according to different laws in this place. For example, the plafonds of the central part were originally conceived by the architects to look more like Deineka’s Mayakovskaya metro station, only with scenes from Moscow architecture, but in the end they became academic paintings depicting flowers and birds, very bright and quite in the spirit of VDNKh. The architects themselves are critical of such changes, but I, on the contrary, like it: the elements have fallen into a kind of “sculptural resonance”, the core has become more consistent, and it now more clearly opposes both the “modernist” periphery of the upper floor and the confidently modern contour of the first floor with its bright ribbon. The difference in impressions becomes more tangible – these two spaces are very different and at the same time related.
The exterior of the building, symmetrical with ornaments made of cut metal and golden decoration is in tune with our time and at the same time is in tune with the eclectic character of VDNKh. It turns out that today’s interpretation of the modernist interior is taken in the contour of arched windows and at the same time encircles the two lotus-shaped columns with mosaic plafonds reminiscent of Moscow’s subway. The pavilion seems to have absorbed , like a sponge, not only the fairground character of the exhibition, but also the layered alternation of its history, which in this task and under these circumstances must be recognized as more than appropriate.
