The construction of a branch of the History Museum next to the Novodevichy Monastery is part of celebrating its anniversary, which entails grand-scale work inside the monastery: restoration, research, excavations, and publishing. The museum must become a branch of the State History Museum, dedicated to the history of the Russian Orthodox Church in general and the Novodevichy Monastery in particular; it will host some of the exhibits that were moved out of the Monastery in 2016, a permanent exposition on two floors, classrooms for educational programs, and a 140-seat lecture hall.
Museum of the History of the Novodevichy Convent / Branch of the State History Museum
Copyright: © Reserve Union
All of this is hosted in a small, yet spectacular, building with a bold span of the horizontal of the top floors, a vis-a-vis of the Novodevichy Monastery, right across from the bell tower.
This location is both a plus and a minus. The plus is that the museum is very close, a stone’s throw away, and the panorama of the monastery opens up from it through the square. The minus, or difficulty, is that Novodevichy Monastery is not just a federal monument, it is included in the UNESCO list, so the requirements and restrictions related to the protected area are the strictest you can think of.
The height limitation is 18.7 meters, the building’s blueprint cannot be more than a third of the plot, and it had to step away from the borders by 2 – 11.5 m, so all that was left of the area of 0.7 hectares for the construction was mere 1921 square meters. Meanwhile, the museum required about ten thousand meters of usable area (the total area of the building in the final project is 10,688 m2).
We solved this task by resorting to cantilevered structures: the third and fourth floors were extended around the perimeter by 6-7 meters, resulting in a “mushroom-shaped” outline of the building, which allowed us to accommodate the entire stated program. We also lowered the pavement level around the museum by half a meter: the square in front of the main entrance descends from Luzhnetskaya Street, thus adding a bit more useful space. So the building became a combination of requirements and limitations. However, on the other hand, it is not often that we have the opportunity to work with cantilevers of significant projection, and in this case, they not only became a necessary measure but also yielded an interesting silhouette.
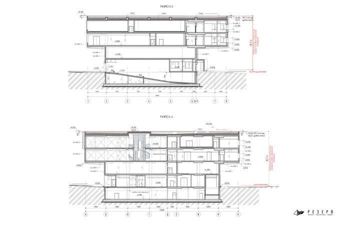
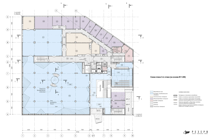
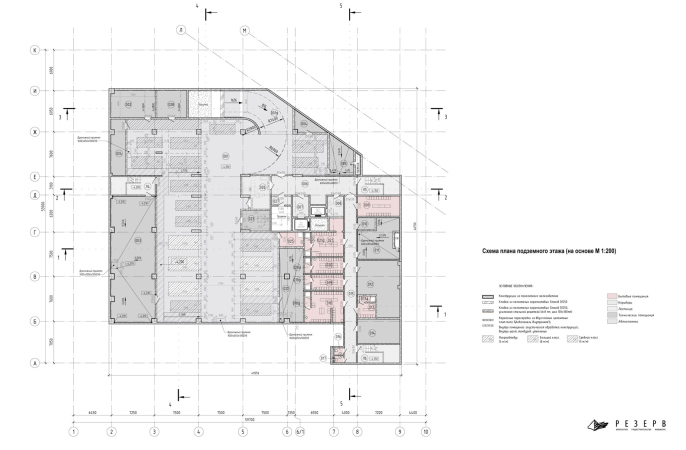
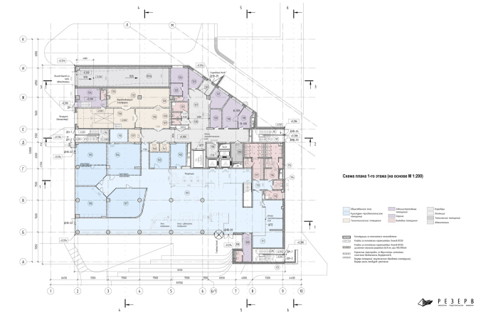
The underground level accommodates a parking lot for 18 cars and technical rooms, the first level contains the museum lobby and classrooms, the second floor is the storage room, the third and fourth floors contain the main exhibition on the left and the auditorium on the right. The spaces for visitors are grouped on the side of Luzhnetsky Passage and the main entrance, while the administration offices and other technical rooms gravitate to the rear of the building.
It should be noted that the museum is being built opposite a first-class 16th-17th century monument, but its immediate surroundings are not historical at all, but rather late-Soviet. At the end of the 1960s, several residential buildings were built along Luzhnetsky Proyezd: the height restrictions were not so strict then, and the buildings are 8-9 stories high, although they are separated from each other by a wide margin. They alternate with extended buildings: on the left is a children’s health center, on the right is an office center built a couple of years ago – the museum is somewhat larger, but it is horizontal and fits into the general system of rhythmic alternation, filling the gap between the two residential towers on the site of the infectious diseases hospital demolished in 2013. Meanwhile, the site has another limitation: its part on the side of the driveway is a protected natural area, so that the building will be obscured by a line of trees.
Museum of the History of the Novodevichy Convent / Branch of the State History Museum
Copyright: © Reserve Union
The development drawing on the Luzhnetsky Passage. Museum of the History of the Novodevichy Convent / Branch of the State History Museum
Copyright: © Reserve Union
Even more important than the limitations is the context. Here, it can be subdivided into several types: the neighborhood of the monastery and the connection with it, the houses of the late sixties and the sprawling greenery in the neighborhood and, if I may say so, the context of the requirements of modern museum construction. The first requires clear and unambiguous references to the monument, while the second requires their abstraction, a statement not alien to allusions, but modern, generalized and at the same time, despite all limitations, noticeable, not merging with the surroundings completely. The project has all of this.
The most literal reflection of the connection with the monument, the “telltale” accent is the counter-relief, a reverse concave relief with the silhouette of the monastery on the white glass and a concrete pylon standing to the left of the entrance to the museum. It establishes a completely direct connection: here is the monastery, and here is its imprint on the wall.
In Vladimir Plotkin’s projects developed for the historic center of various cities, the technique of reflection of a neighboring monument in the stained-glass window of a new building was often used – the most vivid example is the Arbitration Court building on Seleznevskaya Street. Here, since the monastery is obscured by the trees of the public garden and is located at some distance, the method of reflection is no longer relevant, and is replaced by a counter-relief, also a kind of reflection, only more material – and to a greater extent, as an object of monumental art included in the building, which is in keeping up with the tradition of modern museum construction.
Let’s note, however, that the counter-relief is, on the one hand, of course, material, and, on the other hand, it does not violate the wall surface, just because it’s “negative”, very much like a reflection that demonstrates excessive plastique of sculptural relief.
The facades. Museum of the History of the Novodevichy Convent / Branch of the State History Museum
Copyright: © Reserve Union
The same happens to the facade surfaces, which has already been described as “neo-brutalist”. However, the term is not quite accurate.
In addition to the “telltale” relief silhouette, the connection with the ensemble of the monastery is defined in the project through the material: most of the buildings of Novodevichy, forming its well-known image, appeared in the 1680s under Tsarevna Sophia. In them, which is typical for the end of the XVII century, the brick walls are red painted, and the white-stone decor looks like fine lace. The walls of the monastery are not rough or brutal – on the contrary, they are richly decorated, representative and ornamental, the bell tower even more so.
The combination of terracotta and white surfaces becomes a response to the monastic architecture in the design of the museum. But the museum itself is completely different.
The simplest solution would have been to make the walls red-brick, like those of the monastery. Meanwhile, although brick has been extremely popular in Russian architecture over the past 20 years, Vladimir Plotkin is the kind of architect whose works rarely have brick in them.
Here, for a response to the monastic walls of the ensemble monument, special ceramic panels were chosen – dark, quite large, covered with a shiny glaze with metallic inclusions, and with a specially designed pattern developed by the architects: two protruding horizontal stripes on each.
The ceramic panels that will be used on the facades. Museum of the History of the Novodevichy Convent / Branch of the State History Museum
Copyright: © Reserve Union
The relief strips are slightly turned upwards so as to reflect more light – a shiny, slightly variegated surface, evenly ruled by a horizontal pattern. It looks more like a plinth with a hidden row than a seventeenth-century bulky construction, and if it presents us with the image of an “ancient wall”, it is rather something ancient as a whole, some kind of “mother wall”, flattened, generalized through the horizontal shading of the stripes and – because of the glaze and metallic luster – it even looks like some kind of precious stone.
The wall, of course, does not look like the pink brick of the neighboring buildings – this is a new “third” texture, which is nonetheless based on harmonious coexistence with its neighbors and predecessors.
Due to this, the facades, and particularly the main one, do not look at all like they are made of massive brutal blocks – rather, they are woven of flat ribbons, slightly broken at the bends. The impression is further enhanced by the nuances: specifically, the band of the fourth floor stands out above the third before the chamfer that leads to the upper balcony – demonstrating at the same time that the facade’s plastique is composed of wide planes, lightweight and forming folds in the key places.
Museum of the History of the Novodevichy Convent / Branch of the State History Museum
Copyright: © Reserve Union
The chamfer leads to an open balcony, and there are two such balconies here. The one that is on the third floor is situated directly above the entrance; originally, it had a slightly larger offset, like a real “captain’s bridge”; later on, the offset was reduced, which is, of course, a pity because it was precisely this “nose” created a connection to the monastery ensemble – a connection not just historical and symbolic, like the relief below, but real and palpable – it literally pointed in the direction of the bell tower. But then again, even in this reduced state, it continues to function as a sightseeing platform.
Museum of the History of the Novodevichy Convent / Branch of the State History Museum
Copyright: © Reserve Union
The axis of the other “bridge” balcony on the fourth floor is turned more northward – it is pointed towards the Nikolskaya Tower of the Monastery wall, and the John the Baptist church designed by Ilia Utkin. Working in combination with the “break” of the wall, this creates a powerful rotation movement: the balconies literally “sprout” into the space of the square, and not just composition-wise: the visitors to the museum will also be able to walk out on them and get a breath of fresh air. Such balconies are to be seen in many museum buildings, for example, in the Central House of Artists on Krymsky Val, similar balconies were also open to the general public at some point.
Another linking technique is the reflection of the structure of the interior rooms outward: for example, the bevel of the loggia on the west corner is not accidental, but repeats the line of the lecture hall above it, while it forms a dynamic “takeoff” of form in an important perspective from the side of the passage.
Museum of the History of the Novodevichy Convent / Branch of the State History Museum
Copyright: © Reserve Union
The balconies and interfloor connections are accented with white, which, as we remember, serves here as a contrasting pair to terracotta, but is used not only for the relief details. All of the public spaces in the museum lobby and atrium are completely white.
The hall stretches out on the first floor from the entrance to the left, where the classrooms are situated. Here, in a straight line stretching from the main entrance, the space develops “upwards and forwards”: the entering person is welcomed by a 19-meter long four-height atrium under a glass ceiling, completely white. It is from this atrium that the white balconies sprout on the facade.
The atrium. View from the entrance. Museum of the History of the Novodevichy Convent / Branch of the State History Museum
Copyright: © Reserve Union
To the right of the entrance to the white atrium, an open staircase is situated, which serves as the main entrance to the exhibition halls on the third and fourth floors. It is housed in a dark brown sculptural cover with bevels along the string of struts, solid walls-antes on the sides, and a loggia for viewing the lobby in the middle of the atrium’s height.
The atrium. Museum of the History of the Novodevichy Convent / Branch of the State History Museum
Copyright: © Reserve Union
The atrium. View in the direction of the entrance. Museum of the History of the Novodevichy Convent / Branch of the State History Museum
Copyright: © Reserve Union
The color of the stairway matches that of the facade, even though its shade is not so bright. It looks as though we are seeing a matryoshka doll: the dark building of the museum resides in the light space of the city, while the staircase resides in the light space of the atrium; one thing fits into another, and this “reverberation effect” is based upon inner inversion.
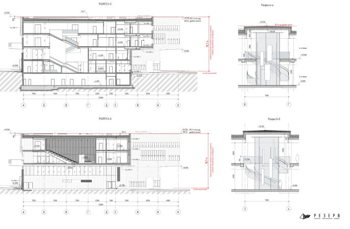
So! Passing the dark facade, the visitor finds themselves in a light interior, and then ascends a dark staircase to get into a dark exposition hall, which, in turn, has a light core – this time it is a spiral staircase that connects two exhibition tiers. Between the floors, there is a large glass cylinder with a diameter of 3.5 meters and a height of about 9 meters. Inside, exhibits are displayed, and the cylinder glows from the inside. There are two parallel staircases ascending around it, only these staircases are not angular, but bend in a spiral: the visitors may switch between the tiers, at the same time examining the big showcase. The other showcases (the exposition itself was designed by MuseuMedia) are designed in accordance with the same principle of backlit glass volume in a dark environment, but this cylinder is meant to become the flashiest exhibition experience.
The exhibition hall. View from the entrance. Museum of the History of the Novodevichy Convent / Branch of the State History Museum
Copyright: © Reserve Union
Cross views of the staircases in the exhibition halls. The atrium. View from the entrance. Museum of the History of the Novodevichy Convent / Branch of the State History Museum
Copyright: © Reserve Union
The exhibition hall. View from the entrance. Museum of the History of the Novodevichy Convent / Branch of the State History Museum
Copyright: © Reserve Union
The cylinder is inserted in a disc-shaped offset on the roof; it’s plain to see in a birds-eye view panorama. I’d like to say that I, as a person who examines the project from the inside, would like to see here a circle of natural light up above or at least a diameter on the edge of the top cylinder – it seems to me that such at “half-open lid” would have been a logical completing accent. But then again, the feeling of a “glowing core” that the spiral staircase creates, is quite palpable even without a skylight.
Thus, the project is interesting not just because it “sprouted” various cantilevered structures as a response to various site restrictions, and not only because of its bold response to the challenge of building a history museum next to an important monument of architecture, but also because its comparatively small volume houses not only the required spaces, but also evokes emotions – both on the inside and on the outside. These emotions are predominantly based on the contrast of high and low, soaring and overhanging, light and dark, which is something that is totally relevant in a museum, particularly in a museum of religious history.
