"Home. Forest. Park" housing complex
Copyright: Photograph © Partner holding / provided by Aukett Swanke
"Home. Forest. Park" housing complex
Copyright: Photograph © Partner holding / provided by Aukett Swanke
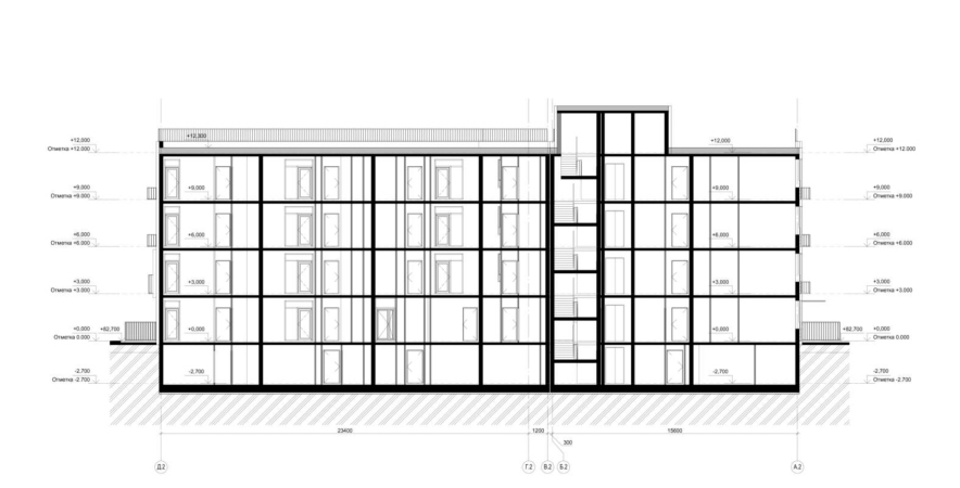
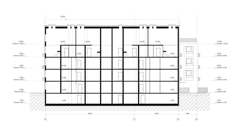
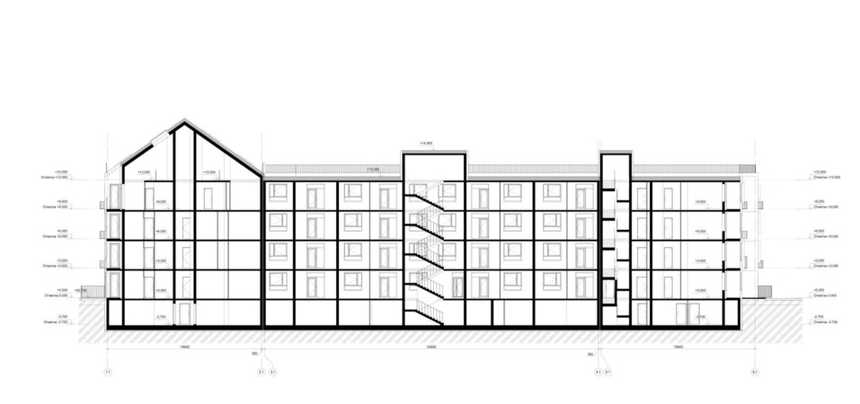
“Home. Forest. Park” is built at the very edge of the city – right across the road, the forest and dacha settlements start. On the adjacent plots, there is a complex of townhouses “Biography” and colorful high-rise panel buildings of Novo-Patrushevo district. “Home. Forest. Park” is thus an intermediate typology of mid-rise development: the accent houses have five floors, the main volume of the development has four.
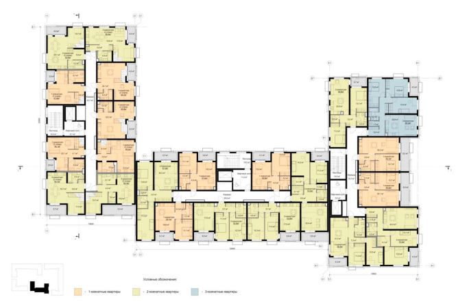
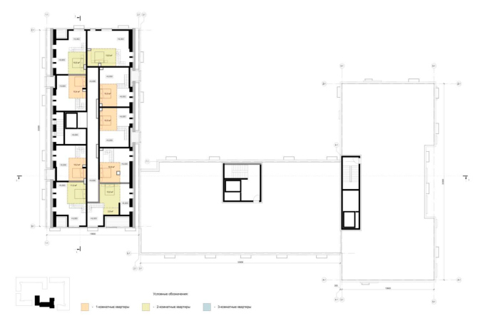
Four multi-sectional houses are grouped around the perimeter of the rectangular plot, forming a spacious courtyard with playgrounds and sports facilities, an urban vegetable garden and geoplastics. Within walking distance, there is the new Tree of Life Park. The name of the complex, accordingly, reflects the main advantages of the location.
"Home. Forest. Park" housing complex
Copyright: Photograph © Partner holding / provided by Aukett Swanke
"Home. Forest. Park" housing complex
Copyright: Photograph © Partner holding / provided by Aukett Swanke
The architects seem to use the techniques that are much talked and written about, but in reality are hard to find within the scope of one project. Each of the sections has its own facade variant, which, in combination with pitched roofs and medium scale, makes the complex look cozy and “human-friendly”. The surface of the wall is made more sophisticated by various details: niches of mini-terraces on the upper floors, lattices of the French balconies and casings of air conditioning units, canary-yellow “frames” on the dark wall, and a combination of large and small windows.
On the inside, you find a lot of seemingly insignificant details that are capable of improving your quality of life: storage compartments for seasonal vegetables, stroller parking areas, barrier-free driving entrances, and navigation. On the first floors, there are apartments with front gardens, part of which is paved with paving stones, and part of which is left for planting plants. Apartments on the upper floors with ceilings under five meters have a mezzanine level. The courtyard is free of cars: they can be left on the outer perimeter of the complex or in an open-air two-level parking lot.
"Home. Forest. Park" housing complex
Copyright: Photograph © Partner holding / provided by Aukett Swanke
