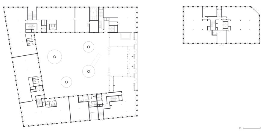
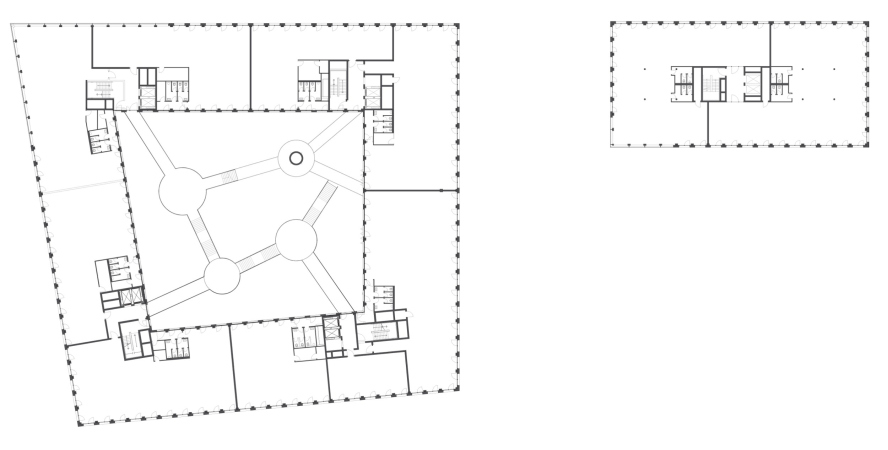
EDGE Suedkreuz Berlin consists of two seven-floor buildings separated by a new city plaza – its public space also serves as a pedestrian path to the station. The smaller building, named Solitaire, is essentially a single-cut parallelepiped. The larger four-section building is constructed around a spacious light atrium in a slightly asymmetric triangle with a contour that follows the shape of the site. It also received a “telltale” name of Carré.
Location plan. The EDGE HQ for the energy company Vattenfall
Copyright: © TCHOBAN VOSS Architekten
The facades of both buildings are formed by a regular grid of panels made of fiberglass concrete with a common rhythm: everywhere, the horizontals received a light-sand hue, while the verticals are different from building to building: in Solitaire, they are dark-gray, in Carré crimson terra cotta. Sometimes, the grid is livened up with large stained glass rectangles, recessed balconies and terraces – but on the whole the buildings look very reserved and austere, very much in the spirit of Berlin’s modern office architecture.
What really makes EDGE unique is the combination of construction scale and construction method. By the moment of writing this article, Carré is the largest wood hybrid (i.e. combining a wooden framework with other materials) building in Germany and one of the largest in Europe. Its area is about 20,000 sqm (the entire area of the complex is 32,000 sqm).
The client of the project is Vattefall energy company. In 2019, 35% of the company’s total capacity was accounted for by renewable energy sources: solar, wind and water. In the future, this indicator is expected to increase significantly.
EDGE became for Vattenfall not just a new HQ in Europe but also a “trademark” tower: it is largely built using sustainable, climate- and resource-saving technologies of modular construction and, most importantly, it is built of wood – here it is about 60% of the total volume of materials, and it is used everywhere: in load-bearing structures, ceilings and interior decoration. The construction took about 1,300 firs grown in Slovakia. They were used to manufacture 1190 hybrid wooden ceiling elements resting on 1280 glued facade supports and 445 wall sections with a total area of 16,000 square meters.
Meanwhile, wood was used in the construction of this building for a reason:
Sergey Tchoban, TCHOBAN VOSS Architekten
Building a wooden house” has now become one of the popular dreams of a modern architect. But in this case, in addition to working with wood as a renewable resource and generally a very pleasant material, we set ourselves other tasks – specifically, to make the building easier, its construction more accurate, and the construction process faster. To lighten the total mass of materials, to reduce structures in the cross–section, and, as a result, to reduce energy costs both for construction and for subsequent operation and maintenance of the building. This is exactly the kind of almost scientific task that was set for us, including by climate experts.
Both buildings of EDGE Suedkreuz Berlin are constructed in accordance with the technology of modular construction. The wall and the ceiling wooden modules, just as the ceiling modules of fiberglass concrete, were prefabricated and then assembled on the construction site – this ensured an exact schedule and a faster, i.e. more efficient, construction process. Due to the fact that the weight of a wood hybrid building is about a third of a conventional concrete structure of a similar size, the architects were able to make the foundation plate 30% thinner than is usually done for such a volume. The small weight is an advantage – and, at the same time, a weakness – of a wooden framework. Being lightweight, it requires reducing the weight of all the other construction elements as well: first of all, a wooden framework cannot support a stone or a brick facade. And in this case the fiberglass concrete turned out to be a game changer: glass fiber reinforcement makes the plates strong and light, their weight is about 30 kg/m2; in addition, their outer surface is able to absorb CO2 from the atmosphere.
The company often describes the project as “smart”. It is the “smart” ratio of wooden and concrete structures that allowed the architects to save up to 80% of carbon emissions per square meter of the area. Reinforced concrete is only used for the foundation plate, fireproof partitions and stiffness ribs. Metal is only used for columns, staircases, and the roof construction. According to Tchoban Voss Architekten, the carbon emissions constituted just 0.15 ton instead of 0.75 ton, which would have corresponded to a building of similar size constructed in a traditional way. Wood turned out to be unparalleled by this and many other parameters: it is lighter in transportation than mineral building materials, and it has a high heat capacity, which means it cools down more slowly, retains heat better, and requires less heating.
And, finally, timber, unlike other materials, is capable, thanks to sheer exposed beams alone, save office spaces from feeling “sterile”. And, while on the outside the EDGE facades display very little noticeable wood, the imagery and emotional coloring of the interiors is defined by wood and wood alone. It sets their character, adding life and clarity, and being omnipresent: from beams and supports to windows and doors and staircase railings.
The EDGE HQ for the energy company Vattenfall
Copyright: Photograph © Ilia Ivanov / TCHOBAN VOSS Architekten
In this sense, both buildings turn out to be a “box with a secret” of sorts because all the exclusive things in terms of not just construction technology and space but also means of artistic expression are hidden inside.
Particularly interesting in this sense is the Carré building. Its conceptual and compositional center is a square atrium with ribbed tree-like columns that look like giant mushrooms due to their plated structure, which is also conditioned by the use of wood.
The EDGE HQ for the energy company Vattenfall
Copyright: Photograph © Ilia Ivanov / TCHOBAN VOSS Architekten
The EDGE HQ for the energy company Vattenfall / a sketch by Sergey Tchoban
Copyright: © Sergey Tchoban
On the inside, the columns are made of metal, just as the staircases and bridges – according to Sergey Tchoban, their shapes and constructions grew from the architects’ desire to create an interesting volume and at the same time make the most of the materials used. The columns have two main functions: they support hovering staircases and overpasses, and they serve as places for rest; it is planned that tubs with trees will be installed on them. The staircases rise from the floor up to the top tiers – accordingly, the columns, which support the node platforms of this path, grow gradually, again, like mushrooms: the initial column barely rises with its umbrella head above the floor (height 4.28 m, diameter 7.2 m), while the fourth, final, stretches to its full height (height 14.87 m, diameter 6.2 m).
The EDGE HQ for the energy company Vattenfall
Copyright: Photograph © Ilia Ivanov / TCHOBAN VOSS Architekten
The EDGE HQ for the energy company Vattenfall
Copyright: Photograph © Ilia Ivanov / TCHOBAN VOSS Architekten
The EDGE HQ for the energy company Vattenfall
Copyright: Photograph © Ilia Ivanov / TCHOBAN VOSS Architekten
The atrium is filled with natural light that streams from a height of 26 meters through a transparent roof of three-ply EFTE film, as well as from the windows – in all of the offices, they run from floor to ceiling on both sides – and a panoramic window in the hall. Currently, while tenants have not yet moved in, the offices look particularly transparent.
The EDGE HQ for the energy company Vattenfall
Copyright: Photograph © Ilia Ivanov / TCHOBAN VOSS Architekten
The construction of the atrium coverage, to a large extent due to the small weight of the EFTE film, is light and transparent: two levels of elegant-looking wooden beams are supported by a network of seemingly even more fragile metallic structures of white color – for them, for the sake of better precision and strength, special nodes were developed. The top beams are arched, which gives the coverage a sail-like look; we will emphasize that the film is laid not in rhombuses but in bands running from one wall to the other. Its layers are capable of coming together and going apart under the pressure of the air, thus regulating the tension of the roof that is designed to withstand very significant wind loads.
The EDGE HQ for the energy company Vattenfall
Copyright: Photograph © Ilia Ivanov / TCHOBAN VOSS Architekten
Meanwhile, the film was chosen to make the translucent coverage not just for its lightness and transparency: it also provides protection from the sunlight and absorbs sounds – there is virtually no echo in the atrium. In the event of a fire, the film simply melts down, and it is not as dangerous as glass. By the way, there are no sprinklers in the building at all – they were made redundant due to the fact that the modern wooden structures were specially treated to become totally fireproof.
The EDGE HQ for the energy company Vattenfall
Copyright: Photograph © Ilia Ivanov / TCHOBAN VOSS Architekten
The “cobweb” of pedestrian connections – the authors call it “architectural network of communications” – hovering in the wide space of the atrium, is connected by bridges to each of its four walls, forming alternative and free ways of getting to various floors of the building, from second to sixth, where a sky lounge commanding the view of north Berlin is situated – Alexanderplatz, the TV tower, and the cathedral. This end-to-end recessed balcony, organized in the two upper floors of the entrance volume, is very interesting composition-wise. Its integral see-through space unites the two top floors just as the two bottom floors are united by the bottom lobby; between them, the three “office” tiers are hovering.
The EDGE HQ for the energy company Vattenfall
Copyright: Photograph © Ilia Ivanov / TCHOBAN VOSS Architekten
The stained glass window of the warm contour divides the upper recessed balcony into two spacious terraces: one of them is open to the city, its walls painted white (and this is the only place from the city sides where the wooden beams are exposed), and the other one, which is deeper, overlooks the atrium, its walls painted light-gray, like everything else inside.
***
Sergey Tchoban speaks about EDGE Seudkreuz Berlin as a “pioneer” project that develops the progressive European trends of energy-effective modular smart construction, and is essentially “the next big thing”. Meanwhile, on the other hand, the project is an experimental one: we cannot tell for sure how these wooden buildings will “behave” in a few decades’ time – the architect stresses. But then again, misgivings are an inevitable companion of any innovation. The number of buildings like this will probably grow in proportion to the use of renewable energy – and the technique that has been fully tested here has every chance of becoming a given for many other projects. In any case, for Sergey Tchoban, the work on the complex marked a certain turn in his professional thinking.
Sergey Tchoban, TCHOBAN VOSS Architekten
Personally for me, this is a whole new story. Until recently, I supported and defended the fundamental values of architecture, such as materiality, tectonic nature of the building, and the depth of detailing. But any massive elements are by definition very resource-consuming. And the current prices for construction and energy, as well as the general state of the climate, do not fall in with this trend. Therefore, it makes perfect sense that architects, although they remain the organizers and catalysts of project activities, are increasingly working with specialists whose efforts are not aimed at making the building more complex and sculptural. Rather, on the contrary, buildings designed for fast and efficient construction, convenient maintenance and even, if necessary, for dismantling and recycling with minimal energy consumption are becoming more and more relevant today.
EDGE is Germany’s first project to be awarded the golden WELL Core & Shell certificate. This certificate is awarded by the International construction institute WELL (IWBI), the world leader in the field of evaluating the influence of architecture on people’s health and well-being. The building was also awarded the golden certificate of DGNB (Deutsche Gesellschaft für Nachhaltiges Bauen, the German Council for Sustainable Development), a voluntary certification system designed to support green construction, and assessment of environmentally friendly, economically and energy efficient buildings. Now EDGE Suedkreuz Berlin has been shortlisted for the WAF 2022 award.
