The Steamer house
Copyright: © Mezonproekt
The surrounding context is of the “micro-district” kind: housing projects, two schools, and a kindergarten – all enshrouded in an abundance of deciduous trees. It is expected that all the construction will be done on the other side of the Dosflot Drive. The new house, however, will be least connected to it; what it will interact with is the Moscow Canal and opposite bank, upon which one can see the dominant-looking spire of the recently-renovated North River Port. From May to October, tens of cruise ships sail away from it – a mesmerizing sight. Probably, this what became the primary source of inspiration for the new project – a “ship” house.
The Steamer house. The simplified location plan
Copyright: © Mezonproekt
The project was developed by Mezonproekt at the commission of Capital Invest in 2017. One of the tasks that the architects set for themselves was to preserve the existing trees, tightly surrounding the site from all sides, but at the same time to maximize the view of the water and the opposite bank of the canal. Hence the clear and crisp composition that follows the outline of the land site and the house that stood here before. A small indent from the borders was made only from the side of the courtyard in order to organize a landscaped area in front of the entrance to the hotel lobby.
The Steamer house. Planning organization of the land plot
Copyright: © Mezonproekt
The complex consists of two individual buildings that stand perpendicular to one another and are connected by a single podium on the level of the first floor. As the leader of the company, Ilia Mashkov, shares, originally the architects considered the option that included a single building that traced the shape of the land site, but later on an idea appeared to divide the single whole into two independent sections in order to lighten up the visual perception. One building, elongated and five stories high, marks the boundary from the side of the Dosflot Drive, yet it overlooks the water area. It also creates the artistic and the conceptual image of the entire complex.
The Steamer house
Copyright: © Mezonproekt
The outline of the complex – if we are to look at it en face – is rather simple, without a noticeable height difference, with a broad clearance between the two buildings. However, if we look at it at an angle, we will at once see a chamfers in the silhouette – the “decks” of the terraces, the masts, and the chimneys, the “ladders” of the staircases, which look as if sailors are about to climb them. The chimneys, large and tall, like on the very first steamers, are in fact the ventilation shafts; while commonly hidden in most projects, here they are accentuated as if ready to sport a “Jolly Roger”. The terraces, provided on every floor, are also quite functional – from them the guests of the hotel will be able to admire the sweeping views of the Khimki Lake.
Moreover, this is not quite a “ship” house in the sense of the modernist cliché – even though the chimneys of the ventilation system proceed from that idea – but in the sense that here the “ship” has been subjected to deconstruction: it can be a ship or it can be a pier. In any case, we do not see here any hint at an aerodynamic shape, stern and bow, or a feeling that the ship is about to sail: rather, the architects show us a set of elements of a steamboat, offering us to appreciate the somewhat brutal plastique of the deck terraces that look like shoreline sprouts of some wandering Titanic. But only in a fragment or a decoration, a claim for a discourse, and not direct likeness.
“The idea of a “steamer” house came about after we drew the terraces and the chimneys.
After that, we decided to enhance the emerging image, adding some recognizable element, and tried to make the pipes sculptural, making the terraces look like the decks of a sea vessel.”
After that, we decided to enhance the emerging image, adding some recognizable element, and tried to make the pipes sculptural, making the terraces look like the decks of a sea vessel.”
Such a solution with broad stairs of the terraces ascending from the water to the shore is more characteristic of the southern resort architecture. However, even here, in the northwest of Moscow, due to the proximity of water and the picturesque surroundings it looks appropriate. One must say that the association with a seaside resort is fleeting, and is gone completely once you examine the facades in detail. The choice of materials, the proportions of the windows, and the height of the floors – everything refers to industrial architecture. Even the chimneys, which originally reminded us about the steamer, easily become part of the narrative about a factory of the early XX century.
The Steamer house
Copyright: © Mezonproekt
Connecting the two seemingly totally different narratives – the steamer and the factory – was something that the architects decided to do in order to “calm down” the facades and make them look more austere and reserved. “The first versions were more “ship-like” – Ilia Mashkov shares – with white buildings and colorful chimneys. Then we decided to depart from such direct interpretation towards the image of a factory. This is how the red brick, tall windows, and metallic decoration elements came about”.
The Steamer house
Copyright: © Mezonproekt
As for the main coating material, the architects chose ceramic tiles with a red-brick texture. Brick surfaces are combined with metallic ones. Metal was also used to make the grates of the air conditioning units, decorative panels near the windows, railings of the French balconies, the coating of the ventilation chimneys, as well as the emergency staircases, painted black and running on the facade. The latter technique makes you remember not just the Russian factories of the early XX century but also the residential blocks of New York, for which the steel fire escape stairs became one of the main characteristic features. Oh, and by the way, the brownstone walls and the large windows coupled with openwork stair spans are also the classic of New York architecture.
The Steamer house
Copyright: © Mezonproekt
While turning to recognizable and traditional images of the past, the house remembers to pay tribute to modern stylistic devices: hence the syncopated rhythm of the facade grid, which is created by the differently sized windows, and colored inserts from a profiled sheet. As for the latter, the authors form real artistic panels with it, boasting a rainbow of colors, from dark earthy to lavender. All this is spiced with plastique – volumetric and concave vertical panels give rise to an additional play of light and shadows. It looks as though this way the house responds to the sunset colors of the Khimki Lake, because only the facades overlooking the water have these inclusions.
The Steamer house
Copyright: © Mezonproekt
The Dosflot Drive is a quiet and green place; it follows the trajectory of the canal bend, and could easily pass for a path in the wilderness, if it weren’t for the asphalt pavement. The facade of the complex, calm and reserved plastique-wise, also overlooks this place. It maintains the character of the surroundings and matches the context in terms of its gradually lowering towards the water. The biggest highlight of the complex, when viewed from this angle, is the decorative metallic pergola on the roof, painted in the tone of the facade tiles. It is expected that in this part the roof will be an operated one. This landscaped zone with an awning will become yet another recreational place for the residents, which is relevant, considering the lack of yard space.
The pergola top of the building is echoed by the stylobate part, designed in the same “lattice” style. The bottom floors will host a large lobby for the residents, offices, and cafes. The cafes will overlook the street with large stained glass windows, inviting the residents of the neighboring blocks to look in. There will be a green alley stretching along the entire street facade.
The Steamer house
Copyright: © Mezonproekt
On the level of the yard and the river, on the first floor, there are apartments with glazed terraces framed light-colored slender frames.
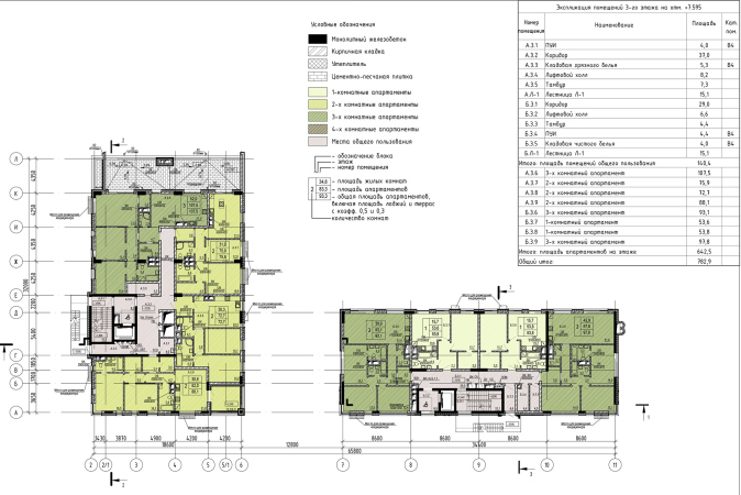
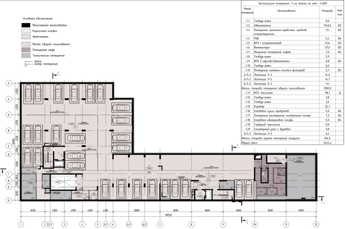
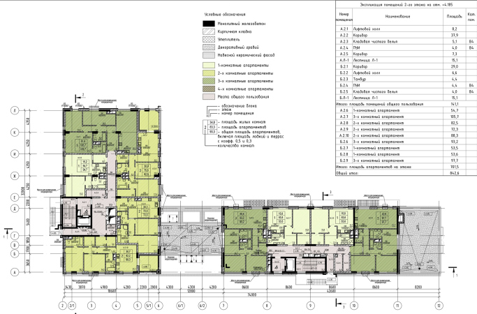
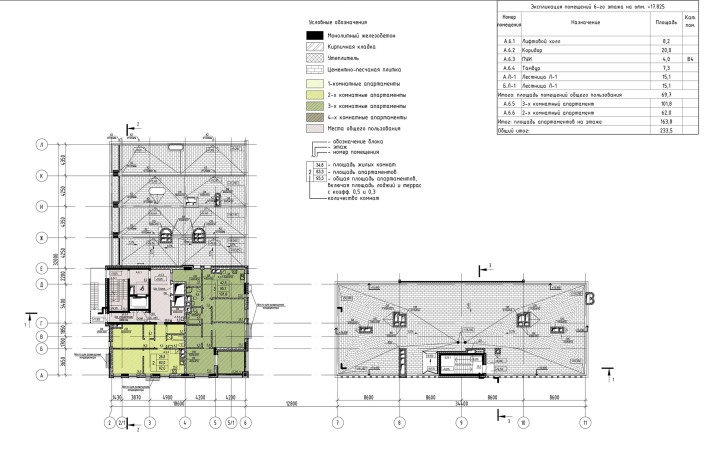
The building, with an overall area of about 6,000 square meters will offer apartments of various configurations and sizes – from single-room to four-room apartments. Each of the apartments will have a fully-fledged kitchen. The underground floor will be occupied by a 27-place parking garage.
In 2020, the apartment hotel project made the shortlist of the Moscow prize in the field of architecture and urban planning. Previously, it received the approval of the state examination and is now waiting to be implemented.
