The building of the Alcon II business center, the construction of which was completed this fall by the Alcon Group, is stretched along Leningrad Avenue, a hundred meters from the Sokol metro station. If you drive from the center and out of the city, its façade will be on the right, shortly before the fork between Leningrad Avenue and Volokolamsk Highway: it is stretched lengthwise, and its façade consists of three large volumetric waves of a terra cotta hue.
Alcon II is inscribed in the front of the red line of Leningrad Avenue, and thus represents the entire business center to the rest of the city. The other part of the business center, built earlier – Alcon I – is situated behind the new building in the depth of the land site and consists of four buildings of a square plan; the final stage of the project was also done by ADM architects. This is why, when the Alcon II was considered in 2013 at one of the first architectural councils, presided by Sergey Kuznetsov, Hans Stimmann, former chief architect of Berlin, who then was a member of the council, shared that he personally visited the already-completed Alcon I in order to study the situation, and that the resulting city space, designed by ADM, including the facades and the landscape park, was quite to his liking.
The location plan. Alcon II business center on leningrad Avenue
Copyright: © ADM
It must be noted that ADM architects started working on Alcon II even earlier than on Alcon I, specifically, in 2007 – back then the client, Alcon Group, invited the architects to think about the fate of the building that existed on the site, which was a rather heavy eight-story “beam” building of the late Soviet era. In 2007-2008, the architects proposed a few options (see one of them here) but the work did not advance any further. The architects were only able to get back to Alcon II in 2012. In 2013, the project successfully passed the architectural council, and by 2014 was finally developed. The construction work resumed in 2018, and has been completed now, in 2020.
The project was implemented exactly the way it was conceived and exactly the way it was approved by the Architectural Council in 2013. Me and my coauthor, Ekaterina Kuznetsova, we believe that the building made a very good match for the architectural context of Leningrad Avenue.
I have information that the demand for the premises in Alcon II is really high; one large company is moving its offices from older buildings of the business center to this new building.
I have information that the demand for the premises in Alcon II is really high; one large company is moving its offices from older buildings of the business center to this new building.
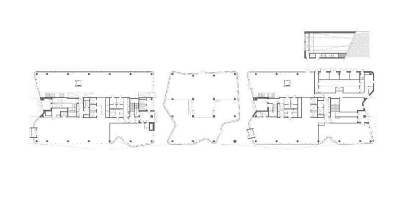
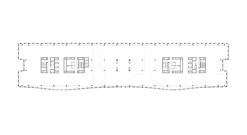
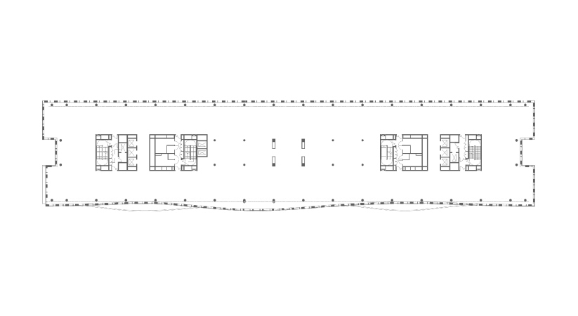
The new office center stretches along the avenue, occupying the spot of the former Soviet building and now hiding the stepped silhouettes of Alcon I buildings from the side of the avenue. Under the new building, there are 3 underground parking floors for 374 cars, and its first floor combines areas for cafes and shops with a lobby catering for two office blocks. The planning is flexible; the communication cores, just the way it should be in an imposing office building, are situated in the center of each of the blocks. The owner is planning to rent the premises out both by the floor, and in small lots. The architects proposed an unconventional solution for the central air conditioning system: the ventilation outlets face the rear façade and are concealed by glass; only dry cooling towers are installed on the roof (a similar solution was used in Alcon I).
The top floor is fully made of glass with a very thin and sparse glazing pattern and a large margin from the edge. This margin makes spacious terraces – one can step out from the office for a breath of fresh air (the top floors of Alcon I also feature terraces because the client, Alcon Group, believes that terraces on the upper floors are one of important advantages for modern office buildings). The top floor, as Andrey Romanov aptly put it, is the “office penthouse”; the “clear” height from floor to ceiling here is 5m. But then again, the height of the other six floors is also large enough – 4.5m – which in combination with the windows reaching to the floor will let in a lot of natural light.
Alcon II business center on leningrad Avenue / ADM architects
Copyright: Photograph © Yaroslav Lukyanchenko / provided by ADM architects
The height of the first floor is even greater – 7m. This is more than the average height in Moscow residential buildings being designed now (where the norm for the height of the first public floor is 5-6 m).
Alcon II business center on leningrad Avenue / ADM architects
Copyright: Photograph © Yaroslav Lukyanchenko / provided by ADM architects
The tier of the public space – the lobby and the space of rentable infrastructure – is something that the architects designed in a particularly dramatic way. What rises above the sidewalk is just a small “straightening” band of the basement floor, no more than 10cm high, but further up, the whole 7 meters from floor to ceiling, there is tinted glass with an occasional barely visible seam. The volume of the building visually “hovers” above the ground, while the curves of the glass produce a “glamorous” high-gloss impression.
Volume-wise, the first tier of the building is divided not into two, but into three parts, which yields two passageways to the yard of Alcon I. In addition to commercial premises, the side blocks also feature lobbies, while the central block is slightly smaller in size – its contours are smooth and flowing, the space inside is free and transparent, and it only has the supports of the main framework. The pitch of the supports, white and with a round section, is 8 meters, usual for office buildings. In the first floor, these white columns are visible through the glass, further working towards creating the image of a “house on legs”, but at some places the architects are leaving the column exposed, like in the western arch of the passage, again emphasizing the ethereal character of the glass boundary.
The side blocks echo the central one in terms of being just as flexible and streamlined, but in some places, for example, in the entrances to the building and in the arches, the glass is replaced by punctured metal with tree shadow patterns.
The first floor with its “boutique” façade, looking like a collection of precious stones, forms the first bright impression that the building, or the whole complex for that matter, produces on the pedestrian. This space is pretty, domesticated, and bright. As the owners of the complex report, a total of 80% of the premises have already been booked up.
Alcon II business center on leningrad Avenue / ADM architects
Copyright: Photograph © Yaroslav Lukyanchenko / provided by ADM architects
However, the architects paid most attention to the plastique of the main six floors, the most noticeable from the point of view of the city on the whole, and the most visible to the motorists driving down Leningrad Avenue. The ledges at the side ends make the silhouette look more slender. And the main façade overlooking the avenue is gathered into three bands each two stories high. The bands of the front third of the volume undulate in large smooth waves, creating a sculptural effect. In this form, one can see the techniques of the Late Renaissance, not to say Baroque: a façade being a volumetric entity that has “thickness”, which can be “bent”. The very new building itself becomes such a “baroque façade” – a sculptural signature statement, a continuation, completion, and the representative of the business center situated behind it.
Alcon II business center on leningrad Avenue / ADM architects
Copyright: Photograph © Yaroslav Lukyanchenko / provided by ADM architects
“Our idea was to make the building reflect the dynamics of moving along the avenue – Aleksey Romanov says – there are cars speeding by, they raise currents of air, and our façade helps you to feel this “aerodynamics” through the architecture of the building”.
The architect also explains that realizing the intersecting bands was quite a difficult task. The thing is that the cantilevered ledges of the bands had to be heat-insulated at top and bottom, at the same time maintaining the integrity of the horizontal lines – that is, not turning the bands into a kind of “pleated pattern”, but keeping up the feel of matter, slit horizontally and undulating in the currents of air. The architects solved the problem by insulating the top and bottom from the inside, drawing diagonal chamfers of insulation. The unit turned out to be quite sophisticated.
Just like in the preceding buildings of Alcon I, the ventilation facades of the new building are coated with ceramic tiles of rich terra cotta color, which ensures the integrity of the complex, and is to some extent resonant with the colors of the Leningrad Avenue, yet even more resonant with the colors of the towers, built nearby in the early 2000’s by Ostozhenka. One way or another, terra cotta is the trademark color of Alcon. However, in this new building, the proportions are initially more slender, and, in addition, they are accentuated by the dual vertical rhythm of the piers. The verticals alternate with thin stripes and smoothly change their width on the bands’ ledges, accentuating the form – as if the matter stretches, thinning out and becoming “more glass” on the ledges.
Besides, the relief of the terra cotta façade panels is different from Alcon I – it is slightly wavy and looks like some variation of the classical Dorian and Ionian architectural orders, “multiplied” in height. Yet, at the same time, the relief of the panels echoes the “wave idea” on the façade, and with the “agility” of the building’s plastique on the whole.
Thus, Alcon II business center turned out to be quite noticeable both from the architectural and town planning standpoint. One must admit that it is a great, highly contemporary, or even, as Andrey Romanov aptly put it, futuristic replacement of the old Soviet building, which did not belong on one of the main thoroughfares of the nation’s capital. Moreover, one must recognize in this day and age, when Moscow’s architectural design market is dominated by high-rise housing projects, a new office building in a high-profile location, low-rise in the overall context of the avenue, yet at the same time different in its plastique and eye-catching architecture, is definitely a phenomenon, which livens up the city, and which is worthy of attention.
