The school in Garden Quarters
Copyright: © UNK project
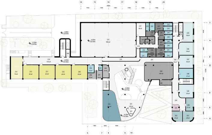
Making a full-fledged community center inside the cantilever was necessary, among other things, because of the sheer absence of a school yard – there is no room for it on the plot. To some extent, the role of the schoolyard is played by the green hill between the two buildings, descending into the slope of the pond. Essentially, this is the same staircase, upon which young people love to hang out, and which inevitably turns into a popular place of informal communication, be that the Strelka amphitheater, the Khokhlovskaya city square or any school campus.
The school in Garden Quarters
Copyright: © UNK project
The green staircase became an important element of the school’s eco system – the project was supposed to be not just agile and flexible education-wise, but also to foster the students’ interest in nature, at the same time adding to the nation’s capital green area. For example, the school provides a possibility of growing plants on the roof, whilst the “drapery” of some of the facades on the south side with tubs with flowers lifts off the insolation load. Due to the greenery, included in the project, the school could add as much as 1,000 extra square meters to the vegetation of Garden Quarters.
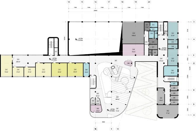
Architecture- and composition-wise, the school building designed by UNK Project follows the principles of the design code written by Sergey Skuratov. Its main ideas, such as transparency as the main distinctive feature of the new school building, the sharpness of contrast, highlighting the central role of the project in the town-planning ensemble, and the cantilevered structure, showing the closeness to the imagery language of Garden Quarters, are all easily read.
As for the facade decoration, just the way it should be with the “gem” of the city block, the school could not be made of the same materials as the “frame”. Therefore, surrounded by “heavy” textures of natural stone and patinated copper, the school presents a totally lightweight volume, essentially consisting of glass in the frame of dynamic horizontals. The filling of the cantilevers and the spans also uses glazed ceramics with a mirror effect. The “hi-tech” hub is somewhat softened by landscape design that grows into the surrounding landscape.
Julius Borisov, the leader of UNK Project, about the competition:
Why did you decide to take part in this competition, and are you happy with how it all went down?
We do not take part in royalty-free competitions on general principle but in this particular case we made an exception for a number of reasons. First, UNK Project has rather serious expertise in the area of designing educational facilities – we have designed and built quite a few. The second reason has to do with the fact that I live next to Garden Quarters, and I seriously believe that this is one of the best integrated solutions in the Russian architecture, and it is a great honor for me to be on this unique case. Third is my personal motivation because I am a parent, and I am not satisfied with the schools that are there in our neighborhood – these are not the ones that my children go to.
We love competitions, and we think that this is a beautiful concept. Granted, it’s not perfect but we seriously made the most of it. And it doesn’t matter that we didn’t win – I really dug the process.
What can you say about the winning project?
I can say that I am not in the least impressed by it, and I don’t think it is appropriate in this place. By all laws of design, the outer shell of the building must reflect its essence, and, if this is a new school focused on the future, it must show through it its appearance, which it doesn’t. That is not to say, though, that this is necessarily going to be a “bad” school. I saw great schools in Russia that were hosted in simple village cottages. And they have great educational technologies there, and their graduates enter the best international universities. That is, high-class expensive architecture is not a must-have for the quality of education. Furthermore, I believe that architecture should not dominate its users by setting any constraints – quite the opposite, it must help.
I know that the results of the competition are widely discussed but what I don’t like about this whole thing is that people seem to be evaluating the project based solely on the outward picture. And if there are budget constraints in place – and they definitely are, because it’s not like when Garden Quarters were built and funds were in abundance – the architect must be able to juggle with the building’s functions and with his labor resources. And you cannot see these aspects from a picture. Me, for example, I can only evaluate the solution after I have really delved deep into it.

Mark Sartan, “Umnaya Shkola” – about the philosophy of the project:
What was the role of your company in this consortium?
In the consortium, we played the role of the functional client. We proposed educational scenarios and tested them against the architectural and spatial solutions.
How did you understand the competition technical requirements?
We proposed the “Strong Knowledge – Soft Power” idea. This idea is all about the quality and even traditions of school education (strong knowledge), as well as has a reference to the MGIMO context of modern diplomacy (soft power), as well as a reminder about modern architectural models that are based on the so-called soft skills. We saw this “laboratory” school as a “living school” where education is given through action.
Marianna Sarkisyan, Storaket architectural studio, about the “laboratory” school:
What part of the project was your company responsible for?
At the invitation from our colleagues, UNK Project, we agreed to take part in the competition for the preliminary concept of the MGIMO School as the designers of volumetric and planning solutions.
What does the modern “laboratory” school look like?
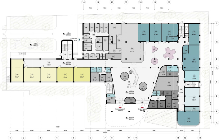
In all of our projects, we try to break away from the stereotype that a school is something like a black box – the young student enters it one day, and the graduates another – and the stereotype that the plan must necessarily consist of a row of classrooms connected by a corridor. A school is, first of all, a living organism, capable of changing and adjusting to new users and new circumstances. In addition to the standard educational zones, we wanted to create a single multifunctional public space of the hub that would unite all of the main functions of the school.

Pavel Kultyshev, architect, UNK Project – about the peculiarities of the project:
How much importance did you attach to the “shell” architecture?
The shell is just as important as the functional content. In our case, all of the main academic blocks were enshrouded in a distinctive horizontal facade system, which focuses one’s attention on the educational process.
We included all the social and visual communications between the students into the hovering volume of the complex, and, by contrast with the other blocks, created a completely transparent block – the theater of knowledge. It contains all the main public spaces of the school; the atrium provides a lot different possibilities for all of the students who may have different interests: there are private zones for the meetings of parents and teachers, co-working and brainstorming zones, a library, a media studio, and a large forum for all-school events, lectures, and performances.

The school in Garden Quarters
Copyright: © UNK project
What do you think about the town planning significance of the school building in the context of Garden Quarters?
We realized from the very start that, in accordance with the design code, the school had to become the conceptual nucleus of this city block, something like the educational temple on the city’s main square. We came up with this soft transition from architecture to nature; our complex was the greenest one out of all the proposed concepts. Not only are our roofs green – that’s expected – but we also have a large multifunctional “agora” stairway for the students. Furthermore, we even made the facade of the building green: we covered the glass with a horizontal system of mirror elements placed at a 45-degree angle to the facade and reflecting the green meadows before the school. Plus, as a bonus, we included the possibility of using the vertical greenery of a flower mix; this way, our school building would have looked totally unique every new season.
The school in Garden Quarters
Copyright: © UNK project