Art View House, situated between the Mariinsky Theater and the New Holland district, was completed in August this year. Its construction took seven years: the unique location imposed unique demands. For some of their decisions, the architects had to get approvals not only from the Government Committee for Historical and Cultural Heritage Management, but also from the Ministry of Culture, as well as argue with the city preservation activists, look for technologies for building an underground parking garage next to a protected water area, as well as organize the noisy construction work with consideration for the schedule of the higher school of music nearby. The result, however, pleased nearly everyone: the house won a several professional awards, and took an important place in the company’s portfolio, becoming the finishing touch in an iconic city view.
High-end residential complex Art View House on the Moika Embankment, 102, 2019
Photograph © Andrey Belimov-Gushchin / Evgeniy Gerasimov & partners
Art View House on the Moika Waterfront
Photograph © Andrey Belimov-Gushchin / Evgeniy Gerasimov & partners
The land site constitutes about a fifth of the city block stretching from the Moika Embankment to the Dekabristov Street, the whole of which was once occupied by a Lithuanian Castle of the late XVIII – early XIX century. The castle was the headquarters of the Lithuanian Musketeer Regiment, then it was rebuilt to become the city prison, then it was burned down during the February 2017 Revolutuon, and still later on even the ruins were removed. Advantageous in every respect, the land site was seemingly opening boundless possibilities for solving various town planning issues – but something went wrong. At first, they wanted to build a bathhouse in the place of the former castle, but they ultimately used only part of this chunk of land by building on it a few housing projects for the workers of Soyuzvefr, leaving out the lacunae. A little later, a standard four-story school building appeared here, and in 1961, a kindergarten was built near the confluence of the Moika and the Kryukov Channel, a place that is visible from even the remote waterfronts. Still later on, in the 2000’s, this building became a favorite with the city people thanks to its bright colors “Pete Mondrian”-style, and its ivy-covered walls, but it was ultimately recognized as a “dissonant” element: the building did not fit in with the scale and the façade rhythm of the existing construction, and was at odds with the overall panorama.
The Lithuanian Castle and the standard-construction kindergarten on the land site currently occupied by Art View House
Copyright: © Evgeniy Gerasimov & partners
In the recent times, the first project for the obliging land site, which used to host the kindergarten, was developed by Erick van Egeraat. However, the ostensibly modern building, with a white wave on the façade, turned out to be not quite digestible for the city people. Then, they invited Evgeny Gerasimov and Partners to design a project here, who opted for the time-tested play-it-safe approach of restoring the space structure of the city blocks. “The house must sit so tight and pretty that no doubt should arise why it’s here” – Evgeny Gerasimov explains.
Art View House on the Moika Waterfront
Photograph © Andrey Belimov-Gushchin / Evgeniy Gerasimov & partners
The construction work was suspended for two years for archeological excavations and the investigation of the foundations of the Lithuanian Castle by the experts of the Institute for the History of Material Culture of the Russian Academy of Sciences; the excavations started in 2014. The archaeologists found and recorded a lot of artifacts, some of them dating as far back as to the times of Peter the Great. Then even the remains were removed.
Art View House is yet another compound work executed “in styles”, of which this architectural company is the perfect master. While this project was still in the design stage, we made a detailed analysis of quotations and allusions: “some of them serve as the reminder about the Lithuanian Castle, some help to inscribe the house into the array of the waterfront, as well as (and this is also very important) to demonstrate the fact that it belongs in the premium-grade housing category”.
When asked about what was more important for him – to design a building reminiscent of the Lithuanian Castle or to fit in with the context, Evgeny Gerasimov answers that neither of these was. “The basis of the building’s image is constituted by neo-classics of the 1910’s, which, in turn, was reinterpreting the Empire style, and the northern Art Nouveau that preceded it. This is a landmark, and it’s easily readable, too. If you walk down the Vosstaniya, Nekrasova, or Radishcheva, you will see a few similar looking buildings: gray neoclassical houses.
Art View House on the Moika Waterfront
Photograph © Andrey Belimov-Gushchin / Evgeniy Gerasimov & partners
What makes this house modern is, according to Evgeny Gerasimov, the sheer fact that it has been built today. As for the signs of the XXI century, the architect names a few things of a character more technical than artistic: a two-level underground parking garage, a fire extinguishing system, opened layouts, and the building material – reinforced concrete with a ventilated façade instead of brick. The façade, by the way, is 90% natural granite and Jurassic marble. The remaining ten percent are decorative elements cast from exposed concrete by the models of the sculptor Vladislav Manachinsky.
The completed house did fit the panorama of the Moika River and the Bolshaya Morskaya “like a glove”, even in spite of the fact that it stands at a slight distance, and is not a part of the house-to-house construction, so characteristic of Saint Petersburg. If one is to go around it, paying attention to the neighboring houses, he will easily find the “points of resonance”. The gray color, the high pilasters, and the frontons are to be seen in the neoclassical building of the Rimsky-Korsakov Music School; the rounded side end, which looks like a castle tower, and the bas reliefs are to be seen in the shipyard buildings; similar rhythmic cornices are to be seen in the Kryukovsky Barracks. The very place itself is very Saint Petersburg, one can see water here, as well as bridges, streetlights, rank-and-file construction of various years of origin, and landmark buildings too. From this vantage point, one can embrace several epochs at once: from Peter the Great’s New Holland to the new stage of the Mariinsky Theater of the governor Poltavchenko times. The house on the Moika resonates with all of its surroundings.
Art View House on the Moika Waterfront
Photograph © Andrey Belimov-Gushchin / Evgeniy Gerasimov & partners
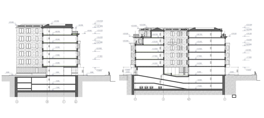
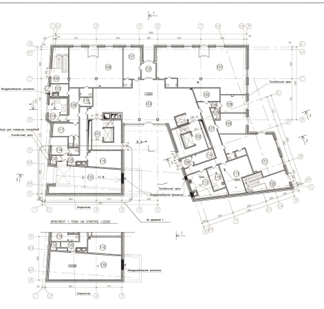
The house has four façades, all of them different. The main façade faces the Moika waterfront: symmetrical and elegant, with a fronton and measured spaces between the bay windows, and two oculi on either side of the entrance. From the side of the Kryukov Channel, due to the specifics of the land site, the building got a “fold”: the house stepped back, which yielded more vacant space, and because of which, when viewed from this side, the building looks more powerful and solemn, the pilasters getting the tension of a tight string, and, due to the absence of the bay windows, the façade is rather perceived as “vertical”. In the narrow Matveyeva Side-Street, where instead of car horns you are more likely to hear the sounds of musical instruments being tuned to pitch, one can plainly see the step-like quality of the building; the façade here becomes simpler, coming closer to its “yard” side, which is fairly interesting as well: in the space between two powerful firewalls, looking like thick fortress walls, there is a gentle “core” with lots of windows that reflect plenty of the sky.
Art View House, just like many other projects done by this company, turned out exactly the way it was designed. Evgeny Gerasimov gives main credit for this to the developer, “Okhta Group” in this particular case, likening it to a movie producer: “Everything must fall into place – the mastery of the director, the actors, the costume designer, the makeup artist, the theme composer, the camera person, the special effect crew, and so on. But still, keep in mind that the Oscar for the best film does not go to the director but to the producer. They all are united by the key figure who invests his or her money, without whom everything will fall apart. It’s the same way with architecture: with today’s level of digitalization, you can draw virtually any project, and the construction possibilities have grown tremendously, too. But, however talented your architects are, you won’t go far without the client’s desire to invest money and do great architecture”.
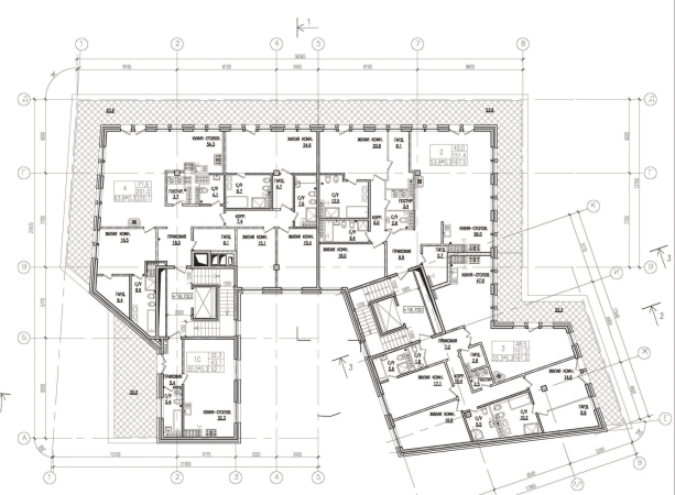
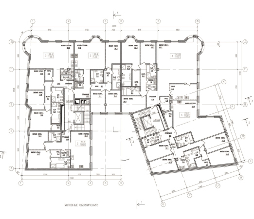
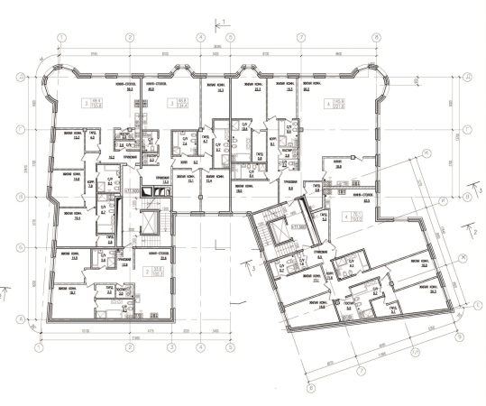
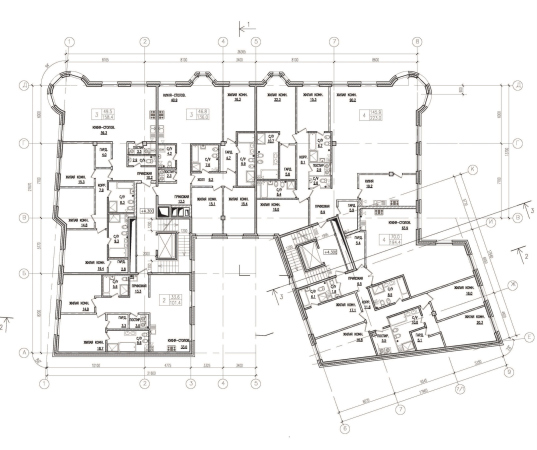
The house is pretty compact – you will not be able to examine its sixth floor from the nearby streets but the building still fits in the frame, which is a rarity. The apartments have individual layouts: totally, there are 24 of them, each one commanding a classic view, and sometimes more than one: Mariinsky Theater, the New Holland, the Saint Isaac Cathedral, and more. The layouts range from 99 to 219 square meters.
Yet another sign of a premium-class house is a 125-square-meter central lobby that looks like a one of a five-star hotel. The interior design of the public spaces was done by a London studio Project Orange, which also used natural materials: marble, granite, brass, valuable woods, and Murano glass.
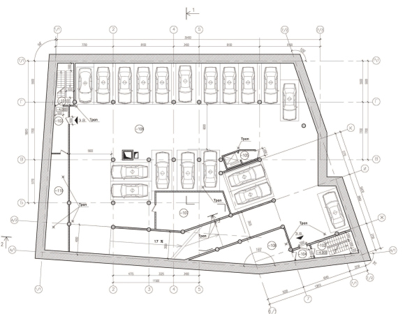
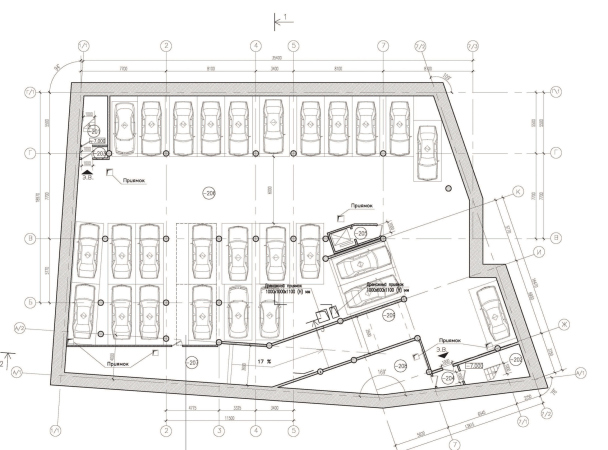
Building a two-level parking garage underneath the house, which a house of such status cannot do without, turned out to be quite a tall order. Due to the proximity to the Moika River and the Kryukov Channel, the wet soil was not the only engineering problem that the architects were to solve; they were also expected to take care about the nearby buildings. The neighboring house standing on the Moika waterfront is in a hazardous state, and the substation vault that stands on the side of the Dekabristov Street and supplies electrical power to the new stage of the Mariinsky Theater turned out to be yet another cultural heritage site. This means that the yielding was not to exceed 2 centimeters. The complexity factor was also increased by the hazardous sewer, running mere 5 meters away from the fence of the construction pit alongside the Kryukov Channel 11 meters deep.
The company’s chief designer Sergey Nenashev shares that before they ever began digging the construction pit, they drilled six holes 45 meters deep for investigating the soil, and then about a thousand more in order fix the elevation marks in accordance with the jet grouting technology, which made it possible to secure the construction pit and prevent shifting of soil underneath the house and in the nearby sites. The ground escaletion was done by the top&down technology, still rarely used in our country, when the building grows upwards and downwards simultaneously. The house at Moika 104 was also reinforced in a sparing way, and, after the construction was over, the municipality fixed the collector. Ultimately, the building’s yield stayed within the specified allowances.
Thus, the house on the Moika waterfront becomes a vivid example of the company’s professionalism, who was able to implement its ideas to a letter even in the most challenging technical conditions. Complying with the rigorous rules of Saint Petersburg’s architectural context, does indeed look like it’s been here for ages, at the same time providing its residents with all of the advantages of modern housing – together with comfortable living and being on a scale with the historical city and surrounded by it.
