Клубный дом Vitality
                © ADM 
        Впрочем, этим родство с окружающей застройкой и ограничивается. Новые дома «не скрывают» современного языка, демонстрируют принципиально иной масштаб и структуру фасадов. Соотношение массива стены и остекления скорее модернистское, стекла больше, перемычки тонкие. С другой стороны, в качестве основного фасадного материала ADM выбирает клинкерный кирпич и не жалеет его в объемных пластических элементах – в частности, треугольных пилонах «красного» корпуса. И эта материальность по своему характеру узнаваемая, московская.
Клубный дом Vitality
                © ADM 
        Решение обоих корпусов строится на любимом ADM приеме пластично артикулированной модульной сетки.
Андрей Романов, ADM architects:
        «У этих домов есть тени, они не плоские. В данном «классе» жилья сегодня мы можем позволить себе несколько уровней пластики. Ведь сегодня качество архитектуры, в том числе и на уровне деталей, становится важной составляющей так называемого «продукта». То есть совокупности характеристик объекта, определяющих класс объекта и позволяющих успешно позиционировать его на рынке».    
На двух зданиях сетка различается масштабом и решением.
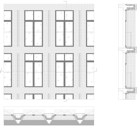
В «белом» корпусе широкие окна разделены волнообразными перебивками: они образуют подобие «плетеной корзины», подчеркивая горизонталь, созвучную и параллельную течению улицы. Усложненная геометрия поясов оживлена разным направлением раскладки кирпича и неоднородностью его светло-палевого оттенка, полностью оценить который, конечно, можно будет только по возведении здания. Тон слоновой кости дополнен бронзовым цветом решеток, которые ажурной каймой подчеркивают все горизонтали «плетения».
Клубный дом Vitality
                © ADM
        На первом этаже «белого» дома, поскольку он расположен в глубине участка, расположены квартиры. Только у них есть балконы-террасы, цель которых – избежать эффекта «заглядывания в окна». «Используя балконы на первом этаже, мы создаем «буферную зону»: пол квартиры приподнят относительно земли, человек внутри отделен глубиной этой террасы, ни вы его не видите, ни он вас, – объясняет Андрей Романов. – Это усиливает приватность и служит некоей компенсацией жильцам, поскольку квартиры первых этажей как правило менее востребованы».
Клубный дом Vitality
                © ADM
        В красном корпусе, чей торец выходит на линию улицы, первые этажи, напротив, общественные, и стекло без цоколя доходит до земли. В его первом ярусе также расположена рампа въезда в парковку.
Клубный дом Vitality
                © Larus Capital
        План 1 этажа. Клубный дом Vitality
                © ADM
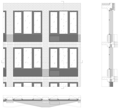
        Красный корпус контрастен по отношению к своему соседу: он не только развернут поперечно улице и решительно «останавливает» плавное продольное движение белого корпуса – в нем всячески подчеркнута вертикаль. Простенки между «французкими» двустворчатыми окнами трактованы как треугольные «контрфорсы», решительно прошивающие собой полосы межэтажных перекрытий. Острые рёбра раздвоены, прорисованы тонким углублением обратного треугольника – на ум приходят как чикагские опыты, так и североевропейская красно-кирпичная готика.
Клубный дом Vitality
                © ADM
        И в то же время корпус достаточно отчетливо перекликается с популярной сейчас темой московской промышленной застройки рубежа веков XX и XIX; причем тот факт, что сетка соседнего белого корпуса похожа на корзину, заставляет задуматься о пресловутой «смычке города и деревни», и в целом – о непростой истории города Москвы, в несколько периодов выросшего из «большой деревни» в промышленный центр, да и сейчас переживающего нешуточные трансформации. Красно-белый дом – как будто постиндустривальный отклик на московскую историю.
Клубный дом Vitality
                © ADM
        Так возникает парадокс: красный корпус, с одной строны, традиционно-московский по цвету и в то же время собранный, европейский по форме. А белый, наоборот, по-московски «расслабленный», текучий, и в то же время модернистский, пластинчатый, светлый и горизональный. Но все аллюзии будут, пожалуй, верными лишь отчасти – важно лишь то, что разные качества даны обобщенным намеком, авторы затрагивают идеи-струны, не сосредотачиваясь на каком-либо лейтмотиве: городское и деревенское, московское и европейское, консервативное и модернистское – переплетены, как, собственно, и в самом городе Москве. Что и интересно, поскольку между двумя, в общем-то, схожими по размеру и параметрам пластинами возникает оживленный диалог, построенный на цвете, графике и пластике, но укорененный в контексте.
Итак, объемная пластика, как волнистая, так и ребристая, очень важна для обоих корпусов. Как и фактура кирпича – а кирпич здесь полнотелый, не плитка. «Если ты делаешь сетку, материал должен быть очень хорошим», – подчеркивает Андрей Романов. Так что специально для этого проекта архитекторы совместно с немецким производителем клинкера разработали авторские смеси оттенков. По словам руководителя бюро, работа с кирпичом была особенно интересной, она протекала непосредственно на немецком производстве, где совместно с застройщиком авторы выкладывали и анализировали опытные образцы. А «для того, чтобы сэкономить на подсистеме», спланировали фасады таким образом, что кирпичные стенки опираются на плиты перекрытий. Это облегчает несение кирпичного массива и делает рельефную пластику фасада более надежной в конструктивном отношении. На фотографиях строящихся домов хорошо заметны отлитые в бетоне контуры межэтажных плит в характерными выступами, призванными поддержать рельеф фасадов.
Квартирография жилого комплекса достаточно разнообразна и соответствует современным стандартам: от однокомнатных порядка 40 м2 до трехкомнатных 91 м2 – эти уже двухсторонние, со сквозным проветриванием. Начиная от двухкомнатных квартир предусмотрено по 2 санузла. Во многих случаях предполагается кухня-гостиная, где-то, особенно в двухкомнатных квартирах – кухня с углубленной, не слишком заметной снаружи лоджией.
План 5 этажа. Клубный дом Vitality
                © ADM
        Отдельных рецепшен во входных группах корпусов нет, их заменяет единое лобби, расположенное во входном павильоне. Его архитекторы поставили в уличный фронт, в ряду с техническими помещениями и шумозащитным экраном из стекла, замкнув полноценный зеленый двор. Ради сохранения взрослых деревьев на участке павильон трансформируется, образуя альковы, «обнимающие» стволы и кроны.
Клубный дом Vitality
                © ADM
        «Тренд последних пяти-семи лет – это качественное благоустройство, абсолютно европейского уровня. Двадцать лет назад этого вообще никто не понимал, десять лет назад заказчик мог подумать про фасады, но открыть продажи и ничего не сказать про двор без машин и благоустройство. А теперь, если вы не предлагаете этих вещей, к вам просто никто не приходит», – говорит Андрей Романов. Так, в ЖК Vitality территория двора поднимается холмистым рельефом, в котором образуются две основные зоны – рекреационная и детская площадка. Над паркингом насыпается достаточное количество грунта для высадки крупномеров и образования холмов. Объединяющим пространство мотивом двора становится квадратный рисунок мощения.

 
                         
            
            
        

 
                            
 
                             
                             
                             
                             
                             
                             
                             
                                         
                                         
                                         
                                         
                                         
                                         
                                         
                                         
                                         
                                         
                             
                             
                                                    

 
                     
                                                                        
                                                                     
                                                                        
                                                                     
                                                                        
                                                                     
                                                                        
                                                                     
                                                                        
                                                                     
                                                                        
                                                                     
                                                                        
                                                                     
                                                                        
                                                                     
                                                                        
                                                                     
                                                                        
                                                                     
                                                                        
                                                                     
                                                                        
                                                                     
                                                                        
                                                                     
                                                                        
                                                                     
                                                                        
                                                                     
                                                                        
                                                                     
                                                                        
                                                                     
                                                                        
                                                                     
                                                                        
                                                                     
                                                                        
                                                                     
                                                                        
                                                                     
                                                                        
                                                                     
                                                                        
                                                                     
                                                                        
                                                                     
                                                                        
                                                                     
                                                                        
                                                                     
                                                                        
                                                                     
                                                                        
                                                                     
                                                                        
                                                                     
                                                                        
                                                                     
                                                                        
                                                                     
                                                                        
                                                                     
                                                                        
                                                                     
                                                                        
                                                                     
                                                                        
                                                                     
                                                                        
                                                                     
                                                                        
                                                                     
                                                                        
                                                                     
                                                                        
                                                                     
                                                                        
                                                                     
                                                                        
                                                                     
                                                                        
                                                                     
                                                                        
                                                                     
                                                                        
                                                                     
                                                                        
                                                                     
                                                                        
                                                                     
                                                                        
                                                                     
                                                                        
                                                                     
                                                                        
                                                                     
                                                                        
                                                                     
                                                                        
                                                                     
                                                                        
                                                                     
                                                                        
                                                                     
                                                                        
                                                                     
                                                                        
                                                                     
                                                                        
                                                                     
                                                                        
                                                                     
                                                                        
                                                                     
                                                                        
                                                                     
                                                                        
                                                                     
                                                                        
                                                                     
                                                                        
                                                                     
                                                                        
                                                                     
                                                                        
                                                                     
                                                                        
                                                                     
                                                                        
                                                                     
                                                                        
                                                                     
                                                                        
                                                                     
                                                                        
                                                                     
                                                                        
                                                                     
                                                                        
                                                                     
                                                                        
                                                                     
                                                                        
                                                                     
                                                                        
                                                                     
                                                                        
                                                                     
                                                                        
                                                                     
                                                                        
                                                                     
                                                                        
                                                                     
                                                                        
                                                                     
                                                                        
                                                                     
                                                                        
                                                                     
                                                                        
                                                                     
                                                                        
                                                                     
                                                                        
                                                                     
                                                                        
                                                                     
                                                                        
                                                                     
                                                                        
                                                                     
                                                                        
                                                                     
                                                                        
                                                                     
                                                                        
                                                                     
                                                                        
                                                                     
                                                                        
                                                                     
                                                                        
                                                                     
                                                                        
                                                                     
                                                                        
                                                                     
                                                                        
                                                                     
                                                                        
                                                                     
                                                                        
                                                                     
                                                                        
                                                                     
                                                                        
                                                                     
                                                                        
                                                                     
                                                                        
                                                                     
                                        