The dental clinic on Krylov Street in Yekaterinburg
Copyright: © CNTR Architects
The building’s complex shape, which the architects, with a fair share of self-irony, compare to a tooth, emerged under the influence of sunlight regulations, the layout of utility networks, and the fire safety setbacks required from neighboring structures. The relatively compact site is located at the corner of Krylov Street and Henri Barbusse Street, near the historic part of the city and just a few steps away from Yekaterinburg Arena. The clinic will replace a three-story building flanked by residential apartment blocks – these surrounding structures impose the primary constraints shaping the design.
The dental clinic on Krylov Street in Yekaterinburg
Copyright: © CNTR Architects
The dental clinic on Krylov Street in Yekaterinburg
Copyright: © CNTR Architects
The dental clinic on Krylov Street in Yekaterinburg
Copyright: © CNTR Architects
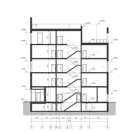
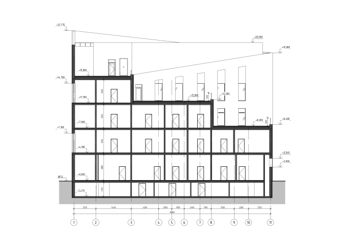
Despite the density of the area, the architects still had some room to maneuver. The initial concept envisioned a seven-story building, with one floor entirely dedicated to pediatric care. There was yet another iteration that included a four-story design, representing an intermediate stage in the search for the optimal form. Ultimately, the architects and the client settled on a five-story building, supplemented by a technical underground level.
In plan, the building takes the form of a simple rectangle, but each floor features unique sculptural characteristics. This ensures the clinic appears distinct from various vantage points. Overall, the resulting silhouette reminded the architects of a tooth – most likely a molar. From this inspiration came the idea to adorn the white ceramic granite façades with “gold” accents – a bold move requiring taste and restraint to avoid unintended gaudy connotations.
The dental clinic on Krylov Street in Yekaterinburg
Copyright: © CNTR Architects
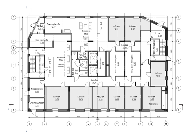
The intersection of the streets is emphasized by the building’s angled corner, accentuated by the gradual increase in height of the top floor. The “arrow” formed by the edge line points toward the recessed main entrance. This niche, like the upper part of the building, features more brass-like surfaces than the other façades. The entire fifth floor houses an open-space laboratory with access to a terrace, concealed behind a parapet that extends the façade’s design pattern.
The dental clinic on Krylov Street in Yekaterinburg
Copyright: © CNTR Architects
From a frontal view, the façade reveals a playful rhythm of windows, rendered even more dynamic by the angled recesses and the orientation of the colored ceramic granite panels. Elongated windows set in thin brass frames enhance the proportions with elegance, creating a pattern reminiscent of the delicate shadow of a tree canopy interspersed with sunlight. At the fifth-floor level, the golden layer of the façade becomes more pronounced, highlighting the balconies and the sloped roof. The first floor, on the other hand, is visually separated from the main body of the building with cladding in smaller-format clinker tiles. Without being overt, the façade conveys the building’s function – a place dedicated to crafting radiant white smiles.
On the side facing a three-story residential building, the architects placed a niche mirroring the main entrance, providing a comfortable pedestrian flow.
The dental clinic on Krylov Street in Yekaterinburg
Copyright: © CNTR Architects
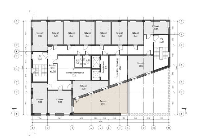
The courtyard-facing side of the building is the most architecturally intricate. Here, four terraces, shielded from street noise, create a stepped reduction in building height, which in turn minimizes shadow impact on the neighboring house. The largest terrace, covering 75 square meters, is located on the third floor and is designed for both staff and visitors. The patients can relax here while waiting for their appointments, easing any pre-procedure anxiety. The other terraces are exclusively for staff, providing areas for work and rest with access to fresh air without leaving the “clean zone”.
The dental clinic on Krylov Street in Yekaterinburg
Copyright: © CNTR Architects
A brass-clad block visible from this side serves purely as a decorative element. All technical systems and utilities are housed in the underground service level, ensuring a clean and functional design.
The dental clinic on Krylov Street in Yekaterinburg
Copyright: © CNTR Architects
The dental offices are arranged along the perimeter of the building, ensuring access to natural light. The “core” is dedicated to elevator lobbies and technical rooms. Visitor flows are separated right at the entrance: the pediatric department, occupying most of the first floor, has its own cloakroom, lobby, and restrooms, allowing it to operate independently from the adult section. As was mentioned earlier, the entire fifth floor is occupied by a laboratory. The interior design is also being developed by one of CNTR Studio’s specialized divisions.
Setting aside sunlight norms and height regulations, the building does not attempt to align with its surroundings, which primarily consist of prefabricated panel housing. There is no visual dialogue in terms of color, shape, or material. This deliberate divergence emphasizes the public and medical function of the clinic while establishing it as a local landmark. Its bold presence disrupts the monotony of the neighborhood, injecting a sense of modernity and individuality into the urban fabric.
