Charge Cars is building its EVs based on the bodies of legendary Ford Mustangs. The production is performed in London, where the advanced “stuffing” will be enclosed in a body repeating the 1967 Ford Mustang Fastback; Ford recently sold them a patent for it to be used as a “trade dress”. The price of both is about 40 million Russian rubles, and there are plans to release a limited production run of 499 fastbacks. This is an insanely expensive, one-off product, which combines cutting-edge technology with a vintage retro note of memories of the cool races of the sixties [seriously, it’s twice as expensive as a Tesla or even more; maybe one day they’ll make a Herbie, too?]
Meanwhile, the manufacturing startup is not designed for the signature “Ford”, ahem, assembly line system – it rejects it “in favor of integrating research, development, production, recreation, and employee socializing”. This is a kind of new Ford of a perfect world, practically a dream, well, for those who have the money for it.
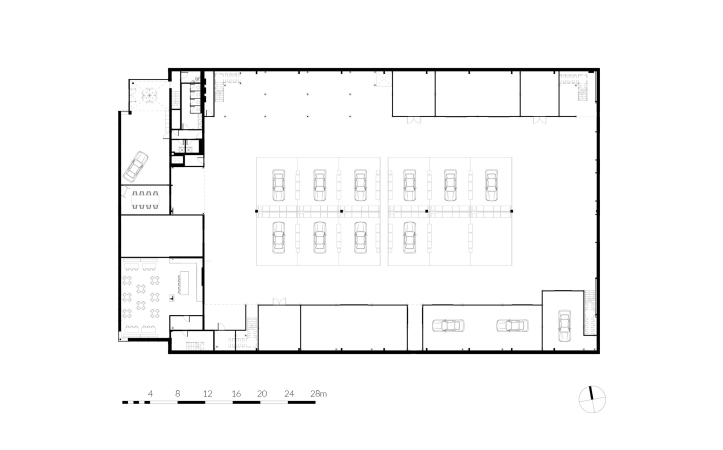
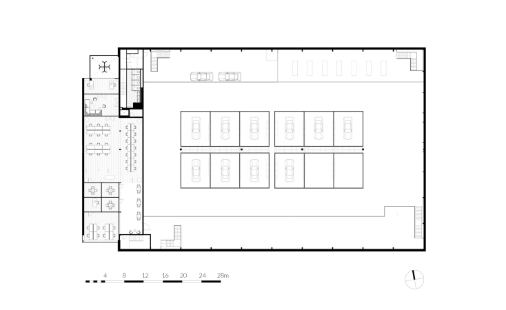
The factory is located in the west of Greater London, near Heathrow Airport among logistics hangars, and externally it’s one of a row of elegantly striped corrugated metal boxes, surrounded by sheared baskets and lime trees [one is tempted to say “I’m going to take my facemask off and breathe on you here”], quite practical and simple in shape.
The main goal, and perhaps the main challenge, was the architectural understanding of the technically complex intricacies of production, discreet and unobtrusive, but immersed in the subtleties of the two professions of car mechanic and architect: “This clean factory space, where the white and the black amplify each other by contrast, representing the fusion of a laboratory and a garage, reflects the elegance of modern engineering solutions and references the iconic tracks of Formula 1”.
Charge Cars
Copyright: Photograph © Paul Riddle / provided by MOST Architecture
Charge Cars
Copyright: Photograph © Paul Riddle / provided by MOST Architecture
Charge Cars
Copyright: Photograph © Paul Riddle / provided by MOST Architecture
The facility is basically a hangar, austere, black-and-white, but very fresh even in pictures. It has greenery and floor-to-ceiling glass. The architects paid a lot of attention to the optimal layout and light distribution. For example, in the office part, the light is built into the duct system and can be programmed, while in the assembly area thin strips of lights are lined up along the boundaries of the assembly areas, that is, they do not strike the eye, but provide uniform illumination of the car parts.
Charge Cars
Copyright: Photograph © Paul Riddle / provided by MOST Architecture
The climax of this solution, which is focused on technology and follows the requirements of sophisticated modern production, is the lobby light fixture. The architects went all the way: it is anamorphic, its shape is derived from Feynman diagrams, and at the same time it coalesces into the Charge Cars logo when viewed strictly from the bottom up.
Charge Cars
Copyright: Photograph © Paul Riddle / provided by MOST Architecture
The concept of “anamorphic” is applied mainly in photography and moviemaking and means optical change of the image in different scales of parts and in two perpendicular planes. And Feyman diagrams are a way of graphical representation of particle interaction in quantum field theory.
What a mouthful that was... Such a thing is definitely in line with the specifics of modern production and is worthy of hanging above its entrance.
Charge Cars
Copyright: Photograph © Paul Riddle / provided by MOST Architecture
In fact, the light fixture can be described as a three-dimensional snowflake decomposed into Y-shaped elements, divided and placed in space so that, when viewed from different vantage points, they float in space like some kind of UFOs, and when viewed from a certain point they coalesce into the Charge Cars logo – in the form of a Maltese cross, which is also quite witty. This is an approach that is characteristic of modern art objects and rational from a marketing point of view at the same time.
Charge Cars
Copyright: Photograph © Paul Riddle / provided by MOST Architecture
All this is placed in a very small, but still double-height, space of the entrance lobby – a science-like cherry on top of the technology cake.
Let’s not be surprised that “our” people do things like this overseas. Let’s just be happy for them.
The architects’ description of the project is available here.
A little movie about the Charge Cars factory space:
Charge Cars
Copyright: © MOST Architecture
