The site is located in Zelenogorsk, which, despite its remoteness from St. Petersburg, is administratively part of it and belongs to the Kurortny District – together with Komarovo, Repino, Sestroretsk and other municipalities. The construction of new facilities is allowed here subject to a number of obligations. For example, it is necessary to preserve the principle of development by dispersed buildings, and the maximum area of a spot of one residential building is limited. The established panoramas and views, the alignment of historic streets and greenery are also protected.
Warmstone housing complex. The location plan
Copyright: © Mayak architects
Warmstone housing complex
Copyright: © Mayak architects
Another circumstance, which is also context-based, also has to do with the context. Zelenogorsk was once part of Finland and was called Terijoki. The opposite side of the “granite” and “imperial” St. Petersburg is shown here: boulders are not turned into pedestals, the trimmed alleys are contrasted with gnarled pines, and the role of the Bronze Horseman is played by Kalevala here.
The protagonist of the project is a man striving to ennoble wild nature. The internal drama of the project is the spiritualization of “unhewn” boulders from the sandy shores of the Gulf of Finland, covered with moss and the patina of time. The boulders can be cleaned, warmed with the warmth of hands and carved out of the rough form into something that will gain value – the walls of a favorite house, inside which a hearth will be created, which will become the semantic foundation of the house. The image of a scattering of stones permeates the project with a red thread and is a kind of connective tissue for all the elements that we designed.
The architects “scatter” 17 houses on the plot in a seemingly random and therefore picturesque order. A similar technique, by the way, is used by GAFA in neighboring Roshchino. Between the pentagonal houses, a network of intricate streets is formed, which the architects describe as “short but capacious interludes between significant volumes of buildings”.
This near-vernacular layout allows for the creation of multiple routes. The streets lead to the center, where the main public space is formed – much like a “forest glade” with playgrounds and recreation areas. Parking spaces are located along the perimeter of the block, one of its corners is closed by a four-story commercial building.
Warmstone housing complex. Axonometry
Copyright: © Mayak architects
Warmstone housing complex. Location plan
Copyright: © Mayak architects
We deliberately refrained from the standard building configuration in favor of impulsive and multifaceted outlines, and it helped not only from an ideological point of view, because it became a reference to work with natural forms, but it also in many ways made it easier to work with the density of the building and with the insolation of the apartments.
All the 17 houses have the same layout, but create a diverse environment thanks to the pentagonal shape, free arrangement, gradient of brick cladding, and “large-stroke” facades. Panoramic windows without imposts, cubes of loggias and transparent weightless balconies simultaneously play on the image of massive boulders and reveal views of the surroundings.
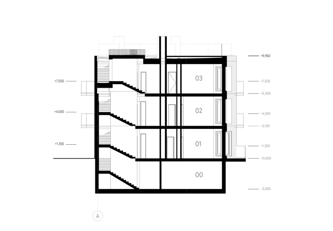
Each building has seven apartments with an area ranging from 40 to 73 m2. In most of them you can even admire the pine trees from the bathroom. The first floor apartments have a small patio, while the upper floor apartments have access to the roof terrace.
