Life-Kutuzovsky housing complex, a project. Birds-eye view.
Copyright: © ADM
Without knowing the past of this place, one could think that these blocks have been here forever – so natural-looking is the urban space that they have formed. The land site in question is indeed a great place to live in: affordable, quiet, and boasting excellent views. In the middle, the blocks are connected by a boulevard, which is the compositional core and the main communication artery here: it provides the main driving entrance from the Gzhatskaya Street, and it accumulates all the main public functions. The shops and restaurants are situated in the bottom floors of the residential buildings and in the single-story links between them.
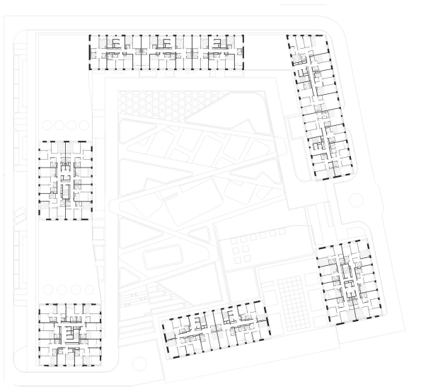
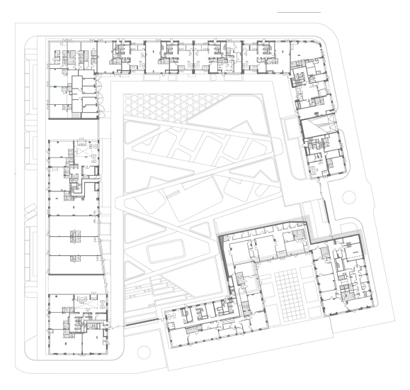
Life-Kutuzovsky housing complex. The master plan
Copyright: Photograph © Yaroslav Lukyanchenko / provided by ADM architects
Life-Kutuzovsky housing complex
Copyright: Photograph © Yaroslav Lukyanchenko / provided by ADM architects
It is expected that the businesses on the boulevard and along the external perimeter will be quite diverse, and will cater, first of all, for the local residents: the population of the blocks is high, and, at the same time, in terms of infrastructure, this area is still developing. According to the project, the boulevard and the recreational zone stretching along the river adjoining it from the south, will be open to the general public, and, for all intents and purposes, must become new hubs of the city activity, making up for the lack of public functions.
Life-Kutuzovsky housing complex
Copyright: Photograph © Yaroslav Lukyanchenko / provided by ADM architects
From the side of the river, the boulevard comes to a promenade that runs around the perimeter of the blocks like a belt: here the architects were able to form a rather wide landscaped zone, even though the natural reserve status of the Setun valley kept them from expanding the recreation area down to the water and make a full-fledged embankment. The grounds of the residential complex is limited by a pedestrian route, beyond which “wilderness” begins.
Life-Kutuzovsky housing complex
Copyright: Photograph © Yaroslav Lukyanchenko / provided by ADM architects
Life-Kutuzovsky housing complex
Copyright: Photograph © Yaroslav Lukyanchenko / provided by ADM architects
The in-yard territory is very clearly divided from the city – ADM always tries to maintain the city-block construction principle in their projects. The natural borders in this case are the residential buildings themselves and the single-story lintels between them, with an occasional fence. The architects believe that the two resulting city blocks are the perfect solution for such a large land site. And the boulevard designed between them made it possible to ultimately channel the city space to the river, instead of cutting the riverside off completely and making it the sole privilege of the residents.
Life-Kutuzovsky housing complex
Copyright: Photograph © Yaroslav Lukyanchenko / provided by ADM architects
The architects placed the buildings in such a way as to form the optimum size of the yards. Above the underground parking garage, there is a lot of soil thanks to the graded character of the roof, and the architects could plant large trees here. Generally speaking, the yard design combines quite different landscaping elements – small coppices, playgrounds, sports facilities, and occasional man-made hills.
The yards are connected to the city space by “punctures” in the single-story linking pavilions, coinciding with some of the driveways. Their “bridge” roofs step gradually down, following the lowering of the relief – and the relief drop here is 7 meters in the direction of the river – and form terraces with decorative backfill of the roof. Entering such an arch, you can sometimes get into an apartment hallway, and sometimes to the yard. The flat roofs have skylight in them: underneath the skylights, there are large plants – quite the modernist technique.
Life-Kutuzovsky housing complex
Copyright: Photograph © Yaroslav Lukyanchenko / provided by ADM architects
Just like most industrial parks that are remote from the city center, the Vereiskaya land site was devoid of any context whatsoever. There was nothing much that the architects could use as a starting point – for the sole exception of an occasional housing project popping up in the distance; across the Gzhatskaya street, there are loose bits of none-too-appetizing housing projects built back in the Soviet time. ADM organized their city blocks as consisting of towers of different height and section houses standing on the corners of the site, 12-16-18-22-23 stories high.
For the facade design, the architects selected three patterns of their favorite Klinker brick. For example, some of the houses are coated with golden tiles, some are white with inclusions of tinted glass, and some have a gradient wave-like transition from turquoise gray to white. The wave-like gradient and a mix of golden glossy and white tiles create smooth transitions of color that hold the composition together.
The unifying theme of the multi-part composition is also solutions of plastique – a uniform facade mesh with the syncopated rhythm of the walls, and the tectonics of the top and bottom that is the same for all towers. In all of their projects, ADM architects strive to defend their right to design interesting facades, filled with relief and “non-flat”. A few levels of plastique create the required shadows. In “LIFE Kutuzovsky”, the textured brick surface turns on the chamfers 38 cm deep, enhancing the thickness of the wall, and giving it a feeling of integral corporeality.
The largest corner apartments have recessed balconies, even though small ones – the so-called “smoker’s balconies”, 60 cm deep. According to the leader of the company, Andrew Romanov, the size of these small balconies was “empirically calculated”: unlike with the so-called “French” balcony, a person can walk out and close the door behind them, but there is no point in glazing such balconies, so the facades will not get ruined by the residents’ “design whims”: “If someone spends their bottom money to buy an apartment with an area of 55 square meters, and it has a balcony 3x2 – just the width of the balcony – the first thing they do is glaze it, insulate it, and turn it into a part of your useful floor space. Everyone wants to get this space for a fraction of its price, in order to remove the partition wall later on. Eventually, these meters become a big problem for architecture. In the Soviet houses, the balconies were included for free, and then they were inevitably glazed, which formed the facade into a semblance of Istanbul. Today, the real property market is offering people an alternative so that they would have a feeling that they have a balcony but they would not be tempted to make outlaw construction” – Andrey Romanov emphasizes.
Now that the first block is complete, and the second block is also nearly ready, Andrey Romanov is positive that he is happy with the quality of execution: “What we’ve got here is European-class housing space, and, although we did not manage to include the embankment into it, the recreation area that we designed is spacious enough and filled with various landscape elements”.
The architect says that still twenty years ago nobody cared about this feature of modern housing. The developer could start sales without so much as telling the customers a single word either about the car-free yard or the green zones. Then they gradually began selling the facades, and five or seven years ago the high-quality landscape designed packed with features became a real hot trend – and now this component is essential for the apartments to sell well – says the author of the project.
