Место под солнцем
Микрорайон Солнечный растет на южной окраине Екатеринбурга с 2013 года, это второй по величине проект комплексного освоения территории в городе. Мастер-план подготовило голландское бюро Levs, с территорией успели поработать разные девелоперы, основной из которых – компания «Форум-групп», а также разные архитекторы. К настоящему времени построено несколько кварталов с детскими садами, школой и ледовой ареной.Дошкольное образовательное учреждение №4 Екатеринбург, район Солнечный. Ситуационный план
                © Архитектурное бюро ASADOV
        В ближайшее время будет сдан еще один квартал, прилегающий к улице Лучистая, который станет средоточием общественных объектов: в его контурах разместится Губернаторский лицей с блоком детского технопарка «Кванториум» – его, к слову, проектируют совместно с голландцами Atelier PRO Architects, Центр художественной гимнастики и хореографический колледж, а также детский сад, уютно разместившийся во дворе жилых домов, – за его концепцию отвечает бюро ASADOV. Все объекты соединит сеть пешеходных бульваров, которая сама по себе будет привлекать жителей как место для прогулки и отдыха. Забегая вперед отметим, что детский сад из этой общественной жизни не выключен, а является ее полноправным участником.
Дошкольное образовательное учреждение №4 Екатеринбург, район Солнечный
                © Архитектурное бюро ASADOV
        Букет мнений
Новый детский сад Солнечного будет отличаться от своих предшественников – двух «Лучиков» и «Галактики». Подготовке проекта предшествовало формулирование технического задания: рабочая группа «Форум-групп» провела социологический опрос среди жителей микрорайона, привлекла педагогического консультанта, проанализировала успешный опыт других дошкольных заведений. Поскольку садик муниципальный, команда проекта подключила к обсуждению представителей городской администрации и будущего директора. В результате в основу концепции лег ряд принципов, таких как «пространство – третий педагог», «все дети разные» или «обучение происходит в деятельности». Бюро ASADOV предстояло дать им архитектурное воплощение.Подкова на счастье
Детский сад, как уже упоминалось, располагается во дворе, образованном «скобками» двух жилых домов – единственных в этом квартале. Компактный участок, а также конфигурация Губернаторского лицея, расположенного напротив, подсказали архитекторам использовать план подковы, которая раскрывается в сторону пешеходного бульвара и одного из курдонеров лицея собственным двориком.Дошкольное образовательное учреждение №4 Екатеринбург, район Солнечный
                © Архитектурное бюро ASADOV
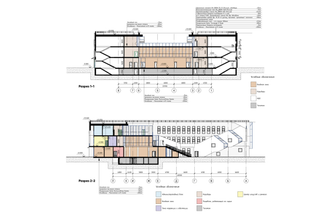
        По внешнему периметру подковы группируются игровые площадки, а во внутреннем дворике умещается площадь и амфитеатр. Терраса на уровне третьего этажа выступает как бельэтаж, а галерея на втором играет роль балкона и эвакуационного выхода, связанного лестницами со всеми уровнями здания.
В центральной части здания размещается общественный блок помещений, в двух длинных корпусах – детские группы. Каждая возрастная группа располагает отдельным входом, что позволяет не закрывать учреждение целиком в случае карантина.
Дошкольное образовательное учреждение №4 Екатеринбург, район Солнечный
                © Архитектурное бюро ASADOV
        Дошкольное образовательное учреждение №4 Екатеринбург, район Солнечный. Генплан
                © Архитектурное бюро ASADOV
        Конструктивизм с пеленок
Округлая форма не только помогает оптимально вписать здание в участок и подчеркнуть его типологическое отличие от других общественных объектов квартала. На интуитивном или бессознательном уровне дети смогут связать здание своего садика с важнейшим символом екатеринбургского конструктивизма – Белой башней, а также с другими зданиями этого направления, которые увидят в городе – гостиницей «Исеть», Музеем истории и археологии Урала, спортивным комплексом «Динамо». Зачем это нужно? Конструктивизм – та часть советского наследия, которая кажется безусловно ценной и востребованной далеко за пределами Екатеринбурга, хорошо, если понимание этого будет зарождаться еще в детстве.Дошкольное образовательное учреждение №4 Екатеринбург, район Солнечный
                © Архитектурное бюро ASADOV
        Дошкольное образовательное учреждение №4 Екатеринбург, район Солнечный
                © Архитектурное бюро ASADOV
        Помимо собственно формы и белого цвета срабатывают и другие «коды». Окошки – явно мельниковские, хотя и приведены к более понятным для детей «домикам», а витражи в них – от Пита Мондриана. «Экраны» окон в торцевых частях «подковы» в совокупности с тонкими колоннами, которые поддерживают массивные блоки лестниц, как и сами лестницы и трубы-перемычки сообщают зданию черты фабрики. На этой фабрике, впрочем, если позволительно так сказать, будут «выпускать» уже совсем других детей – мечтается, что с маркировкой «свободные».
Дошкольное образовательное учреждение №4 Екатеринбург, район Солнечный
                © Архитектурное бюро ASADOV
        Дошкольное образовательное учреждение №4 Екатеринбург, район Солнечный
                © Архитектурное бюро ASADOV
        От советских «фабрик» здание отличает и отчетливая теплота: в цвете, материалах, адаптации «взрослых» форм с помощью двускатных домиков, открытых вовне и одновременно защищенных пространствах, не вызывающих смутной тревоги. Во внутренних помещениях тяга к смене образовательной парадигмы чувствуется еще сильнее.
Вместе и по отдельности
Комнаты групп, как уже упоминалось, целиком занимают два крыла «подковы». У каждой группы есть не только отдельный вход, но и «идентичность» – название, связанное с ним не слишком навязчивое оформление, цветовой код. Пространства групповых комнат светлые, просторные и многофункциональные. Спальные места в тихий час закрывают ширмой, в остальное время кровати можно убрать в ячейки. Легкая штабелируемая мебель тоже позволяет быстро освободить места для игры или занятий.Насытить день разнообразной деятельностью призваны помещения общественного блока. На первом этаже рядом со столовой есть педагогическая кухня, где под присмотром взрослых дети учатся важным навыкам самообслуживания и одновременно тренируют крупную и мелкую моторику. На втором этаже располагаются мастерские для занятий живописью, музыкой, гончарным искусством, столярным делом, а также кабинет логопеда, психолога и соляная пещера.
Дошкольное образовательное учреждение №4 Екатеринбург, район Солнечный
                © Архитектурное бюро ASADOV
        Дошкольное образовательное учреждение №4 Екатеринбург, район Солнечный
                © Архитектурное бюро ASADOV
        Дошкольное образовательное учреждение №4 Екатеринбург, район Солнечный
                © Архитектурное бюро ASADOV
        Дошкольное образовательное учреждение №4 Екатеринбург, район Солнечный
                © Архитектурное бюро ASADOV
        Третий этаж отведен под познавательную деятельность: сюда вынесены лаборатории с интерактивными обучающими материалами и «живой уголок». Физкультурный зал дополняет помещение для сенсорной интеграции с лабиринтами, полосой препятствий и разнообразными материалами, которые помогут ощутить границы своего тела.
Дошкольное образовательное учреждение №4 Екатеринбург, район Солнечный
                © Архитектурное бюро ASADOV
        Дошкольное образовательное учреждение №4 Екатеринбург, район Солнечный
                © Архитектурное бюро ASADOV
        Один из принципов технического задания гласит, что «родители – основные партнеры детского сада в воспитании и развитии ребенка». Поэтому для них здесь предусмотрено достаточно места. За амфитеатром располагается универсальное атриумное пространство, где родители могут спокойно проводить и встретить своих детей, посмотреть спектакль или выставку рисунков, поучаствовать в ярмарке. Здесь располагается гардероб, колясочная и большой санузел с пеленальным столиком, а также отдельная комната для встреч с педагогами.
Дошкольное образовательное учреждение №4 Екатеринбург, район Солнечный
                © Архитектурное бюро ASADOV
        Дошкольное образовательное учреждение №4 Екатеринбург, район Солнечный
                © Архитектурное бюро ASADOV
        Все в сад
Компактная планировка здания позволила освободить большую территорию для прогулок на свежем воздухе. Двенадцать площадок формируют что-то вроде тематического парка с разнообразным наполнением: можно отправиться на «стройку» и управлять краном, знакомиться с персонажами сказок, работать в теплице, играть с песком или изучать правила дорожного движения.Дошкольное образовательное учреждение №4 Екатеринбург, район Солнечный
                © Архитектурное бюро ASADOV
        Дошкольное образовательное учреждение №4 Екатеринбург, район Солнечный
                © Архитектурное бюро ASADOV
        Дошкольное образовательное учреждение №4 Екатеринбург, район Солнечный. Схема комплексного благоустройства земельного участка
                © Архитектурное бюро ASADOV
        Благодаря дворику с амфитеатром и автономности различных блоков преодолевается проблема выключенности территории садика в вечернее время и выходные. Планируется, что здесь будут проходит в том числе мероприятия квартального и районного масштаба для взрослых: мастер-классы, кинопоказы, спортивные тренировки и городские праздники.
                        
            
            
        

                            
                            
                            
                            
                            
                            
                            
                            
                            
                                        
                                        
                                        
                                        
                                        
                            
                            
                            
                            
                            
                            
                            
                            
                            
                            
                            
                                        
                                        
                                        
                                        
                                        
                                        
                                        
